Homepage Blank Welder Performance Qualification Record PDF Form
Content Overview

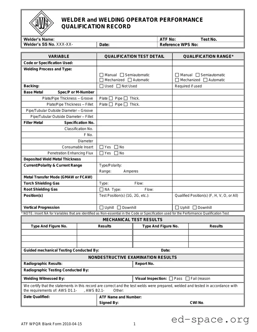
The Welder Performance Qualification Record form is an essential document that ensures welders meet industry standards and specifications. It captures critical information about the welder, including their name, identification numbers, and the specific test they have completed. This form details the variables associated with the qualification test, such as the welding process used—whether manual, semiautomatic, or automatic—as well as the type of base metal and filler metal specifications. It also outlines the thickness of the materials and the various positions in which the welder is qualified to work. The form includes results from mechanical tests and non-destructive examinations, such as radiographic testing and visual inspections, which validate the quality of the welds produced. Additionally, the form requires certification by a qualified individual, confirming that all statements are accurate and that the tests comply with relevant codes, like AWS D1.1. Overall, this record is vital for maintaining safety and quality in welding operations, making it imperative for welders and employers to complete and maintain it diligently.

Document Preview

WELDER and WELDING OPERATOR PERFORMANCE

QUALIFICATION RECORD

 

Welder’s Name:

 

 

 

 

ATF No:

 

Test No.

 

Welder’s SS No. XXX-XX-

 

Date:

 

 

Reference WPS No:

 

 

 

 

 

 

 

 

 

 

 

 

 

 

VARIABLE

 

 

QUALIFICATION TEST DETAIL

 

 

QUALIFICATION RANGE*

 

 

Code or Specification Used:

 

 

 

 

 

 

 

 

 

 

 

 

 

 

 

 

 

 

 

 

 

 

 

 

 

Welding Process and Type:

 

 

 

 

 

 

 

 

 

 

 

 

 

 

 

 

Manual

Semiautomatic

 

 

Manual

 

Semiautomatic

 

 

 

 

 

Mechanized

Automatic

 

 

Mechanized

Automatic

 

 

 

 

 

 

 

 

 

 

 

Backing:

 

 

 

Used

Not Used

 

 

Required if used

 

 

 

 

 

 

 

 

 

 

 

 

 

 

 

Base Metal

Spec/P or M-Number

 

 

 

 

 

 

 

 

 

 

 

 

 

 

 

 

 

 

 

 

 

 

 

 

Plate/Pipe Thickness – Groove

 

Plate

Pipe

Thick.

 

 

 

 

 

 

 

 

 

 

 

 

 

 

 

 

 

 

 

 

 

Plate/Pipe Thickness – Fillet

 

Plate

Pipe

Thick.

 

 

 

 

 

 

 

 

 

 

 

 

 

 

 

 

 

 

 

 

Pipe/Tubular Outside Diameter – Groove

 

 

 

 

 

 

 

 

 

 

 

 

 

 

 

 

 

 

 

 

 

 

 

 

 

Pipe/Tubular Outside Diameter – Fillet

 

 

 

 

 

 

 

 

 

 

 

 

 

 

 

 

 

 

 

 

 

 

 

 

 

 

Filler Metal

Specification No.

 

 

 

 

 

 

 

 

 

 

 

 

 

 

 

 

 

 

 

 

 

 

 

 

 

 

 

Classification No.

 

 

 

 

 

 

 

 

 

 

 

 

 

 

 

 

 

 

 

 

 

 

 

 

 

 

 

F No.

 

 

 

 

 

 

 

 

 

 

 

 

 

 

 

 

 

 

 

 

 

 

 

 

 

 

 

Diameter

 

 

 

 

 

 

 

 

 

 

 

 

 

 

 

 

 

 

 

 

 

 

 

 

 

 

 

Consumable Insert

 

Yes

No

 

 

 

 

 

 

 

 

 

 

 

 

 

 

 

 

 

 

 

 

 

 

 

 

Penetration Enhancing Flux

 

Yes

No

 

 

 

 

 

 

 

 

 

 

 

 

 

 

 

 

 

 

 

 

 

 

Deposited Weld Metal Thickness

 

 

 

 

 

 

 

 

 

 

 

 

 

 

 

 

 

 

 

 

 

 

 

 

Current/Polarity & Current Range

 

Type/Polarity:

 

 

 

 

 

 

 

 

 

 

 

 

 

Range:

Amperes

 

 

 

 

 

 

 

 

 

 

 

 

 

 

 

 

 

 

 

 

Metal Transfer Mode (GMAW or FCAW)

 

 

 

 

 

 

 

 

 

 

 

 

 

 

 

 

 

 

 

 

 

 

 

 

Torch Shielding Gas

 

Type:

 

Flow:

 

 

 

 

 

 

 

 

 

 

 

 

 

 

 

 

 

 

Root Shielding Gas

 

NA Type:

Flow:

 

 

 

 

 

 

 

 

 

 

 

 

 

 

 

 

Position(s)

 

 

 

Test Position(s) (1G, 2G, etc.):

 

 

Qualified Position(s) (F, H, V, O, or All)

 

 

 

 

 

 

 

 

 

 

Vertical Progression

 

Uphill

Downhill

 

 

Uphill

Downhill

 

 

 

 

 

 

 

 

 

 

 

 

 

 

 

* NOTE: Insert NA for Variables that are identified as Non-essential in the Code or Specification used for the Performance Qualification Test

 

 

 

 

MECHANICAL TEST RESULTS

 

 

 

Type And Figure No.

 

 

Results

 

Type And Figure No.

Results

 

 

 

 

 

 

 

 

 

 

 

 

 

 

 

 

 

 

 

 

 

 

 

 

 

 

 

 

 

 

 

 

 

 

Guided mechanical Testing Conducted By:

 

Date:

 

 

 

 

 

 

 

 

 

 

 

 

 

NONDESTRUCTIVE EXAMINATION RESULTS

 

 

 

Radiographic Results:

 

 

 

Report No.

 

 

 

 

 

 

 

 

 

 

Radiographic Testing Conducted By:

 

 

 

 

 

 

 

 

 

 

 

 

 

 

 

 

 

 

 

 

 

Welding Witnessed By:

 

 

 

Visual Inspection: Pass

Fail (reason

)

 

 

 

 

 

We certify that the statements in this record are correct and the test welds were prepared, welded and tested in accordance with

 

the requirements of: AWS D1.1-

, AWS B2.1-

Other:

 

 

 

 

 

 

 

 

 

Date Qualified:

 

ATF Name and Number:

 

 

 

 

 

 

Signed By:

CWI No.

 

 

 

 

 

 

 

 

ATF WPQR Blank Form 2010-04-15

 

 

1

 

 

Form Specifications

Fact Name Details
Purpose The Welder Performance Qualification Record form is designed to document a welder's qualifications, ensuring they meet industry standards for specific welding processes.
Key Components This form includes essential information such as the welder's name, test number, welding processes, and base metal specifications.
Welding Processes It categorizes welding processes into manual, semiautomatic, mechanized, and automatic, allowing for a comprehensive assessment of skills.
Qualification Range The form specifies the qualification range for thickness and diameter of materials, which is crucial for determining the welder's capability.
Non-Destructive Testing Results from non-destructive examinations, such as radiographic testing, are documented to verify the integrity of the welds.
Governing Codes In many states, the AWS D1.1 and AWS B2.1 codes govern the qualifications outlined in this record, ensuring compliance with national standards.
Certification The form requires signatures from qualified inspectors, affirming that the testing was conducted in accordance with the specified codes and standards.

Welder Performance Qualification Record: Usage Guidelines

Filling out the Welder Performance Qualification Record form requires careful attention to detail. Each section of the form is crucial for accurately documenting a welder's qualifications and test results. Below are the steps to guide you through the process of completing the form.

  1. Begin by entering the welder’s name in the designated space at the top of the form.
  2. Fill in the ATF number and the test number in the respective fields.
  3. Provide the welder’s Social Security number (SS No) in the appropriate section.
  4. Record the date of the qualification test.
  5. Enter the reference WPS (Welding Procedure Specification) number.
  6. Specify the code or specification used for the qualification.
  7. Indicate the welding process and type by checking the appropriate boxes for manual, semiautomatic, mechanized, or automatic.
  8. Note whether backing was used or not, and if required, indicate it accordingly.
  9. Fill in the base metal specification or P/M number.
  10. Record the thickness of the plate or pipe for both groove and fillet welds.
  11. Document the outside diameter of the pipe or tubular sections for both groove and fillet welds.
  12. Provide the filler metal specification number, classification number, and diameter.
  13. Indicate whether a consumable insert was used.
  14. Specify if a penetration enhancing flux was used.
  15. Record the deposited weld metal thickness.
  16. Indicate the current type/polarity and the current range in amperes.
  17. Document the metal transfer mode used (GMAW or FCAW).
  18. Specify the torch shielding gas type and flow rate.
  19. Indicate the root shielding gas type and flow rate, if applicable.
  20. Fill in the test position(s) and qualified position(s) by checking the appropriate boxes.
  21. Document the vertical progression method (uphill or downhill).
  22. Record the results of any mechanical tests conducted, including the type and figure number.
  23. Indicate the results of the guided mechanical testing, including the name of the conducting entity and the date.
  24. Fill in the radiographic results and report number.
  25. Document who conducted the radiographic testing and who witnessed the welding.
  26. Indicate the results of the visual inspection, including whether it passed or failed and the reason for failure, if applicable.
  27. Certify the accuracy of the statements by signing and dating the form. Include the name and number of the ATF and the CWI number.

Your Questions, Answered

What is the purpose of the Welder Performance Qualification Record form?

The Welder Performance Qualification Record form serves to document a welder's qualifications and capabilities. It is essential for demonstrating that a welder has the necessary skills to perform welding tasks according to specific standards. This record helps ensure that welds meet industry requirements for safety and quality.

Who needs to fill out this form?

This form must be completed by welders and welding operators who are seeking to validate their skills. It is often required by employers, regulatory bodies, or clients to confirm that the welder has successfully passed qualification tests relevant to their work environment.

What information is required on the form?

The form requires various details, including the welder’s name, Social Security number, test number, and the date of qualification. Additionally, it captures specifics about the welding process, base metal specifications, filler metal used, and the results of mechanical and non-destructive testing. Each section is designed to provide a comprehensive overview of the welder's qualifications.

What are the different welding processes listed on the form?

The form outlines several welding processes, including manual, semiautomatic, mechanized, and automatic welding. Each process has its own set of techniques and equipment, and the qualification record must specify which methods the welder is qualified to use.

What is the significance of the qualification range?

The qualification range indicates the limits within which the welder is certified to work. This includes factors such as plate thickness, pipe diameter, and the positions in which the welder can operate. Understanding this range is crucial for ensuring that the welder is assigned tasks that match their qualifications.

What does the non-destructive examination section entail?

This section documents the results of non-destructive testing methods, such as radiographic tests. It verifies that the welds meet quality standards without damaging the material. A pass or fail result is recorded, along with the reasons for any failures, ensuring transparency and accountability in the qualification process.

How is the form certified as accurate?

The form includes a certification statement that must be signed by a qualified individual, often a Certified Welding Inspector (CWI). This signature confirms that the information provided is accurate and that the testing was conducted according to the relevant standards. This adds a layer of credibility to the qualifications documented in the record.

What happens if a welder does not pass the qualification tests?

If a welder does not pass the qualification tests, they will not be able to obtain the certification outlined in the record. This may require the welder to undergo additional training or practice before retaking the tests. Employers may also need to consider alternative options for fulfilling welding tasks until the welder successfully qualifies.

How often should the Welder Performance Qualification Record be updated?

The record should be updated whenever a welder completes a new qualification test or if there are changes in their skills, processes, or equipment used. Regular updates ensure that the record accurately reflects the welder's current capabilities, which is vital for compliance and safety in the workplace.

Common mistakes

  1. Failing to include the Welder’s Name and ATF No. This information is crucial for identifying the individual who completed the qualification.

  2. Not specifying the Welding Process and Type. Each process has different requirements, and omitting this can lead to incorrect qualifications.

  3. Leaving out the Reference WPS No. This number links the qualification to a specific welding procedure specification, which is essential for compliance.

  4. Incorrectly filling in the Position(s). Ensure that the test and qualified positions are accurately recorded to reflect the welder's capabilities.

  5. Neglecting to document the Non-destructive Examination Results. These results are vital for confirming the quality of the welds.

  6. Failing to obtain the necessary signatures. The record must be signed by the welder and the Certified Welding Inspector (CWI) to validate the qualification.

Documents used along the form

The Welder Performance Qualification Record (WPQR) is a vital document that outlines a welder's qualifications and skills. It serves as proof that a welder has successfully completed tests that demonstrate their ability to perform welding tasks according to specific standards. In addition to the WPQR, there are several other forms and documents that are often used in conjunction with it. Each of these documents plays a crucial role in ensuring that welding practices meet industry standards and safety requirements.

  • Welding Procedure Specification (WPS): This document outlines the specific procedures and parameters that a welder must follow when performing welding tasks. It includes details such as the type of materials, welding processes, and techniques to be used. The WPS ensures consistency and quality in welding operations.
  • Certificate of Compliance (CoC): A CoC is a document that certifies that the welding work has been completed in accordance with relevant codes and standards. It is often required for regulatory compliance and provides assurance to clients and stakeholders that the work meets established quality criteria.
  • Non-Destructive Testing (NDT) Reports: These reports document the results of tests performed to evaluate the integrity of welds without causing damage. Common NDT methods include ultrasonic testing and radiographic testing. The reports provide essential information about any defects or issues that may affect the quality of the weld.
  • Inspection Reports: Inspection reports are generated by qualified inspectors who assess the quality of welding work. These reports detail the findings from visual inspections and any other evaluations performed. They help ensure that the welding meets the required specifications and standards.

These documents, along with the Welder Performance Qualification Record, create a comprehensive framework for maintaining high standards in welding practices. Together, they help ensure that welders are qualified, procedures are followed, and inspections are conducted, ultimately contributing to the safety and reliability of welded structures.

Similar forms

The Welder Performance Qualification Record (WPQR) form is an essential document in the welding industry, certifying a welder's skills and qualifications. Several other documents serve similar purposes, ensuring that personnel meet industry standards and safety requirements. Here’s a list of eight documents that share similarities with the WPQR:

  • Welding Procedure Specification (WPS): This document outlines the specific welding procedures that must be followed for a project. Like the WPQR, it ensures that welders adhere to established standards and guidelines.
  • Certificate of Compliance: This certificate confirms that a product meets specified standards. Similar to the WPQR, it provides assurance that the welding performed complies with industry regulations.
  • Welder Certification Card: This card indicates that a welder has successfully completed certification tests. It is akin to the WPQR in that it verifies a welder's qualifications and skills.
  • Inspection Reports: These reports document the results of inspections conducted on welds. They share a common purpose with the WPQR by ensuring that the welding meets quality standards.
  • Non-Destructive Testing (NDT) Reports: NDT reports detail the results of testing methods that do not damage the weld. Like the WPQR, these reports are crucial for verifying the integrity of welds.
  • Quality Control Plan: This plan outlines the procedures and processes for maintaining quality in welding operations. It is similar to the WPQR as both documents aim to uphold quality standards in welding.
  • Material Test Reports (MTR): MTRs provide details about the materials used in welding. They are comparable to the WPQR in that they ensure the materials meet the necessary specifications.
  • Welding Inspection Certificates: These certificates verify that welding has been inspected and meets required standards. Like the WPQR, they serve as a formal acknowledgment of compliance with quality requirements.

Dos and Don'ts

When filling out the Welder Performance Qualification Record form, attention to detail is essential. Here’s a list of dos and don’ts to ensure accuracy and compliance.

  • Do fill in all required fields completely.
  • Do use the correct reference WPS number.
  • Do clearly indicate the welding process and type.
  • Do provide accurate test results for mechanical and non-destructive examinations.
  • Don't leave any fields blank unless they are marked as non-essential.
  • Don't forget to include the welder's identification number and social security number.
  • Don't use abbreviations that may cause confusion.
  • Don't neglect to have the form signed by the appropriate personnel.

Following these guidelines will help ensure that the Welder Performance Qualification Record is completed correctly and meets the necessary standards.

Misconceptions

  • Misconception 1: The Welder Performance Qualification Record (WPQR) is only necessary for certification.

    Many people believe that the WPQR is solely for obtaining certification. However, it serves a broader purpose. The WPQR documents a welder's skills and qualifications, ensuring they meet industry standards. This record is crucial for employers to verify that their welders can perform tasks safely and effectively.

  • Misconception 2: The WPQR is a one-time requirement.

    Some assume that once a WPQR is completed, it remains valid indefinitely. In reality, qualifications can expire or become outdated. Factors such as changes in welding processes, materials, or industry standards may necessitate requalification. Regular updates to the WPQR help maintain compliance and skill relevance.

  • Misconception 3: Only certain welding processes require a WPQR.

    It is a common belief that only specific welding processes need a WPQR. In truth, the WPQR is essential for various welding methods, including manual, semiautomatic, and automatic processes. Regardless of the technique, documenting qualifications is vital for ensuring safety and quality across all welding practices.

  • Misconception 4: The WPQR is only for experienced welders.

    Many think that only seasoned professionals need a WPQR. However, this record is equally important for novice welders. It helps them establish a baseline of skills and competencies, providing a formal acknowledgment of their training and abilities as they enter the workforce.

  • Misconception 5: The WPQR does not require regular review or oversight.

    Some individuals believe that once a WPQR is filled out, it can be filed away without further attention. In fact, regular reviews and updates are essential to ensure accuracy and compliance with current standards. Engaging in periodic assessments keeps the record relevant and reflects any advancements in the welder's skills or changes in applicable codes.

Key takeaways

Filling out the Welder Performance Qualification Record form is a crucial step in documenting a welder's skills and qualifications. Here are key takeaways to consider:

  • Accurate Information: Ensure that all personal details, such as the welder’s name and ATF number, are filled out accurately.
  • Test Details: Clearly indicate the test number and reference WPS number to avoid confusion.
  • Qualification Range: Specify the code or specification used, as well as the welding processes and types involved.
  • Mechanical Test Results: Document all mechanical testing results thoroughly, including the type and figure numbers.
  • Non-Destructive Examination: Record the results of any non-destructive examinations, including radiographic results and visual inspections.
  • Witness Signatures: Obtain signatures from witnesses to validate the testing process and results.
  • Certification: The record must be certified by the responsible individual, ensuring that all statements are accurate.
  • Review Requirements: Familiarize yourself with the requirements of relevant codes, such as AWS D1.1 or AWS B2.1.
  • Keep Copies: Retain copies of the completed form for future reference and compliance verification.

Following these guidelines will help ensure that the Welder Performance Qualification Record form is completed correctly and serves its intended purpose effectively.