Homepage Blank Washington Real Estate Excise Tax Affidavit PDF Form
Content Overview

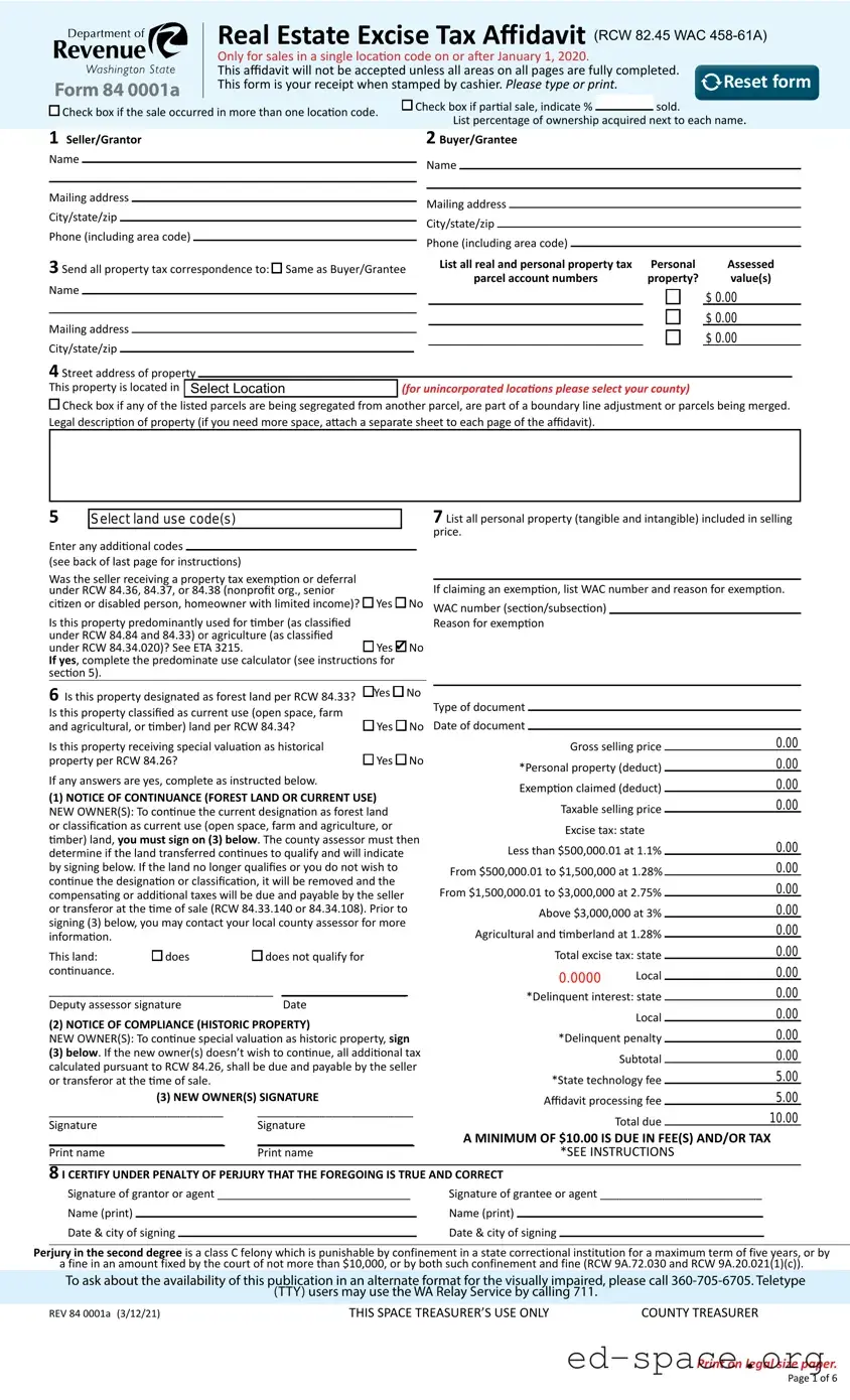
The Washington Real Estate Excise Tax Affidavit form plays a crucial role in real estate transactions within the state. When a property is sold, this form is required to report the sale and ensure that the appropriate excise tax is collected. Buyers and sellers alike must complete this affidavit, which captures essential information about the transaction, including the sale price and the parties involved. Additionally, the form provides a space to indicate any exemptions that may apply, which can significantly affect the tax amount due. Accurate completion of the affidavit is vital, as it helps maintain transparency in property sales and ensures compliance with state tax regulations. By understanding the key components of this form, individuals can navigate the complexities of real estate transactions more effectively, paving the way for smoother closings and fewer legal complications.

Document Preview

 

 

 

 

 

 

 

 

Real Estate Excise Tax Affidavit (RCW 82.45 WAC 458-61A)

 

 

 

 

 

 

 

 

 

 

 

 

 

 

 

 

Only for sales in a single location code on or after January 1, 2020.

 

 

 

 

 

 

 

 

 

 

 

 

 

 

 

This affidavit will not be accepted unless all areas on all pages are fully completed.

 

 

 

 

 

 

 

 

 

 

 

 

 

 

Reset form

 

 

Form 84 0001a

This form is your receipt when stamped by cashier. Please type or print.

 

 

 

 

 

 

 

 

Check box if partial sale, indicate %

 

 

sold.

 

 

 

 

 

 

Check box if the sale occurred in more than one location code.

 

 

 

 

 

 

 

 

 

 

 

List percentage of ownership acquired next to each name.

 

 

 

 

 

 

 

 

 

 

 

 

 

 

 

1 Seller/Grantor

 

 

 

 

 

2 Buyer/Grantee

 

 

 

 

 

 

 

 

Name

 

 

 

 

 

 

 

 

 

 

 

Name

 

 

 

 

 

 

 

 

 

 

 

 

 

 

 

 

 

 

 

 

 

 

 

 

 

 

 

 

 

 

 

 

 

 

 

 

 

 

 

 

 

 

 

 

 

 

 

 

 

 

 

 

 

 

 

 

 

 

 

 

 

 

 

 

 

 

 

 

 

 

 

 

 

 

 

 

 

 

 

 

 

 

 

 

 

 

Mailing address

 

 

 

 

 

 

 

 

 

 

 

 

 

 

 

 

 

 

 

 

 

 

 

 

 

 

 

 

 

 

 

 

 

Mailing address

 

 

 

 

 

 

 

 

 

 

 

 

 

 

 

 

 

 

 

 

 

 

 

 

 

 

 

 

 

 

 

City/state/zip

 

 

 

 

 

 

 

 

 

 

 

 

 

 

 

 

 

 

 

 

 

 

 

 

 

 

 

 

 

City/state/zip

 

 

 

 

 

 

 

 

 

 

 

 

 

 

 

 

 

 

 

 

 

 

 

 

 

 

 

 

 

 

 

 

 

Phone (including area code)

 

 

 

 

 

 

 

 

 

 

 

 

 

 

 

 

 

 

 

 

 

 

 

 

Phone (including area code)

 

 

 

 

 

 

 

 

 

 

 

 

 

 

 

 

 

 

 

 

 

 

 

 

 

 

 

3 Send all property tax correspondence to:

 

 

 

 

 

 

 

 

 

 

 

 

 

Same as Buyer/Grantee

 

 

 

List all real and personal property tax

Personal

Assessed

 

Name

 

 

 

 

 

 

 

 

 

 

 

 

 

parcel account numbers

property?

value(s)

 

 

 

 

 

 

 

 

 

 

 

 

 

 

 

 

 

 

 

$ 0.00

 

 

 

 

 

 

 

 

 

 

 

 

 

 

 

 

 

 

 

 

 

 

 

 

 

 

 

 

 

 

 

 

 

 

 

 

 

 

 

 

 

 

 

 

 

 

 

 

 

 

 

 

 

 

 

 

 

 

 

 

 

 

 

 

 

 

 

 

 

 

 

 

 

 

$ 0.00

 

 

 

 

Mailing address

 

 

 

 

 

 

 

 

 

 

 

 

 

 

 

 

 

 

 

 

 

 

 

 

 

 

 

 

 

 

 

 

 

 

 

 

 

 

 

 

 

$ 0.00

 

 

 

 

 

 

 

 

 

 

 

 

 

 

 

 

 

 

 

 

 

 

 

 

 

 

City/state/zip

 

 

 

 

 

 

 

 

 

 

 

 

 

 

 

 

 

 

 

 

 

 

 

 

 

 

 

 

 

 

 

 

 

 

 

 

 

 

 

 

 

 

 

 

 

 

 

 

 

 

 

 

 

 

 

 

 

 

 

 

 

 

 

 

 

 

 

 

 

 

 

 

Street address of property

 

 

 

 

 

 

 

 

 

 

 

 

 

 

 

 

 

 

 

 

 

 

 

 

 

 

 

 

 

 

 

 

 

 

 

 

 

 

 

 

 

 

This property is located in

Select Location

 

(for unincorporated locations please select your county)

 

 

 

 

Check box if any of the listed parcels are being segregated from another parcel, are part of a boundary line adjustment or parcels being merged. Legal description of property (if you need more space, attach a separate sheet to each page of the affidavit).

5

 

Select land use code(s)

Enter any additional codes

(see back of last page for instructions)

Was the seller receiving a property tax exemption or deferral under RCW 84.36, 84.37, or 84.38 (nonprofit org., senior

citizen or disabled person, homeowner with limited income)? Yes No

Is this property predominantly used for timber (as classified under RCW 84.84 and 84.33) or agriculture (as classified

under RCW 84.34.020)? See ETA 3215.Yes No If yes, complete the predominate use calculator (see instructions for section 5).

7 List all personal property (tangible and intangible) included in selling price.

If claiming an exemption, list WAC number and reason for exemption.

WAC number (section/subsection) Reason for exemption

6 Is this property designated as forest land per RCW 84.33?

Yes

No

 

 

 

 

 

 

 

 

 

 

Type of document

 

 

 

 

 

Is this property classified as current use (open space, farm

 

 

 

 

 

 

 

 

 

 

 

 

 

 

 

 

 

 

 

 

 

 

Date of document

 

 

 

 

 

 

and agricultural, or timber) land per RCW 84.34?

Yes

No

 

 

 

 

 

 

 

 

Gross selling price

 

0.00

Is this property receiving special valuation as historical

 

 

 

 

 

 

 

 

 

property per RCW 84.26?

 

Yes

No

 

 

*Personal property (deduct)

 

0.00

If any answers are yes, complete as instructed below.

 

 

 

 

 

0.00

 

 

 

 

 

Exemption claimed (deduct)

 

(1) NOTICE OF CONTINUANCE (FOREST LAND OR CURRENT USE)

 

 

 

 

0.00

 

 

 

 

 

 

 

Taxable selling price

 

NEW OWNER(S): To continue the current designation as forest land

 

 

 

 

 

 

 

 

 

 

 

 

 

 

 

 

 

or classification as current use (open space, farm and agriculture, or

 

 

 

 

 

 

 

Excise tax: state

 

timber) land, you must sign on (3) below. The county assessor must then

 

 

 

 

 

0.00

 

Less than $500,000.01 at 1.1%

 

determine if the land transferred continues to qualify and will indicate

 

 

 

 

 

 

 

 

0.00

by signing below. If the land no longer qualifies or you do not wish to

 

 

 

From $500,000.01 to $1,500,000 at 1.28%

 

continue the designation or classification, it will be removed and the

 

 

 

 

0.00

 

 

 

From $1,500,000.01 to $3,000,000 at 2.75%

 

compensating or additional taxes will be due and payable by the seller

 

 

 

 

 

 

 

 

0.00

or transferor at the time of sale (RCW 84.33.140 or 84.34.108). Prior to

 

 

 

 

Above $3,000,000 at 3%

 

signing (3) below, you may contact your local county assessor for more

 

 

 

 

 

 

 

0.00

 

 

 

Agricultural and timberland at 1.28%

 

information.

 

 

 

 

 

 

 

 

 

 

 

 

 

 

 

 

0.00

This land:

does

does not qualify for

 

 

 

 

 

 

 

Total excise tax: state

 

 

 

 

 

 

 

 

 

 

continuance.

 

 

 

 

 

 

0.0000

Local

 

0.00

____________________________________ ____________________

 

 

 

0.00

 

 

 

 

*Delinquent interest: state

Deputy assessor signature

Date

 

 

 

 

 

 

 

 

 

Local

 

0.00

(2) NOTICE OF COMPLIANCE (HISTORIC PROPERTY)

 

 

 

 

 

 

 

 

 

 

 

 

 

 

 

 

 

 

 

 

0.00

 

 

 

 

 

 

 

*Delinquent penalty

 

NEW OWNER(S): To continue special valuation as historic property, sign

 

 

 

 

 

(3) below. If the new owner(s) doesn’t wish to continue, all additional tax

 

 

 

 

 

 

Subtotal

 

0.00

calculated pursuant to RCW 84.26, shall be due and payable by the seller

 

 

 

 

 

 

 

5.00

 

 

 

 

*State technology fee

 

or transferor at the time of sale.

 

 

 

 

 

 

 

 

 

 

 

 

 

 

 

 

 

 

5.00

 

(3) NEW OWNER(S) SIGNATURE

 

 

 

 

 

 

 

Affidavit processing fee

 

____________________________

_________________________

 

 

 

 

 

 

 

Total due

 

10.00

Signature

 

 

Signature

 

 

 

 

 

 

 

 

 

 

 

 

 

 

 

 

 

 

 

 

 

 

 

____________________________

_________________________

 

 

A MINIMUM OF $10.00 IS DUE IN FEE(S) AND/OR TAX

Print name

 

 

Print name

 

 

 

 

 

 

 

 

*SEE INSTRUCTIONS

 

8 I CERTIFY UNDER PENALTY OF PERJURY THAT THE FOREGOING IS TRUE AND CORRECT

 

 

 

Signature of grantor or agent _______________________________

 

Signature of grantee or agent __________________________

 

Name (print)

 

 

 

 

 

 

 

Name (print)

 

 

 

 

 

 

 

 

 

 

 

 

 

 

 

 

 

Date & city of signing

 

 

 

 

 

 

Date & city of signing

 

 

 

 

 

 

 

 

 

 

 

 

 

 

Perjury in the second degree is a class C felony which is punishable by confinement in a state correctional institution for a maximum term of five years, or by

a fine in an amount fixed by the court of not more than $10,000, or by both such confinement and fine (RCW 9A.72.030 and RCW 9A.20.021(1)(c)).

To ask about the availability of this publication in an alternate format for the visually impaired, please call 360-705-6705. Teletype

 

(TTY) users may use the WA Relay Service by calling 711.

 

84 0001a (3/12/21)

THIS SPACE TREASURER’S USE ONLY

COUNTY TREASURER

Print on legal size paper.

Page 1 of 6

Form Specifications

Fact Name Details
Purpose The Washington Real Estate Excise Tax Affidavit form is used to report the sale of real property and calculate the excise tax owed.
Governing Law The form is governed by Washington State law, specifically RCW 82.45.
Filing Requirement All sellers of real estate in Washington must file this affidavit when a property is sold.
Tax Rate The excise tax rate varies based on the sale price of the property, typically ranging from 1.1% to 3%.
Deadline The affidavit must be filed within five days of the sale closing date.
Who Files Typically, the seller or their agent files the form, but it can also be submitted by the buyer.
Exemptions Certain transactions, such as transfers between family members, may be exempt from the excise tax.
Form Availability The form is available online through the Washington State Department of Revenue's website.
Signature Requirement The form must be signed by the seller or an authorized representative to be valid.
Record Keeping It is advisable for sellers to keep a copy of the filed affidavit for their records, as it may be needed for future tax purposes.

Washington Real Estate Excise Tax Affidavit: Usage Guidelines

Completing the Washington Real Estate Excise Tax Affidavit form is an important step in the real estate transaction process. Once you have filled out the form, you will be ready to submit it to the appropriate authorities along with any required documentation.

  1. Begin by downloading the Washington Real Estate Excise Tax Affidavit form from the official state website or obtain a physical copy from your local county office.
  2. Fill in the top section with the property address. Include the full street address, city, and zip code.
  3. Provide the names and addresses of the buyer(s) and seller(s). Make sure to include all necessary contact information.
  4. Indicate the date of the transaction. This is typically the date the sale is finalized.
  5. In the designated section, specify the sale price of the property. This should reflect the agreed-upon amount between the buyer and seller.
  6. Complete the section regarding the type of transaction. Select the appropriate option that describes the nature of the sale (e.g., sale, transfer, or exchange).
  7. If applicable, indicate any exemptions that may apply to the transaction. This could include specific circumstances that qualify for tax relief.
  8. Sign and date the affidavit. Ensure that all parties involved in the transaction have also signed where required.
  9. Review the completed form for accuracy. Double-check all entries to avoid any errors that could delay the process.
  10. Submit the form along with any required documentation to the county treasurer or the appropriate office as instructed.

Your Questions, Answered

What is the Washington Real Estate Excise Tax Affidavit form?

The Washington Real Estate Excise Tax Affidavit is a form required when transferring real estate in Washington State. This form helps report the sale and ensures that the appropriate excise tax is calculated and paid. It is an essential document for both buyers and sellers involved in real estate transactions.

Who is responsible for filing the affidavit?

The seller of the property is typically responsible for filing the Washington Real Estate Excise Tax Affidavit. However, in some cases, the buyer may also file it, especially if agreed upon in the purchase contract. It’s important for both parties to understand their responsibilities to avoid any delays in the transaction.

When must the affidavit be filed?

The affidavit must be filed at the time of closing the real estate transaction. This means it should be submitted to the county auditor’s office when the deed is recorded. Timely filing is crucial to ensure that the excise tax is properly assessed and paid.

What information is required on the affidavit?

The affidavit requires various details, including the names of the buyer and seller, the legal description of the property, the sale price, and any exemptions that may apply. Accurate information is vital to prevent issues with tax assessment and compliance.

Are there any exemptions from the excise tax?

Yes, certain transactions may qualify for exemptions from the excise tax. For example, transfers between family members or certain government transactions might be exempt. It is important to review the specific criteria for exemptions and ensure that the affidavit reflects any applicable exemptions.

What happens if the affidavit is not filed?

If the affidavit is not filed, the county may impose penalties, and the excise tax may still be assessed. This can lead to complications for both the buyer and seller, including potential legal issues and additional costs. Filing the affidavit promptly helps avoid these problems.

Where can I obtain the affidavit form?

The Washington Real Estate Excise Tax Affidavit form can be obtained from the Washington State Department of Revenue's website or directly from your local county auditor's office. It is advisable to use the most current version of the form to ensure compliance with state regulations.

Common mistakes

  1. Inaccurate Property Description: Many people fail to provide a complete and accurate description of the property being sold. This includes not only the address but also the parcel number. Missing or incorrect details can lead to delays or complications in processing the affidavit.

  2. Omitting Seller and Buyer Information: Some individuals neglect to include all necessary information about both the seller and the buyer. This includes full names, addresses, and contact details. Incomplete information can result in confusion and may require additional follow-up.

  3. Incorrect Tax Calculation: Calculating the excise tax incorrectly is a common mistake. People often misinterpret the tax rates or fail to account for exemptions. This error can lead to underpayment or overpayment, both of which can create issues down the line.

  4. Failure to Sign the Affidavit: It's surprising how often individuals forget to sign the affidavit. A missing signature can render the document invalid, causing delays in the transaction. Always double-check to ensure that all required signatures are present before submission.

Documents used along the form

The Washington Real Estate Excise Tax Affidavit is an important document used during real estate transactions in Washington State. Along with this affidavit, several other forms and documents are commonly required to ensure a smooth transfer of property ownership. Here’s a brief overview of four key documents often used alongside the affidavit.

  • Property Transfer Declaration (PTD): This form provides the county assessor with information about the property being sold, including its value and any improvements made. It helps in determining the property tax assessment.
  • Purchase and Sale Agreement: This contract outlines the terms of the real estate transaction between the buyer and seller. It includes details such as the purchase price, contingencies, and the closing date.
  • Title Insurance Policy: This document protects the buyer and lender from any potential disputes over property ownership. It ensures that the title is clear and that there are no hidden claims against the property.
  • Closing Statement: Also known as a HUD-1 or settlement statement, this document summarizes all financial transactions related to the sale. It details the costs and fees associated with the closing process, ensuring transparency for both parties.

Each of these documents plays a crucial role in the real estate transaction process. Being familiar with them can help buyers and sellers navigate their responsibilities and rights more effectively.

Similar forms

  • Property Transfer Declarations: Similar to the Excise Tax Affidavit, these documents declare the transfer of property ownership and may be required by local jurisdictions for tax assessment purposes.
  • Quitclaim Deeds: This document transfers interest in real property without any warranties. It is often used in conjunction with the Excise Tax Affidavit when ownership changes occur.
  • Warranty Deeds: Unlike quitclaim deeds, warranty deeds provide guarantees about the title. They may accompany the Excise Tax Affidavit to confirm the seller's ownership and rights to the property.
  • Title Insurance Policies: These documents protect buyers from title defects. They often reference the Excise Tax Affidavit as part of the due diligence process during a real estate transaction.
  • Closing Statements: Also known as HUD-1 forms, these documents summarize the financial aspects of a real estate transaction. They typically include details that align with the information provided in the Excise Tax Affidavit.
  • Sales Contracts: These agreements outline the terms of the property sale. The Excise Tax Affidavit may be referenced within the contract to ensure tax obligations are met.
  • Property Tax Statements: These documents reflect the taxes owed on a property. They are related to the Excise Tax Affidavit as they help determine the tax implications of a property transfer.

Dos and Don'ts

When filling out the Washington Real Estate Excise Tax Affidavit form, it’s important to get it right. Here’s a helpful list of things to do and avoid.

  • Do double-check all information for accuracy.
  • Do ensure that all required fields are completed.
  • Do keep a copy of the form for your records.
  • Do submit the form by the deadline to avoid penalties.
  • Don't leave any sections blank, even if they seem unimportant.
  • Don't use abbreviations or shorthand that might confuse the reader.

Following these guidelines will help ensure a smooth process when dealing with your real estate transactions.

Misconceptions

The Washington Real Estate Excise Tax Affidavit form can be confusing. Here are ten common misconceptions about this form:

  1. Everyone must file the affidavit.

    Not every real estate transaction requires this form. It is typically needed for sales or transfers of real property, but there are exceptions.

  2. The form is only for buyers.

    Both buyers and sellers may need to complete the affidavit. It serves to report the sale and determine tax obligations.

  3. Filing the form is optional.

    Filing the affidavit is mandatory for most real estate transactions. Failing to file can lead to penalties.

  4. The tax rate is the same for all transactions.

    The excise tax rate can vary based on the sale price and location of the property. It’s important to check the current rates.

  5. Only residential properties require the affidavit.

    Commercial properties also require this form when they are sold or transferred.

  6. The form can be filed anytime after the sale.

    The affidavit must be filed at the time of closing or within a specific timeframe after the transaction.

  7. Once filed, the information cannot be changed.

    If there are errors, you can amend the affidavit. It’s crucial to ensure all information is accurate.

  8. Only licensed real estate agents can complete the form.

    While agents can assist, anyone involved in the transaction can fill out the affidavit.

  9. The affidavit is the same for every county.

    Different counties may have their own specific requirements or forms. Always check local regulations.

  10. Paying the tax is the only purpose of the affidavit.

    The affidavit also provides important information about the property transfer, not just tax calculations.

Key takeaways

When dealing with the Washington Real Estate Excise Tax Affidavit form, there are several important points to keep in mind. Below are key takeaways that can help ensure a smooth process.

  1. Understand the Purpose: The affidavit is used to report the sale of real property and calculate the excise tax owed to the state.
  2. Complete All Required Sections: Ensure that every section of the form is filled out accurately to avoid delays or penalties.
  3. Provide Accurate Property Information: Include the correct legal description and address of the property being sold.
  4. Identify the Seller and Buyer: Clearly state the names and contact information of both parties involved in the transaction.
  5. Calculate the Tax: The form includes instructions for calculating the excise tax based on the selling price of the property.
  6. Sign and Date the Affidavit: Both the seller and buyer must sign and date the form to validate the transaction.
  7. Submit in a Timely Manner: File the affidavit with the appropriate county office promptly after the sale to avoid any penalties.
  8. Keep Copies: Retain copies of the completed affidavit for your records, as it may be needed for future reference.
  9. Consult a Professional if Necessary: If you have questions or uncertainties about the form, consider seeking assistance from a real estate professional or legal consultant.
  10. Stay Informed on Changes: Tax laws and regulations can change, so stay updated on any modifications to the excise tax rules that may affect your transaction.

By following these guidelines, individuals can navigate the Washington Real Estate Excise Tax Affidavit form with greater confidence and clarity.