
Reference: Statewide Rule 15 and 78
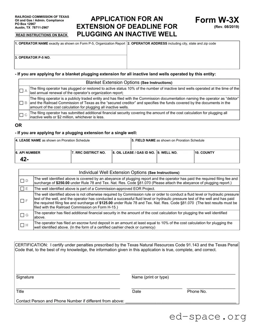
Instructions:
File Form W-3X as required by Oil & Gas Statewide Rule 15 (16 Tex. Admin. Code §3.15) to apply for an extension to the
deadline to plug an inactive well. All items on this form should be typed or clearly printed in blue or black ink.
Blanket Application for Extensions:
If you are filing Form W-3X to request blanket plugging extensions for all wells that you operate:
1) Complete items 1 through 3;
2) Indicate the applicable blanket extension option;
3) Attach any necessary supporting documentation (see below); and
4) Sign and date the Form W-3X.
Under Statewide Rule 15(f)(2)(B), blanket plugging extensions require that you file with the Commission one of the following:
1) for all inactive land wells that an operator has operated for more than 12 months, documentation that the operator has plugged or
restored to active operation, as defined by Commission rule, 10% of the number of inactive land wells operated at the time of the last
annual renewal of the operator's Organization Report (Form P-5);
2) if the operator is a publicly traded entity, for all inactive land wells, the operator has filed with the Commission a copy of the operator's
federal documents filed to comply with Financial Accounting Standards Board Statement No. 143, Accounting for Asset Retirement
Obligations, and an original executed Uniform Commercial Code Form 1 Financing Statement, filed with the Secretary of State, that
names the operator as the "debtor" and the Railroad Commission of Texas as the "secured creditor" and specifies the funds covered
by the documents in the amount of the cost calculation for plugging all inactive wells; or
3) the filing of a blanket bond on Commission Form P-5PB(2), Blanket Performance Bond, a letter of credit on Commission Form P-5LC,
Irrevocable Documentary Blanket Letter of Credit, or a cash deposit, in the amount of either the lesser of the cost calculation for
plugging all inactive wells or $2 million.
Individual Well Application for Extension:
If you are filing Form W-3X to request a plugging extension for a single well that you operate:
1) Complete items 1 through 10;
2) Indicate the applicable individual well extension option;
3) Attach any necessary supporting documentation (see below); and
4) Sign and date the Form W-3X
Under Statewide Rule 15(f)(2)(B), individual well plugging extensions require that you document one of the following:
1) For each inactive land well identified in the application, the operator has paid the required filling fee and surcharge, and the
Commission or its delegate has approved an abeyance of plugging report which includes the following certification under the seal of
the certifying professional engineer or professional geoscientist: “I hereby certify, that I am a currently licensed professional engineer
or professional geoscientist and based on my personal knowledge of the inactive well identified in this report, the well has a future
utility based on both 1) a reasonable expectation of economic value in excess of the cost of plugging the well during the period
covered by this report; and 2) a reasonable expectation that the well will ultimately be restored to a beneficial use that will prevent
waste of oil or gas resources that otherwise would not be produced if the well is plugged. I further certify that I have reviewed the
documentation demonstrating the basis for the affirmation of the well’s future utility attached to this application. An abeyance of
plugging report filed under Tex. Nat. Res. Code §89.023(a)(3)(B) is valid for a period of not more than five years.”
2) for each inactive land well identified in the application, the operator has filed a statement that the well is part of a Commission-
approved EOR project;
3) for each inactive land well identified in the application that is not otherwise required by Commission rule or order to conduct a fluid
level or hydraulic pressure test of the well, the operator has conducted a successful fluid level test or hydraulic pressure test of the
well and the operator has paid the required filing fee and surcharge;
4) for each inactive land well identified in the application, the Commission or its delegate has approved a supplemental bond, letter of
credit, or cash deposit in an amount at least equal to the cost calculation for plugging an inactive land well for each well specified in
the application; or
5) for each time an operator files an application for a plugging extension and for each inactive land well identified in the application, the
Commission or its delegate has approved an escrow fund deposit in an amount at least equal to 10% of the total cost calculation for
plugging an inactive land well.
Cost Calculation for Plugging an Inactive Well:
The cost calculation pursuant to Statewide Rule 15 is the cost, calculated by the Commission or its delegate, for each foot of well depth
plugged based on average actual plugging costs for wells plugged by the Commission for the preceding state fiscal year for the Commission Oil
and Gas Division district in which the inactive well is located.