
PWD 1238 – A0900 (06/10)
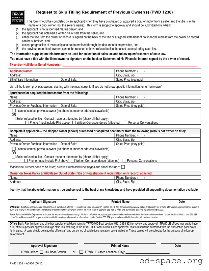
Request to Skip Titling Requirement of Previous Owner(s) (PWD 1238)
This form should be completed by an applicant when they have purchased or acquired a boat or motor from a seller and the title is in the
name of a prior owner (not the seller’s name). This form is subject to approval and should be submitted only when:
(1) the applicant is not a licensed marine dealer, and
(2) the applicant has obtained a written bill of sale from the seller, and
(3) either the title from the owner on record is signed on the back of the title or a signed statement of no financial interest from the owner on record
can be submitted, and
(4) a clear progression of ownership can be determined through the documentation provided, and
(5) the previous (non-titled) owners cannot be reached or have refused to title the asset as required by state law.
The information supplied on this form may be used for collection of sales tax and follow-up enforcement of state law.
You must have a title with the listed owner’s signature on the back or Statement of No Financial Interest signed by the owner of record.
TX and/or Hull/Motor Serial Number(s): _______________________________________________________________________________________
Applicant Name:
Phone Number: ( )
Address: City, State, Zip:
Bill of Sale Information Date of Sale: Sales Price (you paid):
List all the known previous owners, starting with the most current. If you do not know specific information, enter “unknown”.
I purchased or acquired the boat/motor from the following:
Name: Phone Number: ( )
Address: City, State, Zip:
Previous Owner Purchase Information Date of Sale: Sales Price (they paid):
I cannot contact previous owner (no phone number or address is available)
OR
Seller refused to title - Contact made or attempted by (check all that apply):
Phone (must include Ph# above) Written Correspondence (attached) Personal Conversations
Complete if applicable – the skipped owner (above) purchased or acquired boat/motor from the following (who is not owner on title):
Name: Phone Number: ( )
Address: City, State, Zip:
Previous Owner Purchase Information Date of Sale: Sales Price (they paid):
I cannot contact previous owner (no phone number or address is available)
OR
Seller refused to title - Contact made or attempted by (check all that apply):
Phone (must include Ph# above) Written Correspondence (attached) Personal Conversations
If additional owners need to be listed, please attach additional pages and check this box:
Owner on Texas Parks & Wildlife (or Out of State) Title or Registration (if registration only record) attached:
Name: Phone Number: ( )
Address: City, State, Zip:
I certify that the above information is true and correct to the best of my knowledge and have provided all supporting documentation available.
Applicant Signature Printed Name Date
WARNING: Falsifying information on documents is a punishable offence – Texas Penal Code Chapter 37, Section 37.10. Any person who knowingly makes a false entry in, or false alteration of a governmental record is
guilty of a felony of the third degree, punishable by confinement in jail for any term of not more than 10 years or less than 2 years and punishable by a fine not to exceed $10,000.
Texas Parks and Wildlife Department maintains the information collected through this form. With few exceptions, you are entitled to be informed about the information we collect. Under Sections 552.021 and 552.023
of the Texas Government Code, you are also entitled to receive and review the information. Under Section 559.004, you are also entitled to have this information corrected.
Office Staff: Fax this form and all other supplemental documents to TPWD HQ-Boat section (512) 389-8323 for review and approval. TPWD LE offices may opt to have
a LE office supervisor approve and sign off in lieu of faxing to the TPWD HQ-Boat Section. Once approved, this form must be submitted with the transaction paperwork
for imaging. A copy should be made by office staff and put on top of batch documentation being mailed in. These copies will be collected for the purpose of follow-up
enforcement.
Approval Signature Printed Name Date
TPWD Office: HQ-Boat Section or TPWD LE Office Location (City): ____________________________