
Form No: CE-1020 rev 01/01/2015 (832) 394-8870 Public Works & Engineering Page 2 of 2
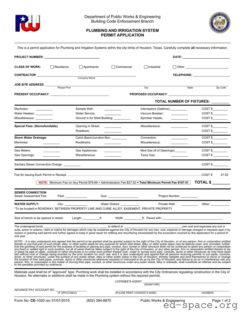
MINIMUM FEES:
(a) Following is a schedule of fees required for permits issued under Sec. 117 of the Building
........................................................................................................................................................................................................................... $ 27.52
Minimum Fee (Any Permit) ................................................................................................................................................................................ $ 79.99
Re-Inspection Fee .............................................................................................................................................................................................. $ 77.06
FIXTURES:
Plumbing Fixture, first three ............................................................................................................................................................................... $ 28.07
Each Additional to be installed under same permit ........................................................................................................................................ $ 9.35
Ground in plumbing for Shell Building, 3000 sq.ft. floor area or less ................................................................................................................. $ 38.53
Thereafter, per 1000 sq. ft. ................................................................................................................................................................................ $ 17.61
GAS PERMIT:
Gas Permit and Inspection Fee (1 to 4 openings) ............................................................................................................................................. $ 37.33
Additional Gas Openings (each) .................................................................................................................................................................... $ 6.40
Temporary Gas Inspection ................................................................................................................................................................................. $ 74.65
MEDICAL GAS PERMIT:
First 10 openings ...............................................................................................................................................................................................
$ 33.01
Each Gas Opening ............................................................................................................................................................................................. $ 5.50
CENTRAL HEATING
GAS APPLIANCES:
Furnace (non duct type) ..................................................................................................................................................................................... $ 28.07
Each additional furnace to be installed in same building under the same permit .......................................................................................... $ 9.35
Floor Furnace (not duct type) ............................................................................................................................................................................. $ 38.53
Incinerators (gas fired) (complete with 3 burners or more) ................................................................................................................................ $ 66.05
Infra-red Heaters (first two) ................................................................................................................................................................................ $ 28.07
Each additional infra-red heater to be installed under same permit .............................................................................................................. $ 9.35
Yard lights or barbecue grills
One (1) ........................................................................................................................................................................................................... $ 28.07
Each additional to be installed under same permit ........................................................................................................................................ $ 9.35
PERMANENT
APPLIANCES
Wall Heaters (bathroom heaters exempt) .......................................................................................................................................................... $ 28.07
Each additional to be installed under same permit ........................................................................................................................................ $ 9.35
Gas Steam Radiators ......................................................................................................................................................................................... $ 38.53
Each additional to be installed under same permit ........................................................................................................................................ $ 9.35
Commercial Ovens ............................................................................................................................................................................................ $ 44.03
Commercial Dryers ............................................................................................................................................................................................ $ 38.53
Warm Air Circulators, first three ......................................................................................................................................................................... $ 38.53
Each additional to be installed under same permit ....................................................................................................................................... $ 9.35
SANITARY SEWER
Sewer Connection ............................................................................................................................................................................................. $ 44.03
MISCELLANEOUS
Investigation Fee ............................................................................................................................................................................................... $273.36 or
double fee whichever is greater
Inspections outside regular working hours
Minimum four (4) hours .................................................................................................................................................................................. $ 264.22
Each hour exceeding four (4) hours............................................................................................................................................................... $ 68.80
DISCONNECT
Sanitary Sewer (disconnect and plug main sewer connection) ......................................................................................................................... $ 77.06
Septic System (disconnect and fill septic tank, grease trap) ............................................................................................................................. $ 77.06
STORM SEWER
Tie to curb inlet-storm sewer .............................................................................................................................................................................. $ 71.55
Manholes ........................................................................................................................................................................................................... $ 71.55
Catch basin, outside area drain or junction box (first two) ................................................................................................................................ $ 28.07
Each additional to be installed under same permit ........................................................................................................................................ $ 9.35
Roof drain or outside downspout connection to drainage system (first two) ..................................................................................................... $ 28.07
Each additional roof drain or downspout to be installed under same permit ................................................................................................. $ 9.35
TANKS
Tanks (not septic tanks) a permit separate from a permit for other plumbing work required
Tanks through 1,000 gallon capacity (including mechanical interceptors) ........................................................................................................ $ 77.06
1,001 thru 6,000 gallons ................................................................................................................................................................................ $ 93.57
6,001 thru 15,000 gallons .............................................................................................................................................................................. $ 115.60
15,001 thru 30,000 gallons ............................................................................................................................................................................ $ 165.13
Over 30,000 gallons ....................................................................................................................................................................................... $ 187.16
IRRIGATION SYSTEM
1 to 200 heads, per head ................................................................................................................................................................................... $ 1.60
Each additional head ..................................................................................................................................................................................... $ 1.07