
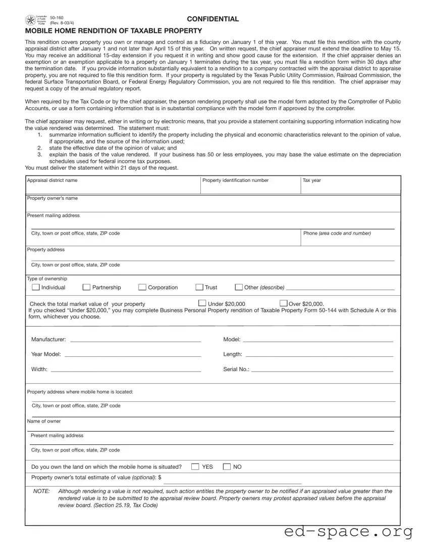
CONFIDENTIAL
MOBILE HOME RENDITION OF TAXABLE PROPERTY
Type of ownership
City, town or post office, state, ZIP code
Property address
City, town or post office, state, ZIP code Phone (area code and number)
Appraisal district name Property identification number Tax year
Present mailing address
Property owner’s name
Individual Partnership Corporation Trust Other (describe) _______________________________________
NOTE: Although rendering a value is not required, such action entitles the property owner to be notified if an appraised value greater than the
rendered value is to be submitted to the appraisal review board. Property owners may protest appraised values before the appraisal
review board. (Section 25.19, Tax Code)
50-160
(Rev. 8-03/4)
Property owner’s total estimate of value (optional): $
Do you own the land on which the mobile home is situated? YES NO
Property address where mobile home is located:
Manufacturer: _______________________________________________ Model: ______________________________________________________
Year Model: _________________________________________________ Length: _____________________________________________________
Width: ______________________________________________________ Serial No.: ___________________________________________________
City, town or post office, state, ZIP code
Present mailing address
Name of owner
This rendition covers property you own or manage and control as a fiduciary on January 1 of this year. You must file this rendition with the county
appraisal district after January 1 and not later than April 15 of this year. On written request, the chief appraiser must extend the deadline to May 15.
You may receive an additional 15-day extension if you request it in writing and show good cause for the extension. If the chief appraiser denies an
exemption or an exemption applicable to a property on January 1 terminates during the tax year, you must file a rendition form within 30 days after
the termination date. If you provide information substantially equivalent to a rendition to a company contracted with the appraisal district to appraise
property, you are not required to file this rendition form. If your property is regulated by the Texas Public Utility Commission, Railroad Commission, the
federal Surface Transportation Board, or Federal Energy Regulatory Commission, you are not required to file this rendition. The chief appraiser may
request a copy of the annual regulatory report.
When required by the Tax Code or by the chief appraiser, the person rendering property shall use the model form adopted by the Comptroller of Public
Accounts, or use a form containing information that is in substantial compliance with the model form if approved by the comptroller.
The chief appraiser may request, either in writing or by electronic means, that you provide a statement containing supporting information indicating how
the value rendered was determined. The statement must:
1. summarize information sufficient to identify the property including the physical and economic characteristics relevant to the opinion of value,
if appropriate, and the source of the information used;
2. state the effective date of the opinion of value; and
3. explain the basis of the value rendered. If your business has 50 or less employees, you may base the value estimate on the depreciation
schedules used for federal income tax purposes.
You must deliver the statement within 21 days of the request.
City, town or post office, state, ZIP code
Check the total market value of your property Under $20,000 Over $20,000.
If you checked “Under $20,000,” you may complete Business Personal Property rendition of Taxable Property Form 50-144 with Schedule A or this
form, whichever you choose.