
Page 2/09-
• Name of Engineer — Provide the full name of the engineer whose seal is affixed to the drawings.
• Texas Registration Number — Provide the engineer’s Texas registration number with the Texas Board of
Professional Engineers.
• Project Manager — Provide the full name of the engineering project manager in charge of the project.
• Title — Provide the engineering project manager’s title.
• Internet Address — Provide the Internet address or email address of the engineer in charge of the project.
• Fax Number — Provide the engineer’s fax number, including area code.
• Mailing Address — Provide the mailing address, including city, state and ZIP code, of the engineer in charge of
the project.
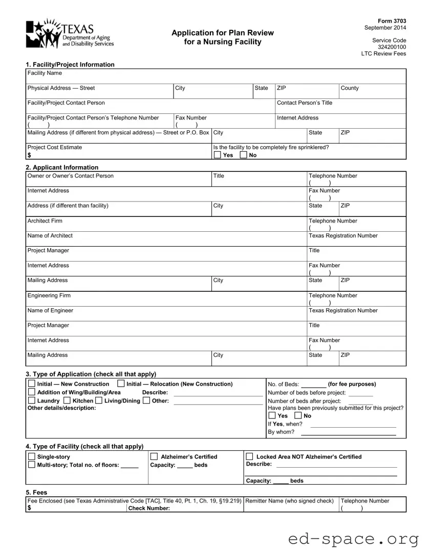
Type of Application
• Check the appropriate boxes for the type of application being submitted.
• “Initial” means new facility or the conversion of an existing building into a licensed facility.
• “Initial — Relocation” means relocating an existing licensed facility.
• “Addition of Wing/Building/Area” means making an addition to a licensed facility.
• Provide a one-sentence description of the addition.
• “Laundry” means construction of a new laundry or renovation of or addition to an existing laundry in a
licensed facility.
• “Kitchen” means construction of a new kitchen or renovation of or addition to an existing kitchen in a
licensed facility.
• “Living/Dining” means construction of new living or dining space or renovation of or addition to an existing dining or
living space in a licensed facility.
• Check the box for Other and enter a brief description of other items included in the project.
• No. of Beds — Provide the number of proposed beds for this project (for calculation of the plan review fee).
• Number of beds before project — Provide the licensed capacity (number of beds) before this project.
• Number of beds after project — Provide the proposed licensed capacity (number of beds) after this project.
• Have plans been previously submitted for this project? — Check Yes or No.
• If Yes, provide the date of last submittal and the remitter’s name.
. Type of Facility
• Check the appropriate boxes for the type of facility being submitted.
• “Single-story” means a building with one floor level at grade.
• “Multi-story” means a building with two or more floor levels, including basements.
• “Alzheimer’s Certified” means a building, unit or wing that is certified to meet the requirements of 40 TAC
§19.2208, Standards for Certified Alzheimer’s Facilities.
• Capacity — Provide the number of beds in the existing or proposed Alzheimer’s certified facility, unit or wing.
• “Locked Area NOT Alzheimer’s Certified” means a building, unit or wing that is locked for the protection of
the residents.
• Describe the locked area.
• Capacity — Provide the number of beds in the existing or proposed locked area.
Fees
• Compute the fee from 40 TAC §19.219.
• Check Number — Provide the check number from the fee check.
• Remitter Name — Provide the full name of the person whose signature is on the fee check.
• Telephone Number — Provide the remitter’s telephone number, including area code.
Plan Review Fees
(a)
The Texas Department of Human Services (DHS) charges a fee to review plans for new buildings, additions, conversion of
buildings not licensed by DHS, or remodeling of existing licensed facilities.
(b) The fee schedule follows:
(1) Facilities – new construction:
(A) single-story facilities — $20 per bed, $2,000 minimum; and
(B) multiple-story facilities — $24 per bed, $2,500 minimum.
(2) Additions or remodeling of existing licensed facilities — 2% of construction cost with $500 minimum fee and a
maximum not to exceed $2,000.
(3) Alzheimer's certification — $550 in addition to the fees specified in paragraphs (1)-(2) of this subsection.