Homepage Blank Texas 1560 PDF Form
Content Overview

The Texas 1560 form, officially known as the Certificate of Insurance, serves a crucial role in ensuring compliance with insurance requirements for contractors working with the Texas Department of Transportation (TxDOT). This form is essential for documenting that specific types of insurance coverage are in place, particularly for Workers' Compensation, Commercial General Liability, and Business Automobile policies. Each section of the form requires detailed information, including the name of the insurance carrier, policy numbers, effective dates, and limits of liability. It's important to note that this certificate is primarily informational; it does not confer any rights or obligations beyond those outlined in the actual insurance policies. Agents must complete the form accurately and submit it either by fax or mail to the specified TxDOT address. Timeliness is critical, as an updated certificate must be received at least one business day before any existing insurance expires to avoid work suspension. The form also emphasizes that certain endorsements, like a Waiver of Subrogation in favor of TxDOT for Workers' Compensation insurance, are mandatory. This ensures that the interests of the state are protected while contractors fulfill their obligations. Understanding the nuances of the Texas 1560 form is vital for contractors to maintain compliance and ensure smooth operations on projects involving state contracts.

Document Preview

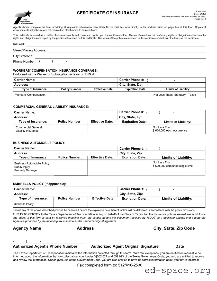
CERTIFICATE OF INSURANCE

Form 1560 (Rev. 01/12)

Previous editions of this form may not be used. Page 1 of 2

Agents should complete the form providing all requested information then either fax or mail this form directly to the address listed on page two of this form. Copies of endorsements listed below are not required as attachments to this certificate.

This certificate is issued as a matter of information only and confers no rights upon the certificate holder. This certificate does not confer any rights or obligations other than the rights and obligations conveyed by the policies referenced on this certificate. The terms of the policies referenced in this certificate control over the terms of the certificate.

Insured:

Street/Mailing Address:

City/State/Zip:

Phone Number: (

)

-

 

 

 

 

 

 

 

 

 

 

 

 

 

 

 

 

WORKERS' COMPENSATION INSURANCE COVERAGE:

 

 

 

 

Endorsed with a Waiver of Subrogation in favor of TxDOT.

 

 

 

 

 

 

 

 

 

 

 

 

 

 

Carrier Name:

 

 

 

 

 

Carrier Phone #: (

)

-

 

 

 

 

 

 

 

 

 

 

 

Address:

 

 

 

 

 

City, State, Zip:

 

 

 

 

 

 

 

 

 

 

 

 

 

Type of Insurance

 

Policy Number

 

Effective Date

Expiration Date

 

Limits of Liability:

 

 

 

 

 

 

 

 

 

Workers' Compensation

 

 

 

 

 

 

Not Less Than: Statutory - Texas

 

 

 

 

 

 

 

 

 

COMMERCIAL GENERAL LIABILITY INSURANCE:

 

 

 

 

 

 

 

 

 

 

 

 

 

 

 

 

Carrier Name:

 

 

 

 

 

Carrier Phone #: (

)

-

 

 

 

 

 

 

 

 

 

 

 

Address:

 

 

 

 

 

City, State, Zip:

 

 

 

 

 

 

 

 

 

 

 

 

 

Type of Insurance:

 

Policy Number:

 

Effective Date:

Expiration Date:

 

Limits of Liability:

 

 

 

 

 

 

 

 

 

Commercial General

 

 

 

 

 

 

Not Less Than:

Liability Insurance

 

 

 

 

 

 

$ 600,000 each occurrence

 

 

 

 

 

 

 

 

 

BUSINESS AUTOMOBILE POLICY:

 

 

 

 

 

 

 

 

 

 

 

 

 

 

 

 

Carrier Name:

 

 

 

 

 

Carrier Phone #: (

)

-

 

Address:

 

 

 

 

 

City, State, Zip:

 

 

 

 

 

 

 

 

 

 

 

 

 

 

Type of Insurance:

 

Policy Number:

 

Effective Date:

Expiration Date:

 

Limits of Liability:

 

Business Automobile Policy

 

 

 

 

 

 

Not Less Than:

 

 

 

 

 

 

 

$ 600,000 combined single limit

 

Bodily Injury

 

 

 

 

 

 

 

 

 

 

 

 

 

 

 

 

Property Damage

 

 

 

 

 

 

 

 

 

 

 

 

 

 

 

 

 

 

UMBRELLA POLICY (if applicable):

 

 

 

 

 

 

 

 

 

 

 

 

 

 

 

 

Carrier Name:

 

 

 

 

 

Carrier Phone #: (

)

-

 

 

 

 

 

 

 

 

 

 

 

Address:

 

 

 

 

 

City, State, Zip:

 

 

 

 

 

 

 

 

 

 

 

 

 

Type of Insurance:

 

Policy Number:

 

Effective Date:

Expiration Date:

 

Limits of Liability:

 

 

 

 

 

 

 

 

 

 

 

Umbrella Policy

 

 

 

 

 

 

 

 

 

 

 

 

 

 

 

 

 

 

 

 

Should any of the above described policies be cancelled before the expiration date thereof, notice will be delivered in accordance with the policy provisions.

THIS IS TO CERTIFY to the Texas Department of Transportation acting on behalf of the State of Texas that the insurance policies named are in full force and effect. If this form is sent by facsimile machine (fax), the sender adopts the document received by TxDOT as a duplicate original and adopts the signature produced by the receiving fax machine as the sender's original signature.

Agency Name

Address

City, State, Zip Code

 

 

 

 

 

 

 

 

(

)

-

 

 

 

 

 

 

 

 

 

Authorized Agent's Phone Number

Authorized Agent Original Signature

 

Date

The Texas Department of Transportation maintains the information collected through this form. With few exceptions, you are entitled on request to be informed about the information that we collect about you. Under §§552.021 and 552.023 of the Texas Government Code, you also are entitled to receive and review the information. Under §559.004 of the Government Code, you are also entitled to have us correct information about you that is incorrect.

Fax completed form to: 512/416-2536

Form 1560 (Rev. 01/12) Page 2 of 2

NOTES TO AGENTS:

Agents must provide all requested information then either fax or mail this form directly to the address listed below.

Pre-printed limits are the minimum required; if higher limits are provided by the policy, enter the higher limit amount and strike-through or cross-out the pre-printed limit.

To avoid work suspension, an updated insurance form must reach the address listed below one business day prior to the expiration date. Insurance must be in force in order to perform any work.

Binder numbers are not acceptable for policy numbers.

The certificate of insurance, once on file with the department, is adequate for subsequent department contracts provided adequate coverage is still in effect. Do not refer to specific projects/contracts on this form.

List the contractor's legal company name, including the DBA (doing business as) name as the insured. If a staff leasing service is providing insurance to the contractor/client company, list the staff leasing service as the insured and show the contractor/client company in parenthesis.

The TxDOT certificate of insurance form is the only acceptable proof of insurance for department contracts.

List the contractor's legal company name, including the DBA (doing business as) name as the insured or list both the contractor and staff leasing service as insured when a staff leasing service is providing insurance.

Over-stamping and/or over-typing entries on the certificate of insurance are not acceptable if such entries change the provisions of the certificate in any manner.

This form may be reproduced.

DO NOT COMPLETE THIS FORM UNLESS THE WORKERS' COMPENSATION POLICY IS ENDORSED WITH A WAIVER OF SUBROGATION IN FAVOR OF TXDOT.

The SIGNATURE of the agent is required.

CERTIFICATE OF INSURANCE REQUIREMENTS:

WORKERS' COMPENSATION INSURANCE:

The contractor is required to have Workers' Compensation Insurance if the contractor has any employees including relatives.

The word STATUTORY, under limits of liability, means that the insurer would pay benefits allowed under the Texas Workers' Compensation Law.

GROUP HEALTH or ACCIDENT INSURANCE is not an acceptable substitute for Workers' Compensation.

COMMERCIAL GENERAL LIABILITY INSURANCE:

MANUFACTURERS' or CONTRACTOR LIABILITY INSURANCE is not an acceptable substitute for Comprehensive General Liability Insurance or Commercial General Liability Insurance.

BUSINESS AUTOMOBILE POLICY:

If coverages are specified separately, they must be at least these amounts:

Bodily Injury

$500,000 each occurrence

 

$100,000 each occurrence

Property Damage

$100,000 for aggregate

PRIVATE AUTOMOBILE LIABILITY INSURANCE is not an acceptable substitute for a Business Automobile Policy.

MAIL ALL CERTIFICATES TO:

Texas Department of Transportation

CST Contract Processing Unit (RA/200 1st Fl.) 125 E. 11th Street

Austin, TX 78701-2483 512/416-2540 (Voice), 512/416-2536 (Fax)

Form Specifications

Fact Name Details
Form Title Certificate of Insurance Form 1560
Revision Date Revised on January 12, 2012
Submission Method Agents must fax or mail the completed form to TxDOT
Insurance Rights This certificate confers no rights beyond those in the referenced policies
Workers' Compensation Requirement Must be endorsed with a Waiver of Subrogation in favor of TxDOT
Minimum Coverage Limits Workers' Compensation: Statutory; General Liability: $600,000 each occurrence; Business Auto: $600,000 combined single limit
Policy Cancellation Notice Notice of cancellation must be delivered per policy provisions
Agent Signature Requirement The signature of the authorized agent is required on the form
Governing Laws Texas Workers' Compensation Law and Texas Government Code §§552.021, 552.023, and §559.004

Texas 1560: Usage Guidelines

Filling out the Texas 1560 form is an important step in ensuring compliance with insurance requirements for contractors working with the Texas Department of Transportation. Once the form is completed, it should be submitted either by fax or mail to the designated address provided on the form. It is essential to ensure that all required information is accurately filled out to avoid any delays in processing.

  1. Obtain the Form: Access the Texas 1560 form, ensuring you have the most recent version (Rev. 01/12).
  2. Fill in the Insured Information: Enter the legal company name of the contractor as the insured. Include the DBA (doing business as) name, if applicable. Provide the street/mailing address, city, state, and zip code.
  3. Contact Information: Include the phone number for the insured in the designated area.
  4. Workers' Compensation Insurance: Provide the name of the insurance carrier, their phone number, and address. Fill in the type of insurance, policy number, effective date, expiration date, and limits of liability. Ensure the policy is endorsed with a waiver of subrogation in favor of TxDOT.
  5. Commercial General Liability Insurance: Repeat the process for the commercial general liability insurance. Include the carrier name, phone number, address, type of insurance, policy number, effective date, expiration date, and limits of liability.
  6. Business Automobile Policy: Fill in the carrier information and policy details for the business automobile policy, including limits of liability.
  7. Umbrella Policy (if applicable): If an umbrella policy is in place, provide the necessary details as with the other insurance types.
  8. Agent Information: Enter the agency name, address, city, state, and zip code. Include the authorized agent's phone number.
  9. Signature: The authorized agent must sign and date the form to certify the information provided.
  10. Submission: Fax or mail the completed form to the Texas Department of Transportation at the address listed on the form.

Your Questions, Answered

What is the purpose of the Texas 1560 form?

The Texas 1560 form, also known as the Certificate of Insurance, serves to provide proof that specific insurance policies are in place for contractors working with the Texas Department of Transportation (TxDOT). It is primarily used to confirm that the required types of insurance coverage, such as Workers' Compensation and General Liability, are active and meet the minimum limits set by TxDOT. This form does not confer any rights beyond what is outlined in the actual insurance policies.

Who is responsible for completing the Texas 1560 form?

Insurance agents are responsible for filling out the Texas 1560 form. They must ensure that all requested information is accurately provided. After completing the form, agents should either fax or mail it directly to the address specified on the second page of the document. It is essential that the information is correct to avoid any delays or issues with compliance.

What types of insurance are required on the Texas 1560 form?

The Texas 1560 form requires several types of insurance coverage. These include Workers' Compensation Insurance, Commercial General Liability Insurance, and Business Automobile Policy. Each of these types must meet specific minimum limits of liability as outlined in the form. If applicable, an Umbrella Policy can also be included. It is crucial to note that private automobile liability insurance is not an acceptable substitute for a Business Automobile Policy.

What happens if the insurance policies are canceled before their expiration date?

If any of the insurance policies listed on the Texas 1560 form are canceled before their expiration date, the insurance provider is required to notify TxDOT in accordance with the policy provisions. This ensures that TxDOT is kept informed about the status of the insurance coverage, which is vital for compliance with contract requirements.

Can I use a previous edition of the Texas 1560 form?

No, previous editions of the Texas 1560 form are not acceptable. The current version, as indicated on the form itself, must be used. Using an outdated form could lead to complications or rejections of the submitted insurance documentation, which may impact the ability to perform contracted work with TxDOT.

How can I submit the completed Texas 1560 form?

Once the Texas 1560 form is completed, it can be submitted either by fax or by mail. The fax number and mailing address are provided on the second page of the form. It is important to ensure that the form is sent to the correct address and that it is submitted in a timely manner, ideally one business day before the expiration date of the current insurance coverage, to avoid any work suspension.

Common mistakes

  1. Incomplete Information: Failing to provide all requested details can lead to delays. Each section of the form must be filled out accurately.

  2. Incorrect Policy Numbers: Entering binder numbers instead of actual policy numbers is a common error. This can render the form invalid.

  3. Misidentifying the Insured: Listing the wrong entity as the insured can cause significant issues. Always use the legal name of the contractor, including any DBA names.

  4. Missing Signature: The authorized agent's signature is essential. Omitting this can lead to the rejection of the form.

  5. Ignoring Waiver of Subrogation: The Workers' Compensation policy must be endorsed with a waiver of subrogation in favor of TxDOT. Not adhering to this requirement can invalidate the insurance coverage.

Documents used along the form

The Texas 1560 form is essential for providing proof of insurance coverage to the Texas Department of Transportation. Several other forms and documents often accompany this certificate to ensure compliance with various insurance requirements. Below is a list of these documents, along with brief descriptions of each.

  • Workers' Compensation Policy: This document outlines the details of the workers' compensation insurance coverage, including limits and effective dates. It is crucial for protecting employees in case of work-related injuries.
  • Commercial General Liability Policy: This policy provides coverage for claims of bodily injury or property damage that may occur during business operations. It specifies the limits of liability and effective dates.
  • Business Automobile Policy: This document covers liability for vehicles used in business operations. It includes details about coverage limits and the types of vehicles insured.
  • Umbrella Policy: An umbrella policy offers additional liability coverage beyond the limits of existing policies. It provides an extra layer of protection for various liabilities.
  • Endorsements: These are amendments to the insurance policies that modify coverage terms. Specific endorsements may be required, such as a waiver of subrogation in favor of TxDOT.
  • Certificate of Insurance: This document serves as proof that the required insurance policies are in effect. It summarizes the coverage details and is typically issued by the insurance agent.
  • Insurance Binder: An insurance binder is a temporary document that provides proof of insurance until the official policy is issued. It outlines coverage details but is not a substitute for the actual policy.
  • Proof of Coverage Letter: This letter is issued by the insurance company to confirm that the insured has the necessary coverage. It may be required for specific contracts or projects.
  • Claims History Report: This report details any past claims made by the insured. It can be important for assessing risk and determining insurance premiums.

Each of these documents plays a critical role in ensuring that all insurance requirements are met for projects involving the Texas Department of Transportation. Proper documentation helps protect both the contractor and the state from potential liabilities.

Similar forms

The Texas 1560 form, known as the Certificate of Insurance, serves as proof of various types of insurance coverage. Several other documents share similarities with this form in terms of purpose and function. Here’s a list of ten such documents:

  • Certificate of Liability Insurance: This document provides evidence of general liability insurance coverage, similar to the Texas 1560 form, which also certifies various insurance types.
  • Certificate of Workers' Compensation Insurance: Like the Texas 1560, this certificate specifically confirms that an employer has workers' compensation coverage, essential for protecting employees.
  • Proof of Insurance: This document serves as a general term for any certificate that verifies insurance coverage, much like the Texas 1560 form does for specific policies.
  • Insurance Binder: An insurance binder is a temporary agreement that provides coverage until the formal policy is issued. It functions similarly to the Texas 1560 in establishing proof of coverage.
  • Certificate of Auto Insurance: This document verifies that a vehicle is insured, similar to the Texas 1560’s inclusion of business automobile policies.
  • Endorsement Certificate: This certificate outlines modifications to an existing insurance policy, akin to how the Texas 1560 references endorsements for specific coverages.
  • General Liability Waiver: This document may waive liability for certain risks, similar to how the Texas 1560 form includes a waiver of subrogation in favor of TxDOT.
  • Contractor Insurance Certificate: This is often required for contractors to prove they have necessary insurance, paralleling the requirements set forth in the Texas 1560 form.
  • Certificate of Health Insurance: While focused on health coverage, this certificate serves to confirm that an individual or group has health insurance, similar to how the Texas 1560 confirms various insurance types.
  • Liability Insurance Declaration Page: This page summarizes the coverage provided by an insurance policy, akin to the Texas 1560 form’s summary of coverage limits and types.

Dos and Don'ts

When filling out the Texas 1560 form, attention to detail is crucial. Here are ten guidelines to help ensure the process goes smoothly.

  • Do complete all requested information accurately.
  • Do ensure that the Workers' Compensation policy is endorsed with a Waiver of Subrogation in favor of TxDOT.
  • Do list the contractor's legal company name, including any DBA (doing business as) name.
  • Do send the completed form via fax or mail to the address specified on the form.
  • Do provide updated insurance forms at least one business day before the expiration date to avoid work suspension.
  • Don't use binder numbers as policy numbers; they are not acceptable.
  • Don't refer to specific projects or contracts on the form.
  • Don't make changes to the pre-printed limits without striking through the old limits and entering the new amounts clearly.
  • Don't use group health or accident insurance as a substitute for Workers' Compensation Insurance.
  • Don't forget to include the authorized agent's original signature on the form.

Following these guidelines will help ensure that the Texas 1560 form is filled out correctly and submitted in a timely manner.

Misconceptions

Misconceptions about the Texas 1560 form can lead to confusion for those involved in the insurance process. Here are four common misunderstandings:

  • The Texas 1560 form guarantees coverage. Many people believe that submitting this form provides automatic insurance coverage. In reality, the form is merely a certificate of insurance and does not confer any rights or obligations beyond what the actual insurance policies specify.
  • Endorsements must be attached to the form. Some individuals think they need to include copies of endorsements with the Texas 1560 form. However, the instructions clearly state that these endorsements are not required as attachments.
  • Any type of insurance can be listed on the form. There is a common belief that any insurance policy can be included. In fact, the form has specific requirements for types of coverage, including Workers' Compensation and Commercial General Liability insurance. Substitutes like Group Health or Accident Insurance are not acceptable.
  • Faxing the form is not a valid submission method. Some may assume that mailing is the only way to submit the Texas 1560 form. On the contrary, faxing the completed form is an acceptable method, and the sender's faxed signature is treated as an original signature.

Key takeaways

Key Takeaways for Filling Out and Using the Texas 1560 Form:

  1. Complete all requested information accurately before submission.
  2. Fax or mail the completed form directly to the address provided on the second page.
  3. Attachments of endorsements listed are not required with the certificate.
  4. This certificate serves only as informational and does not confer any rights to the holder.
  5. Ensure that the workers' compensation policy includes a waiver of subrogation in favor of TxDOT.
  6. Use the contractor's legal company name, including any DBA, as the insured.
  7. Do not reference specific projects or contracts on the form.
  8. Submit an updated insurance form at least one business day before the expiration date to avoid work suspension.
  9. Only the TxDOT certificate of insurance form is acceptable for department contracts.
  10. Private automobile liability insurance is not a substitute for a Business Automobile Policy.

Make sure to adhere to these guidelines to ensure compliance and avoid potential issues. Timeliness and accuracy are crucial in this process.