Homepage Blank Swimming Pool Inspection PDF Form
Content Overview

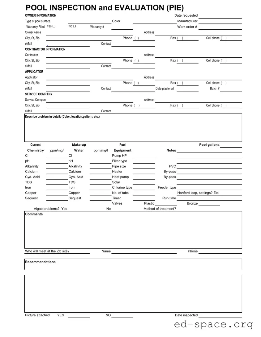
The Swimming Pool Inspection form is an essential tool for pool owners, contractors, and service companies alike, facilitating a thorough evaluation of pool conditions and maintenance needs. This form captures vital information about the pool, including the type of surface, color, and manufacturer details, ensuring that all relevant aspects are documented. Owner and contractor information is clearly outlined, providing a direct line of communication for any follow-up questions or clarifications. The form also addresses specific details about the pool's condition, such as water chemistry, equipment specifications, and any existing problems that may require attention. By detailing the pool's make-up, including gallons, chemical levels, and equipment notes, the form helps in diagnosing issues effectively. Additionally, it includes space for recommendations and comments, allowing inspectors to provide tailored advice based on their findings. A picture can be attached to further illustrate any concerns, making it easier for all parties to understand the situation. Overall, the Swimming Pool Inspection form serves as a comprehensive record that enhances communication and ensures that pools are maintained to the highest standards.

Document Preview

POOL INSPECTION and EVALUATION (PIE)

OWNER INFORMATION

 

 

 

 

 

 

 

 

 

Date requested

 

 

 

Type of pool surface

 

 

 

 

 

 

 

 

 

 

 

 

 

 

 

 

 

Color

 

 

 

 

 

Manufacturer

 

 

 

 

 

 

 

 

 

 

 

 

 

 

 

 

 

 

 

 

 

Warranty Filed Yes

No

Warranty #

 

 

 

 

 

Work order #

 

 

 

Owner name

 

 

 

 

 

 

 

Address

 

 

 

 

 

 

 

 

 

 

 

 

 

 

 

 

 

 

 

 

 

 

City, St, Zip

 

 

 

Phone (

)

 

 

Fax (

)

 

Cell phone (

)

 

 

 

 

 

 

 

 

 

 

 

 

 

 

 

 

 

eMail

 

Contact

 

 

 

 

 

 

 

 

 

 

 

 

 

 

 

 

 

 

 

 

 

 

 

 

 

 

 

 

 

 

CONTRACTOR INFORMATION

 

 

 

 

 

 

 

 

 

 

 

 

 

 

 

 

 

Contractor

 

 

 

 

 

 

 

Address

 

 

 

 

 

 

 

 

 

 

 

 

 

 

 

 

 

 

 

 

 

City, St, Zip

 

 

 

Phone (

)

 

 

Fax (

)

 

Cell phone (

)

 

 

 

 

 

 

 

 

 

 

 

 

 

 

 

 

 

eMail

 

Contact

 

 

 

 

 

 

 

 

 

 

 

 

 

 

 

 

 

 

 

 

 

 

 

 

 

 

 

 

 

 

APPLICATOR

 

 

 

 

 

 

 

 

 

 

 

 

 

 

 

 

 

Applicator

 

 

 

 

 

 

 

Address

 

 

 

 

 

 

 

 

 

 

 

 

 

 

 

 

 

 

 

 

 

City, St, Zip

 

 

 

Phone (

)

 

 

Fax (

)

 

Cell phone (

)

 

 

 

 

 

 

 

 

 

 

 

 

 

 

 

eMail

 

Contact

 

 

 

Date plastered

 

 

Batch #

 

 

 

 

 

 

 

 

 

 

 

 

 

 

 

 

 

 

 

 

SERVICE COMPANY

 

 

 

 

 

 

 

 

 

 

 

 

 

 

 

 

 

Service Company

 

 

 

 

 

 

 

Address

 

 

 

 

 

 

 

 

 

 

 

 

 

 

 

 

 

 

 

 

 

City, St, Zip

 

 

 

Phone (

)

 

 

Fax (

)

 

Cell phone (

)

 

 

 

 

 

 

 

 

 

 

 

 

 

 

 

 

eMail

 

Contact

 

 

 

 

 

 

 

 

 

 

 

Describe problem in detail: (Color, location,pattern, etc.)

Current

 

Make-up

 

Pool

 

 

 

 

 

Pool gallons

Chemistry

ppm/mg/l

Water

ppm/mg/l Equipment

 

 

Notes

 

 

 

 

 

 

 

 

 

 

Cl

 

Cl

 

Pump HP

 

 

 

 

 

 

 

 

pH

 

pH

 

Filter type

 

 

 

 

 

 

 

 

Alkalinity

 

Alkalinity

 

Pipe size

 

 

PVC

 

 

 

 

 

Calcium

 

Calcium

 

Heater

 

 

By-pass

 

 

 

 

 

Cya. Acid

 

Cya. Acid

 

Heat pump

 

 

By-pass

 

 

 

 

TDS

 

TDS

 

Solar

 

 

 

 

 

 

 

 

Iron

 

Iron

 

Chlorine type

 

 

Feeder type

 

 

 

 

Copper

 

Copper

 

No. of tabs

 

 

 

 

Hartford loop, settings? Etc.

Sequest

 

Sequest

 

Timer

 

 

Run time

 

 

 

 

 

 

 

 

 

Valves

Plastic

 

Bronze

 

 

Algae problems? Yes

 

No

Method of treatment?

 

 

 

 

Comments

 

 

 

 

 

 

 

 

 

 

 

 

 

 

 

 

 

 

 

 

 

 

 

 

 

Who will meet at the job site?

Name

 

Phone

Recommendations

Picture attached

YES

 

NO

 

Date inspected

Form Specifications

Fact Name Description
Purpose of the Form The Swimming Pool Inspection form is designed to evaluate the condition and safety of a swimming pool.
Owner Information It collects vital details about the pool owner, including their name, contact information, and warranty status.
Contractor Information Information about the contractor performing the inspection is also required, ensuring accountability and communication.
Detailed Problem Description Inspectors must describe any issues in detail, including color, location, and pattern, to facilitate accurate assessments.
Water Chemistry The form requires current water chemistry readings, such as pH and alkalinity, crucial for pool maintenance.
State-Specific Regulations Different states may have specific laws governing swimming pool inspections, such as California Health and Safety Code § 116025.
Recommendations Section Inspectors provide recommendations for necessary repairs or treatments, helping owners maintain pool safety and quality.
Documentation of Inspection The form serves as a record of the inspection date, findings, and any attached photos, ensuring transparency and compliance.

Swimming Pool Inspection: Usage Guidelines

Completing the Swimming Pool Inspection form requires careful attention to detail. Each section must be filled out accurately to ensure a comprehensive evaluation. Follow the steps below to complete the form effectively.

  1. Enter the date requested at the top of the form.
  2. Specify the type of pool surface and its color.
  3. Provide the manufacturer name and indicate if the warranty has been filed by selecting Yes or No. Include the warranty number if applicable.
  4. Fill in the work order number if you have one.
  5. Complete the owner information section, including the owner name, address, city, state, zip code, and contact numbers (phone, fax, cell phone, email).
  6. Proceed to the contractor information section and provide the contractor's address, city, state, zip code, and contact numbers.
  7. In the applicator section, enter the applicator's information, including their address, city, state, zip code, and contact numbers.
  8. Document the date plastered and batch number in the appropriate fields.
  9. Fill in the service company information with the company's address, city, state, zip code, and contact numbers.
  10. In the problem description section, provide a detailed account of the issue, including color, location, and pattern.
  11. Record the current make-up pool details, including gallons and chemistry readings (ppm/mg/l).
  12. Complete the equipment notes section, detailing the pump HP, filter type, alkalinity, pipe size, calcium, heater settings, and other relevant data.
  13. Indicate if there are any algae problems by selecting Yes or No, and describe the method of treatment if applicable.
  14. Provide any additional comments that may be relevant to the inspection.
  15. Identify who will meet at the job site by entering their name and phone number.
  16. Make any recommendations necessary for the pool.
  17. Attach any pictures related to the inspection and indicate YES or NO for picture attachment.
  18. Finally, enter the date inspected at the bottom of the form.

Your Questions, Answered

What is the purpose of the Swimming Pool Inspection form?

The Swimming Pool Inspection form is designed to gather essential information about a pool's condition and maintenance. It helps owners, contractors, and service companies document the current state of the pool, any existing problems, and the steps taken to address those issues. This form can be particularly useful for warranty claims and ensuring that all parties are informed about the pool's status.

What information do I need to provide as a pool owner?

As a pool owner, you will need to fill out your personal information, including your name, address, and contact details. Additionally, you should provide details about the pool itself, such as the type of surface, color, manufacturer, and warranty status. Describing any problems in detail will also be crucial for the inspection process.

Who should fill out the contractor and applicator information?

The contractor responsible for the pool's maintenance or repair should fill out their information, including their name, address, and contact details. Similarly, if a specific applicator is involved in the pool's upkeep, their information should also be included. This ensures that all parties involved are clearly identified and can be contacted if necessary.

What details are necessary when describing a problem with the pool?

When describing a problem, it's important to be as specific as possible. Include information about the color, location, and pattern of any issues you observe. For example, if there are stains, mention their color and where they are located in the pool. The more detailed you are, the easier it will be for the inspector to assess the situation.

What kind of chemical information is required on the form?

The form requires details about the pool's water chemistry, including measurements for chlorine, pH, alkalinity, and other relevant chemicals. Providing accurate readings for these elements is crucial, as they affect the pool's overall health and safety. If you’re unsure about these measurements, consider having them tested before completing the form.

What should I do if I have algae problems?

If your pool has algae issues, you should indicate this on the form. Additionally, describe the method of treatment you plan to use or have used. This information helps the inspector understand the severity of the problem and provides context for their evaluation.

Is it necessary to attach pictures of the pool?

While it's not mandatory, attaching pictures can be very helpful. Visual evidence of the pool's condition can provide context for the inspector and may assist in identifying issues that are not easily described in words. If you have pictures, be sure to check the box indicating they are attached.

Who will meet at the job site for the inspection?

The form includes a section where you can specify who will be present at the job site during the inspection. It’s important to provide the name and phone number of the person who will be available, as this ensures clear communication between the inspector and the responsible parties.

How do I know if my warranty is filed?

You can check your warranty status by referring to the documentation you received when the pool was installed or serviced. If you’re unsure, contact the manufacturer or the contractor who installed the pool. They can confirm whether your warranty is on file and provide any additional information you may need.

Common mistakes

  1. Incomplete Owner Information: Failing to provide all required owner details, such as the owner's name, address, or contact numbers, can delay the inspection process. Ensure that every field is filled out accurately.

  2. Incorrect Pool Specifications: Misstating the type of pool surface or its color can lead to improper evaluation and recommendations. Double-check these details to avoid confusion.

  3. Omitting Problem Description: Leaving the section to describe the problem blank or too vague limits the inspector's ability to address the issue effectively. Provide a detailed account of the problem, including color, location, and pattern.

  4. Neglecting Chemistry and Equipment Details: Inaccurate or missing information about pool chemistry and equipment specifications can result in incorrect assessments. Fill out all chemistry levels and equipment types thoroughly.

  5. Failure to Attach Supporting Documents: Not including pictures or warranty information can hinder the inspection process. Attach all relevant documents to provide a complete picture of the pool's condition.

Documents used along the form

When conducting a swimming pool inspection, several other forms and documents may be necessary to ensure a comprehensive evaluation. Each of these documents serves a specific purpose and helps maintain safety and compliance standards. Below is a list of commonly used forms alongside the Swimming Pool Inspection form.

  • Pool Maintenance Log: This document tracks regular maintenance activities, including cleaning schedules, chemical balances, and equipment checks. It helps ensure that the pool remains in good condition and provides a history of care for future inspections.
  • Swimming Pool Safety Checklist: This checklist outlines essential safety measures that must be in place, such as fencing, alarms, and signage. It serves to confirm that all safety regulations are being met to protect users.
  • Water Quality Testing Report: This report details the results of water quality tests, including levels of chlorine, pH, and other chemicals. It is crucial for assessing whether the pool water is safe for swimming.
  • Contractor Agreement: This document formalizes the relationship between the pool owner and the contractor performing the inspection or maintenance. It includes terms of service, payment details, and responsibilities of each party.
  • Incident Report Form: If any accidents or injuries occur at the pool, this form is used to document the incident. It provides a record that can be important for liability and insurance purposes.

Using these documents in conjunction with the Swimming Pool Inspection form can help ensure thoroughness and compliance with safety standards. Proper documentation not only aids in maintenance but also protects the interests of both the pool owner and users.

Similar forms

The Swimming Pool Inspection form shares similarities with several other types of inspection and evaluation documents. Each document serves a specific purpose but often includes comparable elements such as owner and contractor information, service details, and problem descriptions. Below is a list of ten documents that are similar to the Swimming Pool Inspection form:

  • Home Inspection Report: This document evaluates the overall condition of a home, including structural elements, systems, and safety features. It typically contains owner information, inspection details, and notes on any issues found.
  • Building Inspection Report: Similar to a home inspection, this report focuses on the structural integrity and safety of a building. It includes details about the building's systems, compliance with codes, and any identified deficiencies.
  • Electrical Inspection Report: This form assesses the safety and functionality of electrical systems in a property. It documents the condition of wiring, outlets, and fixtures, often including recommendations for repairs or upgrades.
  • HVAC Inspection Report: This document evaluates heating, ventilation, and air conditioning systems. It typically includes information on system performance, maintenance history, and any necessary repairs.
  • Roof Inspection Report: This report focuses on the condition of a roof, detailing materials, age, and any signs of damage or wear. It often includes photographs and recommendations for maintenance or replacement.
  • Environmental Assessment Report: This document evaluates potential environmental hazards in a property. It includes owner information and findings related to soil, water, and air quality, along with recommendations for remediation.
  • Pest Inspection Report: This report assesses a property for pest infestations, documenting findings and recommending treatment options. It often includes details about the location and severity of infestations.
  • Fire Safety Inspection Report: This document evaluates a property’s compliance with fire safety regulations. It includes information about fire alarms, extinguishers, and escape routes, along with any identified hazards.
  • Plumbing Inspection Report: This report assesses the condition of a property's plumbing system. It documents issues related to pipes, fixtures, and drainage, often providing recommendations for repairs.
  • Commercial Property Inspection Report: Similar to residential inspections, this document evaluates commercial properties, focusing on structural integrity, compliance, and any operational issues that may affect business.

Dos and Don'ts

When filling out the Swimming Pool Inspection form, attention to detail is crucial. Here are some important guidelines to follow:

  • Do fill in all required fields completely. Incomplete information can lead to delays.
  • Don't use abbreviations unless specified. Clear communication is essential.
  • Do provide accurate contact information for both the owner and contractor. This ensures prompt communication.
  • Don't forget to describe the problem in detail. Specificity helps in assessing the situation.
  • Do include warranty information if applicable. This can affect the inspection process.
  • Don't leave out any notes regarding equipment or chemistry. These details are vital for a thorough evaluation.
  • Do indicate who will be present at the job site. This facilitates coordination on inspection day.
  • Don't skip the section on algae problems. This can impact the overall health of the pool.
  • Do attach pictures if requested. Visual documentation can provide additional context for the inspector.

By adhering to these guidelines, you can help ensure a smooth inspection process for your swimming pool.

Misconceptions

Misconceptions about the Swimming Pool Inspection form can lead to confusion and misunderstandings. Here are nine common misconceptions, along with clarifications:

  • The form is only for new pools. Many people believe the inspection form is only necessary for newly constructed pools. In reality, it is essential for both new and existing pools to ensure safety and compliance with regulations.
  • Only licensed contractors can fill out the form. While contractors often complete the form, pool owners can also provide necessary information. This ensures that all relevant details are captured.
  • The inspection is optional. Some pool owners think that inspections are not mandatory. However, regular inspections are crucial for maintaining pool safety and ensuring compliance with local health codes.
  • All problems will be resolved immediately. There is a misconception that once issues are noted on the form, they will be fixed right away. The form serves as a record, but the actual resolution may take time depending on the nature of the problem.
  • Only visible issues need to be reported. Some individuals may think that only visible problems should be noted. However, it is important to document any concerns, even if they are not immediately apparent.
  • The form is the same for all types of pools. Many assume that the inspection form is standardized for all pool types. In fact, different pools may require specific information based on their design and features.
  • Once submitted, the form is not revisited. Some believe that the inspection form is a one-time document. In truth, it can be updated as new issues arise or as maintenance is performed.
  • There is no need to keep a copy of the form. Many pool owners think they do not need to retain a copy of the inspection form. Keeping a copy is important for future reference and for maintaining a history of inspections and repairs.
  • Inspection forms are only for compliance purposes. While compliance is a significant reason for inspections, the form also serves to enhance pool safety and improve the overall experience for users.

Key takeaways

Filling out the Swimming Pool Inspection form is an important step in maintaining your pool. Here are some key takeaways to keep in mind:

  • Owner Information: Ensure that all owner details are complete, including name, address, and contact information. This helps in communication and record-keeping.
  • Contractor Details: Fill in the contractor's information accurately. This includes their address and contact numbers, which is vital for follow-ups.
  • Problem Description: Provide a detailed description of the problem. Mention specifics like color, location, and pattern to help diagnose the issue effectively.
  • Water Chemistry: Record the current water chemistry, including chlorine levels and pH. This information is crucial for assessing the pool's condition.
  • Equipment Notes: Document any relevant equipment details. This includes pump horsepower and filter type, which can affect pool maintenance.
  • Service Company: Include the service company’s information. Having their contact details on hand can streamline the inspection process.
  • Recommendations: Make sure to note any recommendations provided by the inspector. This can guide future maintenance and repairs.
  • Inspection Date: Don’t forget to include the date of the inspection. This helps in tracking maintenance schedules and warranty claims.

Using this form correctly can lead to better pool maintenance and a safer swimming environment.