Homepage Blank Standard 2 T PDF Form
Content Overview

The Standard 2 T form is a critical document in real estate transactions, particularly in North Carolina. This form serves as an offer to purchase and contract between a buyer and seller, outlining the essential details of the property involved. Key components include the identification of the property, which specifies its location and legal description, ensuring both parties are clear on what is being sold. The form also addresses the fixtures and personal property included in the sale, helping to avoid disputes over what remains with the property after the transaction. A significant aspect of the Standard 2 T form is the purchase price, which details how the buyer will pay, including earnest money deposits and any additional fees. Conditions for the sale, such as financing requirements and property inspections, are also outlined, protecting both parties by establishing clear expectations. Furthermore, the form includes provisions regarding closing, possession, and risk of loss, ensuring that both the buyer and seller understand their responsibilities leading up to and following the transaction. Overall, the Standard 2 T form is designed to facilitate a smooth real estate transaction by providing a comprehensive framework for the agreement between buyer and seller.

Document Preview

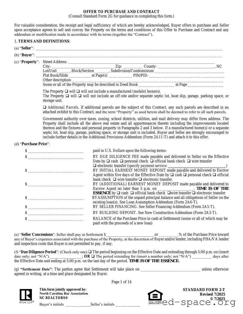
OFFER TO PURCHASE AND CONTRACT

(Consult Standard Form 2G for guidance in completing this form.)

For valuable consideration, the receipt and legal sufficiency of which are hereby acknowledged, Buyer offers to purchase and Seller upon acceptance agrees to sell and convey the Property on the terms and conditions of this Offer to Purchase and Contract and any addendum or modification made in accordance with its terms (together the “Contract”).

1.TERMS AND DEFINITIONS:

(a)Seller”: ______________________________________________________________________________________________

(b)Buyer”: ______________________________________________________________________________________________

(c)Property”: Street Address:

City:Zip:County:, NC

Lot/Unit ______, Block/Section _______, Subdivision/Condominium ___________________________________

Plat Book/Slide ___________ at Page(s) ____________ PIN/PID: ______________________________________

Other description: ____________________________________________________________________________

Some or all of the Property may be described in Deed Book __________________ at Page __________________

The Property will will not include a manufactured (mobile) home(s).

The Property will will not include an off-site and/or separate septic lot, boat slip, garage, parking space, or storage unit.

Additional Parcels. If additional parcels are the subject of this Contract, any such parcels are described in an attached exhibit to this Contract, and the term “Property” as used herein shall be deemed to refer to all such parcels.

Government authority over taxes, zoning, school districts, utilities, and mail delivery may differ from address. The Property shall include all the above real estate and all appurtenances thereto including the improvements located thereon and the fixtures and personal property in Paragraphs 2 and 3 below. If a manufactured home(s) or a separate septic lot, boat slip, garage, parking space, or storage unit is included, Buyer and Seller are strongly encouraged to include further details in the Additional Provisions Addendum (Form 2A11-T) and attach it to this offer.

(d) “Purchase Price”:

 

$ ____________________________

paid in U.S. Dollars upon the following terms:

$ ____________________________

BY DUE DILIGENCE FEE made payable and delivered to Seller on the Effective

 

Date by cash personal check official bank check wire transfer

 

electronic transfer (specify payment service: _____________________________)

$ ____________________________

BY INITIAL EARNEST MONEY DEPOSIT made payable and delivered to Escrow

 

Agent within five days of the Effective Date by cash personal check official

 

bank check wire transfer electronic transfer.

$ ____________________________

BY (ADDITIONAL) EARNEST MONEY DEPOSIT made payable and delivered to

 

Escrow Agent no later than 5 p.m. on __________________, TIME IS OF THE

 

ESSENCE by cash official bank check wire transfer electronic transfer

$ ____________________________

BYASSUMPTION of the unpaid principal balance and all obligations of Seller on the

 

existing loan(s). See Loan Assumption Addendum (Form 2A6-T).

$ ____________________________

BY SELLER FINANCING. See Seller Financing Addendum (Form 2A5-T).

$ ____________________________

BY BUILDING DEPOSIT. See New Construction Addendum (Form 2A3-T).

$ ____________________________

BALANCE of the Purchase Price in cash at Settlement (some or all of which may be

 

paid with the proceeds of a new loan)

(e)Seller Concessions”: Seller shall pay at Settlement $________________________ or __________% of the Purchase Price toward any of Buyer’s expenses associated with the purchase of the Property, at the discretion of Buyer and/or lender, including FHA/VA lender and inspection costs that Buyer is not permitted to pay, if any.

(f)Due Diligence Period”: (Check only one) The period beginning on the Effective Date and extending through 5:00 p.m. on (insert date only; not “N/A”) ________________; OR The period extending for (insert a number only; not “N/A”) __________ days after the Effective Date and ending at 5:00 p.m. on the last day of the period. TIME IS OF THE ESSENCE.

(g)“Settlement Date”: The parties agree that Settlement will take place on ______________________________ unless otherwise agreed in writing, at a time and place designated by Buyer.

Page 1 of 14

This form jointly approved by:

North Carolina Bar Association

NC REALTORS®

Buyer’s initials ______ ______Seller’s initials ______ ______

STANDARD FORM 2-T Revised 7/2025 © 7/2025

(h) “Earnest Money Deposit”: The Initial Earnest Money Deposit, the Additional Earnest Money Deposit and any other earnest monies paid or required to be paid in connection with this transaction, collectively the “Earnest Money Deposit,” shall be deposited promptly and held in escrow by Escrow Agent. The Earnest Money Deposit will be credited to Buyer at Closing or disbursed as required by this Contract. In the event of a dispute between Seller and Buyer over the disposition of the Earnest Money Deposit held in escrow, Escrow Agent may remit the Earnest Money Deposit to the clerk of court or otherwise disburse it according to North Carolina Law if the Buyer and Seller cannot resolve the dispute by consent.

(i)Escrow Agent”: (insert name) _________________________________________________________. Buyer and Seller consent to disclosure by the Escrow Agent of any material facts pertaining to the Earnest Money Deposit to the parties to this transaction, their real estate agent(s) and Buyer’s lender(s). THE PARTIES AGREE THAT A REAL ESTATE BROKERAGE FIRM ACTING AS ESCROW AGENT MAY PLACE THE EARNEST MONEY DEPOSIT IN AN INTEREST-BEARING TRUST ACCOUNT AND THAT ANY INTEREST EARNED THEREON SHALL BE DISBURSED TO THE ESCROW AGENT MONTHLY IN CONSIDERATION OF THE EXPENSES INCURRED BY MAINTAINING SUCH ACCOUNT AND RECORDS ASSOCIATED THEREWITH.

(j) “Effective Date”: The date that: (1) the last one of Buyer and Seller has signed or initialed this offer or the final counteroffer, if any, and (2) such signing or initialing is communicated to the party making the offer or counteroffer, as the case may be. The parties acknowledge and agree that the initials lines at the bottom of each page of this Contract are merely evidence of their having reviewed the terms of each page, and that the complete execution of such initial lines shall not be a condition of the effectiveness of this Agreement. The parties further acknowledge that the effectiveness of this Contract is not contingent on Buyer’s payment of any Earnest Money Deposit or Due Diligence Fee. See paragraph 6(a) for Seller’s remedy for any untimely delivered or dishonored funds.

(k) “Due Diligence”: Buyer’s opportunity to investigate the Property and the transaction contemplated by this Contract, including but not necessarily limited to the matters described in Paragraph 4 below, to decide whether Buyer, in Buyer’s sole discretion, will proceed with or terminate the transaction.

(l)“Due Diligence Fee”: A negotiated amount, if any, paid by Buyer to Seller with this Contract for Buyer’s right to terminate the

Contract for any reason or no reason during the Due Diligence Period. It shall be the property of Seller upon the Effective Date and shall be a credit to Buyer at Closing. The Due Diligence Fee shall be non-refundable except in the event of a material breach of this Contract by Seller, or if this Contract is terminated under Paragraph 23(b) or as otherwise provided in any addendum hereto. Buyer and Seller each expressly waive any right that they may have to deny the right to conduct Due Diligence or to assert any defense as to the enforceability of this Contract based on the absence or alleged insufficiency of any Due Diligence Fee, it being the intent of the parties to create a legally binding contract for the purchase and sale of the Property without regard to the existence or amount of any Due Diligence Fee. Seller, or Seller’s agent, may direct Buyer in writing to make the Due Diligence Fee payable to a party other than “Seller” as that term is defined herein, and Seller agrees to be bound by such written direction. See paragraph 23 for a party’s right to attorneys’ fees incurred in collecting the Due Diligence Fee.

(m) “Settlement”: The proper execution and delivery to the closing attorney of all documents necessary to complete the transaction contemplated by this Contract, including the deed, settlement statement, deed of trust and other loan or conveyance documents, and the closing attorney’s receipt of all funds necessary to complete such transaction.

(n)“Closing”: The completion of the legal process which results in the transfer of title to the Property from Seller to Buyer, which includes the following steps: (1) the Settlement (defined above); (2) the completion of a satisfactory title update to the Property following the Settlement; (3) the closing attorney’s receipt of authorization to disburse all necessary funds; and (4) recordation in the appropriate county registry of the deed(s) and deed(s) of trust, if any, which shall take place as soon as reasonably possible for the closing attorney after Settlement. Upon Closing, the proceeds of sale shall be disbursed by the closing attorney in accordance with the settlement statement and the provisions of Chapter 45A of the North Carolina General Statutes. If the title update should reveal unexpected liens, encumbrances or other title defects, or if the closing attorney is not authorized to disburse all necessary funds, then the Closing shall be suspended and the Settlement deemed delayed under paragraph 12 (Delay in Settlement/Closing).

Attorney Closings in North Carolina: The North Carolina State Bar has determined that the performance of most acts and services required for a closing constitutes the practice of law and must be conducted only by an attorney licensed to practice law in North Carolina. State law prohibits unlicensed individuals or firms from rendering legal services or advice. Although non-attorney settlement agents may perform limited services in connection with a closing, they may not perform all the acts and services required to complete a closing. Accordingly, it is the position of the North Carolina Bar Association and NC REALTORS® that all buyers should hire an attorney licensed in North Carolina to perform a closing.

(o) “Special Assessments”: A charge against the Property by a governmental authority in addition to ad valorem taxes and recurring governmental service fees levied with such taxes, or by an owners’ association in addition to any regular assessment (dues), either of which may be a lien against the Property. Buyer’s and Seller’s respective responsibilities for the payment of Special Assessments are addressed in paragraphs 6(b) and 8(k).

Page 2 of 14

STANDARD FORM 2-T

Buyer’s initials ______ ______ Seller’s initials ______ ______

Revised 7/2025

© 7/2025

2.FIXTURES AND EXCLUSIONS: The parties should not assume that an item will or will not be included in the sale based on a statement or advertisement outside this Contract. See paragraph 19 for details. Buyer and Seller should ensure this paragraph accurately reflects the entire agreement of Buyer and Seller.

(a)Fixtures Are Included in Purchase Price: ALL EXISTING FIXTURES ARE INCLUDED IN THE SALE AS PART OF THE PURCHASE PRICE, FREE OF LIENS, UNLESS EXCLUDED IN SUBPARAGRAPHS (d) OR (e).

(b)Specified Items: Buyer and Seller agree that the following items, if present on the Property on the date of the offer, shall be included in the sale as part of the Purchase Price free of liens, unless excluded in subparagraphs (d) or (e) below. ALL ITEMS LISTED BELOW

INCLUDE BOTH TRADITIONAL AND “SMART” VERSIONS AND ANY EXCLUSIVELY DEDICATED, RELATED EQUIPMENT AND/OR REMOTE CONTROL DEVICES.

Alarm and security systems (attached) for security, fire, smoke, carbon monoxide or other toxins with all related access codes, sensors, cameras, dedicated monitors, hard drives, video recorders, power supplies and cables; doorbells/chimes

All stoves/ranges/ovens; built-in appliances; attached microwave oven; vent hood

Antennas; satellite dishes and receivers

Basketball goals and play equipment (permanently attached or in-ground)

Ceiling and wall-attached fans; light fixtures (including existing bulbs)

Exercise equipment/devices that are attached

Fireplace insert; gas logs or starters; attached fireplace screens; wood or coal stoves

Floor coverings (attached)

Garage door openers

Generators that are permanently wired

Thermostats

Storage shed; utility building

Solar electric and solar water heating systems

Electric vehicle chargers

Invisible fencing with power supply

Landscape and outdoor trees and plants (except in moveable containers); raised garden; landscape and foundation lighting; outdoor sound systems; permanent irrigation systems; rain barrels; landscape water features; address markers

Mailboxes; mounted package and newspaper receptacles

Mirrors attached to walls, ceilings, cabinets or doors; all bathroom wall mirrors

Swimming pools; spas; hot tubs (excluding inflatable pools, spas, and hot tubs)

Sump-pumps, radon fans and crawlspace ventilators; de- humidifiers that are permanently wired

Surface-mounting brackets for television and speakers; recess-mounted speakers; mounted intercom system

Window/Door blinds and shades; curtain/drapery rods and brackets; door and window screens and combination doors; awnings and storm windows

Water supply equipment, including filters, conditioning and softener systems; re-circulating pumps; well pumps and tanks

(c)Unpairing/deleting data from devices: Prior to Closing, Seller shall “unpair” any devices that will convey from any personal property devices (hubs, intelligent virtual assistants, mobile devices, vehicles, etc.) with which they are paired, delete personal data from any devices that will convey, and restore all devices to factory default settings unless otherwise agreed. Seller’s obligations under this paragraph 2(c) shall survive Closing.

(d)Items Leased or Not Owned: Any item which is leased or not owned by Seller, such as antennas, satellite dishes and receivers, appliances, and alarm and security systems must be identified here and shall not convey:

____________________________________________________________________________________________________________

____________________________________________________________________________________________________________

____________________________________________________________________________________________________________

In addition, any leased fuel tank identified in paragraph 7(d) shall not convey. Any items leased or not owned by Seller that Seller wishes to convey under certain conditions – for example, if Seller wishes for Buyer to assume a fixture loan before conveying an item – should be addressed in an attorney-drafted addendum after consulting with the lender, if any.

(e)Other Items That Do Not Convey: The following items shall not convey (identify those items to be excluded under subparagraphs

(a)and (b)): _________________________________________________________________________________________________

____________________________________________________________________________________________________________

____________________________________________________________________________________________________________

Seller must repair any damage caused by removal of any items excluded above in a good and workmanlike manner. Seller will notify Buyer upon completion of such repair(s) and provide Buyer with documentation thereof, if any. Buyer is advised to consider attaching the Additional Provisions Addendum (Form 2A11-T) if Buyer has a specific request as to how the repairs should be completed.

Page 3 of 14

STANDARD FORM 2-T

Buyer’s initials ______ ______ Seller’s initials ______ ______

Revised 7/2025

© 7/2025

3.PERSONAL PROPERTY: The following personal property present on the Property on the date of the offer shall be transferred to Buyer at closing at no value. Any personal property that is part of the sale should be identified in this paragraph. Buyer is advised to consult with Buyer’s lender to assure that the Personal Property items listed here can be included:

4.BUYER’S DUE DILIGENCE PROCESS: BUYER IS STRONGLY ENCOURAGED TO CONDUCT DUE DILIGENCE DURING THE DUE DILIGENCE PERIOD. If Buyer is not satisfied with the results or progress of Buyer’s Due Diligence, Buyer should terminate this Contract prior to the expiration of the Due Diligence Period, unless Buyer can obtain a written extension from Seller. Seller is not obligated to grant an extension. If Buyer terminates outside the Due Diligence Period, Buyer may lose their Earnest Money Deposit. Buyer may continue to investigate the Property following the expiration of the Due Diligence Period as allowed under paragraphs 4 and 8(c) herein.

(a)Loan: Buyer, at Buyer’s expense, shall be entitled to pursue qualification for and approval of the Loan if any. There is no loan or appraisal contingency in this Contract. Therefore, Buyer is advised to consult with Buyer’s lender prior to signing this offer to assure that the Due Diligence Period allows sufficient time for the loan process and for Buyer’s lender to provide Buyer sufficient information to decide whether to proceed with or terminate the transaction.

(b)Property Investigation: Buyer or Buyer’s agents or representatives, at Buyer’s expense, shall be entitled to conduct all desired tests, surveys, appraisals, investigations, examinations and inspections of the Property as Buyer deems appropriate, including but NOT limited to the following:

(i)Inspections: Inspections to determine the condition of any improvements on the Property, the presence of unusual drainage conditions or evidence of excessive moisture adversely affecting any improvements on the Property, the presence of asbestos or existing environmental contamination, evidence of wood-destroying insects or damage therefrom, and the presence and level of radon gas on the Property.

(ii)Review of Documents: Review of the Declaration of Restrictive Covenants, Bylaws, Articles of Incorporation, Rules and

Regulations, and other governing documents of any applicable owners’ association and/or subdivision. If the Property is subject to regulation by an owners’ association, it is recommended that Buyer review the completed Residential Property and Owners' Association Disclosure Statement provided by Seller prior to signing this offer. It is also recommended that the Buyer determine if the owners’ association or its management company charges fees for providing information required by Buyer’s lender or confirming restrictive covenant compliance.

(iii)Insurance: Investigation of the availability and cost of insurance for the Property.

(iv)Appraisals: An appraisal of the Property.

(v)Survey: A survey to determine whether the property is suitable for Buyer’s intended use and the location of easements, setbacks, property boundaries and other issues which may or may not constitute title defects.

(vi)Zoning, Governmental Regulation, and Governmental Compliance: Investigation of current or proposed zoning or other governmental regulation that may affect Buyer’s intended use of the Property, adjacent land uses, planned or proposed road construction, and school attendance zones; and investigation of whether the Property is in violation of any law, ordinance, permit, or government regulation as outlined in paragraph 8(h).

(vii)Flood/Wetland/Water Hazard: Investigation of potential flood hazards, wetlands, or other water or riparian issues on the Property; and/or any requirement to purchase flood insurance in order to obtain a loan.

(viii)Utilities and Access: Availability, quality, and obligations for maintenance of utilities including water, sewer, electric, gas, communication services, stormwater management, and means of access to the Property and amenities.

(ix)Streets/Roads: Investigation of the status of the street/road upon which the Property fronts as well as any other street/road

used to access the Property, including: (1) whether any street(s)/road(s) are public or private, (2) whether any street(s)/road(s) designated as public are accepted for maintenance by the State of NC or any municipality, or (3) if private or not accepted for public maintenance, the consequences and responsibility for maintenance and the existence, terms and funding of any maintenance agreements.

(x)Special Assessments: Investigation of the existence of Special Assessments that may be under consideration by a governmental authority or an owners’ association.

(c)Sale/Lease of Existing Property: As noted in paragraph 5(b), unless otherwise provided in an addendum, this Contract is not conditioned upon the sale/lease or closing of other property owned by Buyer. Therefore, if Buyer must sell or lease other real property in order to qualify for a new loan or to otherwise complete the purchase of the Property, Buyer should seek to close on Buyer’s other property prior to the end of the Due Diligence Period or be reasonably satisfied that closing on Buyer's other property will take place prior to the Settlement Date of this Contract.

Page 4 of 14

STANDARD FORM 2-T

Buyer’s initials ______ ______ Seller’s initials ______ ______

Revised 7/2025

© 7/2025

(d)Repair/Improvement Negotiations/Agreement: Buyer acknowledges and understands the following: (i) Unless the parties agree otherwise, THE PROPERTY IS BEING SOLD IN ITS CURRENT CONDITION; (ii) Seller may, but is not required to, engage in negotiations for repairs/improvements to the Property. Buyer is strongly advised to make any repair/improvement requests in sufficient time to allow negotiations to be concluded prior to the expiration of the Due Diligence Period. Any agreement that the parties may reach with respect to repairs/improvements is an addition to this Contract that must be in writing and signed by the parties in accordance with Paragraph 19.

(e)Buyer’s Obligation to Repair Damage: Buyer shall, at Buyer’s expense, promptly repair any damage to the Property resulting from any activities of Buyer and Buyer’s agents and contractors, but Buyer shall not be responsible for any damage caused by accepted practices either approved by the N.C. Home Inspector Licensure Board or applicable to any other N.C. licensed professional performing reasonable appraisals, tests, surveys, examinations, and inspections of the Property. This repair obligation shall survive any termination of this Contract.

(f)Indemnity: Buyer will indemnify and hold Seller harmless from all loss, damage, claims, suits or costs, which shall arise out of any contract, agreement, or injury to any person or property as a result of any activities of Buyer and Buyer’s agents and contractors relating to the Property except for any loss, damage, claim, suit or cost arising out of pre-existing conditions of the Property and/or out of Seller’s negligence or willful acts or omissions. This indemnity shall survive this Contract and any termination hereof.

(g)Buyer’s Right to Terminate: Provided that Buyer has delivered any agreed-upon Due Diligence Fee, Buyer shall have the right to terminate this Contract for any reason or no reason; by delivering to Seller written notice of termination (the “Termination Notice”) during the Due Diligence Period (or any agreed-upon written extension of the Due Diligence Period), TIME IS OF THE ESSENCE. If Buyer timely delivers the Termination Notice, this Contract shall be terminated and the Earnest Money Deposit shall be refunded to Buyer.

(h)CLOSING SHALL CONSTITUTE ACCEPTANCE OF THE PROPERTY IN ITS THEN EXISTING CONDITION UNLESS PROVISION IS OTHERWISE MADE IN WRITING.

5.BUYER REPRESENTATIONS:

(a)Funds to complete purchase: Buyer’s obligations under this Contract are not conditioned on obtaining any loan(s) or other funds from sources other than Buyer’s own assets. Some loans and programs providing funds to Buyer may impose repair obligations or additional conditions or costs upon Seller or Buyer, and more information may be needed. Material changes to funding the purchase of the Property that affect the terms of the contract are material facts that must be disclosed.

Cash. Buyer intends to pay cash in order to purchase the Property and does not intend to obtain a loan or funds from sources other than Buyer’s own assets. If Buyer does not intend to obtain a new loan(s) and/or funds from sources other than Buyer’s own assets, Seller is advised, prior to signing this offer, to obtain documentation from Buyer which demonstrates that Buyer will be able to close on the Property without the necessity of obtaining a loan or funds from sources other than Buyer’s own assets. Verification of cash available for Settlement is is not attached.

OR:

Loan(s)/Other Funds. Buyer intends to obtain a loan(s) and/or other funds to purchase the Property from the following sources. Material changes to the following are material facts that must be disclosed. The parties should note that some loans may have repair obligations or other costs on Seller or Buyer.

Check all applicable sources:

First Mortgage Loan: Buyer intends to obtain a first mortgage loan of the following: FHA VA (attach FHA/VA Financing Addendum) Conventional USDA Other type: ________________________________________________

____________________________________________________________________________________________________

in the principal amount of _______________________ plus any financed VA Funding Fee or FHA MIP.

Second Mortgage Loan: Buyer intends to obtain a second mortgage loan as follows:

Other funds: Buyer intends to obtain funds from the following other source(s) in order to purchase the Property: _______

____________________________________________________________________________________________________

____________________________________________________________________________________________________

Page 5 of 14

STANDARD FORM 2-T

Buyer’s initials ______ ______ Seller’s initials ______ ______

Revised 7/2025

© 7/2025

(b)Other Property: This subparagraph is only a disclosure by Buyer and does not make this contract contingent on the sale of Buyer’s other property. If Buyer and Seller wish to make this Contract contingent on the sale of Buyer’s other property, then the parties should attach an attorney-drafted, custom addendum.

Buyer DOES DOES NOT have to sell or lease other real property in order to qualify for a new loan or to complete the purchase. (Complete the following only if Buyer DOES have to sell or lease other real property:)

Other Property Address: __________________________________________________________________________________

(Check if applicable) Buyer's other property IS under contract as of the date of this offer, and a copy of the contract has either been previously provided to Seller or accompanies this offer. (Buyer may mark out any confidential information, such as the purchase price and the buyer’s identity, prior to providing a copy of the contract to Seller.) Failure to provide a copy of the contract shall not prevent this offer from becoming a binding contract; however, SELLER IS STRONGLY ENCOURAGED TO OBTAIN AND REVIEW THE CONTRACT ON BUYER’S PROPERTY PRIOR TO ACCEPTING THIS OFFER.

(Check if applicable) Buyer’s other property IS NOT under contract as of the date of this offer. Buyer’s property (check only ONE of the following options):

is listed with and actively marketed by a licensed real estate broker.

will be listed with and actively marketed by a licensed real estate broker.

Buyer is attempting to sell/lease the Buyer’s Property without the assistance of a licensed real estate broker.

(c)Performance of Buyer’s Financial Obligations: To the best of Buyer’s knowledge, there are no other circumstances or conditions existing as of the date of this offer that would prohibit Buyer from performing Buyer’s financial obligations in accordance with this

Contract, except as may be specifically set forth herein.

(d)Residential Property and Owners’ Association Disclosure Statement (check only one):

Buyer has received a signed copy of the N.C. Residential Property and Owners’ Association Disclosure Statement prior to making this offer and acknowledges compliance with N.C.G.S. 47E-5 (Residential Property Disclosure Act).

Buyer has NOT received a signed copy of the N.C. Residential Property and Owners’ Association Disclosure Statement prior to making this offer and shall have the right to terminate or withdraw this Contract without penalty (including a refund of any Due Diligence Fee) prior to WHICHEVER OF THE FOLLOWING EVENTS OCCURS FIRST: (1) the end of the third calendar day following receipt of the Disclosure Statement; (2) the end of the third calendar day following the Effective Date; or (3) Settlement or occupancy by Buyer in the case of a sale or exchange.

Exempt from N.C. Residential Property and Owners’ Association Disclosure Statement because (SEE

GUIDELINES):_________________________________________________________________________________________

______________________________________________________________________________________________________.

(e)Mineral and Oil and Gas Rights Mandatory Disclosure Statement (check only one):

Buyer has received a signed copy of the N.C. Mineral and Oil and Gas Rights Mandatory Disclosure Statement prior to making this offer and acknowledges compliance with N.C.G.S. 47E-5 (Residential Property Disclosure Act).

Buyer has NOT received a signed copy of the N.C. Mineral and Oil and Gas Rights Mandatory Disclosure Statement prior to making this offer and shall have the right to terminate or withdraw this Contract without penalty (including a refund of any Due Diligence Fee) prior to WHICHEVER OF THE FOLLOWING EVENTS OCCURS FIRST: (1) the end of the third calendar day following receipt of the Disclosure Statement; (2) the end of the third calendar day following the Effective Date; or (3) Settlement or occupancy by Buyer in the case of a sale or exchange.

Exempt from N.C. Mineral and Oil and Gas Rights Mandatory Disclosure Statement because (SEE GUIDELINES): ________

________________________________________________________________________________________________________.

Buyer’s receipt of a Mineral and Oil and Gas Rights Mandatory Disclosure Statement does not modify or limit the obligations of Seller under Paragraph 8(g) of this Contract and shall not constitute the assumption or approval by Buyer of any severance of mineral and/or oil and gas rights, except as may be assumed or specifically approved by Buyer in writing. The parties are advised to consult with a NC attorney prior to signing this Contract if severance of mineral and/or oil and gas rights has occurred.

6.BUYER OBLIGATIONS:

(a)Timely Payment of Earnest Money Deposit and Due Diligence Fee; Dishonored Funds:

(i)Buyer must timely pay the Earnest Money Deposit and Due Diligence Fee. Should Buyer fail to deliver either the Due Diligence Fee or any Initial Earnest Money Deposit by their due dates, or should any check or other funds paid by Buyer be dishonored, for any reason, by the institution upon which the payment is drawn, Buyer shall have one banking day after written notice to deliver cash, official bank check, wire transfer, or electronic transfer to the payee. Form 355 may be used to demand funds from Buyer.

Page 6 of 14

STANDARD FORM 2-T

Buyer’s initials ______ ______ Seller’s initials ______ ______

Revised 7/2025

© 7/2025

(ii)In the event Buyer does not timely deliver the required funds, Seller shall have the right to terminate this Contract upon written notice to Buyer, and Seller shall be entitled to recover the Due Diligence Fee together with all Earnest Money Deposit paid or to be paid in the future. In addition, Seller may seek any remedies allowed for dishonored funds. See paragraph 23 for a party’s right to attorneys’ fees incurred in collecting the Earnest Money Deposit or Due Diligence Fee.

(iii)If the parties agree that Buyer will pay any fee or deposit described above by electronic or wire transfer, Seller agrees to cooperate in effecting such transfer, including the establishment of any necessary account and providing any necessary information to Buyer. Buyer shall be responsible for additional costs, if any, associated with such transfer.

(b)Responsibility for Special Assessments: Buyer shall take title subject to all Special Assessments that may be approved following Settlement.

(c)Responsibility for Certain Costs: Buyer shall be responsible for all costs with respect to: (i) any loan obtained by Buyer; (ii) charges by an owners’ association or a management company/vendor as agent of the association under paragraph 9(b) of this Contract; (iii) appraisal; (iv) title search; (v) title insurance; (vi) any fees charged by the closing attorney for the preparation of the Closing Disclosure, Seller Disclosure and any other settlement statement; (vii) recording the deed; and (viii) preparation and recording of all instruments required to secure the balance of the Purchase Price unpaid at Settlement.

(d)Authorization to Disclose Information: Buyer authorizes the Buyer’s lender(s), the parties’ real estate agent(s) and closing attorney:

(i)to provide this Contract to any appraiser employed by Buyer or by Buyer’s lender(s); and (ii) to release and disclose any buyer’s closing disclosure, settlement statement and/or disbursement summary, or any information therein, to the parties to this transaction, their real estate agent(s) and Buyer’s lender(s).

7. SELLER REPRESENTATIONS:

(a)Ownership: Seller has owned the Property for at least one year; has owned the Property for less than one year; or does not yet own the Property.

(b)Lead-Based Paint (check if applicable): The Property is residential and was built prior to 1978 (Attach Lead-Based Paint or Lead-Based Paint Hazards Disclosure Addendum, Form 2A9-T). IF A LEAD-BASED PAINT DISCLOSURE IS REQUIRED BUT

NOT GIVEN TO BUYER PRIOR TO SELLER’S ACCEPTANCE OF THIS OFFER, BUYER MAY NOT BE OBLIGATED TO

PURCHASE THE PROPERTY UNDER THIS CONTRACT UNDER FEDERAL LAW.

(c)Owners’ Association(s) and Dues: Seller authorizes and directs any owners’ association, any management company of the owners’ association, any insurance company and any attorney who has previously represented the Seller to release to Buyer, Buyer’s agents, representative, closing attorney and/or lender true and accurate copies of the following items affecting the Property, including any amendments: Seller’s statement of account; master insurance policy showing the coverage provided and the deductible amount; Declaration and Restrictive Covenants; Rules and Regulations; Articles of Incorporation; Bylaws of the owners’ association; current financial statement and budget of the owners’ association; parking restrictions and information; and architectural guidelines.

Name of Association 1: _________________________________________________________________________whose regular assessments (“dues”) are $_______________ per______________. The name, address and telephone number of the president of the owners’ association or the association manager is: ______________________________________________________.

Owners’ association website address, if any: ________________________________________________________________

Name of Association 2: _________________________________________________________________________whose regular assessments (“dues”) are $_______________ per______________. The name, address and telephone number of the president of the owners’ association or the association manager is: ______________________________________________________.

Owners’ association website address, if any: ________________________________________________________________

(d)Fuel Tank(s)/Fuel: To the best of Seller’s knowledge, there is is not a fuel tank(s) located on the Property. If “yes” complete the following.

(i)Description:

Tank 1: currently in use currently NOT in use

Ownership: owned leased. If leased, name and contact information of tank lessor: _________________

____________________________________________________________________________________________

Location: above ground below ground

Type of fuel: oil propane gasoline and/or diesel other: ______________________________________

Name and contact information of fuel vendor: _____________________________________________________

Page 7 of 14

STANDARD FORM 2-T

Buyer’s initials ______ ______ Seller’s initials ______ ______

Revised 7/2025

© 7/2025

Tank 2: currently in use currently NOT in use

Ownership: owned leased. If leased, name and contact information of tank lessor: _________________

____________________________________________________________________________________________

Location: above ground below ground

Type of fuel: oil propane gasoline and/or diesel other: ______________________________________

Name and contact information of fuel vendor: _____________________________________________________

(ii)Tank(s) included in sale: Buyer and Seller agree that any tank described above that is owned by Seller shall be included in the sale as part of the Purchase Price free of liens, unless excluded in paragraph 2(d) or 2(e) above.

(iii)Fuel: Seller may use fuel in the tank(s) described above through Settlement, but may not otherwise remove the fuel or resell it. Any fuel remaining in the tank(s) as of Settlement shall be included in the sale as part of the Purchase Price, free of liens.

Seller’s use of fuel in any fuel tank is subject to Seller’s obligation under Paragraph 8(c) to provide working, existing utilities through the earlier of Closing or possession by Buyer.

(iv)Inspections; Supplier Consent: Buyer shall be entitled to conduct inspections to confirm the existence, type and ownership of any fuel tank located on the Property. Buyer is advised to consult with the owner of any leased fuel tank regarding the terms under which Buyer may lease the tank and obtain fuel. State law provides that it is unlawful for any person, other than the supplier or the owner of a fuel supply tank, to disconnect, interrupt or fill the supply tank with liquefied petroleum gas (LP gas or propane) without the consent of the supplier.

(e)Leases. The Property is is not subject to any lease(s). If the Property is subject to a lease, Buyer and Seller should include either the Rental/Income/Investment Property provision in the Additional Provisions Addendum (Standard Form 2A11-T) or the Vacation Rental Addendum (Form 2A13-T) with this offer.

8.SELLER OBLIGATIONS:

(a)Evidence of Title and Payoff Statement(s):

(i)Seller agrees to use best efforts to provide to the closing attorney as soon as reasonably possible after the Effective Date, copies of all title information in possession of or available to Seller, including but not limited to: title insurance policies, attorney’s opinions on title, surveys, covenants, deeds, notes and deeds of trust, leases, and easements relating to the Property.

(ii)Seller shall provide to the closing attorney all information needed to obtain a written payoff statement from any lender(s) regarding any security interest in the Property as soon as reasonably possible after the Effective Date, and Seller designates the closing attorney as Seller’s agent with express authority to request and obtain on Seller’s behalf payoff statements and/or short- pay statements from any such lender(s).

(iii)As soon as reasonably possible after the Effective Date, Seller shall provide to the closing attorney all information needed to obtain a written statement of Seller’s account from any owners’ association or HOA management company associated with the Property. Seller designates the closing attorney as Seller’s agent with express authority to request and obtain on Seller’s behalf a written statement of Seller’s account as to the Property. Upon request from the closing attorney, Seller shall immediately pay any fees charged by the owners’ association or HOA management company for such written statement.

(b)Authorization to Disclose Information: Seller authorizes: (i) any attorney presently or previously representing Seller to release and disclose any title insurance policy in such attorney's file to Buyer and both Buyer's and Seller's agents and attorneys; (ii) the Property’s title insurer or its agent to release and disclose all materials in the Property's title insurer's (or title insurer's agent's) file to Buyer and both Buyer's and Seller's agents and attorneys and (iii) the closing attorney to release and disclose any seller’s closing disclosure, settlement statement and/or disbursement summary, or any information therein, to the parties to this transaction, their real estate agent(s) and Buyer’s lender(s).

(c)Access to Property: Seller shall provide reasonable access to the Property through the earlier of Closing or possession by Buyer, including, but not limited to, allowing Buyer and/or Buyer’s agents or representatives, an opportunity to: (i) conduct any Due Diligence, investigations, or inspections; (ii) verify the satisfactory completion of negotiated repairs/improvements; and (iii) conduct a final walk- through inspection of the Property. Seller’s obligation includes providing existing utilities operating at Seller’s cost, including any connections and de-winterizing.

(d)Removal of Seller’s Property: Seller shall remove, by the date possession is made available to Buyer, all personal property which is not a part of the purchase and all garbage and debris from the Property.

(e)Settlement Deliverables: If requested by the closing attorney, Seller shall furnish, prior to or at Settlement, the following items in a form satisfactory to Buyer and Buyer’s title insurer, if any:

(i)Affidavit and indemnification agreements or other documents that: (1) cover any potential materialman’s lien under N.C.G.S.

§ 44A-8 for labor, services, materials, or rental equipment used on the Property within 120 days of Settlement; (2) address the closing attorney’s difficulty in accessing electronic records with the register of deeds and the clerk of court; and (3) allow Buyer to obtain a title insurance policy, subject to the exceptions in paragraph 8(g) below.

Page 8 of 14

STANDARD FORM 2-T

Buyer’s initials ______ ______ Seller’s initials ______ ______

Revised 7/2025

© 7/2025

(ii)If Seller is not a foreign person as defined by the Foreign Investment in Real Property Tax Act, Seller will also provide to the closing attorney a non-foreign status certification (pursuant to the Foreign Investment in Real Property Tax Act). If Seller does not provide this certification, Seller acknowledges that there may be withholding as provided by the Internal Revenue Code.

(f)Designation of Lien Agent, Payment and Satisfaction of Liens: If required by N.C.G.S. §44A-11.1, Seller shall have designated a Lien Agent, and Seller shall deliver to Buyer as soon as reasonably possible a copy of the appointment of Lien Agent. All deeds of trust, deferred ad valorem taxes, liens and other charges against the Property, not assumed by Buyer, must be paid and satisfied by Seller prior to or at Settlement such that cancellation may be promptly obtained following Closing. Seller shall remain obligated to obtain any such cancellations following Closing.

(g)Good Title, Legal Access: Seller shall execute and deliver a GENERAL WARRANTY DEED for the Property in recordable form no later than Settlement, which shall convey fee simple marketable and insurable title, without exception for mechanics’ liens, lis pendens, monetary liens and judgments, and free of other encumbrances or defects that would materially affect the value of the Property, including those which would be revealed by a current and accurate survey of the Property, except: (i) ad valorem taxes for the current year; (ii) utility easements and unviolated covenants, conditions or restrictions; and (iii) such other liens, encumbrances or defects as may be specifically approved by Buyer in writing. The Property must have legal access to a public right of way. Buyer’s failure to conduct a survey or examine title of the Property, prior to the expiration of the Due Diligence Period does not relieve the Seller of their obligation to deliver good title under this paragraph.

(h)Governmental Compliance: It is a condition of this Contract that the Property be conveyed free of any material violation of law, ordinance, permit, or government regulation (including, but not limited to, those relating to building, stormwater, impervious surface, environmental protection, and zoning), unless Seller has specifically disclosed such violation(s) prior to the Effective Date. If Buyer establishes that a violation exists after the Effective Date and prior to Closing, then Buyer must promptly notify Seller and Seller may cure the violation(s). Unless otherwise agreed, if Seller does not cure the violation(s) prior to Closing, then Buyer may choose to accept the violation(s) and proceed to Settlement/Closing or terminate this Contract and receive a refund of the Earnest Money Deposit and the Due Diligence Fee.

(i)Deed, Taxes and Fees: Seller shall pay for preparation of a deed and all other documents necessary to perform Seller’s obligations under this Contract, and for state and county excise taxes, and any deferred, discounted or rollback taxes, and local conveyance fees required by law. The deed is to be made to: (i) Buyer; (ii) a corporation, limited liability company, or other business entity of which Buyer is the sole owner or shareholder; (iii) a trust for which Buyer is the beneficiary; (iv) any relative of Buyer; and/or (v) Other: (Insert Name(s) Only) ______________________________________________________________________________________.

(j)Owners’ Association Fees/Charges: Seller shall pay any charges by an owners’ association or a management company/vendor as agent of the association under paragraph 9(a) of this Contract.

(k)Payment of Special Assessments: Seller shall pay, in full at Settlement, all Special Assessments that are approved prior to Settlement, whether payable in a lump sum or future installments, provided that the amount thereof can be reasonably determined or estimated. The payment of such estimated amount shall be the final payment between the Parties.

(l)Late Listing Penalties: All property tax late listing penalties, if any, shall be paid by Seller.

(m)Negotiated Repairs/Improvements: Negotiated repairs/improvements shall be made in a good and workmanlike manner and Buyer shall have the right to verify same prior to Settlement.

(n)Home Warranty: (Select one of the following):

No home warranty is to be provided by Seller.

Buyer may obtain a one-year home warranty at a cost not to exceed $____________ which includes sales tax and Seller agrees to pay for it at Settlement.

Seller has obtained and will provide a one-year home warranty from _________________________________________

at a cost of $ _________ which includes sales tax and will pay for it at Settlement.

9.CHARGES BY OWNERS’ ASSOCIATION: Responsibility for payment of charges by an owners’ association or a management company/vendor as agent of the association shall be allocated between Buyer and Seller as follows:

(a)Seller shall pay:

(i)fee incurred by Seller in completing the Residential Property and Owners’ Association Disclosure Statement, and resale or other certificates related to a proposed sale of the Property;

(ii)fees required for confirming Seller’s account payment information on owners’ association dues or assessments for payment or proration, including any expedite fee permitted under N.C. Gen. Stat. § 47F-3-102 that is charged in connection with providing such information;

Page 9 of 14

STANDARD FORM 2-T

Buyer’s initials ______ ______ Seller’s initials ______ ______

Revised 7/2025

© 7/2025

(iii)any fees charged for transferring or updating ownership records of the association; and

(iv)any fees other than those fees specifically required to be paid by Buyer under paragraph 9(b) below.

(b)Buyer shall pay:

(i)charges for providing information required by Buyer’s lender;

(ii)charges for working capital contributions, membership fees, or charges imposed for Buyer’s use of the common elements and/or services provided to Buyer in connection with Buyer taking possession of the Property, such as “move-in fees”; and

(iii)charges for determining restrictive covenant compliance.

10.PRORATIONS AND ADJUSTMENTS: Unless otherwise agreed, the following items shall be prorated, with Seller responsible for the prorated amounts of any taxes and dues through the date of Settlement, and Seller entitled to the amount of prorated rents through the date of Settlement, and either adjusted between the parties or paid at Settlement:

(a)Taxes on Real Property: Ad valorem taxes and recurring governmental service fees levied with such taxes on real property shall be prorated on a calendar year basis;

(b)Taxes on Personal Property: Ad valorem taxes on personal property for the entire year shall be paid by Seller unless the personal property is conveyed to Buyer, in which case, the personal property taxes shall be prorated on a calendar year basis;

(c)Rents: Rents, if any, for the Property;

(d)Dues: Owners’ association regular assessments (dues) and other like charges.

11. CONDITION OF PROPERTY/RISK OF LOSS:

(a)Condition of Property at Settlement: If the Property is not in substantially the same or better condition at Closing as on the date of this offer, reasonable wear and tear excepted, Buyer may terminate this Contract by written notice delivered to Seller and the Due Diligence Fee and Earnest Money Deposit shall be refunded to Buyer. If the Property is not in such condition and Buyer does NOT elect to terminate this Contract, Buyer shall be entitled to receive, in addition to the Property, the proceeds of any insurance claim filed by Seller on account of any damage or destruction to the Property.

(b)Risk of Loss: The risk of loss or damage by fire or other casualty prior to Closing shall be upon Seller. Seller is advised not to cancel existing insurance on the Property until after confirming recordation of the deed.

12. DELAY IN SETTLEMENT/CLOSING: This paragraph shall apply if one party is ready, willing and able to complete Settlement on the Settlement Date (“Non-Delaying Party”) but it is not possible for the other party to complete Settlement by the Settlement Date (“Delaying Party”). In such event, the Delaying Party shall be entitled to a delay in Settlement and shall give as much notice as possible to the Non-Delaying Party and closing attorney. If the Delaying Party fails to complete Settlement and Closing within seven (7) days of the Settlement Date (including any amended Settlement Date agreed to in writing by the parties), then the Delaying Party shall be in breach and the Non-Delaying Party may terminate this Contract and shall be entitled to enforce any remedies available to such party under this Contract for the breach.

13.POSSESSION: Possession, including all means of access to the Property and transferable amenities and services (keys including mailbox keys, codes including security codes, garage door openers, electronic devices, etc.), shall be delivered upon Closing as defined in Paragraph 1(n) unless otherwise provided below:

A Buyer Possession Before Closing Agreement is attached (Standard Form 2A7-T)

A Seller Possession After Closing Agreement is attached (Standard Form 2A8-T)

Possession is subject to rights of tenant(s) (Parties should attach either Additional Provisions Addendum (Form 2A11-T) or Vacation Rental Addendum (Form 2A13-T))

14.ADDENDA: Buyer and Seller should note that real estate brokers cannot draft addenda to this Contract.

Additional Provisions Addendum (Form 2A11-T)

New Construction Addendum (Form 2A3-T)

Additional Signatures Addendum (Form 3-T)

Owners' Association Disclosure Addendum

Back-Up Contract Addendum (Form 2A1-T)

(Form 2A12-T)

FHA/VA Financing Addendum (Form 2A4-T)

Seller Financing Addendum (Form 2A5-T)

Lead-Based Paint Or Lead-Based Paint Hazard Addendum (Form 2A9-T)

Short Sale Addendum (Form 2A14-T)

Loan Assumption Addendum (Form 2A6-T)

Vacation Rental Addendum (Form 2A13-T)

Identify other attorney or party drafted addenda: __________________________________________________________________

____________________________________________________________________________________________________________

15.ASSIGNMENTS: This Contract may not be assigned without the written consent of all parties except in connection with a tax- deferred exchange, but if assigned by agreement, then this Contract shall be binding on the assignee and assignee’s heirs and successors.

Page 10 of 14

STANDARD FORM 2-T

Buyer’s initials ______ ______ Seller’s initials ______ ______

Revised 7/2025

© 7/2025

Form Specifications

Fact Name Description
Purpose The Standard Form 2-T serves as an Offer to Purchase and Contract for real estate transactions in North Carolina.
Governing Law This form is governed by North Carolina General Statutes related to real estate transactions.
Property Description The form requires detailed information about the property, including its address and legal description.
Fixtures Included Built-in appliances and other fixtures are included in the purchase price unless specifically excluded.
Earnest Money Buyers must submit an earnest money deposit, which will be held in escrow until closing or contract termination.
Loan Conditions Buyers must be able to secure a loan under specified terms, including interest rates and loan types.
Special Assessments Sellers must disclose any pending governmental or owners' association special assessments on the property.
Property Inspection Buyers have the right to inspect the property and must notify the seller of any necessary repairs within a specified timeframe.
Closing Definition Closing is defined as the date and time when the deed is recorded, marking the transfer of ownership.

Standard 2 T: Usage Guidelines

Filling out the Standard 2 T form requires attention to detail and accuracy. This form is essential for initiating a real estate transaction, so it’s important to complete each section thoroughly. Make sure you have all necessary information at hand, including property details and financial information.

  1. Start by entering your name as the Buyer at the top of the form.
  2. Next, fill in the name of the Seller.
  3. Provide a detailed description of the Property being purchased, including the street address, city, county, and state.
  4. In the Fixtures section, list any items included in the purchase price, as well as any exceptions.
  5. Identify any Personal Property included in the sale.
  6. State the total Purchase Price and break down how this amount will be paid, including earnest money and other deposits.
  7. Outline any Conditions that must be met before the sale can proceed, including loan requirements.
  8. Address any Special Assessments related to the property, noting any that are pending.
  9. Detail how Prorations and Adjustments will be handled at closing.
  10. Indicate who will pay for various Expenses related to the transaction.
  11. Specify any Fuel arrangements if applicable.
  12. Confirm that the Seller will provide necessary title information.
  13. Include information about any Labor and Material liens.
  14. Check if you have received the Property Disclosure statement and indicate your rights regarding it.
  15. Choose between the two Property Inspection alternatives and fill in the necessary details.
  16. Provide a date for Closing and any necessary details about possession.
  17. List any additional Other Provisions and Conditions that apply.
  18. Clarify the Risk of Loss provisions.
  19. Make sure to include any Assignments and specify the parties involved.
  20. Review the Survival clause to ensure understanding of what remains binding after closing.
  21. Confirm that this document represents the Entire Agreement between the parties.
  22. Complete the Notice and Execution section, ensuring all parties sign and date the form.

Your Questions, Answered

What is the Standard 2 T form?

The Standard 2 T form is a legal document used in North Carolina for real estate transactions. It serves as an offer to purchase and contract between a buyer and seller. This form outlines the terms of the sale, including the property details, purchase price, and conditions of the agreement. It is essential for both parties to understand their rights and obligations as outlined in this document.

What information is required in the Standard 2 T form?

The form requires several key pieces of information. This includes the names of the buyer and seller, the legal description of the property, the purchase price, and details about any fixtures or personal property included in the sale. Additionally, the form specifies conditions such as financing requirements and any special assessments that may apply to the property.

What happens to the earnest money deposit?

The earnest money deposit is a sum paid by the buyer to demonstrate their serious intent to purchase the property. This money is held in escrow until the sale closes. If the offer is accepted, the earnest money is credited toward the purchase price. If the contract is terminated under specific conditions, the earnest money may be refunded to the buyer. However, if the buyer breaches the contract, the seller may keep the earnest money.

Are there any contingencies in the Standard 2 T form?

Yes, the Standard 2 T form includes various contingencies that must be satisfied for the sale to proceed. These may include obtaining financing, property inspections, and appraisals. If any of these conditions are not met, the buyer may have the option to terminate the contract without penalty. It is crucial for buyers to understand these contingencies and act within the specified time frames.

What are the seller's obligations regarding the property condition?

The seller is required to ensure that the property is in substantially the same or better condition at closing as it was at the time of the offer. This means that any repairs or issues identified during inspections must be addressed unless otherwise agreed upon. The seller also must provide clear title to the property, free from liens or encumbrances, except those disclosed in the contract.

Can the Standard 2 T form be modified?

Yes, the Standard 2 T form can be modified, but any changes must be documented in writing and signed by both parties. This ensures that all modifications are legally binding. It is important to keep a record of any addenda or changes made to the original contract to avoid disputes later on.

Common mistakes

  1. Incomplete Property Information: Buyers often neglect to fill in the complete address, legal description, and other relevant details about the property. This can lead to confusion and potential legal issues down the line.

  2. Failure to Specify Fixtures: Not clearly listing included fixtures can result in disputes later. Buyers should ensure that all items they expect to be included in the sale are explicitly stated.

  3. Omitting Personal Property: Buyers sometimes forget to list personal property that they wish to include in the sale. This oversight can complicate negotiations and lead to misunderstandings.

  4. Incorrect Earnest Money Amount: Entering an incorrect amount for the earnest money deposit can create issues with the offer's acceptance. Buyers should double-check this figure before submission.

  5. Ignoring Conditions: Failing to state conditions related to financing or inspections can jeopardize the buyer's position. It is crucial to clearly outline any contingencies that must be met.

  6. Neglecting to Review Documents: Buyers often skip reviewing important documents such as the Declaration of Restrictive Covenants or By-Laws. This can lead to unexpected limitations on property use.

  7. Not Specifying Closing Date: Leaving the closing date blank or vague can lead to confusion and delays. It is essential to provide a specific date to ensure all parties are aligned.

Documents used along the form

When navigating the real estate transaction process, various forms and documents accompany the Standard 2 T form to ensure a smooth and legally sound agreement. Each document serves a specific purpose, facilitating communication and outlining responsibilities between buyers and sellers. Here’s a brief overview of some commonly used documents alongside the Standard 2 T form.

  • Residential Property Disclosure Statement: This document provides buyers with essential information about the property's condition. Sellers disclose known issues, helping buyers make informed decisions.
  • Lead-Based Paint Disclosure: Required for homes built before 1978, this form informs buyers of potential lead hazards. It aims to protect families, especially those with young children, from health risks associated with lead exposure.
  • Loan Assumption Addendum: This addendum outlines the terms under which a buyer can assume the seller's existing mortgage. It clarifies responsibilities and conditions related to the loan transfer.
  • Seller Financing Addendum: In cases where the seller provides financing to the buyer, this addendum details the terms of the loan, including interest rates and repayment schedules.
  • Escrow Agreement: This document defines the terms under which an escrow agent holds the buyer's earnest money. It ensures that funds are managed appropriately until the transaction closes.
  • Inspection Addendum: This form allows buyers to request property inspections and outlines the process for addressing any issues found during the inspection. It protects buyers by ensuring that necessary repairs are made before closing.
  • Possession Agreement: If the buyer or seller needs to occupy the property before or after closing, this agreement outlines the terms of possession, including dates and responsibilities.

Understanding these documents can empower both buyers and sellers in their real estate transactions. Each form plays a crucial role in clarifying expectations and protecting the interests of all parties involved. Familiarity with these documents can help streamline the process and reduce the likelihood of disputes.

Similar forms

The Standard 2 T form, commonly used in real estate transactions, shares similarities with various other documents in the realm of property buying and selling. Each of these documents serves a specific purpose in the transaction process, ensuring that both buyers and sellers are protected and informed. Below is a list of ten documents that are similar to the Standard 2 T form, along with a brief explanation of how they relate:

  • Purchase Agreement: Like the Standard 2 T form, a purchase agreement outlines the terms and conditions under which a buyer agrees to purchase a property from a seller, detailing price, contingencies, and closing procedures.
  • Offer to Purchase: This document initiates the buying process, similar to the Standard 2 T form. It allows buyers to formally present their intent to purchase a property, often leading to negotiations.
  • Real Estate Sales Contract: This contract is a comprehensive document that includes all terms of the sale, akin to the Standard 2 T form. It covers price, property details, and conditions, ensuring clarity for both parties.
  • Escrow Agreement: An escrow agreement, like the provisions in the Standard 2 T form regarding earnest money, outlines how funds and documents will be handled during the transaction, protecting both buyer and seller until closing.
  • Title Insurance Policy: Similar to the title evidence section in the Standard 2 T form, a title insurance policy protects buyers from potential title issues that could arise after the purchase, ensuring clear ownership.
  • Disclosure Statement: This document, often required by law, informs buyers about the condition of the property, much like the property disclosure section in the Standard 2 T form that mandates sellers to disclose known issues.
  • Loan Application: The loan application process is referenced in the Standard 2 T form regarding financing conditions. It provides lenders with necessary information to assess the buyer’s ability to finance the purchase.
  • Inspection Contingency Addendum: This addendum, similar to the inspection provisions in the Standard 2 T form, allows buyers to conduct inspections and negotiate repairs before finalizing the sale.
  • Closing Statement: The closing statement outlines all financial aspects of the transaction at closing, paralleling the financial details in the Standard 2 T form, ensuring transparency in costs and fees.
  • Lead-Based Paint Disclosure: Required for homes built before 1978, this document is similar to the property disclosure section in the Standard 2 T form, informing buyers of potential hazards related to lead paint.

Dos and Don'ts

When filling out the Standard 2 T form, there are important guidelines to follow to ensure clarity and compliance. Below are six key dos and don’ts to keep in mind:

  • Do read the entire form carefully before filling it out. Understanding all sections will help prevent mistakes.
  • Do provide accurate and complete information for the property description. This includes the street address and legal description.
  • Do specify any fixtures included in the sale clearly. This helps avoid confusion later on.
  • Do ensure that all necessary signatures are obtained. Missing signatures can delay the process.
  • Don't leave any sections blank unless instructed. If a section does not apply, clearly state "N/A" to avoid ambiguity.
  • Don't rush through the process. Take your time to review each detail, as errors can lead to significant complications.

Misconceptions

  • Misconception 1: The Standard 2 T form is only for residential properties.
  • This form can be used for various types of real estate transactions, not just residential properties. It applies to any real estate purchase in North Carolina.

  • Misconception 2: Signing the form guarantees the purchase of the property.
  • Signing the Standard 2 T form does not mean the property is purchased. It is an offer that must be accepted by the seller before it becomes a binding contract.

  • Misconception 3: The earnest money is non-refundable.
  • Earnest money can be refunded under specific conditions, such as if the offer is not accepted or if certain contingencies are not met.

  • Misconception 4: All fixtures are included in the sale automatically.
  • Not all fixtures are included; some may be excluded based on the seller's specifications in the contract. Buyers should clarify which items are included.

  • Misconception 5: The buyer is responsible for all closing costs.
  • While buyers typically pay certain costs, sellers also have responsibilities for specific expenses, such as preparing the deed and paying excise taxes.

  • Misconception 6: The buyer cannot back out once the form is signed.
  • Buyers can back out under certain conditions outlined in the contract, such as failing to secure financing or issues found during inspections.

  • Misconception 7: The seller has no obligations after signing.
  • Sellers have several obligations, including ensuring the property is in good condition and providing necessary disclosures about the property.

  • Misconception 8: There is no need for inspections if the buyer trusts the seller.
  • Buyers should always conduct inspections regardless of trust. Inspections help identify potential issues that may not be disclosed by the seller.

  • Misconception 9: The Standard 2 T form is the same as a purchase agreement.
  • The Standard 2 T form is an offer to purchase and contract, which is different from a purchase agreement. It serves as the initial step in the buying process.

Key takeaways

  • The Standard 2 T form is primarily used for real estate transactions in North Carolina.

  • It is essential to fill out the property details accurately, including the address and legal description.

  • Buyers should carefully review any restrictive covenants that might limit property use before signing.

  • Fixtures included in the sale must be clearly listed, along with any exceptions.

  • The earnest money deposit is a crucial part of the offer, showing the buyer's commitment.

  • Buyers must meet specific loan conditions to ensure financing is secured.

  • It is important to understand the closing process, including the timing and location of closing.

  • Buyers have the right to conduct inspections to assess the property’s condition before closing.

  • All parties must understand their responsibilities for expenses associated with the transaction.

  • Finally, any changes to the contract must be documented in writing and signed by all parties.