Homepage Blank New York Acp9 PDF Form
Article Guide

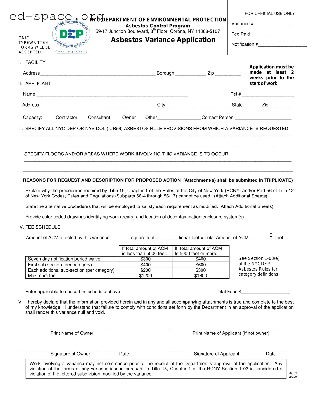
The New York ACP9 form plays a crucial role in the management of asbestos-related projects within the city. This form is specifically designed for individuals or entities seeking a variance from certain asbestos regulations enforced by the New York City Department of Environmental Protection (NYC DEP). Applicants must submit this form at least two weeks prior to the commencement of any work involving asbestos. The form requires detailed information, including the applicant's name, contact information, and the specific rules from which a variance is being requested. Furthermore, it mandates a clear explanation of why standard procedures cannot be followed and outlines alternative methods that will be implemented to ensure safety and compliance. The ACP9 also includes a fee schedule based on the amount of asbestos-containing material (ACM) affected, which varies depending on whether the total amount is less than or exceeds 5,000 square feet. It is essential to note that work cannot begin until the NYC DEP has approved the application, emphasizing the importance of following the proper procedures to avoid any legal complications. By understanding the requirements and implications of the ACP9 form, applicants can navigate the regulatory landscape more effectively and ensure their projects proceed smoothly.

Document Preview

ONLY TYPEWRITTEN FORMS WILL BE ACCEPTED

 

 

 

Y D

EPA

 

 

NYC DEPARTMENT OF ENVIRONMENTAL PROTECTION

 

 

K

CIT

 

 

 

 

 

 

RT

 

 

 

R

 

 

M

E

Asbestos Control Program

 

O

 

 

 

 

 

W

 

 

 

 

O

 

Y

 

 

 

 

N

 

 

E

 

 

 

 

T

 

N

 

 

 

 

F

59-17 Junction Boulevard, 8th Floor, Corona, NY 11368-5107

 

 

 

 

 

 

I

 

 

 

 

 

 

 

T

N

Asbestos Variance Application

N

 

 

 

 

 

 

 

 

 

 

E

 

 

 

 

 

 

 

 

 

 

 

V

R

 

 

 

 

 

 

IO

 

 

 

 

 

 

 

 

C

 

 

 

 

O

N

 

 

 

E

 

 

 

 

 

 

M

 

T

 

 

 

 

 

 

 

 

O

 

 

 

 

 

 

 

 

 

 

ENTAL PR

 

 

 

 

 

 

w w w . n y c . g o v / d e p

FOR OFFICIAL USE ONLY

Variance #_____________________

Fee Paid ___________

Notification #___________________

I. FACILITY

 

 

Application must be

Address_____________________________________________ Borough ____________ Zip __________

made

at least

2

 

 

weeks

prior to

the

II. APPLICANT

 

start of work.

 

Name ___________________________________________________________

Tel # ____________________

Address _____________________________________________ City _________________________ State ______ Zip_________

Capacity: ¸Contractor ¸Consultant ¸Owner ¸Other_________________ Contact Person ______________________

Ill. SPECIFY ALL NYC DEP OR NYS DOL (ICR56) ASBESTOS RULE PROVISIONS FROM WHICH A VARIANCE IS REQUESTED

________________________________________________________________________________________________________

________________________________________________________________________________________________________

SPECIFY FLOORS AND/OR AREAS WHERE WORK INVOLVING THIS VARIANCE IS TO OCCUR

________________________________________________________________________________________________________

_________________________________________________________________________________________________________

REASONS FOR REQUEST AND DESCRIPTION FOR PROPOSED ACTION (ATTACHMENT(S) SHALL BE SUBMITTED IN TRIPLICATE)

Explain why the procedures required by Title 15, Chapter 1 of the Rules of the City of New York (RCNY) and/or Part 56 of Title 12 of New York Codes, Rules and Regulations (Subparts 56-4 through 56-17) cannot be used. (Attach ADDITIONAL Sheets)

State the alternative procedures that will be employed to satisfy each requirement as modified. (Attach ADDITIONAL Sheets)

Provide color coded drawings identifying work area(s) and location of decontamination enclosure system(s).

IV. FEE SCHEDULE

 

 

 

 

0

Amount of ACM affected by this variance: _______ square feet + _______ linear feet = Total Amount of ACM _________ feet

 

 

 

 

 

 

 

If total amount of ACM

If total amount of ACM

 

 

 

is less than 5000 feet:

Is 5000 feet or more:

See Section 1-03(e)

Seven day notification period waiver

 

$300

$400

First sub-section (per category)

 

$400

$600

of the NYCDEP

Each additional sub-section (per category)

 

$200

$300

Asbestos Rules for

 

 

 

 

category definitions.

Maximum fee

 

$1200

$1800

 

 

Enter applicable fee based on schedule above

 

Total Fees $___________________

V.I hereby declare that the information provided herein and in any and all accompanying attachments is true and complete to the best of my knowledge. I understand that failure to comply with conditions set forth by the Department in an approval of the application shall render this variance null and void.

________________________________________________

_______________________________________________

Print Name of Owner

 

Print Name of Applicant (If not owner)

________________________________________________

_______________________________________________

Signature of Owner

Date

Signature of Applicant

Date

Work involving a variance may not commence prior to the receipt of the Department’s approval of the application. Any violation of the terms of any variance issued pursuant to Title 15, Chapter 1 of the RCNY Section 1-03 is considered a violation of the lettered subdivision modified by the variance.

ACP9 2/2001

Click here if you wish to obtain a voter registration form. Government services are not conditioned on being registered to vote. A voter registration form can also be obtained at http://nyc. gov/html/misc/html/register. html, or by calling (212) 868-3692.

Form Specifications

Fact Name Details
Form Purpose The ACP9 form is used to apply for a variance from asbestos regulations in New York City.
Submission Deadline Applications must be submitted at least two weeks prior to the start of any work involving asbestos.
Governing Laws The form is governed by Title 15, Chapter 1 of the Rules of the City of New York (RCNY) and Part 56 of Title 12 of New York Codes, Rules and Regulations.
Fee Structure Fees vary based on the amount of asbestos-containing material (ACM) affected, with a maximum fee of $1,200 for less than 5,000 feet and $1,800 for 5,000 feet or more.
Attachments Required Applicants must submit additional sheets detailing alternative procedures and color-coded drawings of work areas.
Official Use Only The form includes sections for official use, such as variance numbers and notification numbers, which are essential for tracking applications.
Compliance Statement Applicants must declare that all information provided is true and complete, understanding that non-compliance can void the variance.

New York Acp9: Usage Guidelines

Filling out the New York ACP9 form is a necessary step for those seeking a variance related to asbestos work. It is important to ensure that all sections of the form are completed accurately and submitted on time, as work involving a variance cannot commence until the Department has approved the application.

  1. Obtain a typewritten copy of the New York ACP9 form.
  2. Fill in the facility information:
    • Address
    • Borough
    • Zip Code
  3. Complete the applicant section:
    • Name
    • Telephone Number
    • Address
    • City
    • State
    • Zip Code
    • Capacity (select one: Contractor, Consultant, Owner, or Other)
    • Contact Person
  4. Specify all NYC DEP or NYS DOL asbestos rule provisions from which a variance is requested.
  5. Indicate the specific floors and/or areas where the work involving this variance is to occur.
  6. Provide reasons for the request and a description of the proposed action:
    • Explain why the standard procedures cannot be used.
    • State the alternative procedures that will be employed.
    • Attach color-coded drawings identifying work areas and decontamination systems.
  7. Complete the fee schedule section:
    • Calculate the total amount of Asbestos Containing Material (ACM) affected.
    • Select the applicable fee based on the amount of ACM.
    • Enter the total fees.
  8. Sign and date the declaration section:
    • Print the name of the owner.
    • Print the name of the applicant (if not the owner).
    • Sign and date both the owner’s and applicant’s signatures.

After completing the form, it is essential to submit it at least two weeks prior to the intended start date of the work. Ensure that all required attachments are included, as incomplete submissions may delay the approval process.

Your Questions, Answered

What is the purpose of the New York ACP9 form?

The New York ACP9 form is used to apply for a variance from specific asbestos regulations set by the NYC Department of Environmental Protection (DEP). This form is necessary when a party seeks to deviate from standard procedures outlined in the city's asbestos rules due to unique circumstances. It ensures that the applicant provides detailed information about the proposed work and the reasons for requesting the variance.

How far in advance should the ACP9 form be submitted?

The ACP9 form must be submitted at least two weeks prior to the start of the work. This timeline allows the DEP sufficient time to review the application and issue a decision. Applicants should plan accordingly to avoid any delays in their project timelines.

What information must be included in the ACP9 form?

The ACP9 form requires various details, including the applicant's contact information, the facility's address, and the specific asbestos regulations from which a variance is requested. Additionally, applicants must describe the reasons for the variance, outline alternative procedures to be used, and provide color-coded drawings of the work areas. Attachments must be submitted in triplicate.

What are the fees associated with the ACP9 form?

The fees for submitting the ACP9 form vary based on the amount of asbestos-containing material (ACM) affected. If the total amount is less than 5,000 square feet, the fee is $300 for a seven-day notification period waiver. For amounts of 5,000 square feet or more, the fee increases to $400. Additional fees apply for each sub-section of the NYCDEP asbestos rules, with a maximum fee cap of $1,200 for smaller projects and $1,800 for larger ones.

Common mistakes

  1. Using a handwritten form: The New York ACP9 form explicitly states that only typewritten forms will be accepted. Submitting a handwritten form will lead to automatic rejection.

  2. Missing the application deadline: Applications must be submitted at least two weeks prior to the start of work. Failing to meet this timeline can delay your project and result in penalties.

  3. Inaccurate fee calculations: Applicants often miscalculate the total fees based on the amount of asbestos-containing material (ACM) affected. Ensure that you understand the fee schedule and calculate accurately to avoid delays.

  4. Incomplete information: Omitting necessary details, such as specific NYC DEP or NYS DOL asbestos rule provisions from which a variance is requested, can result in a denial. Provide all requested information thoroughly.

  5. Neglecting to sign the form: Both the owner and the applicant must sign the form. A missing signature can invalidate the application, causing further delays in the approval process.

Documents used along the form

The New York ACP9 form is essential for requesting a variance related to asbestos work. However, several other documents may accompany this form to ensure compliance with regulations and facilitate the approval process. Below is a list of five commonly used forms and documents that are often submitted alongside the ACP9.

  • Asbestos Notification Form: This form serves to notify the New York City Department of Environmental Protection (DEP) about planned asbestos-related work. It must be submitted prior to the start of any asbestos abatement activities, ensuring that the department is aware of the project and can monitor compliance with safety regulations.
  • Asbestos Project Plan: This document outlines the specific procedures and methodologies that will be used during the asbestos abatement process. It includes details about the work area, the type of asbestos present, and the safety measures that will be implemented to protect workers and the environment.
  • Air Monitoring Plan: Required for projects involving asbestos, this plan details how air quality will be monitored during the abatement process. It specifies the types of monitoring equipment to be used and the frequency of air quality assessments to ensure that asbestos fibers do not pose a risk to workers or nearby residents.
  • Waste Disposal Plan: This document outlines how asbestos waste will be handled and disposed of following the completion of the project. It details the disposal methods, the locations of disposal sites, and the procedures for ensuring that waste is managed in compliance with local and federal regulations.
  • Proof of Training Certification: Contractors and workers involved in asbestos abatement must provide evidence of their training and certification. This document verifies that all personnel have received the necessary training to safely handle asbestos materials and comply with relevant safety standards.

Submitting these documents alongside the ACP9 form can help streamline the approval process and ensure that all safety and regulatory requirements are met. Proper documentation not only aids in compliance but also protects the health of workers and the community during asbestos-related projects.

Similar forms

The New York ACP9 form is essential for requesting a variance related to asbestos management. Several other documents serve similar purposes in various contexts. Here’s a list of ten documents that share similarities with the ACP9 form:

  • Asbestos Notification Form: This document notifies local authorities about asbestos-related work. Like the ACP9, it requires details about the work area and compliance with safety regulations.
  • Environmental Impact Statement (EIS): An EIS assesses the potential environmental effects of proposed projects. Both documents involve detailed explanations and justifications for deviations from standard procedures.
  • Variance Application for Building Codes: This form requests exceptions to building regulations. Similar to the ACP9, it outlines the reasons for the request and the proposed alternatives.
  • Hazardous Waste Manifest: This document tracks the disposal of hazardous waste. Both forms require specific information about the materials being handled and compliance with regulatory standards.
  • Air Quality Permit Application: This application is necessary for projects that may affect air quality. Like the ACP9, it includes a detailed description of the work and its potential impacts.
  • Construction Safety Plan: This plan outlines safety measures for construction projects. Similar to the ACP9, it requires a clear description of the work environment and safety protocols.
  • Stormwater Pollution Prevention Plan (SWPPP): This document outlines measures to prevent stormwater pollution during construction. Both forms require detailed planning and justification for deviations from standard practices.
  • Demolition Notification Form: This form informs authorities about upcoming demolition activities. Like the ACP9, it requires specific details about the site and safety measures in place.
  • Site Remediation Plan: This plan outlines steps to clean up contaminated sites. Similar to the ACP9, it includes justifications for chosen methods and compliance with environmental regulations.
  • Construction Permit Application: This application is required for obtaining permission to start construction. Both documents necessitate detailed descriptions of the work and adherence to local regulations.

Each of these documents plays a crucial role in ensuring safety and compliance in various projects, just like the New York ACP9 form does for asbestos-related work.

Dos and Don'ts

When filling out the New York ACP9 form, it’s essential to ensure that everything is done correctly. Here’s a helpful list of things to do and avoid:

  • Do use a typewriter or a computer to fill out the form. Handwritten forms will not be accepted.
  • Do submit your application at least two weeks before the work is scheduled to begin.
  • Do provide accurate and complete information for all sections, including your name, address, and contact details.
  • Do specify all relevant NYC DEP or NYS DOL asbestos rule provisions from which you are requesting a variance.
  • Do attach any necessary documents in triplicate as required, including color-coded drawings of the work area.
  • Do sign and date the application to confirm that the information is true to the best of your knowledge.
  • Don’t forget to calculate the total amount of asbestos-containing material (ACM) accurately.
  • Don’t skip any sections of the application. Each part is crucial for processing your request.
  • Don’t submit the application without reviewing it for errors or omissions.
  • Don’t commence any work until you have received approval from the Department.

Following these guidelines will help ensure that your application is processed smoothly and efficiently. Take your time, double-check your work, and you’ll be on the right track.

Misconceptions

Misconceptions about the New York ACP9 form can lead to confusion and delays in the asbestos variance application process. Here are eight common misunderstandings:

  • Only contractors can apply for a variance. Many believe that only contractors have the authority to submit the ACP9 form. In reality, property owners, consultants, and other stakeholders can also apply.
  • Typewritten forms are optional. Some individuals think that handwritten forms are acceptable. However, the rules state that only typewritten forms will be accepted, ensuring clarity and legibility.
  • Submission deadlines are flexible. There is a misconception that the two-week submission deadline is negotiable. In fact, applications must be made at least two weeks prior to the start of work to be considered.
  • All fees are the same regardless of the project size. People often assume that the fee structure is uniform. The fees vary based on the amount of asbestos-containing material (ACM) affected, making it crucial to accurately report these figures.
  • Attachments are not necessary. Some applicants believe they can submit the form without additional documentation. Detailed explanations and attachments are required to support the variance request.
  • Work can begin once the application is submitted. A common error is thinking that work can commence after submitting the ACP9 form. Approval from the Department must be received before any work involving a variance begins.
  • Variances are automatically granted. There is a belief that submitting the ACP9 form guarantees approval. Each application is evaluated on its own merits, and variances are not guaranteed.
  • All asbestos rules apply equally. Some individuals think that all regulations are the same for every project. The ACP9 form allows applicants to specify which rules they are seeking a variance from, highlighting that not all rules apply to every situation.

Understanding these misconceptions can help streamline the application process and ensure compliance with New York City’s asbestos regulations.

Key takeaways

When filling out and using the New York ACP9 form, several important points should be considered to ensure compliance and proper submission. Below are key takeaways regarding the process:

  • Typewritten Forms Only: The ACP9 form must be completed using a typewriter or typed format. Handwritten forms will not be accepted.
  • Advance Submission: Applications should be submitted at least two weeks before the intended start of work to allow for processing.
  • Accurate Information: Ensure that all information provided, including facility and applicant details, is accurate and complete.
  • Variance Requests: Clearly specify the NYC DEP or NYS DOL asbestos rule provisions from which a variance is being requested.
  • Work Area Specification: Indicate the specific floors or areas where the work involving the variance will take place.
  • Detailed Justification: Provide a thorough explanation of why standard procedures cannot be used, along with proposed alternative procedures.
  • Attachment Requirements: Attach any additional sheets or documents in triplicate as required to support the application.
  • Fee Calculation: Calculate the total fee based on the amount of asbestos-containing material (ACM) affected and the relevant fee schedule.
  • Signatures Required: Both the owner and the applicant must sign the form, indicating their agreement and understanding of the information provided.
  • No Work Before Approval: Work involving the variance cannot begin until the Department has approved the application.

Understanding these key points will facilitate a smoother application process and help avoid potential delays or violations.