Homepage Blank Mobile Home Listing Agreement PDF Form
Article Guide

The Mobile Home Listing Agreement form serves as a crucial document in the process of selling a mobile home, outlining the responsibilities and expectations of both the seller and the listing agent. This form captures essential details about the mobile home, including its year, manufacturer, model, dimensions, and specific features such as the number of bedrooms and bathrooms. Additionally, it addresses the items that will remain with the home upon sale, such as appliances and outdoor structures, ensuring clarity on what is included in the transaction. The agreement also specifies the financial aspects, detailing the cash amount the seller is willing to accept and the conditions under which possession will be transferred to the buyer. Importantly, the form grants the listing agent exclusive rights to sell the property, empowering them to act on behalf of the seller in securing a buyer. The terms of the agreement are binding, with a defined duration for the agent's authority to sell, which adds a layer of urgency to the process. By signing this document, sellers commit to working closely with their agent to achieve a successful sale, while agents are tasked with leveraging their expertise to maximize the home's market potential.

Document Preview

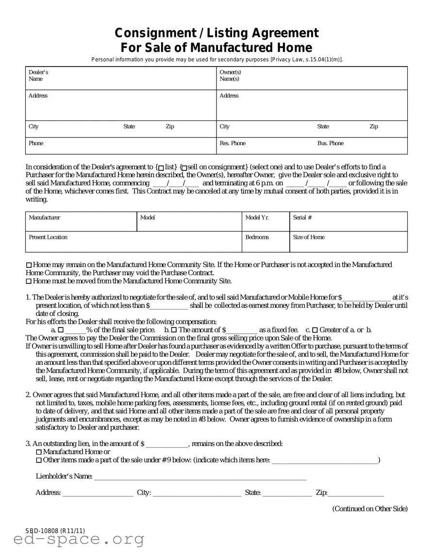
Consignment / Listing Agreement

For Sale of Manufactured Home

Personal information you provide may be used for secondary purposes [Privacy Law, s.15.04(1)(m)].

Dealer’s

 

 

Owner(s)

 

 

Name

 

 

Name(s)

 

 

 

 

 

 

 

 

Address

 

 

Address

 

 

 

 

 

 

 

 

City

State

Zip

City

State

Zip

 

 

 

 

 

 

Phone

 

 

Res. Phone

Bus. Phone

 

 

 

 

 

 

 

In consideration of the Dealer's agreement to { list} { sell on consignment} (select one) and to use Dealer’s efforts to find a Purchaser for the Manufactured Home herein described, the Owner(s), hereafter Owner, give the Dealer sole and exclusive right to sell said Manufactured Home, commencing ____/____/____ and terminating at 6 p.m. on _____ /_____ /_____ or following the sale

of the Home, whichever comes first. This Contract may be canceled at any time by mutual consent of both parties, provided it is in writing.

Manufacturer

Model

Model Yr.

Serial #

Present Location

Bedrooms

Size of Home

Home may remain on the Manufactured Home Community Site. If the Home or Purchaser is not accepted in the Manufactured Home Community, the Purchaser may void the Purchase Contract.

Home must be moved from the Manufactured Home Community Site.

1.The Dealer is hereby authorized to negotiate for the sale of, and to sell said Manufactured or Mobile Home for $______________ at it’s present location, of which not less than $___________ shall be collected as earnest money from Purchaser, to be held by Dealer until date of closing.

For his efforts the Dealer shall receive the following compensation:

a.  ______% of the final sale price. b.  The amount of $_________ as a fixed fee. c.  Greater of a. or b.

The Owner agrees to pay the Dealer the Commission on the final gross selling price upon Sale of the Home.

If Owner is unwilling to sell Home after Dealer has found a purchaser as evidenced by a written Offer to purchase, pursuant to the terms of this agreement, commission shall be paid to the Dealer. Dealer may negotiate for the sale of, and to sell, the Manufactured Home for an amount less than that specified above or upon different terms provided the Owner consents in writing and Purchaser is accepted by the Manufactured Home Community, if applicable. During the term of this agreement and as provided in #8 below, Owner shall not sell, lease, rent or negotiate regarding the Manufactured Home except through the services of the Dealer.

2.Owner agrees that said Manufactured Home, and all other items made a part of the sale, are free and clear of all liens including, but not limited to, taxes, mobile home parking fees, assessments, license fees, etc., including ground rental (if on rented ground) paid to date of delivery, and that said Home and all other items made a part of the sale are free and clear of all personal property judgments and encumbrances, except as may be noted in #3 below. Owner agrees to furnish evidence of ownership in a form satisfactory to Dealer and purchaser.

3.An outstanding lien, in the amount of $ ____________, remains on the above described:

Manufactured Home or

Other items made a part of the sale under # 9 below: (indicate which items here: ______________________________)

Lienholder’s Name: ____________________________________________________________

Address: ____________________ City: _________________________ State: ______________ Zip:________________

(Continued on Other Side)

SBD-10808 (R11/11)

4.Payment of Dealer's commission shall be due and payable upon closing of any contract to sell or sale made, and Dealer shall have an equitable lien upon said Home and upon the proceeds in whole or in part of from said sale until Dealer’s commission is paid in full.

5.Owner grants Dealer exclusive marketing rights for the Manufactured Home. Such rights include but are not limited to insertion of radio, television and newspaper ads, and placement of “For Sale” signs. If Owner unilaterally terminates or otherwise interferes with this agreement prior to the agreed upon termination date found above in this agreement, Owner agrees to pay Dealer

______% of the sale price stated in # 1 above as liquidated damages.

6.Property loss and liability insurance relative to the Manufactured Home described above shall, during the life of this agreement, regardless of the location of the home, be the responsibility of:

Current Owner listed above.  Other (Explain) ______________________________________________

Dealer listed above.

7.The Dealer assumes no responsibility for warranties either expressed or implied. The current Owner is solely responsible for all statements and claims related to quality, serviceability, functions, condition, past ownership, warranties, express or implied, regarding the above described Manufactured Home or other items made a part of the sale under # 9. Owner acknowledges that the sale of this consigned Manufactured Home is subject to the Dealer license provisions of SPS 305 of the Wisconsin Administrative Code. A used Manufactured Home is required to be inspected under the Code. The inspection creates no warranties, express or implied, based on the inspection by the Dealer or inspector. Owner acknowledges that technical knowledge such as that acquired by professional inspectors may be required to detect certain defects such as but not limited to asbestos, building code violations and floodplain status. Dealer is not providing professional inspection services.

8.If the Home is sold within six months after the expiration of this agreement to any person with whom the Dealer or any authorized agent has negotiated or shown the Home prior to the expiration of this agreement, Owner agrees to pay Dealer the commission set forth in this agreement.

9.Other Provisions and Additional Items included in Sale:

 Stove  Refrigerator  Microwave  Washer  Dryer  Curtains or blinds  Utility Shed  Air conditioner

Satellite Dish  Other:__________________________________________________________________________________

_____________________________________________________________________________________________________

10. Occupancy by purchaser may occur within _______ { days} { hours} (select one) of Purchaser’s closing with Dealer, or

Owner will pay $________ rent/day to the purchaser.

11.Owner agrees to indemnify and hold harmless Dealer in any dispute between Owner and any buyer or prospective buyer including any dispute arising from representations made by Dealer based upon information provided by Owner or Buyer, provided those representations were communicated in good faith.

Dated this _____ day of __________ , _________.

Dealer: _________________________________ Accepted by:_______________________________ (Sales representative)

(Print and Sign Form)

(Print and Sign Form)

Owner:_________________________________

Owner:_______________________________

(Print and Sign Form)

(Print and Sign Form)

SBD-10808 (R11/11)

Form Specifications

Fact Name Description
Purpose The Mobile Home Listing Agreement is designed to establish a formal relationship between the seller and the listing agent for the sale of a mobile home.
Exclusive Rights The seller grants the listing agent exclusive rights to sell the property, allowing the agent to act on behalf of the seller without additional compensation.
Owner Information The form collects essential information about the legal owner, including contact details and bank information, to facilitate the sale process.
Mobile Park Details Specific information about the mobile park, such as rent, space number, and park manager contact, is required to inform potential buyers.
Items Included The agreement outlines items that remain with the mobile home upon sale, ensuring clarity on what is included in the transaction.
Possession Timeline Possession of the property must be delivered to the buyer no later than fourteen days after closing, unless otherwise agreed upon in writing.
Commission Structure The agreement allows the listing agent to retain a commission or fee from the sale, which is not specified in the document but is acknowledged by the seller.
Governing Law This agreement is subject to the laws governing real estate transactions in the state where the mobile home is located, which may vary by state.

Mobile Home Listing Agreement: Usage Guidelines

To fill out the Mobile Home Listing Agreement form, follow the steps below. Ensure that all information is accurate and complete to avoid any issues later.

  1. Listing Company/Agent: Write the name of the listing company or agent at the top of the form.
  2. Address: Fill in the address of the listing company or agent.
  3. Phone Number: Provide the phone number of the listing company or agent.
  4. MOBILE PARK INFORMATION: Enter the rent amount, space number, park address, city, and zip code.
  5. Type of Park: Specify the type of mobile park.
  6. Park Manager: Write the name of the park manager.
  7. Park Phone Number: Fill in the phone number of the park manager.
  8. Park Address: Provide the address of the mobile park.
  9. OWNER INFORMATION: Enter the legal owner's name and phone number.
  10. Bank Information: Fill in the name of the bank, its address, city, state, and zip code.
  11. Account Number: Provide the account number.
  12. Payoff Amount: Enter the payoff amount.
  13. Good Through: Specify the date through which the payoff is valid.
  14. Per Diem: Enter the per diem amount.
  15. MOBILE HOME INFORMATION: Fill in the year, manufacturer, model, serial number, color, width, length, number of beds, and number of baths.
  16. Accessories: List any accessories or special equipment included for sale.
  17. ITEMS REMAINING WHEN SOLD: Check the items that will remain when sold, such as the refrigerator, range, and others. Specify any additional items in the "Other" section.
  18. Cash to Seller: Write the cash amount the seller is willing to accept.
  19. Possession: Note that possession of the property is to be delivered no later than fourteen days after close of escrow.
  20. LISTING AGREEMENT: Fill in the date and mutually agreed price, along with the expiration date of the agreement.
  21. Commission: Acknowledge that the listing agent will retain a specific commission from the sale.

Your Questions, Answered

What is the purpose of the Mobile Home Listing Agreement?

The Mobile Home Listing Agreement serves as a formal contract between the seller of a mobile home and a listing agent or company. This document outlines the terms under which the agent is authorized to sell the mobile home on behalf of the seller. It specifies important details such as the sale price, property information, and any items included in the sale. By signing this agreement, the seller grants the agent exclusive rights to market and sell the property, ensuring a clear understanding of the roles and responsibilities involved in the transaction.

What information is required from the seller in this agreement?

The seller must provide several key pieces of information in the Mobile Home Listing Agreement. This includes the legal owner's name and contact information, as well as details about the mobile home itself, such as its year, manufacturer, model, and dimensions. Additionally, the seller must disclose any accessories or special equipment included in the sale. This information is crucial for accurately representing the property to potential buyers and ensuring a smooth sales process.

How does the listing agent's commission work?

In the Mobile Home Listing Agreement, the seller agrees that the listing agent will retain a specific commission or fee from the sale. This commission is typically calculated as a percentage of the sale price and is paid to the agent upon the successful sale of the mobile home. The agreement specifies that the selling agent may also retain any proceeds from the sale that exceed the agreed price with the seller. This structure incentivizes the agent to secure the best possible sale price for the property.

What happens if the mobile home does not sell?

If the mobile home does not sell during the term of the agreement, the seller has a few options. The agreement typically includes a specific duration during which the agent has the exclusive right to sell the property. Once this period expires, the seller may choose to renew the agreement, seek a different agent, or decide to sell the property independently. It is essential for the seller to review the terms regarding termination or renewal to understand their options clearly.

Are there any items that can be excluded from the sale?

Yes, the Mobile Home Listing Agreement allows sellers to specify items that are not included in the sale of the mobile home. The seller must check or list any items that will remain with the property when sold, such as appliances or fixtures. Conversely, any additional items that the seller wishes to exclude should be clearly noted in the "Other" section of the agreement. This clarity helps prevent misunderstandings between the seller and potential buyers regarding what is included in the sale.

What is the process for transferring possession of the mobile home?

The agreement stipulates that possession of the mobile home must be delivered to the buyer no later than fourteen days after the close of escrow or funding. This timeline ensures that both the seller and buyer have a clear understanding of when the transfer of ownership will occur. If there are any specific arrangements or changes to this timeline, they must be documented in writing and agreed upon by both parties to avoid any confusion or disputes.

Common mistakes

  1. Incomplete Information: Failing to provide all required details can lead to delays. Ensure that every section, such as the Listing Company/Agent and Owner Information, is fully completed.

  2. Incorrect Financial Details: Double-check the financial sections, including Cash to Seller and Payoff. Errors in these amounts can complicate the sale process.

  3. Neglecting to List Items: Be thorough when indicating which items remain with the mobile home. If any items are not included in the checklist, they should be clearly noted in the Other section.

  4. Missing Signatures: All necessary parties must sign the agreement. Without signatures from both the Seller and the Listing Agent, the contract is not valid.

  5. Ignoring Dates: Pay attention to the dates specified in the agreement. Ensure that the Good Through date and the irrevocable date are accurately filled in to avoid confusion.

Documents used along the form

The Mobile Home Listing Agreement form is a crucial document in the sale of mobile homes. Several other forms and documents often accompany it to ensure a smooth transaction. Below is a list of commonly used documents that support the listing agreement.

  • Purchase Agreement: This document outlines the terms and conditions under which the buyer agrees to purchase the mobile home. It includes details such as the purchase price, payment terms, and any contingencies that must be met before the sale is finalized.
  • Disclosure Statement: Sellers must provide this document to inform potential buyers of any known issues or defects with the mobile home. It ensures transparency and helps protect both parties in the transaction.
  • Title Transfer Form: This form is necessary for transferring ownership of the mobile home from the seller to the buyer. It includes information about the mobile home and the parties involved in the sale.
  • Bill of Sale: This document serves as proof of the transaction. It includes details about the sale, such as the purchase price and the date of transfer, and is signed by both the buyer and seller.
  • Financing Agreement: If the buyer requires financing to purchase the mobile home, this document outlines the terms of the loan, including interest rates, repayment schedules, and any collateral involved.
  • Inspection Report: A professional inspection report may be requested by the buyer to assess the condition of the mobile home. This report provides valuable information about any repairs needed or potential issues that may arise.

These documents work together to facilitate the sale process and ensure that both the seller and buyer are protected. It is essential for all parties to understand each document's purpose and implications to achieve a successful transaction.

Similar forms

  • Real Estate Listing Agreement: Much like the Mobile Home Listing Agreement, this document grants a real estate agent the exclusive right to sell a property. It outlines the responsibilities of the agent and the seller, including commission rates and terms of sale. Both agreements aim to facilitate a smooth transaction between the seller and potential buyers.
  • Exclusive Buyer Representation Agreement: This document establishes a relationship between a buyer and a real estate agent. Similar to the Mobile Home Listing Agreement, it outlines the agent's duties, the buyer's obligations, and the terms under which the agent will be compensated. Both agreements ensure that all parties are clear on their roles during the transaction.
  • Lease Agreement: A lease agreement outlines the terms under which a tenant can occupy a property, similar to how the Mobile Home Listing Agreement specifies the terms of selling a mobile home. Both documents include details about the property, financial obligations, and the rights and responsibilities of each party involved.
  • Purchase Agreement: This document is essential when a buyer is ready to purchase a property. It is akin to the Mobile Home Listing Agreement in that it details the terms of the sale, including price, contingencies, and timelines. Both agreements are crucial for ensuring that all parties are aligned on the specifics of the transaction.
  • Property Management Agreement: This agreement outlines the relationship between a property owner and a management company. Like the Mobile Home Listing Agreement, it details the responsibilities of each party and the financial arrangements involved. Both documents are designed to protect the interests of the property owner while facilitating management or sale processes.

Dos and Don'ts

When filling out the Mobile Home Listing Agreement form, it is important to follow specific guidelines to ensure accuracy and compliance. Below is a list of dos and don'ts to consider.

  • Do provide complete and accurate information for all required fields, including your name, address, and contact details.
  • Do clearly specify the details of the mobile home, such as the year, manufacturer, model, and serial number.
  • Do list all items included in the sale, ensuring they are free from liens or encumbrances.
  • Do review the terms of the agreement carefully before signing, including the commission structure for the listing agent.
  • Don't leave any fields blank; incomplete forms may delay the listing process.
  • Don't misrepresent the condition or features of the mobile home; honesty is crucial for a successful sale.
  • Don't forget to specify the agreed-upon price clearly, as well as any additional terms that may apply.
  • Don't sign the agreement without confirming that all parties involved understand and agree to the terms.

Misconceptions

Here are four common misconceptions about the Mobile Home Listing Agreement form:

  • Misconception 1: The form is only for real estate agents.
  • Many people believe that only licensed real estate agents can use this form. In reality, anyone looking to sell their mobile home can fill out this agreement with the help of an agent.

  • Misconception 2: Signing the agreement means you must sell your home immediately.
  • Some sellers think that signing the agreement forces them to sell right away. However, the agreement allows sellers to set their own timeline for selling.

  • Misconception 3: The seller has no control over the sale price.
  • There is a belief that the listing agent sets the sale price without input from the seller. In fact, the seller and agent agree on a price before the listing goes live.

  • Misconception 4: All items in the home must be sold with it.
  • Some sellers worry that they must sell all their belongings with the mobile home. The agreement specifies which items are included, allowing sellers to keep personal items if they choose.

Key takeaways

When filling out and using the Mobile Home Listing Agreement form, it’s important to keep several key points in mind:

  • Complete All Sections: Ensure every section of the form is filled out accurately. Missing information can delay the selling process.
  • Understand Your Obligations: By signing, you grant the listing agent exclusive rights to sell your property. This means you cannot sell the home through another agent during the agreement period.
  • Detail Included Items: Clearly list all accessories and items that come with the sale. This avoids confusion later and ensures buyers know what they are purchasing.
  • Review Financial Terms: Pay close attention to the cash amount you are willing to accept and any liens or encumbrances on the property. This affects your net proceeds.
  • Know the Timeline: Possession of the property should be delivered within 14 days after closing. Make sure you are prepared for this timeline.

By following these takeaways, you can navigate the Mobile Home Listing Agreement more effectively and ensure a smoother selling experience.