Homepage Blank Michigan Property Transfer Affidavit 2766 PDF Form
Article Guide

The Michigan Property Transfer Affidavit 2766 form plays a crucial role in real estate transactions within the state. When a property changes hands, this form must be completed to report the transfer to the local tax assessor. It captures essential information about the property, such as its legal description, the names of the buyer and seller, and the sale price. By providing this information, the form helps ensure that property taxes are accurately assessed based on the current ownership and market value. Additionally, the affidavit serves as a declaration that the information provided is true and complete, which is vital for maintaining transparency in property dealings. Failure to file this form can lead to penalties or complications in the transfer process. Understanding its requirements and implications is essential for both buyers and sellers navigating the Michigan real estate market.

Document Preview

 

 

 

 

 

 

 

 

 

 

 

 

Reset Form

 

 

 

 

 

 

 

 

 

 

 

 

 

 

 

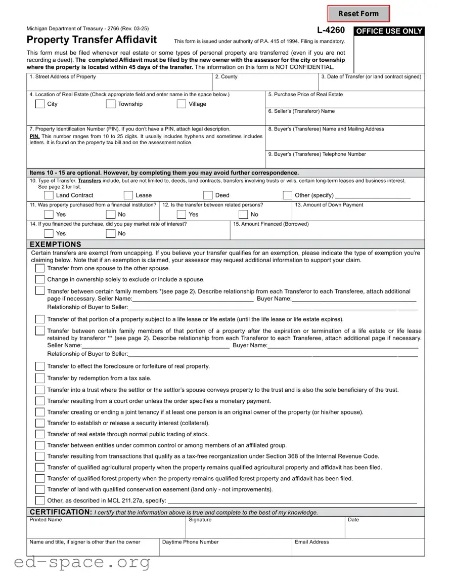
Michigan Department of Treasury - 2766 (Rev. 03-25)

 

 

 

 

 

L-4260

OFFICE USE ONLY

 

 

 

 

 

 

 

 

 

 

Property Transfer Affidavit

This form is issued under authority of P.A. 415 of 1994. Filing is mandatory.

 

 

 

 

This form must be filed whenever real estate or some types of personal property are transferred (even if you are not

 

 

recording a deed). The completed Affidavit must be filed by the new owner with the assessor for the city or township

 

 

where the property is located within 45 days of the transfer. The information on this form is NOT CONFIDENTIAL.

 

 

 

 

 

 

 

 

 

 

 

 

 

 

 

 

 

1. Street Address of Property

 

 

 

 

 

2. County

 

 

3. Date of Transfer (or land contract signed)

 

 

 

 

 

 

 

 

 

 

 

 

 

 

4. Location of Real Estate (Check appropriate field and enter name in the space

below.)

5.

Purchase Price of

Real Estate

 

 

 

 

City

 

Township

 

 

Village

 

 

 

 

 

 

 

 

 

 

 

 

 

 

 

 

 

 

 

 

 

 

 

 

 

 

6.

Seller’s (Transferor) Name

 

 

 

 

 

 

 

 

 

 

 

 

 

 

 

 

7. Property Identification Number (PIN). If you don’t have a PIN, attach legal description.

8.

Buyer’s (Transferee) Name and Mailing Address

PIN. This number ranges from 10 to 25 digits. It usually includes hyphens and sometimes includes

 

 

 

 

 

 

letters. It is found on the property tax bill and on the assessment notice.

 

 

 

 

 

 

 

 

 

 

 

 

 

 

 

 

 

 

 

 

 

 

 

 

 

 

 

 

 

 

9.

Buyer’s (Transferee) Telephone Number

 

 

 

 

 

 

 

 

 

 

 

 

 

 

 

Items 10 - 15 are optional. However, by completing them you may avoid further correspondence.

10.Type of Transfer. Transfers include, but are not limited to, deeds, land contracts, transfers involving trusts or wills, certain long-term leases and business interest.

See page 2 for list.

Land Contract

Lease

Deed

Other (specify) _______________________

11. Was property purchased from a financial institution?

12. Is the transfer between related persons?

13. Amount of Down Payment

 

 

Yes

 

No

 

 

Yes

 

 

No

 

 

 

 

 

 

 

 

 

 

 

 

 

14. If you financed the purchase, did you pay market rate

of interest?

15. Amount Financed (Borrowed)

 

 

Yes

 

No

 

 

 

 

 

 

 

 

 

 

 

 

 

 

 

 

 

EXEMPTIONS

Certain transfers are exempt from uncapping. If you believe your transfer qualifies for an exemption, please indicate the type of exemption you’re claiming below. Note that if an exemption is claimed, your assessor may request additional information to support your claim.

Transfer from one spouse to the other spouse.

Change in ownership solely to exclude or include a spouse.

Transfer between certain family members *(see page 2). Describe relationship from each Transferor to each Transferee, attach additional page if necessary. Seller Name:_____________________________________ Buyer Name:______________________________________

Relationship of Buyer to Seller:________________________________________________________________________________________

Transfer of that portion of a property subject to a life lease or life estate (until the life lease or life estate expires).

Transfer between certain family members of that portion of a property after the expiration or termination of a life estate or life lease retained by transferor ** (see page 2). Describe relationship from each Transferor to each Transferee, attach additional page if necessary. Seller Name:_____________________________________________ Buyer Name:______________________________________________

Relationship of Buyer to Seller:________________________________________________________________________________________

Transfer to effect the foreclosure or forfeiture of real property.

Transfer by redemption from a tax sale.

Transfer into a trust where the settlor or the settlor’s spouse conveys property to the trust and is also the sole beneficiary of the trust.

Transfer resulting from a court order unless the order specifies a monetary payment.

Transfer creating or ending a joint tenancy if at least one person is an original owner of the property (or his/her spouse).

Transfer to establish or release a security interest (collateral).

Transfer of real estate through normal public trading of stock.

Transfer between entities under common control or among members of an affiliated group.

Transfer resulting from transactions that qualify as a tax-free reorganization under Section 368 of the Internal Revenue Code.

Transfer of qualified agricultural property when the property remains qualified agricultural property and affidavit has been filed. Transfer of qualified forest property when the property remains qualified forest property and affidavit has been filed.

Transfer of land with qualified conservation easement (land only - not improvements).

Other, as described in MCL 211.27a, specify: ____________________________________________________________________________

CERTIFICATION: I certify that the information above is true and complete to the best of my knowledge.

Printed Name

Signature

Date

Name and title, if signer is other than the owner

Daytime Phone Number

Email Address

2766, Page 2

Instructions:

This form must be filed when there is a transfer of real property or one of the following types of personal property:

Buildings on leased land.

Leasehold improvements, as defined in MCL Section 211.8(h).

Leasehold estates, as defined in MCL Section 211.8(i) and (j).

Transfer of ownership means the conveyance of title to or a present interest in property, including the beneficial use of the property. For complete descriptions of qualifying transfers, please refer to MCL Section 211.27a(6)(a-j).

Excerpts from Michigan Compiled Laws (MCL), Chapter 211

**Section 211.27a(7)(d): Beginning December 31, 2014, a transfer of that portion of residential real property that had been subject to a life estate or life lease retained by the transferor resulting from expiration or termination of that life estate or life lease, if the transferee is the transferor’s or transferor’s spouse’s mother, father, brother, sister, son, daughter, adopted son, adopted daughter, grandson, or granddaughter and the residential real property is not used for any commercial purpose following the transfer. Upon request by the department of treasury or the assessor, the transferee shall furnish proof within 30 days that the transferee meets the requirements of this subdivision. If a transferee fails to comply with a request by the department of treasury or assessor under this subdivision, that transferee is subject to a fine of $200.00.

*Section 211.27a(7)(u): Beginning December 31, 2014, a transfer of residential real property if the transferee is the transferor’s or the transferor’s spouse’s mother, father, brother, sister, son, daughter, adopted son, adopted daughter, grandson, or granddaughter and the residential real property is not used for any commercial purpose following the conveyance. Upon request by the department of treasury or the assessor, the transferee shall furnish proof within 30 days that the transferee meets the requirements of this subparagraph. If a transferee fails to comply with a request by the department of treasury or assessor under this subparagraph, that transferee is subject to a fine of $200.00.

Section 211.27a(10): “... the buyer, grantee, or other transferee of the property shall notify the appropriate assessing office in the local unit of government in which the property is located of the transfer of ownership of the property within 45 days of the transfer of ownership, on a form prescribed by the state tax commission that states the parties to the transfer, the date of the transfer, the actual consideration for the transfer, and the property’s parcel identification number or legal description.”

Section 211.27(6): “Except as otherwise provided in subsection (7), the purchase price paid in a transfer of property is not the presumptive true cash value of the property transferred. In determining the true cash value of transferred property, an assessing officer shall assess that property using the same valuation method used to value all other property of that same classification in the assessing jurisdiction.”

Penalties:

Section 211.27b(1): “If the buyer, grantee, or other transferee in the immediately preceding transfer of ownership of property does not notify the appropriate assessing office as required by section 27a(10), the property’s taxable value shall be adjusted under section 27a(3) and, subject to subsection (9), all of the following must be levied:

(a)Any additional taxes that would have been levied if the transfer of ownership had been recorded as required under this act from the date of transfer.

(b)Interest and penalty from the date the tax would have been originally levied.

(c)For property classified under section 34c as either industrial real property or commercial real property, a penalty in the following amount:

(i)Except as otherwise provided in subparagraph (ii), if the sale price of the property transferred is $100,000,000.00 or less, $20.00 per day for each separate failure beginning after the 45 days have elapsed, up to a maximum of $1,000.00.

(ii)If the sale price of the property transferred is more than $100,000,000.00, $20,000.00 after the 45 days have elapsed.

(d)For real property other than real property classified under section 34c as industrial real property or commercial real property, a penalty of $5.00 per day for each separate failure beginning after the 45 days have elapsed, up to a maximum of one of the following, as applicable:

(i)For property owned and occupied as a principal residence, $200.00. As used in subparagraph, “principal residence” means that term as defined in section 7dd.

(ii)For all other property, $4000.00

Form Specifications

Fact Name Details
Purpose The Michigan Property Transfer Affidavit 2766 form is used to report property transfers to the local tax assessor.
Governing Law This form is governed by the Michigan Compiled Laws, specifically MCL 211.27a.
Who Must File Property owners or their agents must file the form when a property is sold or transferred.
Filing Deadline The form must be filed within 45 days of the property transfer.
Information Required Details such as the property address, sale price, and buyer/seller information are required.
Form Availability The form is available online through the Michigan Department of Treasury website or local assessor's offices.
Signature Requirement The form must be signed by the seller or their authorized representative.
Confidentiality Information provided is generally considered public, but certain details may be kept confidential.
Penalties for Non-Compliance Failure to file the form may result in penalties or delayed property tax assessments.
Local Assessors Local assessors use the information for property tax assessments and to maintain accurate records.

Michigan Property Transfer Affidavit 2766: Usage Guidelines

Filling out the Michigan Property Transfer Affidavit 2766 form is a straightforward process. This form is essential when transferring property ownership in Michigan. After completing the form, you will need to submit it to the appropriate local government office to ensure the transfer is officially recognized.

  1. Obtain the Michigan Property Transfer Affidavit 2766 form. You can find it online or at your local government office.
  2. Read the instructions on the form carefully to understand the required information.
  3. Fill in the property address in the designated section.
  4. Provide the names and addresses of the buyer(s) and seller(s). Ensure all names are spelled correctly.
  5. Indicate the date of the transfer.
  6. Complete the section regarding the sale price or the assessed value of the property.
  7. Sign and date the form. Make sure to include any required witness signatures if applicable.
  8. Make a copy of the completed form for your records.
  9. Submit the original form to your local assessor's office or the designated authority.

Your Questions, Answered

What is the Michigan Property Transfer Affidavit 2766 form?

The Michigan Property Transfer Affidavit 2766 form is a document that property owners must complete when transferring property ownership in Michigan. It provides essential information about the property, including its value, and helps ensure that the local tax assessor has accurate data for property tax purposes.

Who needs to fill out the Property Transfer Affidavit 2766 form?

The form must be completed by anyone who sells or transfers property in Michigan. This includes individual homeowners, real estate agents, and businesses involved in property transactions. It is important for both buyers and sellers to understand their responsibilities regarding this form.

When is the Property Transfer Affidavit 2766 form due?

The affidavit should be submitted to the local tax assessor's office within 45 days of the property transfer. Timely submission helps ensure that the property is assessed correctly and that any changes in ownership are reflected in tax records.

What information is required on the form?

The form requires details such as the property address, the names of the buyer and seller, the sale price, and any exemptions that may apply. Accurate information is crucial to avoid issues with property tax assessments in the future.

What happens if the form is not submitted?

If the Property Transfer Affidavit 2766 form is not submitted, the local tax assessor may not have the correct information about the property. This could lead to incorrect property tax assessments, which might result in higher taxes than necessary for the new owner.

Can I submit the form electronically?

Some counties in Michigan may allow electronic submission of the Property Transfer Affidavit 2766 form. However, this varies by location. It is advisable to check with the local tax assessor's office to find out if electronic submission is an option in your area.

Where can I obtain the Property Transfer Affidavit 2766 form?

The form can be obtained from the Michigan Department of Treasury's website or directly from your local tax assessor's office. It is essential to use the most current version of the form to ensure compliance with state regulations.

Common mistakes

  1. Missing Signatures: One of the most common mistakes is forgetting to sign the form. Both the buyer and seller must provide their signatures. Without these, the affidavit is considered incomplete.

  2. Incorrect Property Description: Failing to accurately describe the property can lead to complications. Ensure that the address, parcel number, and legal description are correct and match official records.

  3. Omitting Transfer Date: Not including the date of transfer is another frequent error. This date is crucial as it establishes when the ownership officially changes hands.

  4. Incorrect Tax Information: Many people overlook the need to provide accurate tax identification numbers. This information is essential for the local tax authority to process the transfer correctly.

  5. Failure to Disclose Exemptions: If there are any exemptions that apply to the transfer, failing to mention them can result in issues. Be sure to check for any applicable exemptions and include them in the form.

  6. Not Keeping Copies: After submitting the affidavit, some forget to keep a copy for their records. Retaining a copy is important for future reference and may be needed for tax purposes.

  7. Ignoring Filing Deadlines: Lastly, missing the deadline for filing the affidavit can lead to penalties. It’s important to be aware of and adhere to the required timelines for submission.

Documents used along the form

The Michigan Property Transfer Affidavit 2766 form is an essential document used during real estate transactions in Michigan. When dealing with property transfers, several other forms and documents often accompany this affidavit to ensure a smooth process. Below is a list of some commonly used documents that can be helpful in property transactions.

  • Warranty Deed: This document transfers ownership of the property from the seller to the buyer, guaranteeing that the seller holds clear title to the property.
  • Quit Claim Deed: Unlike a warranty deed, this form transfers whatever interest the seller has in the property without any guarantees about the title's validity.
  • Title Insurance Policy: This policy protects the buyer from any future claims against the property that may arise due to title issues.
  • Purchase Agreement: This contract outlines the terms of the sale, including the price and any contingencies that must be met before the sale is finalized.
  • Property Disclosure Statement: Sellers are required to provide this document, which discloses any known issues or defects with the property.
  • Closing Statement: This document summarizes the financial aspects of the transaction, including the purchase price, closing costs, and any adjustments.
  • Affidavit of Title: This sworn statement confirms that the seller is the rightful owner and that there are no outstanding liens or claims against the property.
  • Mortgage Documents: If the buyer is financing the purchase, these documents outline the terms of the mortgage loan and the buyer's obligations.

Understanding these documents can significantly ease the process of transferring property. Each plays a unique role in ensuring that all parties are protected and that the transaction proceeds smoothly. Familiarity with these forms will help you navigate the complexities of real estate transactions in Michigan.

Similar forms

The Michigan Property Transfer Affidavit 2766 form is used to report property transfers and is similar to several other documents in terms of purpose and function. Here are ten documents that share similarities:

  • Real Estate Transfer Declaration: This form is often required when real property is sold or transferred, detailing the sale price and property description.
  • Quit Claim Deed: This document transfers ownership of property without warranty, often used between family members or in divorce settlements.
  • Warranty Deed: This form guarantees that the seller holds clear title to the property and has the right to sell it, offering more protection to the buyer.
  • Property Tax Exemption Form: Used to apply for exemptions on property taxes, this form requires information about the property and its owner.
  • Affidavit of Title: This document affirms the seller’s ownership and the absence of any liens or claims against the property.
  • Title Insurance Policy: While not a form, this document protects buyers against losses from defects in title, similar in purpose to the Property Transfer Affidavit.
  • Deed of Trust: This document secures a loan with real property, outlining the responsibilities of the borrower and lender.
  • Notice of Foreclosure: This document informs property owners of pending foreclosure proceedings, similar in its focus on property ownership changes.
  • Lease Agreement: This contract outlines the terms under which one party agrees to rent property from another, detailing rights and responsibilities.
  • Property Management Agreement: This document establishes the relationship between property owners and managers, detailing management responsibilities and fees.

Dos and Don'ts

When filling out the Michigan Property Transfer Affidavit 2766 form, it's important to follow certain guidelines to ensure accuracy and compliance. Here are some key do's and don'ts to keep in mind:

  • Do read the instructions carefully before starting the form.
  • Do provide accurate information about the property being transferred.
  • Do include the correct names of all parties involved in the transfer.
  • Do sign and date the form before submitting it.
  • Don't leave any required fields blank; fill in all necessary information.
  • Don't use white-out or erase any mistakes; instead, cross out errors and write the correct information.
  • Don't submit the form without double-checking for errors or omissions.

By following these guidelines, you can help ensure a smoother process in your property transfer. Take your time, and don't hesitate to ask for help if needed.

Misconceptions

Understanding the Michigan Property Transfer Affidavit 2766 form is essential for anyone involved in real estate transactions in Michigan. However, several misconceptions can lead to confusion. Here are four common misconceptions:

  • It is only necessary for sales over a certain amount. Many believe that the affidavit is only required for high-value transactions. In reality, this form is necessary for all property transfers, regardless of the sale price.
  • The form is only for residential properties. Some think that the affidavit applies solely to residential real estate. However, it is required for all types of property transfers, including commercial and agricultural properties.
  • Filing the affidavit is optional. There is a misconception that submitting the affidavit is a choice. In fact, it is a mandatory requirement in Michigan to ensure accurate property tax assessments.
  • Only the buyer needs to sign the affidavit. Many people assume that only the buyer's signature is necessary. In truth, both the buyer and seller must sign the form to validate the transfer.

Addressing these misconceptions can help ensure a smoother property transfer process. Being informed will help you navigate the requirements effectively.

Key takeaways

When dealing with property transfers in Michigan, the Property Transfer Affidavit 2766 form plays a crucial role. Understanding how to fill out and utilize this form can streamline the process and ensure compliance with state regulations. Here are some key takeaways:

  • Purpose of the Form: The Michigan Property Transfer Affidavit is used to report the transfer of property ownership to the local tax assessor.
  • Who Needs to File: This form must be completed by the seller or transferor when real property changes hands, whether through sale, gift, or inheritance.
  • Filing Deadline: The affidavit must be filed within 45 days of the property transfer to avoid penalties.
  • Accurate Information: Ensure that all information, such as the property description, buyer's details, and sale price, is accurate to prevent issues with tax assessments.
  • Signature Requirement: The form must be signed by the seller or their authorized representative, affirming the truthfulness of the information provided.
  • Local Tax Assessor: Submit the completed form to the local tax assessor's office, as they will use this information to update property records.
  • Impact on Taxes: Filing the affidavit can affect property taxes, as it provides the assessor with necessary data to determine the property's assessed value.
  • Multiple Properties: If transferring multiple properties, a separate affidavit must be completed for each property.
  • Keep a Copy: Retaining a copy of the filed affidavit for your records is essential in case of future disputes or inquiries.

By following these guidelines, individuals can navigate the process of property transfer more effectively, ensuring that all necessary steps are completed and that the transition of ownership is smooth.