Homepage Blank Michigan 632 PDF Form
Article Guide

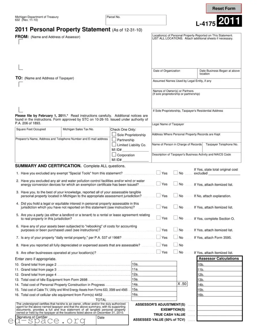
The Michigan 632 form is an essential document for businesses that own personal property in the state. This form, known as the Personal Property Statement, must be filed annually by February 1. It requires taxpayers to report all assessable tangible personal property located in Michigan as of December 31 of the previous year. The form gathers crucial information, including the name and address of the taxpayer, the type of business entity—whether a sole proprietorship, partnership, corporation, or limited liability company—and details about the business activities. Taxpayers must also disclose the locations of their personal property, any assumed names used, and the names of owners or partners. Furthermore, the form includes a summary and certification section, where the taxpayer certifies the accuracy of the information provided. Questions regarding exemptions, such as special tools and pollution control facilities, must be answered thoroughly. The instructions accompanying the form guide users on how to allocate personal property into specific sections and address any "move-ins" of used property. Completing the Michigan 632 form accurately is vital for compliance and ensuring the correct assessment of personal property taxes.

Document Preview

Form Specifications

Fact Name Details
Form Purpose The Michigan 632 form is used to report personal property owned by businesses as of December 31 each year.
Filing Deadline Taxpayers must submit the form by February 1 of the following year to avoid penalties.
Governing Law This form is issued under the authority of Public Act 206 of 1893, which governs property taxation in Michigan.
Types of Entities The form accommodates various business structures, including sole proprietorships, partnerships, corporations, and limited liability companies.
Exemptions Taxpayers can exclude certain exempt items, such as special tools and pollution control facilities, from their reported personal property.
Location Reporting Businesses must list all locations where personal property is held, and additional sheets can be attached if necessary.
Certification Requirement The form requires a certification from the taxpayer or an authorized agent, affirming the accuracy of the reported information.
Assessment Process The assessor will use the information provided to determine the true cash value and assessed value of the reported property.

Michigan 632: Usage Guidelines

Completing the Michigan 632 form is an essential task for accurately reporting personal property for tax purposes. Follow these steps to ensure that you fill out the form correctly and submit it by the deadline.

  1. Begin by entering the Parcel Number at the top of the form.
  2. Provide the Name and Address of the Assessor in the designated section.
  3. List all Locations of Personal Property reported on this statement. If necessary, attach additional sheets.
  4. Fill in the Date of Organization and the Date Business Began at the above location.
  5. Enter the Name and Address of the Taxpayer.
  6. Indicate any Assumed Names used by the legal entity.
  7. For sole proprietorships or partnerships, list the Names of Owners or Partners.
  8. Check the appropriate box to indicate the type of business structure: Sole Proprietorship, Partnership, Limited Liability Co., or Corporation.
  9. If applicable, provide the Taxpayer's Residential Address.
  10. Enter the Legal Name of Taxpayer and the Address Where Personal Property Records are Kept.
  11. Identify the Name of Person in Charge of Records and their Telephone Number.
  12. Describe the Taxpayer’s Business Activity and include the NAICS Code.
  13. Complete the SUMMARY AND CERTIFICATION section, answering all questions regarding exemptions and property reporting.
  14. Calculate totals from the relevant sections and enter them in the designated fields.
  15. Sign the form in the Signature of Certifier section.
  16. Review the form for accuracy before submission.

Once the form is filled out, ensure that it is submitted by the deadline of February 1, 2011. Keep a copy for your records, and be prepared to provide any additional information if requested by the assessor's office.

Your Questions, Answered

What is the Michigan 632 form and who needs to file it?

The Michigan 632 form, also known as the Personal Property Statement, is a document required by the Michigan Department of Treasury. It must be filed by businesses that own or possess tangible personal property in Michigan as of December 31 of the previous year. This includes items such as equipment, furniture, and other physical assets used in business operations. If your business operates in Michigan and you have personal property that is assessable, you need to file this form by February 1 each year to report your assets accurately.

What information is required on the Michigan 632 form?

The form requires detailed information about the taxpayer and the personal property being reported. You will need to provide your business name, address, and type of business entity (such as sole proprietorship, partnership, or corporation). Additionally, you must list all locations where personal property is kept, describe your business activities, and provide the North American Industry Classification System (NAICS) code. There are also specific questions regarding exempt property, rental agreements, and any property that may have been acquired during the year. Completing the form accurately is crucial for ensuring compliance with local tax regulations.

What happens if I do not file the Michigan 632 form on time?

Failing to file the Michigan 632 form by the February 1 deadline can lead to penalties. The local assessor may impose a late filing penalty, which could be a percentage of the taxes owed on the unreported property. Additionally, if you do not file, the assessor may estimate your property’s value, which might not be in your favor. It is always best to file on time to avoid these potential issues and ensure that your property is assessed accurately.

Can I amend my Michigan 632 form after it has been submitted?

Yes, if you realize that you need to make changes to your Michigan 632 form after submission, you can file an amendment. It is important to do this as soon as you identify the need for a correction. You will need to provide the updated information and explain the changes being made. This can help prevent complications with your property assessment and ensure that you are complying with state regulations. Always keep records of your submissions and any amendments for your own reference.

Common mistakes

  1. Incomplete Information: Many individuals fail to provide all required details, such as the legal name of the taxpayer or the address where personal property records are kept. This can lead to delays or issues with processing the form.

  2. Missing Attachments: Some taxpayers neglect to attach necessary documentation, like itemized lists for reported assets or exemption certificates. This oversight can result in incomplete submissions.

  3. Incorrect Reporting of Property: It's common for people to misclassify their assets. For example, failing to report fully depreciated or expensed assets can lead to penalties or incorrect assessments.

  4. Ignoring Deadlines: Submitting the form after the February 1 deadline can incur late fees. Timeliness is crucial to avoid unnecessary financial repercussions.

  5. Failure to Review Instructions: Many individuals do not read the instructions carefully. Ignoring specific requirements or guidelines can lead to significant errors in the submission.

Documents used along the form

The Michigan 632 form, also known as the Personal Property Statement, is a critical document used by taxpayers to report tangible personal property located in Michigan. Alongside this form, several other documents may be required to ensure compliance with state regulations. Each of these forms serves a specific purpose in the assessment and taxation process. Below is a list of additional forms and documents that are often used in conjunction with the Michigan 632 form.

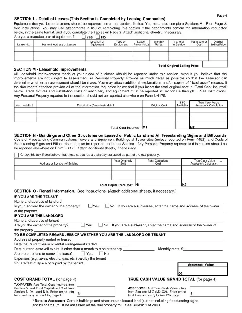
  • Form 3966: This form is the Taxpayer Report of Personal Property "Move-Ins." It is used to report any assessable personal property that was not previously assessed in the local jurisdiction during the prior year. This includes items purchased used or moved from outside the area.
  • Form 2698: This form is utilized to report the cost of idle equipment. Taxpayers must complete this form if they have personal property that is not currently in use but still qualifies for assessment.
  • Form 3595: This form is for reporting any air and water pollution control facilities or renewable energy devices that have received exemption certificates. It helps ensure that exempt property is accurately accounted for in the assessment process.
  • Form 633: This document is used to report the total cost of cable TV, utility, and wind energy assets. It is essential for businesses involved in these sectors to maintain compliance with local tax laws.
  • Form 4452: This form is specifically for reporting cellular site equipment. Taxpayers must provide details about the equipment to ensure proper assessment and taxation.
  • Form L-4175: This is a supplementary form that may be used for additional reporting needs. It allows taxpayers to provide detailed information about their personal property beyond what is captured in the 632 form.
  • NAICS Code Documentation: While not a form per se, documentation that includes the North American Industry Classification System (NAICS) code is often necessary. This code helps classify the business activity and is crucial for accurate reporting and assessment.

Understanding these additional forms and documents can significantly aid taxpayers in navigating the complexities of property assessment in Michigan. Properly completing and submitting all required forms ensures compliance and can help avoid potential penalties or issues with local tax authorities.

Similar forms

The Michigan 632 form is a Personal Property Statement that serves specific purposes in the context of property taxation. There are several other documents that share similar functions or requirements. Below are four documents that are comparable to the Michigan 632 form:

  • Form 1040 Schedule C: This form is used by sole proprietors to report income or loss from their business. Like the Michigan 632 form, it requires detailed information about the business and its assets, ensuring accurate reporting for tax purposes.
  • Form 4562: This form is utilized to claim depreciation on assets and to report the use of listed property. Similar to the Michigan 632, it necessitates a comprehensive listing of assets, helping taxpayers maintain compliance with reporting requirements.
  • Form 1065: Partnerships use this form to report income, deductions, and credits. It parallels the Michigan 632 form by requiring detailed information about the partnership's assets and liabilities, ensuring accurate tax assessments.
  • Form 1120: Corporations file this form to report their income and expenses. Much like the Michigan 632, it demands thorough documentation of assets and liabilities, facilitating proper tax evaluation and compliance.

Dos and Don'ts

When filling out the Michigan 632 form, there are important steps to follow and common pitfalls to avoid. Here are four key dos and don'ts:

  • Do read the instructions carefully before starting the form.
  • Do ensure that all locations of personal property are listed accurately.
  • Don't omit any assessable tangible personal property from your report.
  • Don't submit the form after the deadline of February 1, 2011.

By adhering to these guidelines, you can help ensure that your submission is complete and accurate, which may prevent potential issues with your property tax assessments.

Misconceptions

Here are seven common misconceptions about the Michigan 632 form:

  • Misconception 1: The Michigan 632 form is only for corporations.
  • This form is used by various business structures, including sole proprietorships, partnerships, and limited liability companies. All types of businesses must file if they own personal property in Michigan.

  • Misconception 2: Filing the form is optional.
  • Filing the Michigan 632 form is mandatory for businesses that own assessable personal property. Failure to file can lead to penalties and additional taxes.

  • Misconception 3: Only new property needs to be reported.
  • All assessable personal property must be reported, including fully depreciated assets and used property. This includes items that may not hold significant value but are still assessable.

  • Misconception 4: The form is due at any time during the year.
  • The Michigan 632 form has a specific deadline. It must be filed by February 1 each year, reflecting the property owned as of December 31 of the previous year.

  • Misconception 5: You can ignore instructions if you know your property.
  • It is crucial to read and follow the instructions carefully. They provide essential guidance on how to accurately report your property and avoid mistakes.

  • Misconception 6: You don’t need to report leased property.
  • Leased property must be reported on the form, specifically in the designated sections for leased property. This includes any equipment or assets you are leasing.

  • Misconception 7: The form is the same every year.
  • The Michigan 632 form may change from year to year. Always check for the latest version and any updates to the instructions or requirements.

Key takeaways

The Michigan 632 form is an essential document for reporting personal property for tax purposes. Understanding how to fill it out correctly can help ensure compliance and avoid potential penalties.

  • Deadline Awareness: The form must be filed by February 1 of the reporting year. Timeliness is crucial to avoid late fees.
  • Accurate Reporting: All assessable tangible personal property located in Michigan must be reported. This includes fully depreciated and expensed assets.
  • Location Details: Clearly list all locations of personal property. If necessary, attach additional sheets to provide complete information.
  • Exemptions: Be aware of any exempt property, such as special tools or pollution control facilities. These should be excluded from the statement.
  • Move-Ins Reporting: If you have moved in used property that was not assessed in the previous year, this must be reported on the form and may require additional documentation.
  • Section Specifics: Each section of the form is designated for specific types of property. Follow the instructions carefully to allocate property correctly.
  • Certification Requirement: The form must be signed by an owner, officer, or authorized agent. This certifies the accuracy of the reported information.
  • Supporting Documents: Attach any necessary itemized lists or additional forms as required by the instructions. This can include forms for exemptions or move-ins.
  • Consultation: If there are uncertainties regarding reporting requirements or classifications, consulting with a tax professional or assessor can provide clarity.

Completing the Michigan 632 form accurately is vital for ensuring compliance with state tax regulations. By following these key takeaways, taxpayers can navigate the process more effectively.