Homepage Blank Michigan 4816 PDF Form
Article Guide

The Michigan 4816 form is an essential document for local treasurers and property sellers dealing with Principal Residence Exemption (PRE) denials. When a property is sold to a bona fide purchaser after a PRE denial, this form facilitates the billing of additional taxes, interest, and penalties to the seller. It is important to understand that the responsibility for these charges falls on the seller, not the new owner, provided the sale meets specific criteria. To ensure a smooth process, complete and accurate information must be submitted, including property details, the denial notice, and documentation of the property transfer. The form is divided into several parts, each requiring specific information such as the property tax identification number, the reasons for the PRE denial, and the seller's details. Incomplete submissions can lead to delays or errors, so attention to detail is crucial. Understanding the nuances of the 4816 form can help mitigate potential complications during property transactions in Michigan.

Document Preview

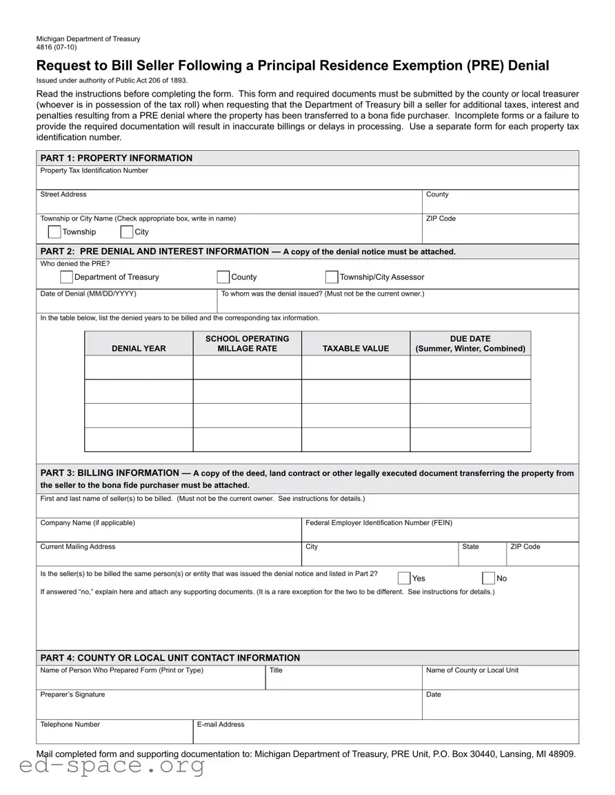
Michigan Department of Treasury 4816 (07-10)

Request to Bill Seller Following a Principal Residence Exemption (PRE) Denial

Issued under authority of Public Act 206 of 1893.

Read the instructions before completing the form. This form and required documents must be submitted by the county or local treasurer

(whoever is in possession of the tax roll) when requesting that the Department of Treasury bill a seller for additional taxes, interest and penalties resulting from a PRE denial where the property has been transferred to a bona ide purchaser. Incomplete forms or a failure to

provide the required documentation will result in inaccurate billings or delays in processing. Use a separate form for each property tax identiication number.

PART 1: PROPERTY INFORMATION

Property Tax Identiication Number

Street Address

 

 

County

 

 

Township or City Name (Check appropriate box, write in name)

ZIP Code

 

 

Township

 

City

 

 

 

 

 

 

 

 

 

 

 

 

 

 

 

 

 

PART 2: PRE DENIAL AND INTEREST INFORMATION — A copy of the denial notice must be attached.

Who denied the PRE?

Department of Treasury

County

Township/City Assessor

Date of Denial (MM/DD/YYYY)

To whom was the denial issued? (Must not be the current owner.)

 

 

In the table below, list the denied years to be billed and the corresponding tax information.

DENIAL YEAR

SchOOL OPERATINg

MILLAgE RATE

TAxABLE vALuE

DuE DATE

(Summer, Winter, combined)

PART 3: BILLINg INFORMATION — A copy of the deed, land contract or other legally executed document transferring the property from the seller to the bona ide purchaser must be attached.

First and last name of seller(s) to be billed. (Must not be the current owner. See instructions for details.)

Company Name (if applicable)

Federal Employer Identiication Number (FEIN)

Current Mailing Address

City

State

ZIP Code

Is the seller(s) to be billed the same person(s) or entity that was issued the denial notice and listed in Part 2?

Yes

No

If answered “no,” explain here and attach any supporting documents. (It is a rare exception for the two to be different. See instructions for details.)

PART 4: cOuNTY OR LOcAL uNIT cONTAcT INFORMATION

Name of Person Who Prepared Form (Print or Type)

Title

Name of County or Local Unit

Preparer’s Signature

Date

Telephone Number

E-mail Address

Mail completed form and supporting documentation to: Michigan Department of Treasury, PRE Unit, P.O. Box 30440, Lansing, MI 48909.

4816, Page 2

Instructions for Form 4816

Request to Bill Seller Following a Principal Residence Exemption (PRE) Denial

This form must be submitted by the county or local treasurer (whoever is in possession of the tax roll) when requesting that the

Department of Treasury (Department) bill a seller for additional taxes, interest and penalties resulting from a PRE denial where the property has been transferred to a bona ide purchaser. Speciically, Subsections 6, 8 and 11 of Michigan Compiled Laws 211.7cc state that “if the property has been transferred to a bona ide purchaser before additional taxes were billed to the seller as a result of the

denial of a claim for exemption, the taxes, interest, and penalties shall not be a lien on the property and shall not be billed to the bona

ide purchaser ….” The local tax collecting unit in possession of the tax roll then notiies the Department, which “shall then assess the

owner who claimed the exemption under this section for the tax, interest, and penalties accruing as a result of the denial of the claim for exemption ….” In other words, the seller (the person denied) is responsible for all additional taxes, interest and penalties due for

the years up to and including the year of the sale if the purchaser is a “bona ide purchaser.” The PRE is not removed in these bona ide purchaser situations.

A “bona ide purchaser” is one who purchases in good faith for valuable consideration. Therefore, a person who receives property

through an inheritance, foreclosure or one who receives property through a quit claim without valuable consideration, would not qualify as a bona ide purchaser. If the new owner is not a bona ide purchaser, the taxes are added back to the tax roll and the purchaser is responsible for the additional taxes, interest and penalties which become a lien on the property.

There are rare situations, however, where the person(s) or entity that was denied the PRE lost the property in a foreclosure or some other circumstance to an “acquiring entity,” which then subsequently sold the property to a bona ide purchaser. In these situations, the “acquiring entity” that sold the property would be responsible for the additional taxes, interest and penalties although the denial notice was issued to the prior owner. In these unusual circumstances, since the property was not acquired for valuable consideration, the transfer to the “acquiring entity” is not considered a bona ide purchase. As a result, the “acquiring entity” is responsible for the additional taxes, interest and penalties. If this rare situation occurs, explain in Part 3 the circumstances involved and attach any supporting documents. If the “acquiring entity” has not sold the property to a bona ide purchaser, the billing of additional taxes, interest and penalties must occur at the county or local unit level (whichever is in possession of the tax roll) since the transfer was not a bona ide purchase.

In order for the Department to process a request to bill the seller (the person or entity who was issued the denial notice) for additional taxes, interest and penalties in a bona ide purchaser situation, this form must be completed with the required documents attached. Upon

review of the completed form and supporting documents, the Department will process and issue a bill, which will include additional taxes and applicable interest and penalties, to the person(s) or entity listed in Part 3.

PART 1: PROPERTY INFORMATION

All of the information in Part 1 must be provided to the Department to process the request. Use a separate form for each property tax identiication number.

PART 2: PRE DENIAL INFORMATION

A copy of the PRE denial notice relating to the property in Part 1 must be submitted with this form. The date of the denial notice must be listed on the form along with the person(s) or entity that issued the denial notice. If the denial notice was issued to the current owner of

the property, the billing of additional taxes, interest and penalties must occur at the county or local unit level (whichever is in possession of the tax roll) and does not qualify as a bona ide purchaser situation. In addition, if the purchaser is not a “bona ide purchaser,” as described earlier, the billing also must occur at the county or local level.

For each year the PRE was denied, requiring the Department to bill the seller, list the school operating millage rate, taxable value, and the due date of the school operating taxes (summer, winter, or combined summer/winter).

PART 3: BILLINg INFORMATION

A copy of the deed, land contract or other legally executed document transferring the property from the seller to the bona ide purchaser must be submitted with this form. Each seller to be billed must be listed including a current mailing address (if the mailing address is available). If the seller is a company, the complete company name, address, and Federal Employer Identiication Number (FEIN), if available, must be provided.

PART 4: cOuNTY OR LOcAL uNIT cONTAcT INFORMATION

Complete the contact information in the event the Department has a question or needs clariication. The completed form and supporting documents must be mailed to the address at the bottom of the form. Failure to provide complete information or adequate supporting documentation will result in delays in processing.

If you have any questions, call the PRE Unit at (517) 373-1950 or e-mail [email protected].

Form Specifications

Fact Name Description
Form Purpose The Michigan 4816 form is used to request that the Department of Treasury bill a seller for additional taxes, interest, and penalties after a Principal Residence Exemption (PRE) denial.
Governing Law This form is issued under the authority of Public Act 206 of 1893 and is governed by Subsections 6, 8, and 11 of Michigan Compiled Laws 211.7cc.
Submission Requirements County or local treasurers must submit this form along with required documentation, including a copy of the PRE denial notice and a deed or land contract, to ensure proper billing.
Important Note Failure to provide complete information or required documents may lead to inaccurate billings or delays in processing the request.

Michigan 4816: Usage Guidelines

Filling out the Michigan 4816 form is an important step if you need to request that the Department of Treasury bill a seller for additional taxes after a Principal Residence Exemption (PRE) denial. To ensure everything is processed smoothly, follow these steps carefully.

  1. Begin with Part 1: Property Information. Fill in the property tax identification number, street address, county, and township or city name. Don’t forget to include the ZIP code.
  2. Move to Part 2: PRE Denial and Interest Information. Attach a copy of the denial notice. Indicate who denied the PRE and the date of denial. Specify to whom the denial was issued (this must not be the current owner). List the denied years along with the school operating millage rate, taxable value, and due date for each year.
  3. Next, complete Part 3: Billing Information. Attach a copy of the deed or other documents that show the transfer of property from the seller to the bona fide purchaser. List the seller's name, company name (if applicable), and Federal Employer Identification Number (FEIN). Provide the current mailing address of the seller. Answer whether the seller is the same person or entity that received the denial notice. If not, explain the differences and attach any necessary supporting documents.
  4. Finally, fill out Part 4: County or Local Unit Contact Information. Include the name of the person who prepared the form, their title, and the name of the county or local unit. Don’t forget to sign and date the form, and provide a contact phone number and email address.

Once you have completed the form and gathered all necessary documents, mail everything to the Michigan Department of Treasury at the address provided at the bottom of the form. Make sure to double-check that all information is accurate and complete to avoid any delays in processing.

Your Questions, Answered

What is the Michigan 4816 form used for?

The Michigan 4816 form is a request to bill a seller for additional taxes, interest, and penalties following a Principal Residence Exemption (PRE) denial. This form is specifically used when a property has been transferred to a bona fide purchaser after the PRE has been denied. It is essential for local treasurers to complete this form accurately to ensure the seller is billed correctly for any tax liabilities resulting from the denial.

Who needs to submit the Michigan 4816 form?

The county or local treasurer, who is in possession of the tax roll, must submit the Michigan 4816 form. This submission is necessary when the Department of Treasury needs to bill the seller for any additional taxes, interest, and penalties due to a PRE denial. It's important to note that the form must be completed with all required documentation attached to avoid processing delays.

What information is required on the form?

The form requires several key pieces of information. In Part 1, you must provide the property tax identification number, street address, and details about the county and city. Part 2 focuses on the PRE denial information, requiring a copy of the denial notice and details about the denial, including the denial date and the issuer. Part 3 requires billing information about the seller, including their name, address, and any relevant documents like a deed or land contract. Finally, Part 4 collects contact information for the person who prepared the form, ensuring the Department can reach out if there are questions.

What happens if the form is incomplete?

If the Michigan 4816 form is incomplete or lacks the necessary supporting documentation, it may lead to inaccurate billing or delays in processing. This can cause complications for both the seller and the new property owner. It is crucial to ensure that all sections of the form are filled out correctly and that all required documents are attached before submission to avoid these issues.

What is a bona fide purchaser?

A bona fide purchaser is someone who buys property in good faith and for valuable consideration. This means that the buyer is not receiving the property as a gift or through inheritance, and they are paying a fair price for it. If a property is sold to a bona fide purchaser after a PRE denial, the seller remains responsible for any additional taxes, interest, and penalties. Understanding this term is vital, as it affects who is liable for the tax obligations following a PRE denial.

Common mistakes

  1. Not reading the instructions thoroughly. Understanding the requirements is crucial before filling out the form. Skipping this step can lead to mistakes that delay processing.

  2. Failing to attach necessary documents. For example, forgetting to include a copy of the denial notice or the deed can result in an incomplete submission. Always double-check that all required documents are included.

  3. Using the same form for multiple properties. Each property tax identification number requires a separate form. Be diligent about submitting individual forms to avoid confusion.

  4. Incorrectly identifying the seller. It’s essential to ensure that the seller listed is the same person or entity that received the denial notice. If they differ, you must explain why and provide supporting documentation.

  5. Leaving out important contact information. The form requires the name, title, and contact details of the person who prepared it. This information is vital for any follow-up questions from the Department of Treasury.

  6. Not checking the accuracy of the information provided. Simple errors, such as incorrect dates or tax information, can lead to significant delays. Review everything carefully before submission.

Documents used along the form

When dealing with the Michigan 4816 form, there are several other forms and documents that may also be required or beneficial in the process of handling property tax matters, especially related to Principal Residence Exemption (PRE) denials. Understanding these documents can help streamline the process and ensure compliance with state regulations.

  • Form 5117: Principal Residence Exemption Affidavit - This form is used by homeowners to claim a principal residence exemption on their property taxes. It certifies that the property is their primary residence and can help prevent future tax issues.
  • Form 5730: Request for Reinstatement of Principal Residence Exemption - This document is submitted by property owners who have lost their PRE due to a denial. It requests reinstatement of the exemption under specific circumstances.
  • Form 2602: Property Transfer Affidavit - This affidavit is necessary when property ownership changes. It provides the local tax assessor with updated ownership information, which is crucial for accurate tax billing.
  • Form 2766: Application for Property Tax Exemption - This form is used by organizations seeking an exemption from property taxes. It details the reasons for the exemption and must be filed with the local government.
  • Form 5674: Request for Taxpayer Identification Number - This form is important for businesses and entities to provide their taxpayer identification information, which is necessary for tax processing and billing.
  • Form 4567: Statement of Ownership and Use - This statement provides details about how a property is used and owned, which can affect its tax status and eligibility for exemptions.
  • Form 4700: Notice of Assessment - This notice is sent to property owners to inform them of the assessed value of their property for tax purposes. Understanding this assessment is key to addressing any discrepancies or issues related to tax bills.

These forms and documents play a vital role in the management of property taxes and exemptions in Michigan. By being aware of them, property owners can navigate the complexities of tax regulations more effectively and ensure that they are meeting all necessary requirements.

Similar forms

The Michigan Department of Treasury Form 4816 is a specific document used to request billing for additional taxes following a Principal Residence Exemption (PRE) denial. Several other forms serve similar purposes in different contexts. Below is a list of nine documents that share similarities with the Michigan 4816 form, along with explanations of how they are alike.

  • Form 1099: This form is used to report various types of income other than wages, salaries, and tips. Like the Michigan 4816, it requires detailed information about the parties involved and the nature of the transaction.
  • Form W-2: This form reports wages paid to employees and the taxes withheld. Both forms necessitate accurate reporting of financial information and require submission to a governing body.
  • Form 1040: This is the standard individual income tax return form in the U.S. Similar to the Michigan 4816, it collects comprehensive information about a taxpayer’s financial situation and is subject to strict deadlines.
  • Form 4506-T: This form is used to request a transcript of a tax return. Like the Michigan 4816, it involves communication with a tax authority and requires specific identification information.
  • Form 941: This form is used by employers to report income taxes, Social Security tax, and Medicare tax withheld from employee paychecks. Both forms must be accurately completed and submitted to ensure compliance with tax obligations.
  • Form 990: Nonprofit organizations use this form to provide the IRS with financial information. Similar to the Michigan 4816, it requires detailed reporting and is intended to ensure transparency in financial dealings.
  • Form 1098: This form reports mortgage interest paid during the year. Both forms necessitate careful documentation and serve as a basis for tax calculations and obligations.
  • Form 8862: This form is used to claim the Earned Income Tax Credit after a prior denial. Like the Michigan 4816, it requires the submission of supporting documentation to validate claims.
  • Form 2848: This is a Power of Attorney and Declaration of Representative form that allows someone to represent a taxpayer before the IRS. Both forms involve the authorization of actions concerning tax matters and require precise identification of the parties involved.

Dos and Don'ts

When filling out the Michigan 4816 form, there are important guidelines to follow to ensure accuracy and efficiency. Here’s a list of things you should and shouldn’t do:

  • Do read the instructions carefully before starting the form.
  • Do provide all required property information in Part 1.
  • Do attach a copy of the PRE denial notice as required.
  • Do include a copy of the deed or other legal documents transferring the property.
  • Do use a separate form for each property tax identification number.
  • Don't leave any sections blank; incomplete forms will cause delays.
  • Don't submit the form without the necessary supporting documents.
  • Don't list the current owner as the seller to be billed.
  • Don't forget to include accurate contact information for follow-up.
  • Don't assume the Department will process your request without complete information.

Following these guidelines will help ensure that your request is processed smoothly and without unnecessary delays.

Misconceptions

Understanding the Michigan 4816 form is essential for those involved in property transactions, particularly regarding Principal Residence Exemption (PRE) denials. Here are six common misconceptions about this form:

  • Only the current owner needs to complete the form. In reality, the form must be completed by the county or local treasurer, not the current owner. This is a crucial point that often leads to confusion.
  • A PRE denial only affects the current owner. This is misleading. If a property is sold to a bona fide purchaser after a PRE denial, the seller remains responsible for any additional taxes, interest, and penalties that arise from that denial.
  • The form can be submitted without supporting documents. This is incorrect. A copy of the PRE denial notice and the deed or land contract transferring the property must accompany the form. Without these documents, processing delays may occur.
  • All property transfers qualify as bona fide purchases. Not true. A bona fide purchaser is someone who buys property in good faith for valuable consideration. Transfers through inheritance or foreclosure do not qualify, which can lead to additional tax responsibilities.
  • Filing the form guarantees the seller will not be billed. This is a misconception. The seller will be billed for any additional taxes if the property was not transferred to a bona fide purchaser, regardless of the filing.
  • The form is the same for all properties. This is misleading. Each property tax identification number requires a separate form. This ensures that each transaction is accurately documented and processed.

Being aware of these misconceptions can help individuals navigate the complexities of the Michigan 4816 form more effectively. Proper understanding can lead to smoother transactions and avoid unnecessary complications.

Key takeaways

Filling out the Michigan 4816 form requires careful attention to detail. Here are some key takeaways to keep in mind:

  • Understand the Purpose: This form is used to request that the Department of Treasury bill a seller for additional taxes, interest, and penalties after a Principal Residence Exemption (PRE) denial.
  • Who Submits the Form: The county or local treasurer must submit this form when the property has been transferred to a bona fide purchaser.
  • Complete Each Section: Each part of the form must be filled out completely, including property information, denial details, and billing information.
  • Attach Required Documents: Always include a copy of the PRE denial notice and a legally executed document (like a deed) showing the property transfer.
  • One Form per Property: Use a separate form for each property tax identification number to avoid confusion.
  • Identify the Denial Issuer: Clearly state who issued the PRE denial and ensure the denial notice is attached.
  • Specify the Denied Years: List the years for which the PRE was denied along with the corresponding tax information in the provided table.
  • Clarify Seller Information: Ensure that the seller's name and mailing address are accurate. If the seller is a company, include the Federal Employer Identification Number (FEIN).
  • Be Aware of Bona Fide Purchaser Status: Understand that a bona fide purchaser is someone who buys the property in good faith for valuable consideration. This affects who is billed for additional taxes.
  • Mailing Instructions: Send the completed form and supporting documents to the specified address for processing. Incomplete submissions may cause delays.

By following these guidelines, individuals can ensure that the Michigan 4816 form is filled out correctly and processed efficiently.