Homepage Blank Michigan 2766 PDF Form
Article Guide

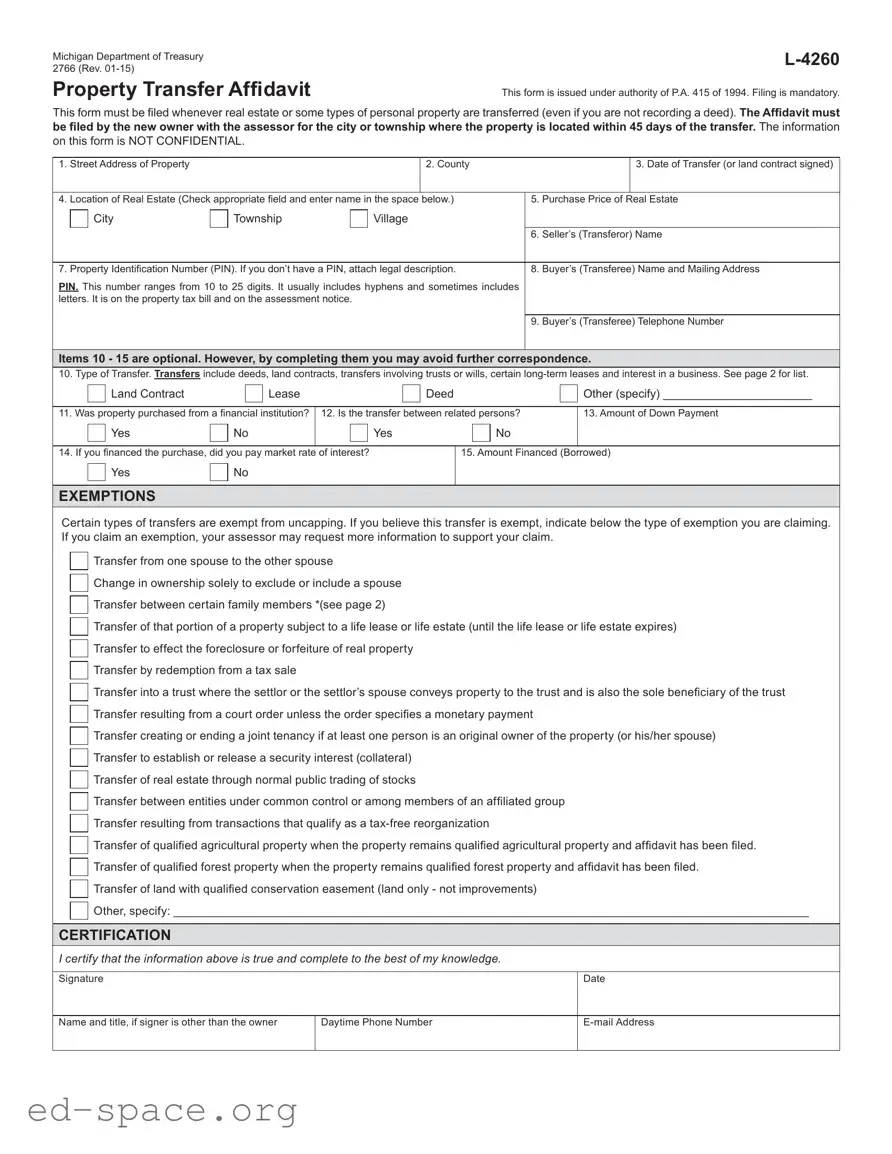
The Michigan 2766 form, officially known as the Property Transfer Affidavit, plays a crucial role in the real estate transaction process within the state. This form is required whenever real estate or certain types of personal property change hands, regardless of whether a deed is being recorded. New owners must file the affidavit with the local assessor's office within 45 days of the transfer. Key details included on the form are the property’s street address, county, date of transfer, purchase price, and the names of both the seller and buyer. Additionally, the form requires the Property Identification Number (PIN), which is essential for tax purposes. While some sections are optional, providing additional information can help streamline the process and reduce future correspondence with local authorities. The form also outlines various exemptions that may apply to certain transfers, such as those between family members or transfers involving trusts. Understanding the requirements and implications of the Michigan 2766 form is vital for anyone involved in real estate transactions in Michigan, as failing to file correctly can lead to penalties and complications in property tax assessments.

Document Preview

Michigan Department of Treasury

L-4260

2766 (Rev. 01-15)

 

Property Transfer Afidavit

This form is issued under authority of P.A. 415 of 1994. Filing is mandatory.

This form must be iled whenever real estate or some types of personal property are transferred (even if you are not recording a deed). The Afidavit must be iled by the new owner with the assessor for the city or township where the property is located within 45 days of the transfer. The information

on this form is NOT CONFIDENTIAL.

1.

Street Address of Property

 

 

 

 

2. County

 

 

3. Date of Transfer (or land contract signed)

 

 

 

 

 

 

 

 

 

 

 

4.

Location of Real Estate (Check appropriate ield and enter name in the space

below.)

5.

Purchase Price of Real Estate

 

 

City

 

Township

 

Village

 

 

 

 

 

 

 

 

 

 

 

 

 

 

 

 

 

 

6.

Seller’s (Transferor) Name

 

 

 

 

 

 

 

 

 

 

 

7.

Property Identiication Number (PIN). If you don’t have a PIN, attach legal description.

8.

Buyer’s (Transferee) Name and Mailing Address

PIN. This number ranges from 10 to 25 digits. It usually includes hyphens and sometimes includes

 

 

 

letters. It is on the property tax bill and on the assessment notice.

 

 

 

 

 

 

 

 

 

 

 

 

 

 

 

 

 

 

 

 

 

 

 

 

9.

Buyer’s (Transferee) Telephone Number

 

 

 

 

 

 

 

 

 

 

 

Items 10 - 15 are optional. However, by completing them you may avoid further correspondence.

10.Type of Transfer. TRANSFERS include deeds, land contracts, transfers involving trusts or wills, certain long-term leases and interest in a business. See page 2 for list.

 

 

Land Contract

 

 

 

Lease

 

 

 

 

Deed

 

Other (specify) _______________________

 

 

 

 

 

 

 

 

 

 

 

 

 

 

 

 

11. Was property purchased from a inancial institution?

12. Is the transfer between related persons?

 

13. Amount of Down Payment

 

 

Yes

 

No

 

 

Yes

 

 

 

 

No

 

 

 

 

 

 

 

 

 

 

 

 

 

 

 

 

 

 

 

 

 

 

 

 

 

 

 

 

 

 

 

 

 

 

 

 

14. If you inanced the purchase, did you pay market rate

of interest?

 

 

15. Amount Financed (Borrowed)

 

 

Yes

 

No

 

 

 

 

 

 

 

 

 

 

 

 

 

 

 

 

 

 

 

 

 

 

 

 

 

 

 

 

 

 

 

 

 

 

 

 

 

 

 

 

 

 

 

 

 

 

 

 

 

 

 

 

 

 

 

 

 

EXEMPTIONS

Certain types of transfers are exempt from uncapping. If you believe this transfer is exempt, indicate below the type of exemption you are claiming. If you claim an exemption, your assessor may request more information to support your claim.

Transfer from one spouse to the other spouse

Change in ownership solely to exclude or include a spouse

Transfer between certain family members *(see page 2)

Transfer of that portion of a property subject to a life lease or life estate (until the life lease or life estate expires)

Transfer to effect the foreclosure or forfeiture of real property

Transfer by redemption from a tax sale

Transfer into a trust where the settlor or the settlor’s spouse conveys property to the trust and is also the sole beneiciary of the trust Transfer resulting from a court order unless the order speciies a monetary payment

Transfer creating or ending a joint tenancy if at least one person is an original owner of the property (or his/her spouse)

Transfer to establish or release a security interest (collateral)

Transfer of real estate through normal public trading of stocks

Transfer between entities under common control or among members of an afiliated group Transfer resulting from transactions that qualify as a tax-free reorganization

Transfer of qualiied agricultural property when the property remains qualiied agricultural property and afidavit has been iled. Transfer of qualiied forest property when the property remains qualiied forest property and afidavit has been iled.

Transfer of land with qualiied conservation easement (land only - not improvements)

Other, specify: __________________________________________________________________________________________________

CERTIFICATION

I certify that the information above is true and complete to the best of my knowledge.

Signature

Date

Name and title, if signer is other than the owner

Daytime Phone Number

E-mail Address

2766, Page 2

Instructions:

This form must be iled when there is a transfer of real property or one of the following types of personal property:

Buildings on leased land.

Leasehold improvements, as deined in MCL Section 211.8(h).

Leasehold estates, as deined in MCL Section 211.8(i) and (j).

Transfer of ownership means the conveyance of title to or a present interest in property, including the beneicial use of the property. For complete descriptions of qualifying transfers, please refer to MCL Section 211.27a(6)(a-j).

Excerpts from Michigan Compiled Laws (MCL), Chapter 211

*Section 211.27a(7)(t): Beginning December 31, 2014, a transfer of residential real property if the transferee is the transferor’s or the transferor’s spouse’s mother, father, brother, sister, son, daughter, adopted son, adopted daughter, grandson, or granddaughter and the residential real property is not used for any commercial purpose following the conveyance. Upon request by the department of treasury or the assessor, the transferee shall furnish proof within 30 days that the transferee meets the requirements of this subparagraph. If a transferee fails to comply with a request by the department of treasury or assessor under this subparagraph, that transferee is subject to a ine of $200.00.

Section 211.27a(10): “... the buyer, grantee, or other transferee of the property shall notify the appropriate assessing ofice in the local unit of government in which the property is located of the transfer of ownership of the property within 45 days of the transfer of ownership, on a form prescribed by the state tax commission that states the parties to the transfer, the date of the transfer, the actual consideration for the transfer, and the property’s parcel identiication number or legal description.”

Section 211.27(5): “Except as otherwise provided in subsection (6), the purchase price paid in a transfer of property

is not the presumptive true cash value of the property transferred. In determining the true cash value of transferred property, an assessing oficer shall assess that property using the same valuation method used to value all other property of that same classiication in the assessing jurisdiction.”

Penalties:

Section 211.27b(1): “If the buyer, grantee, or other transferee in the immediately preceding transfer of ownership of property does not notify the appropriate assessing ofice as required by section 27a(10), the property’s taxable value shall be adjusted under section 27a(3) and all of the following shall be levied:

(a)Any additional taxes that would have been levied if the transfer of ownership had been recorded as required under this act from the date of transfer.

(b)Interest and penalty from the date the tax would have been originally levied.

(c)For property classiied under section 34c as either industrial real property or commercial real property, a penalty in the following amount:

(i)Except as otherwise provided in subparagraph (ii), if the sale price of the property transferred is $100,000,000.00 or less, $20.00 per day for each separate failure beginning after the 45 days have elapsed, up to a maximum of $1,000.00.

(ii)If the sale price of the property transferred is more than $100,000,000.00, $20,000.00 after the 45 days have elapsed.

(d)For real property other than real property classiied under section 34c as industrial real property or commercial real property, a penalty of $5.00 per day for each separate failure beginning after the 45 days have elapsed, up to a maximum of $200.00.

Form Specifications

Fact Name Description
Form Purpose The Michigan 2766 form is used to report the transfer of real estate or certain personal property.
Governing Law This form is issued under the authority of Public Act 415 of 1994.
Filing Requirement Filing the form is mandatory within 45 days of the property transfer.
Confidentiality The information provided on the form is not confidential and may be accessible to the public.
Transfer Types The form accommodates various types of transfers, including deeds, land contracts, and transfers involving trusts.
Optional Information Items 10 to 15 on the form are optional but can help avoid further correspondence with the assessor.

Michigan 2766: Usage Guidelines

Completing the Michigan 2766 form is an important step when transferring real estate or certain personal property. After filling out the form, it must be submitted to the local assessor's office within 45 days of the property transfer. This ensures compliance with state regulations and helps avoid potential penalties.

  1. Begin by entering the Street Address of the Property in the designated space.
  2. Next, indicate the County where the property is located.
  3. Fill in the Date of Transfer or the date the land contract was signed.
  4. Specify the Location of Real Estate by checking the appropriate field (City, Township, or Village) and entering the name.
  5. Provide the Purchase Price of Real Estate in the next section.
  6. Enter the Seller’s (Transferor) Name.
  7. Input the Property Identification Number (PIN). If you do not have a PIN, attach a legal description of the property.
  8. Fill in the Buyer’s (Transferee) Name and Mailing Address.
  9. Provide the Buyer’s (Transferee) Telephone Number.
  10. Items 10-15 are optional but recommended. If you choose to complete them, indicate the Type of Transfer (e.g., Land Contract, Lease, Deed, etc.).
  11. Answer whether the property was purchased from a financial institution by selecting Yes or No.
  12. Indicate if the transfer is between related persons with a Yes or No response.
  13. Provide the Amount of Down Payment if applicable.
  14. If the purchase was financed, indicate whether you paid market rate of interest with Yes or No.
  15. Enter the Amount Financed (Borrowed) if applicable.
  16. If claiming an exemption, specify the type of exemption in the provided space.
  17. Sign and date the form, and include your name and title if you are not the owner.
  18. Finally, provide your Daytime Phone Number and E-mail Address.

Your Questions, Answered

What is the Michigan 2766 form?

The Michigan 2766 form, also known as the Property Transfer Affidavit, is a document required by the Michigan Department of Treasury. It must be filed whenever real estate or certain types of personal property are transferred. This includes situations where a deed is not being recorded. The form captures essential information about the transfer and must be submitted to the local assessor within 45 days of the transfer date.

Who is required to file the Michigan 2766 form?

The new owner of the property, also known as the transferee, is responsible for filing the Michigan 2766 form. If you have recently acquired property, it is your duty to complete and submit this form to the city or township assessor. Failure to do so may result in penalties.

What information is needed to complete the form?

To fill out the Michigan 2766 form, you will need to provide several key details. This includes the street address of the property, the county, the date of the transfer, the purchase price, and the names and contact information of both the seller and buyer. Additionally, if available, you should include the Property Identification Number (PIN) associated with the property.

What happens if I don’t file the form on time?

If you fail to file the Michigan 2766 form within the required 45-day period, your property’s taxable value may be adjusted. This can lead to additional taxes, interest, and penalties. The penalties can accumulate daily, so timely filing is crucial to avoid unnecessary costs.

Are there exemptions available when filing this form?

Yes, certain transfers may qualify for exemptions from uncapping. Common exemptions include transfers between spouses, transfers due to court orders, and transfers involving family members under specific conditions. If you believe your transfer qualifies for an exemption, be sure to indicate this on the form and be prepared to provide supporting documentation if requested by the assessor.

What types of transfers require this form?

The Michigan 2766 form is required for various types of transfers, including deeds, land contracts, and transfers involving trusts or wills. It also applies to leasehold estates and certain personal property like buildings on leased land. If you're unsure whether your transfer qualifies, it’s best to consult the instructions provided with the form or seek guidance from a professional.

Can I submit the form electronically?

Currently, the Michigan 2766 form must be submitted in a paper format to the local assessor's office. It is advisable to check with your local assessor for any specific submission guidelines or updates regarding electronic filing options, as processes may vary by jurisdiction.

What if I need assistance filling out the form?

If you need help completing the Michigan 2766 form, consider reaching out to a real estate professional or a legal expert. They can provide guidance on the required information and ensure that the form is filled out accurately. Additionally, local assessors' offices may offer resources or assistance for property owners needing help with the filing process.

Common mistakes

  1. Incomplete Information: Failing to provide all required details, such as the street address, county, or date of transfer, can lead to processing delays.

  2. Incorrect Purchase Price: Entering an inaccurate purchase price can result in tax implications and potential penalties.

  3. Missing Property Identification Number (PIN): Not including the PIN or failing to attach a legal description when the PIN is unavailable can complicate the transfer process.

  4. Neglecting Optional Sections: Skipping optional items, such as the buyer's telephone number or type of transfer, may lead to unnecessary follow-up inquiries from the assessor.

  5. Failure to Sign: Not signing the affidavit can render the form invalid, preventing proper processing of the transfer.

  6. Incorrect Exemption Claims: Misunderstanding or incorrectly stating exemption types can result in the assessor requesting additional documentation.

  7. Ignoring Filing Deadline: Submitting the form after the 45-day deadline can lead to penalties and interest on unpaid taxes.

  8. Omitting Contact Information: Not providing a daytime phone number or email address can hinder communication with the assessor's office if questions arise.

Documents used along the form

The Michigan 2766 form, known as the Property Transfer Affidavit, is essential for reporting real estate transfers. Alongside this form, several other documents may be required to ensure compliance with local regulations. Below is a list of related forms and documents that are commonly used during property transactions in Michigan.

  • Deed: This legal document officially transfers ownership of property from one party to another. It includes details about the property and the parties involved in the transaction.
  • Land Contract: A land contract outlines the terms under which the buyer will purchase the property. It acts as a financing agreement, allowing the buyer to make payments directly to the seller over time.
  • Property Tax Bill: This document provides information about the property’s assessed value and the taxes owed. It often includes the Property Identification Number (PIN), which is crucial for property transfers.
  • Affidavit of Title: This sworn statement confirms the seller's ownership and that there are no liens or encumbrances on the property. It helps assure the buyer of clear title.
  • Title Insurance Policy: This insurance protects the buyer and lender against any claims or disputes regarding the property’s title. It is usually required by lenders during the closing process.
  • Closing Statement: This document summarizes the final financial details of the transaction, including costs, fees, and the distribution of funds between the buyer and seller.
  • Certificate of Compliance: This form verifies that the property meets local zoning and building codes. It may be necessary for certain types of property transfers.
  • Transfer Tax Affidavit: This document is required for reporting the transfer tax owed on the sale of the property. It provides details about the transaction and is filed with the local government.
  • Exemption Claim Form: If applicable, this form is used to claim exemptions from certain taxes or fees associated with the property transfer. It must be submitted with supporting documentation.

Each of these documents plays a significant role in the property transfer process. Ensuring that you have the correct forms can help prevent delays and complications during the transaction. Always consult with a professional if you have questions about specific requirements or procedures.

Similar forms

The Michigan 2766 form, known as the Property Transfer Affidavit, serves a critical function in the transfer of real estate and certain personal property. Several other documents share similarities with this form in terms of purpose and requirements. Here are five such documents:

  • Quitclaim Deed: This document transfers ownership of property from one party to another without any warranties. Like the Michigan 2766 form, it must be filed with the local assessor to inform them of the change in ownership.
  • Warranty Deed: Unlike a quitclaim deed, a warranty deed guarantees that the seller holds clear title to the property. Similar to the Michigan 2766 form, it also requires filing with the local government to update property records.
  • Land Contract: This agreement allows a buyer to purchase property over time while the seller retains the title until payment is complete. The Michigan 2766 form must be filed when a land contract is executed, ensuring that the assessor is aware of the ownership change.
  • Affidavit of Heirship: Used when transferring property after someone’s death, this document identifies heirs and their rights to the property. It serves a similar purpose to the Michigan 2766 form by documenting ownership transfer and must be filed with the appropriate authorities.
  • Property Tax Exemption Application: This application is filed to claim exemptions on property taxes due to specific circumstances, such as ownership transfer. Like the Michigan 2766 form, it is essential for ensuring the assessor has accurate information about property ownership and its tax implications.

Dos and Don'ts

When filling out the Michigan 2766 form, it's essential to be thorough and accurate. Here are some important dos and don'ts to keep in mind:

  • Do ensure that all required fields are completed accurately, including the street address, county, and purchase price.
  • Do file the form within 45 days of the property transfer to avoid penalties.
  • Do include your Property Identification Number (PIN) if you have one; if not, attach a legal description of the property.
  • Do double-check your contact information, including your phone number and email address, to ensure the assessor can reach you if needed.
  • Don't leave optional fields blank if you have the information; completing them can help reduce further correspondence.
  • Don't forget to sign and date the form; an unsigned form may be considered incomplete.
  • Don't provide inaccurate information, as this could lead to penalties or complications down the line.
  • Don't assume the information is confidential; the details you provide on the form are public records.

Misconceptions

Misconceptions about the Michigan 2766 form can lead to confusion and potential penalties. Below are eight common misunderstandings along with clarifications.

  • Filing is optional. Many people believe that submitting the Michigan 2766 form is optional. In fact, filing is mandatory whenever real estate or certain types of personal property are transferred.
  • There is no deadline for filing. Some individuals think they can file the form at their convenience. However, the form must be submitted within 45 days of the property transfer.
  • The information is confidential. A common belief is that the details provided on the form are confidential. In reality, the information on this form is not confidential and may be accessed by the public.
  • Only real estate transfers require this form. While the form is primarily for real estate, it is also necessary for certain types of personal property transfers, such as leasehold improvements.
  • Only the buyer needs to file. Some people think that only the buyer is responsible for filing the form. However, it must be filed by the new owner, which could include multiple parties depending on the situation.
  • All transfers are subject to uncapping. There is a misconception that all property transfers are subject to uncapping. Certain transfers, such as those between family members or spouses, may be exempt.
  • Completing optional items is unnecessary. While items 10-15 are labeled as optional, completing them can help avoid further correspondence with the assessor's office.
  • Penalties are not enforced. Some believe that there are no consequences for failing to file the form on time. In fact, there are penalties, including additional taxes and interest, for late submissions.

Key takeaways

The Michigan 2766 form is essential for property transfers. Here are key takeaways to keep in mind:

  • Filing Requirement: This form must be filed whenever real estate or certain personal property is transferred. It is mandatory, even if no deed is recorded.
  • Deadline: The new owner must submit the form to the local assessor within 45 days of the property transfer.
  • Information Required: Key details include the property address, date of transfer, purchase price, and names of both the seller and buyer.
  • Optional Sections: Items 10-15 are optional but completing them can help avoid further correspondence with the assessor.
  • Exemptions: Certain transfers may be exempt from uncapping. If applicable, the type of exemption must be indicated on the form.
  • Penalties: Failing to file the form on time can result in additional taxes and penalties, which can accumulate quickly.

Understanding these points can help ensure compliance and avoid unnecessary complications during property transfers in Michigan.