Homepage Blank Mhd 1023 Texas PDF Form
Article Guide

The Mhd 1023 Texas form is a crucial document for anyone involved in the sale or transfer of manufactured homes within the state of Texas. This form serves as an application for a Statement of Ownership and Location, which is necessary for establishing legal ownership and ensuring that the home is properly registered. It is important to note that applications submitted more than sixty days after the sale may incur a late fee of up to one hundred dollars, potentially delaying the processing of the application until the fee is paid. The form is divided into several blocks, each requiring specific information such as transaction details, home specifications, and ownership information. For instance, Block 1 identifies the type of transaction, while Block 2 gathers essential details about the home, including its model, manufacture date, and dimensions. Additionally, the form addresses important aspects like liens, right of survivorship, and whether the home will be treated as personal or real property. Understanding the requirements and completing the Mhd 1023 accurately can help ensure a smooth transition of ownership and compliance with state regulations.

Document Preview

Form Specifications

Fact Name Fact Description
Governing Authority The MHD 1023 form is governed by the Texas Department of Housing and Community Affairs.
Purpose This form is used to apply for a Statement of Ownership and Location for manufactured homes.
Filing Deadline Applications must be filed within 60 days of the sale date to avoid a late fee.
Late Fee A late application may incur a fee of up to $100 if not submitted on time.
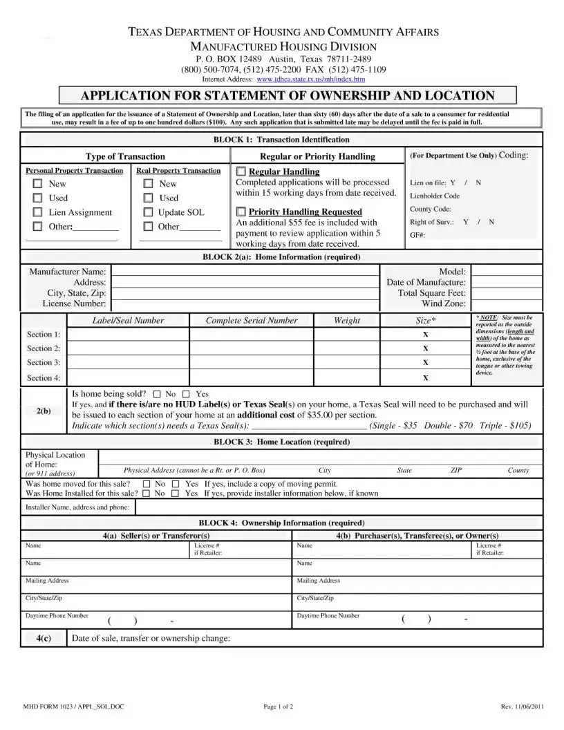
Handling Options Applicants can choose between regular handling (15 days) and priority handling (5 days with an additional fee).
Home Information Required Details such as model, date of manufacture, and serial number must be provided.
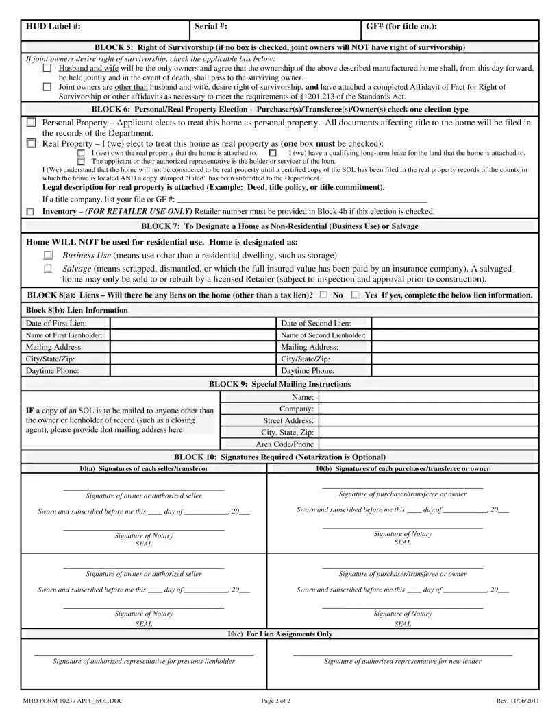
Right of Survivorship Joint owners can opt for right of survivorship by checking the appropriate box on the form.
Liens Disclosure Applicants must disclose any liens on the home, including details of the lienholders.

Mhd 1023 Texas: Usage Guidelines

Filling out the MHD 1023 Texas form is an important step in the process of obtaining a Statement of Ownership and Location for your manufactured home. Make sure to have all the necessary information at hand, as this will help streamline the process. Follow these steps carefully to ensure that your application is complete and accurate.

  1. Identify the type of transaction. In Block 1, select whether it is a personal property or real property transaction. Fill in the manufacturer name, address, city, state, zip, and license number.
  2. Provide home information. In Block 2(a), fill in the model, date of manufacture, total square feet, wind zone, label/seal number, complete serial number, and weight size. Indicate if the home is being sold.
  3. Enter the physical location. In Block 3, provide the physical address of the home. Make sure it is not a P.O. Box. Indicate if the home was moved for this sale and if it was installed for this sale.
  4. Fill in ownership information. In Block 4, list the names and addresses of the seller(s) and purchaser(s). Include their daytime phone numbers and license numbers if applicable.
  5. Indicate right of survivorship. In Block 5, check the appropriate box if joint owners want the right of survivorship.
  6. Select personal or real property election. In Block 6, choose whether you want to treat the home as personal or real property. Check the relevant boxes based on your ownership situation.
  7. Designate the home’s use. In Block 7, specify if the home is for business use or salvage.
  8. Provide lien information. In Block 8, indicate if there will be any liens on the home. If yes, complete the lien information section.
  9. Include special mailing instructions. In Block 9, provide the mailing address if a copy of the SOL needs to be sent to someone other than the owner or lienholder.
  10. Sign the form. In Block 10, ensure that all required signatures are obtained. Notarization is optional but can add an extra layer of validity.

Once you have completed the form, review it for accuracy and completeness. After that, submit it along with any required fees to the Texas Department of Housing and Community Affairs. Keep a copy for your records. This will help you track your application and address any issues that may arise during processing.

Your Questions, Answered

What is the Mhd 1023 Texas form used for?

The Mhd 1023 Texas form is an application for a Statement of Ownership and Location for manufactured homes. This document is essential for establishing legal ownership and location details of a manufactured home in Texas. It is typically required when a home is sold or transferred, ensuring that the new owner has clear title to the property. Submitting this application within 60 days of the sale is crucial to avoid additional fees.

What happens if I submit the application late?

If the application for the Statement of Ownership and Location is submitted later than 60 days after the sale, a fee of up to $100 may be imposed. Additionally, the processing of your application will be delayed until this fee is paid in full. It’s best to submit the application promptly to avoid any unnecessary costs and delays.

What information do I need to provide on the form?

The form requires several key details, including the type of transaction (personal or real property), home information (like model, date of manufacture, and size), ownership information (names and addresses of sellers and purchasers), and any lien information if applicable. You will also need to indicate if the home is being sold, if it was moved for the sale, and whether it will be treated as personal or real property. Providing accurate and complete information helps ensure a smooth processing of your application.

Can I request priority handling for my application?

Yes, you can request priority handling for your application. By selecting this option and paying an additional fee of $55, your application will be reviewed within five working days from the date it is received. This can be particularly useful if you need to expedite the ownership transfer process. Otherwise, regular handling will process applications within 15 working days.

Common mistakes

  1. Missing Required Information: Some applicants forget to fill out all required fields. Each section, especially the home information and ownership details, must be completed. Missing information can delay processing.

  2. Incorrect Transaction Type: Selecting the wrong transaction type can lead to confusion. Ensure you choose either personal property or real property based on your situation. This choice affects how the application is processed.

  3. Late Submission: Submitting the application later than 60 days after the sale can incur a fee. Make sure to send in the application on time to avoid additional costs and delays.

  4. Incomplete Signatures: All required signatures must be present. Missing signatures from sellers or purchasers can result in the application being rejected. Double-check that everyone involved has signed where necessary.

Documents used along the form

The Mhd 1023 Texas form is a crucial document for those involved in the sale or transfer of manufactured homes. It serves as an application for a Statement of Ownership and Location, which is essential for establishing legal ownership and proper documentation. Alongside this form, several other documents may be required or beneficial in the process. Below is a list of commonly used forms and documents that complement the Mhd 1023 Texas form.

  • Moving Permit: This document is necessary if the manufactured home has been relocated for the sale. It provides proof that the home was moved legally and safely.
  • Affidavit of Fact for Right of Survivorship: If joint owners wish to ensure that ownership passes to the surviving owner upon death, this affidavit must be completed and attached.
  • Installer Information: If the home is being installed for the sale, details about the installer, including their name and contact information, may be required.
  • Legal Description of Real Property: When treating the home as real property, a legal description must be provided. This could include a deed, title policy, or title commitment.
  • Liens Documentation: If there are existing liens on the home, documentation must be submitted, detailing the lienholder(s) and the dates of the liens.
  • Title Policy or Title Commitment: This document outlines the terms of the title insurance policy and confirms the legal ownership of the property.
  • Sales Agreement: A sales agreement outlines the terms and conditions of the sale between the buyer and seller, providing clarity and protection for both parties.
  • Identification Documents: Valid identification for all parties involved, including sellers and purchasers, may be required to verify identity and eligibility.
  • Proof of Insurance: Evidence that the manufactured home is insured can be necessary, especially if financing is involved.
  • Notification of Sale: Some jurisdictions may require a formal notification to be sent to the local housing authority or relevant agency upon the sale of the home.

Having these documents in order can streamline the process of transferring ownership and ensure compliance with state regulations. It is always advisable to consult with professionals familiar with manufactured housing transactions to ensure all necessary paperwork is completed accurately and efficiently.

Similar forms

The Mhd 1023 Texas form is similar to several other documents related to property ownership and transactions. Here are ten documents that share similarities:

  • Statement of Ownership and Location (SOL): Like the Mhd 1023, this document is essential for proving ownership of a manufactured home and must be filed with the Texas Department of Housing and Community Affairs.
  • Title Application for Manufactured Home: This application serves a similar purpose by establishing legal ownership of a manufactured home and includes details about the home and the owner.
  • Bill of Sale: This document is used to transfer ownership from one party to another, similar to how the Mhd 1023 facilitates ownership changes for manufactured homes.
  • Affidavit of Fact for Right of Survivorship: This affidavit is used when joint owners wish to specify how ownership will transfer upon death, akin to the right of survivorship section in the Mhd 1023.
  • Moving Permit: If a home is relocated, a moving permit must be obtained, paralleling the requirement in the Mhd 1023 to disclose if the home was moved for sale.
  • Installer Information Form: This form collects details about the installer of a manufactured home, similar to the installer information requested in the Mhd 1023.
  • Property Tax Exemption Application: This application can be filed to exempt a manufactured home from property taxes, just as the Mhd 1023 addresses property classification.
  • Lease Agreement: If the home is on leased land, this document outlines the terms of the lease, similar to the real property election in the Mhd 1023.
  • Loan Agreement: This document details the terms of financing for the purchase of a manufactured home, akin to the lien information required in the Mhd 1023.
  • Homeowner’s Insurance Policy: This policy protects the homeowner against loss or damage, similar to how the Mhd 1023 protects ownership rights.

Dos and Don'ts

When filling out the MHD 1023 Texas form, it is important to follow certain guidelines to ensure a smooth application process. Here are eight things you should and shouldn't do:

  • Do complete all required fields accurately to avoid delays.
  • Do double-check your calculations, especially for fees and dimensions.
  • Do provide a physical address instead of a P.O. Box for the home location.
  • Do attach any necessary documents, such as moving permits or affidavits.
  • Don't submit the application late, as this may incur additional fees.
  • Don't forget to indicate if the home is being sold or if it has been moved.
  • Don't leave any sections blank; incomplete forms may be rejected.
  • Don't forget to sign and date the application where required.

Misconceptions

Misconceptions about the Mhd 1023 Texas form can lead to confusion and delays in processing applications. Below are six common misconceptions, along with clarifications to help you understand the form better.

  • Late submissions incur no penalties. Many believe that submitting the application late will not result in any consequences. However, if the application is filed more than sixty days after the sale, a fee of up to $100 may apply.
  • All applications are processed immediately. Some individuals think that all applications are processed right away. In reality, completed applications are typically processed within 15 working days unless priority handling is requested.
  • The form is only for new manufactured homes. It is a common misconception that the Mhd 1023 form is only relevant for new homes. This form applies to both new and used manufactured homes.
  • Only the seller needs to sign the application. Some people assume that only the seller's signature is necessary. In fact, signatures from both the seller and the purchaser are required for the application to be valid.
  • Home location can be a P.O. Box. Many believe that providing a P.O. Box for the home location is acceptable. The form explicitly states that a physical address must be provided, and P.O. Boxes are not allowed.
  • Right of survivorship is automatic for joint owners. There is a misconception that joint owners automatically have the right of survivorship. Joint owners must check the appropriate box on the form to establish this right; otherwise, it will not apply.

Key takeaways

Filling out the Mhd 1023 Texas form requires careful attention to detail. Here are some key takeaways to help guide you through the process:

  • Timeliness is Crucial: Submit your application within sixty (60) days of the sale to avoid a potential late fee of up to $100. Late submissions may also delay processing until the fee is paid.
  • Accurate Home Information: Ensure that you provide complete and accurate details about the home, including model, date of manufacture, and serial number. Missing information can lead to processing delays.
  • Ownership Details Matter: Clearly list all sellers and purchasers. Provide accurate mailing addresses and contact information to facilitate communication.
  • Right of Survivorship: If applicable, check the appropriate box for joint ownership. This will determine how ownership is handled in the event of a death.
  • Choose Property Type Carefully: Decide whether the home will be treated as personal property or real property. This decision impacts how the home is recorded and what documents are required.

By keeping these points in mind, you can navigate the Mhd 1023 Texas form with greater confidence and clarity.