Homepage Blank Illinois Apc 430 PDF Form
Article Guide

The Illinois APC 430 form is a critical document for anyone involved in the demolition or renovation of buildings that may contain asbestos. This form ensures compliance with federal regulations regarding asbestos management, specifically the National Emission Standards for Hazardous Air Pollutants (NESHAP). It requires detailed information about the facility, including its description, current and past uses, and the presence of asbestos-containing materials (ACM). Individuals must indicate the type of operation—whether it’s a renovation, demolition, or emergency work. Additionally, the form mandates the scheduling of asbestos removal and demolition dates, along with the identification of contractors responsible for these tasks. Key sections also address the procedures for detecting asbestos, the engineering controls to prevent emissions during the work, and the steps to take if unexpected asbestos is discovered. Importantly, a filing fee is associated with the initial notification, and all sections of the form must be completed accurately to avoid violations. This form serves as a vital tool in protecting public health and the environment during construction activities.

Document Preview

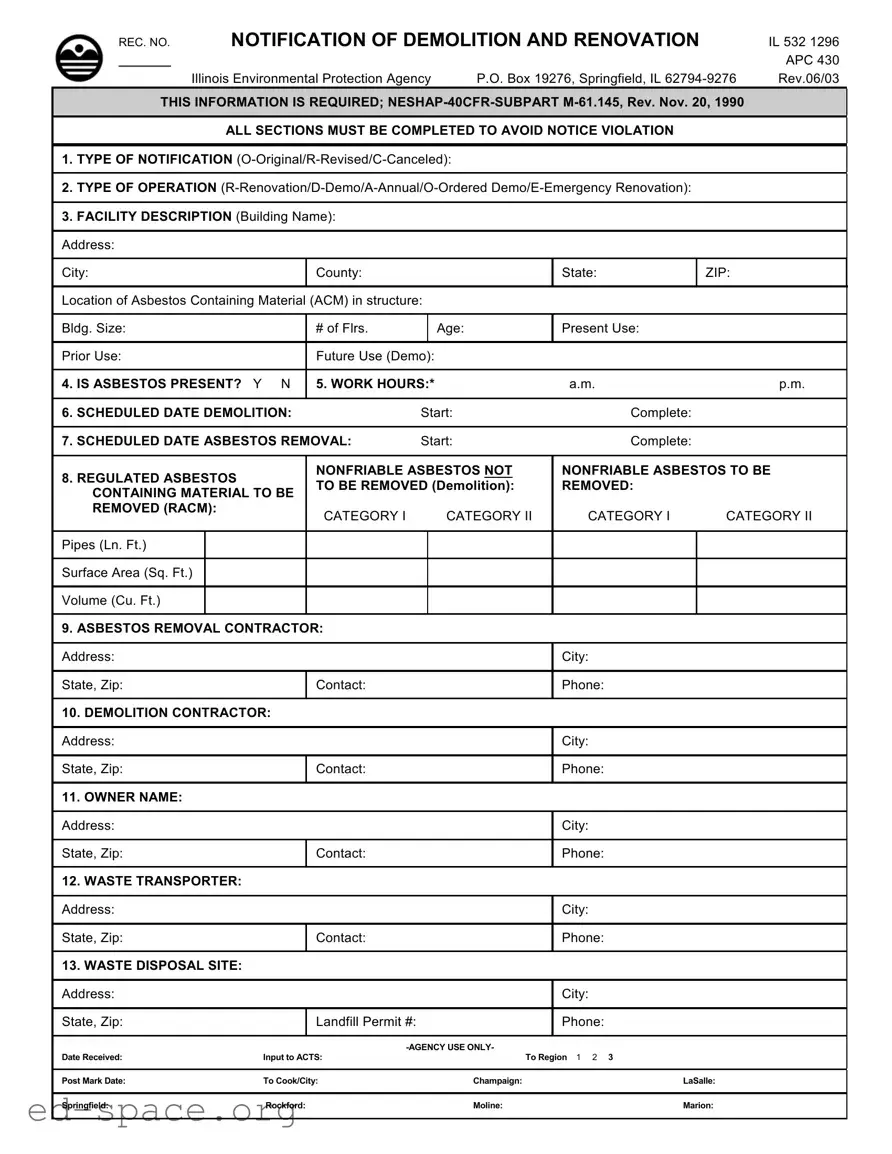
REC. NO. NOTIFICATION OF DEMOLITION AND RENOVATION

IL 532 1296 APC 430

Illinois Environmental Protection Agency

P.O. Box 19276, Springfield, IL 62794-9276

Rev.06/03

THIS INFORMATION IS REQUIRED; NESHAP-40CFR-SUBPART M-61.145, Rev. Nov. 20, 1990

ALL SECTIONS MUST BE COMPLETED TO AVOID NOTICE VIOLATION

1.TYPE OF NOTIFICATION (O-Original/R-Revised/C-Canceled):

2.TYPE OF OPERATION (R-Renovation/D-Demo/A-Annual/O-Ordered Demo/E-Emergency Renovation):

3.FACILITY DESCRIPTION (Building Name):

Address:

City:

 

County:

 

 

State:

 

ZIP:

 

 

 

 

 

 

 

Location of Asbestos Containing Material (ACM) in structure:

 

 

 

 

 

 

 

 

 

 

 

 

Bldg. Size:

 

# of Flrs.

 

Age:

Present Use:

 

 

 

 

 

 

 

 

 

 

Prior Use:

 

Future Use (Demo):

 

 

 

 

 

 

 

 

 

 

4. IS ASBESTOS PRESENT?

Y N

5. WORK HOURS:*

a.m.

 

p.m.

 

 

 

 

 

6. SCHEDULED DATE DEMOLITION:

 

Start:

Complete:

 

 

 

 

7. SCHEDULED DATE ASBESTOS REMOVAL:

Start:

Complete:

 

 

 

 

 

8. REGULATED ASBESTOS

 

NONFRIABLE ASBESTOS NOT

NONFRIABLE ASBESTOS TO BE

 

TO BE REMOVED (Demolition):

REMOVED:

 

 

CONTAINING MATERIAL TO BE

 

 

 

 

 

 

 

 

REMOVED (RACM):

 

CATEGORY I

 

CATEGORY II

CATEGORY I

 

CATEGORY II

 

 

 

 

 

 

 

 

 

 

 

 

 

 

Pipes (Ln. Ft.)

 

 

 

 

 

 

 

 

 

 

 

 

 

 

 

 

 

Surface Area (Sq. Ft.)

 

 

 

 

 

 

 

 

 

 

 

 

 

 

 

 

 

Volume (Cu. Ft.)

 

 

 

 

 

 

 

 

 

 

 

 

 

 

 

 

9. ASBESTOS REMOVAL CONTRACTOR:

 

 

 

 

 

 

 

 

 

 

 

 

 

Address:

 

 

 

 

City:

 

 

 

 

 

 

 

 

 

 

State, Zip:

 

Contact:

 

 

Phone:

 

 

 

 

 

 

 

 

 

10. DEMOLITION CONTRACTOR:

 

 

 

 

 

 

 

 

 

 

 

 

 

 

Address:

 

 

 

 

City:

 

 

 

 

 

 

 

 

 

 

State, Zip:

 

Contact:

 

 

Phone:

 

 

 

 

 

 

 

 

 

 

11. OWNER NAME:

 

 

 

 

 

 

 

 

 

 

 

 

 

 

 

Address:

 

 

 

 

City:

 

 

 

 

 

 

 

 

 

 

State, Zip:

 

Contact:

 

 

Phone:

 

 

 

 

 

 

 

 

 

 

12. WASTE TRANSPORTER:

 

 

 

 

 

 

 

 

 

 

 

 

 

 

 

Address:

 

 

 

 

City:

 

 

 

 

 

 

 

 

 

 

State, Zip:

 

Contact:

 

 

Phone:

 

 

 

 

 

 

 

 

 

 

13. WASTE DISPOSAL SITE:

 

 

 

 

 

 

 

 

 

 

 

 

 

 

 

Address:

 

 

 

 

City:

 

 

 

 

 

 

 

 

State, Zip:

 

Landfill Permit #:

Phone:

 

 

 

 

 

 

 

 

 

 

 

 

 

 

-AGENCY USE ONLY-

 

 

 

Date Received:

Input to ACTS:

 

To Region 1 2 3

 

 

 

 

 

 

 

 

Post Mark Date:

To Cook/City:

 

Champaign:

 

LaSalle:

 

 

 

 

 

 

 

Springfield:

Rockford:

 

 

Moline:

 

Marion:

 

 

 

 

 

 

 

 

 

14.PROCEDURE, INCLUDING ANALYTICAL METHOD, USED TO DETECT THE PRESENCE OF ASBESTOS.

ILLINOIS LICENSE NUMBER OF INSPECTOR: NAME OF ANALYTICAL TESTING LABORATORY:

15.DESCRIPTION OF PLANNED DEMOLITION OR RENOVATION WORK:

METHODS TO BE EMPLOYED INCLUDING DEMOLITION OR RENOVATION TECHNIQUES.

16.DESCRIPTION OF WORK PRACTICES AND ENGINEERING CONTROLS TO BE USED TO PREVENT EMISSIONS AT THE DEMOLITION OR RENOVATION SITE:

17. IS DEMOLITION ORDERED BY A GOVERNMENTAL AGENCY?

Y N (If Yes, a signed copy of Order must be attached.)

 

 

Governmental representative ordering the activity:

 

 

 

 

Title:

Date of Order:

Ordered Demolition Date:

18.FOR EMERGENCY RENOVATIONS: Date and Hour of Emergency:

Description of the Sudden, Unexpected Event (e.g. structure in danger of eminent collapse):

19.DESCRIPTION OF PROCEDURES TO BE FOLLOWED IN THE EVENT THAT UNEXPECTED ASBESTOS IS FOUND OR PREVIOUSLY NONFRIABLE ASBESTOS MATERIAL BECOMES CRUMBLED, PULVERIZED, OR REDUCED TO POWDER.

20.I CERTIFY THAT AT LEAST ONE REPRESENTATIVE, TRAINED IN THE PROVISIONS OF 40 CFR PART 61, SUBPART M, SHALL BE ON-SITE DURING DEMOLITION OR RENOVATION, HAVING IN HIS OR HER POSSESSION, FOR INSPECTION, EVIDENCE THAT THE REQUISITE TRAINING HAS BEEN ACCOMPLISHED.

I CERTIFY THE ABOVE INFORMATION IS CORRECT.

Signature of Owner/Operator Date

(Original Signature Only, Photocopy Not Valid)

A FILING FEE OF $150 MUST BE PAID WITH EACH INITIAL 10-WORKING DAY NOTIFICATION REQUIRED BY THE ASBESTOS NESHAP. MAKE CHECKS PAYABLE TO ILLINOIS EPA AND MAKE NOTATION THAT IT IS FOR THE 10-WORKING DAY NOTIFICATION FEE. CASH AND CREDIT CARDS ARE NOT ACCEPTABLE. IF THE FEE IS NOT SUBMITTED WITH THE NOTIFICATION, THE NOTIFICATION WILL BE DEEMED IMPROPERLY FILED.

*Not required under NESHAPS.

Mail this form to: IL Environmental Protection Agency, Attn: Asbestos Unit, P.O. Box 19276, Springfield, IL 62794-9276

Form Specifications

Fact Name Details
Purpose The Illinois APC 430 form is used to notify the Illinois Environmental Protection Agency about demolition and renovation activities involving asbestos.
Governing Law This form is governed by the National Emission Standards for Hazardous Air Pollutants (NESHAP), specifically 40 CFR Subpart M, Section 61.145.
Required Information All sections of the form must be completed to avoid a notice of violation, ensuring compliance with state regulations.
Filing Fee A filing fee of $150 must accompany the initial notification. This fee is mandatory for processing the form.
Submission Address The completed form should be mailed to the Illinois Environmental Protection Agency, Asbestos Unit, P.O. Box 19276, Springfield, IL 62794-9276.
Emergency Situations In cases of emergency renovations, specific details about the unexpected event must be provided on the form.
Training Certification The form requires a certification that at least one trained representative will be present on-site during the demolition or renovation process.

Illinois Apc 430: Usage Guidelines

Completing the Illinois APC 430 form is an important step in notifying authorities about demolition and renovation activities involving asbestos. Properly filling out this form helps ensure compliance with environmental regulations. Follow these steps to accurately complete the form.

  1. Type of Notification: Indicate whether this is an original (O), revised (R), or canceled (C) notification.
  2. Type of Operation: Select the type of operation: renovation (R), demolition (D), annual (A), ordered demolition (O), or emergency renovation (E).
  3. Facility Description: Fill in the building name, address, city, county, state, ZIP code, location of asbestos-containing material (ACM), building size, number of floors, age, present use, prior use, and future use (for demolition).
  4. Is Asbestos Present? Mark 'Y' for yes or 'N' for no.
  5. Work Hours: Specify the work hours in a.m. and p.m.
  6. Scheduled Date of Demolition: Provide the start and completion dates for the demolition.
  7. Scheduled Date of Asbestos Removal: Provide the start and completion dates for the asbestos removal.
  8. Regulated Asbestos: Indicate the amounts of non-friable and friable asbestos to be removed, including categories and measurements.
  9. Asbestos Removal Contractor: Enter the contractor's name, address, city, state, ZIP code, contact person, and phone number.
  10. Demolition Contractor: Enter the contractor's name, address, city, state, ZIP code, contact person, and phone number.
  11. Owner Name: Fill in the owner's name, address, city, state, ZIP code, contact person, and phone number.
  12. Waste Transporter: Provide the name, address, city, state, ZIP code, contact person, and phone number of the waste transporter.
  13. Waste Disposal Site: Enter the name, address, city, state, ZIP code, landfill permit number, and phone number of the disposal site.
  14. Agency Use Only: Leave this section blank; it is for agency use.
  15. Procedure for Asbestos Detection: Describe the procedure and provide the Illinois license number of the inspector and the name of the analytical testing laboratory.
  16. Description of Planned Work: Detail the planned demolition or renovation work and methods to be employed.
  17. Work Practices: Describe the work practices and engineering controls to prevent emissions at the site.
  18. Ordered Demolition: Indicate if the demolition is ordered by a governmental agency and provide the representative's name, title, date of order, and ordered demolition date.
  19. Emergency Renovations: Provide the date and hour of the emergency and describe the unexpected event.
  20. Unexpected Asbestos Procedures: Describe the procedures to follow if unexpected asbestos is found.
  21. Certification: Sign and date the form, certifying that at least one trained representative will be on-site during the demolition or renovation.

After completing the form, ensure that a filing fee of $150 is included with the submission. Make checks payable to the Illinois EPA and note that it is for the 10-working day notification fee. Mail the completed form to the Illinois Environmental Protection Agency at the address provided in the instructions.

Your Questions, Answered

What is the purpose of the Illinois APC 430 form?

The Illinois APC 430 form serves as a notification to the Illinois Environmental Protection Agency regarding the demolition or renovation of structures that may contain asbestos. This form is required to comply with federal regulations under the National Emission Standards for Hazardous Air Pollutants (NESHAP). It ensures that proper procedures are followed to manage asbestos safely and to protect public health and the environment during demolition or renovation activities.

Who needs to fill out the APC 430 form?

The form must be completed by the owner or operator of a facility where demolition or renovation work will take place. This includes contractors and any representatives involved in the project. It is essential that all relevant parties understand their responsibilities regarding asbestos management and that they provide accurate information on the form to avoid violations.

What information is required on the APC 430 form?

The form requires detailed information about the facility, including its name, address, and current and prior uses. Additionally, it asks whether asbestos is present and provides sections for the scheduled dates of demolition and asbestos removal. Information about contractors, waste transporters, and disposal sites must also be included. Completing all sections accurately is crucial to prevent delays or penalties.

What are the consequences of not submitting the APC 430 form correctly?

If the APC 430 form is not completed in full or submitted with the required filing fee, it may be deemed improperly filed. This can result in notice violations and potential fines. It is vital to ensure that all sections are filled out correctly and that the $150 filing fee is included with the initial notification. Cash and credit card payments are not accepted, so a check should be made payable to the Illinois EPA.

What should be done if unexpected asbestos is discovered during demolition or renovation?

The APC 430 form includes a section that outlines procedures to follow if unexpected asbestos is found or if previously non-friable asbestos material becomes crumbled or pulverized. It is important to have a plan in place to address such situations promptly and safely. This may involve halting work, notifying the appropriate authorities, and engaging qualified asbestos removal professionals to handle the situation in compliance with regulations.

Common mistakes

  1. Incomplete Sections: Failing to fill out all required sections can lead to a notice violation. Each section is important for compliance.

  2. Incorrect Type of Notification: Selecting the wrong notification type (Original, Revised, or Canceled) can cause delays and complications in processing.

  3. Misidentifying the Type of Operation: Not accurately identifying whether the operation is a renovation, demolition, or another type can lead to regulatory issues.

  4. Missing Facility Details: Omitting critical facility information, such as the building name or address, can hinder the identification of the project.

  5. Asbestos Presence Question: Neglecting to answer whether asbestos is present can result in significant legal and safety repercussions.

  6. Incorrect Dates: Providing inaccurate scheduled dates for demolition or asbestos removal can lead to scheduling conflicts and regulatory scrutiny.

  7. Improper Contractor Information: Failing to provide complete contact details for the asbestos removal and demolition contractors can create communication barriers.

  8. Missing Signatures: Not including the original signature of the owner or operator invalidates the submission.

  9. Omitting the Filing Fee: Not submitting the required $150 fee with the notification will result in the notification being deemed improperly filed.

Documents used along the form

When dealing with asbestos-related projects in Illinois, the APC 430 form is just one part of the documentation needed to ensure compliance with environmental regulations. Several other forms and documents accompany this process, each serving a specific purpose. Understanding these documents can help streamline your project and avoid potential legal pitfalls.

  • Asbestos Inspection Report: This document outlines the findings from an inspection conducted to identify the presence of asbestos in a building. It provides details about the location, type, and condition of any asbestos-containing materials.
  • Asbestos Abatement Plan: This plan details the methods and procedures for safely removing or encapsulating asbestos. It includes timelines, safety protocols, and the qualifications of the contractors involved.
  • Notification of Asbestos Abatement: This form must be submitted to the appropriate regulatory agency prior to starting any abatement work. It notifies the agency of the planned activities and ensures that all necessary precautions are in place.
  • Waste Manifest: This document tracks the transportation and disposal of asbestos waste. It includes information about the waste generator, transporter, and disposal site, ensuring that all waste is handled according to legal requirements.
  • Air Monitoring Report: Conducted during and after abatement activities, this report assesses the air quality to ensure that asbestos fibers are not present in the air at unsafe levels. It is crucial for protecting public health.
  • Contractor Licensing Documentation: This includes proof that the asbestos removal contractor holds the necessary licenses and certifications to perform abatement work in Illinois. It assures compliance with state regulations.
  • Emergency Response Plan: If unexpected asbestos is discovered during renovation or demolition, this plan outlines the steps to take to mitigate exposure and ensure safety for workers and the public.
  • Post-Abatement Clearance Report: After the abatement process, this report confirms that the area has been cleared of asbestos and is safe for reoccupation. It is essential for regulatory compliance.
  • Governmental Order Documentation: If demolition is ordered by a governmental agency, this document provides the official order and any conditions that must be met during the demolition process.
  • Training Certificates: Certificates proving that personnel involved in the demolition or renovation have received the required training in asbestos handling and safety protocols. These documents must be available on-site during the project.

Having these documents in order not only ensures compliance with regulations but also promotes safety for everyone involved in the project. Proper preparation can lead to a smoother process and help avoid costly delays or legal issues down the line.

Similar forms

The Illinois APC 430 form is essential for notifying the Illinois Environmental Protection Agency about demolition and renovation activities involving asbestos. Here are eight documents that share similarities with the APC 430 form:

  • Asbestos Notification Form: Like the APC 430, this form serves to inform regulatory agencies about planned asbestos-related work, ensuring compliance with federal and state regulations.
  • Demolition Permit Application: This document is required before starting demolition work. It includes details about the project and ensures that all necessary precautions, including asbestos management, are taken.
  • Renovation Permit Application: Similar to the demolition permit, this application outlines renovation plans, including any asbestos removal, and ensures compliance with safety regulations.
  • Asbestos Abatement Plan: This plan details the methods and procedures for safely removing asbestos from a building, paralleling the APC 430's requirement for a description of planned work practices.
  • Asbestos Inspection Report: This document provides the results of an inspection for asbestos presence, which is a critical step before submitting the APC 430 form.
  • Emergency Renovation Notification: This form is used when unexpected asbestos removal is needed due to an emergency. It aligns with the APC 430's section on emergency renovations.
  • Waste Disposal Manifest: This document tracks the disposal of asbestos waste, ensuring that it is handled according to regulations, similar to the waste disposal information required in the APC 430.
  • Training Certification for Asbestos Workers: This certification confirms that workers have received the necessary training to handle asbestos safely, echoing the APC 430's requirement for trained personnel on-site.

Dos and Don'ts

When filling out the Illinois APC 430 form, it is crucial to ensure that the information provided is accurate and complete. Here are four key things to keep in mind, including what to do and what to avoid.

  • Do ensure all sections are completed: Each part of the form is necessary to prevent any notice violations. Missing information can lead to delays or rejections.
  • Do double-check for accuracy: Review all entries for correctness. Mistakes can complicate the process and may require resubmission.
  • Don't forget the filing fee: A fee of $150 must accompany the initial notification. Ensure that you include this payment, as failure to do so will result in improper filing.
  • Don't submit a photocopy: Only the original signature is valid. A photocopy will not be accepted, so make sure to sign the form in person.

Misconceptions

Misconceptions about the Illinois APC 430 form can lead to confusion and potential violations. Here are six common misunderstandings:

  • Only demolition projects require the APC 430 form. Many people think this form is necessary only for demolitions. In reality, it is also required for renovations that involve asbestos.
  • Asbestos presence does not need to be reported if it is not being removed. Some believe that if asbestos is not being disturbed, it doesn't need to be mentioned. However, the form requires information about asbestos presence regardless of whether it will be removed.
  • Filing the form is optional if the project is small. There is a misconception that smaller projects can bypass the notification process. All projects involving asbestos must comply with the notification requirements, regardless of size.
  • The filing fee is a one-time payment. Some individuals think that the $150 fee is only required for initial filings. Each notification must include this fee, which can apply multiple times if there are revisions or new notifications.
  • Signatures can be electronic or photocopied. There is a belief that electronic signatures or photocopies are acceptable. However, the form specifically states that only original signatures are valid.
  • Emergency renovations do not require notification. Many assume that emergency situations exempt them from filing. In fact, even for emergency renovations, the form must be completed and submitted.

Understanding these misconceptions can help ensure compliance with environmental regulations and avoid potential penalties. Always take the time to read the requirements carefully and seek guidance if needed.

Key takeaways

When filling out the Illinois APC 430 form, keep these key points in mind:

  • Complete All Sections: Make sure every section of the form is filled out. Incomplete forms may lead to violations.
  • Notification Type: Indicate whether the notification is original, revised, or canceled. This helps the agency track your submission accurately.
  • Asbestos Information: Clearly state if asbestos is present in the facility. This is crucial for safety and regulatory compliance.
  • Filing Fee: A fee of $150 is required with the initial notification. Ensure that the payment is included to avoid improper filing.
  • Emergency Situations: If the demolition or renovation is due to an emergency, provide detailed information about the event. This helps authorities understand the urgency.

By following these guidelines, you can help ensure that your form is processed smoothly and in compliance with regulations.