Homepage Blank Georgia Notification PDF Form
Article Guide

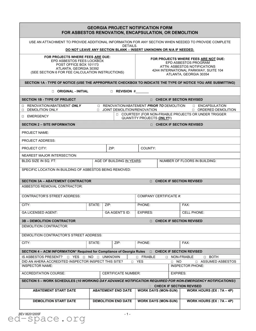
The Georgia Project Notification Form for Asbestos Renovation, Encapsulation, or Demolition is a crucial document for ensuring compliance with state regulations regarding asbestos management. This form is required for various types of projects, including renovations, demolitions, and encapsulations involving asbestos-containing materials (ACM). It serves multiple purposes, such as notifying the Environmental Protection Division (EPD) of the project's details, including the type of notice being submitted—whether it is an original or a revision. The form requires comprehensive site information, including the project name, address, and specific details about the building's age and size. Additionally, it necessitates the identification of contractors involved in the project, whether they are responsible for abatement or demolition. Proper completion of the form is essential, as it includes sections dedicated to the presence of asbestos, work schedules, and even fee calculations based on the amount and type of ACM being removed. Each section must be filled out accurately to avoid delays or penalties, emphasizing the importance of thorough documentation and compliance with both state and federal regulations. By understanding the key components of this form, individuals and contractors can ensure a smoother project process while prioritizing safety and regulatory adherence.

Document Preview

GEORGIA PROJECT NOTIFICATION FORM

FOR ASBESTOS RENOVATION, ENCAPSULATION, OR DEMOLITION

USE AN ATTACHMENT TO PROVIDE ADDITIONAL INFORMATION FOR ANY SECTION WHEN NEEDED TO PROVIDE COMPLETE

DETAILS.

DO NOT LEAVE ANY SECTION BLANK – INSERT UNKNOWN OR N/A IF NEEDED.

FOR PROJECTS WHERE FEES ARE DUE:

EPD ASBESTOS FEES LOCKBOX

POST OFFICE BOX 101173

ATLANTA, GEORGIA 30392

(SEE SECTION 6 FOR FEE CALCULATION INSTRUCTIONS)

FOR PROJECTS WHERE FEES ARE NOT DUE:

EPD ASBESTOS PROGRAM

ATTN: ASBESTOS NOTIFICATIONS

4244 INTERNATIONAL PARKWAY, SUITE 104

ATLANTA, GEORGIA 30354

SECTION 1A - TYPE OF NOTICE (USE THE APPROPRIATE CHECKBOX TO INDICATE THE TYPE OF NOTICE YOU ARE SUBMITTING)

 

 

ORIGINAL - INITIAL

 

 

REVISION #_______

 

 

 

 

 

 

 

 

 

 

 

 

 

 

 

 

 

SECTION 1B - TYPE OF PROJECT

 

 

 

 

 

 

฀ CHECK IF SECTION REVISED

 

 

 

 

 

 

 

 

 

 

 

 

 

 

 

RENOVATION/ABATEMENT ONLY

RENOVATION/ABATEMENT PRIOR TO DEMOLITION

ENCAPSULATION

 

DEMOLITION ONLY

JOINT DEMOLITION/RENOVATION

 

 

ORDERED DEMOLITION

 

EMERGENCY

 

 

 

 

 

 

COURTESY (FOR NON-FRIABLE PROJECTS OR UNDER TRIGGER

 

 

 

 

 

 

 

QUANTITY PROJECTS ONLY!!!)

 

 

 

 

 

 

 

 

 

 

 

 

 

 

SECTION 2 – SITE INFORMATION

 

 

 

 

 

 

฀ CHECK IF SECTION REVISED

 

 

 

 

 

 

 

 

 

 

 

 

 

 

 

 

PROJECT NAME:

 

 

 

 

 

 

 

 

 

 

 

 

 

 

 

 

 

 

 

 

 

 

 

 

 

 

 

 

 

PROJECT ADDRESS:

 

 

 

 

 

 

 

 

 

 

 

 

 

 

 

 

 

 

 

 

 

 

 

 

 

 

 

 

PROJECT CITY:

 

 

 

 

ZIP:

 

 

COUNTY:

 

 

 

 

 

 

 

 

 

 

 

 

 

 

 

 

 

 

 

NEAREST MAJOR INTERSECTION:

 

 

 

 

 

 

 

 

 

 

 

 

 

 

 

 

 

 

 

 

 

BLDG SIZE IN SQ. FT:

 

 

AGE OF BUILDING IN YEARS:

NUMBER OF FLOORS IN BUILDING:

 

 

 

 

 

 

 

 

 

 

 

 

SPECIFIC LOCATION IN BUILDING OF ASBESTOS BEING REMOVED:

 

 

 

 

 

 

 

 

 

 

 

 

 

 

 

 

 

 

SECTION 3A – ABATEMENT CONTRACTOR

 

 

 

 

 

 

฀ CHECK IF SECTION REVISED

 

 

 

 

 

 

 

 

 

 

 

 

 

 

 

ASBESTOS REMOVAL CONTRACTOR:

 

 

 

 

 

 

 

 

 

 

 

 

 

 

 

 

 

 

 

 

 

 

 

 

CONTRACTOR’S STREET ADDRESS:

 

 

 

 

 

COMPANY CERTIFICATE #:

 

 

 

 

 

 

 

 

 

 

 

 

 

 

CITY:

 

STATE:

ZIP:

 

PHONE:

 

FAX:

 

 

 

 

 

 

 

 

 

 

 

GA LICENSED AGENT:

 

GA AGENT’S ID:

EXPIRES:

 

CELL PHONE:

 

 

 

 

 

 

 

 

 

 

 

3B – DEMOLITION CONTRACTOR

 

 

 

 

 

 

฀ CHECK IF SECTION REVISED

 

 

 

 

 

 

 

 

 

 

 

 

 

 

DEMOLITION CONTRACTOR:

 

 

 

 

 

 

 

 

 

 

 

DEMOLITION CONTRACTOR’S STREET ADDRESS:

CITY:

STATE:

ZIP:

PHONE:

FAX:

SECTION 4 – ACM INFORMATION* Required for Compliance of Georgia Rules

฀ CHECK IF SECTION REVISED

IS ASBESTOS PRESENT? YES

NO UNKNOWN

 

FRIABLE

NON-FRIABLE

BOTH

DID AN AHERA ACCREDITED INSPECTOR INSPECT THIS SITE?

YES

 

 

NO

 

ASSUMED ASBESTOS

INSPECTOR NAME:

 

 

 

 

 

 

INSPECTOR PHONE:

 

 

 

 

 

 

 

 

ACCREDITATION COURSE:

 

CERTIFICATE NUMBER:

 

 

EXPIRES:

 

 

 

 

 

SECTION 5 – WORK SCHEDULES (10 WORKING DAY ADVANCE NOTIFICATION REQUIRED FOR NON-EMERGENCY NOTIFICATIONS!)

 

 

 

 

 

฀ CHECK IF SECTION REVISED

ABATEMENT START DATE

ABATEMENT END DATE

WORK DAYS (MON-SUN)

WORK HOURS (EX : 7A – 4P)

DEMOLITION START DATE

DEMOLITION END DATE

WORK DAYS (MON-SUN)

WORK HOURS (EX : 7A – 4P)

REV 062012005F

- 1 -

SECTION 6 – ACM AMOUNTS, TYPE CODES, AND FEE CALCULATION

฀ CHECK IF SECTION REVISED

FIRST, LOCATE THE MATERIAL TO BE REMOVED IN COLUMN A. COLUMN B SHOWS THE USUAL NESHAP CATEGORY FOR THE

MATERIAL. COLUMN C SHOWS THE CATEGORY THE MATERIAL WILL LIKELY BECOME DURING ABATEMENT, AND THAT IS THE CODE THAT SHOULD BE USED FOR COMPLETING THIS FORM. NOW, ENTER THE SQ. FT AND/OR L.F. AMOUNTS OF ACM TO BE ABATED DURING THIS PROJECT UNDER THE CORRECT HEADING ACCORDING TO TYPE IN COLUMN D, E, AND/OR F. THEN, LOCATE THE CORRESPONDING TYPE CODE(S) FOR THE MATERIAL(S) IN COLUMN G AND ENTER THE CODES IN THE SPACES PROVIDED BEFORE PROCEEDING TO THE FEE CALCULATION SECTION.

 

Column A

 

 

 

Column B

 

Column C

 

SF OR LF AMOUNT TO BE ABATED

 

Column

 

 

 

 

 

 

 

DURING PROJECT

 

 

 

G

 

 

 

 

 

 

 

 

 

 

 

 

 

 

 

 

 

 

 

 

 

 

 

 

USUAL NESHAP CATEGORY

 

WILL

 

 

 

 

 

 

 

 

 

 

 

 

 

 

 

 

 

 

 

 

 

 

 

LIKELY

 

Column D

 

 

Column E

 

Column F

 

ACM

 

ACM TYPE

 

Category

 

Category

 

 

 

 

BECOME

 

 

 

 

 

TYPE

 

 

 

RACM

 

 

Category I

 

 

Category 2

 

RACM

 

 

 

 

 

 

1

2

 

 

 

 

 

WHEN

 

 

 

 

 

 

 

 

CODE

 

 

 

 

 

 

 

 

 

 

 

 

 

ABATED

 

 

 

 

 

 

 

 

 

 

 

ASBESTOS ASPHALT SHINGLES

 

 

 

 

 

 

 

 

 

1 OR RACM

 

 

 

 

 

 

 

 

 

AAS

 

ASBESTOS CEMENT (TRANSITE) PANELS

 

 

 

 

 

 

 

 

 

2 OR RACM

 

 

 

 

 

 

 

 

 

ACP

 

ASBESTOS CEMENT (TRANSITE) ROOFING

 

 

 

 

 

 

 

 

RACM

 

 

 

 

 

 

 

 

ACR

 

ASBESTOS CEMENT (TRANSITE) SIDING SHINGLES

 

 

 

 

 

 

 

 

 

RACM

 

 

 

 

 

 

 

 

 

ACS

 

ASBESTOS FLASHING

 

 

 

 

 

 

 

1

 

 

 

 

 

 

 

 

 

AF

 

ASBESTOS GASKET

 

 

 

 

 

 

 

 

 

1 OR RACM

 

 

 

 

 

 

 

 

 

AG

 

BOILER INSULATION

 

 

 

 

 

 

 

 

 

RACM

 

 

 

 

 

 

 

 

 

BI

 

BUILT-UP ROOFING

 

 

 

 

 

 

 

 

 

 

1 OR RACM

 

 

 

 

 

 

 

 

BUR

 

COVE (BASEBOARD) MOLDING MASTIC

 

 

 

 

 

 

 

 

1

 

 

 

 

 

 

 

 

 

CM

 

CEILING PLASTER

 

 

 

 

 

 

 

 

 

 

RACM

 

 

 

 

 

 

 

 

 

CP

 

CEILING TILE

 

 

 

 

 

 

 

 

 

RACM

 

 

 

 

 

 

 

 

 

CT

 

DUCT SEAM MASTIC

 

 

 

 

 

 

 

 

 

 

1

 

 

 

 

 

 

 

 

DSM

 

DUCT VIBRATION DAMPENERS

 

 

 

 

 

 

 

 

1 OR RACM

 

 

 

 

 

 

 

 

DVD

 

EXTERIOR (OUTSIDE) DUCT INSULATION

 

 

 

 

 

 

 

 

 

RACM

 

 

 

 

 

 

 

 

 

EDI

 

FELT DUCT TAPE

 

 

 

 

 

 

 

 

 

RACM

 

 

 

 

 

 

 

 

 

FDT

 

FLOOR MASTIC

 

 

 

 

 

 

 

 

 

 

1

 

 

 

 

 

 

 

 

 

FM

 

FIREPROOFING

 

 

 

 

 

 

 

 

 

RACM

 

 

 

 

 

 

 

 

 

FP

 

FIREPROOFING AND OVERSPRAY

 

 

 

 

 

 

 

 

 

 

RACM

 

 

 

 

 

 

 

 

 

FPO

 

FLOOR TILE

 

 

 

 

 

 

 

 

 

1 OR RACM

 

 

 

 

 

 

 

 

 

FT

 

FLOOR TILE AND MASTIC

 

 

 

 

 

 

 

 

 

 

1 OR RACM

 

 

 

 

 

 

 

 

 

FTM

 

INTERIOR (INSIDE) DUCT INSULATION

 

 

 

 

 

 

 

 

RACM

 

 

 

 

 

 

 

 

 

IDI

 

JOINT COMPOUND ONLY

 

 

 

 

 

 

 

 

 

 

RACM

 

 

 

 

 

 

 

 

 

JC

 

LIGHT WEIGHT CONCRETE

 

 

 

 

 

 

 

 

RACM

 

 

 

 

 

 

 

 

LWC

 

OTHER: FLOOR LEVELING COMPOUND, CAULKING,

 

 

 

 

 

 

 

 

 

2 OR RACM

 

 

 

 

 

 

 

 

OTR

 

ETC.

 

 

 

 

 

 

 

 

 

 

 

 

 

 

 

 

 

 

 

 

 

 

 

 

 

 

 

 

 

 

 

 

 

 

 

 

 

 

 

 

 

 

 

 

PIPE INSULATION STRAIGHT RUNS

 

 

 

 

 

 

 

 

RACM

 

 

 

 

 

 

 

 

 

PI

 

PIPE INSULATION ELBOWS AND FITTINGS

 

 

 

 

 

 

 

 

 

 

RACM

 

 

 

 

 

 

 

 

 

PIE

 

RESILIENT FLOOR COVERINGS (SHEET FLOORING;

 

 

 

 

 

 

 

1 OR RACM

 

 

 

 

 

 

 

 

 

RFC

 

LINOLEUM)

 

 

 

 

 

 

 

 

 

 

 

 

 

 

 

 

 

 

 

 

 

 

 

 

 

 

 

 

 

 

 

 

 

 

 

 

 

 

 

 

 

ROOF MASTICS AND COATINGS

 

 

 

 

 

 

 

 

 

1

 

 

 

 

 

 

 

 

RMC

 

ROOFING SILVER COATING

 

 

 

 

 

 

 

 

 

1 OR RACM

 

 

 

 

 

 

 

 

RSC

 

TEXTURED CEILING

 

 

 

 

 

 

 

 

 

 

RACM

 

 

 

 

 

 

 

 

 

TC

 

TEXTURED CEILING PLASTER

 

 

 

 

 

 

 

 

 

RACM

 

 

 

 

 

 

 

 

 

TCP

 

TANK INSULATION

 

 

 

 

 

 

 

 

 

 

RACM

 

 

 

 

 

 

 

 

 

TI

 

WALL BOARD AND JOINT COMPOUND

 

 

 

 

 

 

 

 

 

RACM

 

 

 

 

 

 

 

 

WBJC

 

WINDOW GLAZING

 

 

 

 

 

 

 

 

 

1 OR RACM

 

 

 

 

 

 

 

 

 

WG

 

WALL PLASTER

 

 

 

 

 

 

 

 

 

RACM

 

 

 

 

 

 

 

 

 

WP

 

Row G: Enter the ACM Type Codes from Col. G for each Category Below.

 

 

 

 

 

 

Category 1

 

 

Category 2

 

RACM

 

 

 

 

Category 1: ____________________________________________________________________________

 

Total

 

 

Total

 

Total

 

 

 

 

Category 2: ____________________________________________________________________________

 

 

 

 

 

 

 

 

 

 

 

RACM: ________________________________________________________________________________

________

 

________

 

________

 

 

 

 

 

 

 

 

 

 

CALCULATING FEES

 

 

 

 

 

 

 

 

 

 

 

 

 

Row H. IS THIS A RESIDENTIAL PROJECT

YES

 

 

(USE TOTAL FROM COLUMN F (RACM) TO COMPLETE THIS SECTION)

 

 

 

 

 

 

 

 

 

 

RESIDENTIAL FEE SCHEDULE: $0.10 PER LF/SF

 

 

RESIDENTIAL PROJECT

 

 

 

TOTAL FEES DUE AND PAYABLE NOW

 

OF FRIABLE ACM WITH MINIMUM FEE: $25 -

 

 

COLUMN F (RACM) TOTAL

 

X $0.10

 

H (B) $_____________________

 

 

 

 

MAXIMUM FEE: $50 PER RESIDENCE/ DWELLING

 

 

H (A). ___________SF/LF

 

EQUALS

(NOT TO BE LESS THAN $25 OR MORE THAN $50 PER

 

UNIT.

 

 

 

 

 

 

 

 

 

 

 

 

 

 

 

UNIT)

 

 

 

 

 

Row I. IS THIS A NON-RESIDENTIAL PROJECT

฀ YES

(USE TOTAL FROM COLUMN F (RACM) TO COMPLETE THIS SECTION)

 

 

 

 

 

 

 

 

 

 

 

 

 

 

 

 

 

 

 

 

 

 

 

 

NON-RESIDENTIAL FEE SCHEDULE: $0.10 PER

LF/SF OF FRIABLE ACM WITH MINIMUM FEE: $25 -

MAXIMUM FEE: $1,000 PER FACILITY.

NON-RESIDENTIAL PROJECT COLUMN F (RACM) TOTAL

I (A). ___________SF/LF

X$0.10

EQUALS

TOTAL FEES DUE AND PAYABLE NOW

I (B) $_____________________

(NOT TO BE LESS THAN $25 OR MORE THAN $1,000)

 

CHECK NUMBER ____________ FOR THE AMOUNT SHOWN IN THE TOTAL FEES DUE ABOVE.

 

 

REV 062012005F

- 2 -

SECTION 7 - WASTE TRANSPORTER, DISPOSAL SITE, AND BUILDING OWNER INFORMATION

฀ CHECK IF SECTION REVISED

WASTE TRANSPORTERTRANSPORTER CONTACT PERSON: NAME

TRANSPORTER’S MAILING ADDRESS:

CITY:

STATE:

ZIP:

PHONE:

FAX:

 

 

 

 

 

All Detached Non-Friable and Friable ACM Must Go To an ACM Permitted Landfill.

DISPOSAL SITE

 

 

 

 

DI SPOSAL SI TE COUNTY:

 

NAME:

 

 

 

 

 

 

 

 

 

 

DISPOSAL SITE ADDRESS:

 

 

 

 

 

 

 

 

 

 

 

 

 

 

 

 

 

 

 

 

CITY:

STATE:

 

ZIP:

 

 

PHONE:

 

FAX:

 

 

 

 

 

 

 

PROJECT OWNER

 

 

 

OWNER’S REPRESENTATIVE:

 

NAME:

 

 

 

 

 

 

 

 

 

 

OWNER’S STREET ADDRESS:

 

 

 

 

 

 

 

 

 

 

 

 

 

 

 

 

 

 

 

 

 

OWNER’S MAILING ADDRESS (IF DIFFERENT):

 

 

 

 

 

 

 

 

 

 

 

 

 

 

 

 

 

 

 

CITY:

STATE:

 

ZIP:

 

 

PHONE:

 

FAX:

 

 

 

 

 

SECTION 8 - WORK METHODS: METHOD OF DEMOLITION AND/OR RENOVATION ACTIVITY (DESCRIPTION OF WORK PRACTICES,

ENGINEERING CONTROLS, AND CLEARANCE METHODS)

 

฀ CHECK IF SECTION REVISED

 

 

 

 

 

 

 

 

 

 

 

 

 

 

 

 

SECTION 9 - ADDITIONAL PROJECT INFORMATION

 

฀ CHECK IF SECTION REVISED

 

WILL ASBESTOS REMAIN IN THE PROJECT AREA?

NO

 

YES

UNKNOWN

 

EXPLAIN ‘YES’ OR ‘UNKNOWN’:

 

 

 

 

 

 

 

 

 

 

 

 

 

 

 

 

IF NO ASBESTOS IS PRESENT, WAS THIS PROJECT PREVIOUSLY ABATED?

NO

YES

UNKNOWN

PRIOR ABATEMENT COMPANY:

 

 

 

 

 

 

 

YEAR ABATED:

 

 

 

 

 

 

 

 

 

 

 

 

PRIOR COMPANY CONTACT PERSON:

 

 

 

 

 

 

 

PHONE:

 

 

 

 

 

 

 

 

 

 

 

 

 

CERTIFICATION OF INFORMATION AND ACKNOWLEDGEMENT

฀ CHECK IF SECTION REVISED

I, THE UNDERSIGNED, CERTIFY THAT AN INDIVIDUAL TRAINED IN THE PROVISIONS OF FEDERAL REGULATIONS (NESHAP/40 CFR PART 61 SUBPART M) WILL BE

ON THE PROJECT SITE DURING DEMOLITION AND/OR RENOVATION ACTIVITIES DESCRIBED IN THE NOTIFICATION. EVIDENCE THAT THIS PERSON AND ALL OTHER PROJECT PERSONNEL HAVE ACCOMPLISHED APPROPRIATE TRAINING AND TRAINING CERTIFICATES WILL BE AVAILABLE FOR INSPECTION DURING NORMAL BUSINESS HOURS AND ANYTIME REGULATED ACTIVITIES ARE BEING CONDUCTED ON SITE.

I FURTHERMORE UNDERSTAND THAT I AM RESPONSIBLE FOR THE ACCURACY AND COMPLETENESS OF THE INFORMATION SUBMITTED WITH THIS

NOTIFICATION AND I SHALL PROMPTLY SUBMIT REVISIONS, SUPPORTING DOCUMENTS, AND PROJECT FEES.

PRINTED NAME:

SIGNATURE:

PHONE:

DATE:

REPRESENTING: OWNER

ABATEMENT CONTRACTOR DEMOLITION CONTRACTOR OTHER _________________

COMPANY NAME IF “OTHER” CHECKED:

ADDRESS IF “OTHER” CHECKED:

REFER TO THE DETAILED INSTRUCTIONS WHEN IN DOUBT ABOUT PROPER COMPLETION OF ANY SECTION.

NEVER LEAVE BLANK SPACES – INSERT ‘N/A’ OR ‘UNKNOWN’ FOR ANY BLANK WHERE YOU DO NOT HAVE THE INFORMATION REQUESTED.

PRINT RESPONSES NEATLY AND LEGIBLY.

ALWAYS KEEP A COPY OF THIS FORM FOR YOUR RECORDS, AND PROVIDE COPIES TO ALL OTHER INVOLVED PARTIES.

EPD NO LONGER ACCEPTS ‘FAX ONLY DOCUMENTS’. SUBMIT THE ENTIRE FORM VIA MAIL.

NEVER SUBMIT PROJECTS WHERE FEES ARE DUE WITHOUT ATTACHING THE REQUIRED FEE CHECK OR MONEY ORDER.

NOTIFICATIONS WITH FEES MUST BE MAILED TO THE EPD ASBESTOS FEES POST OFFICE ADDRESS. NOTIFICATIONS WITHOUT FEES SHOULD BE MAILED DIRECTLY TO THE EPD OFFICE ADDRESS.

(ADDRESSES ARE ON THE FIRST PAGE.)

DO NOT SUBMIT ‘TWO-SIDED’ PHOTO COPIES.

If a Project Notification is submitted by someone other than the asbestos abatement or demolition contractor - such as the Consultant or Owner,

A REVISED NOTIFICATION MUST BE SUBMITTED BY THE CONTRACTOR TO WHOM THE PROJECT IS AWARDED BEFORE WORK BEGINS. THE CONTRACTOR MUST SIGN THE CERTIFICATION OF THE REVISED NOTIFICATION FORM.

IT IS YOUR RESPONSIBILITY TO SUBMIT THIS FORM ACCURATELY AND COMPLETLY AND INCLUDE BY ALL

APPLICABLE FEES.

REV 062012005F

- 3 -

SUMMARY INSTRUCTIONS FOR COMPLETING THE GEORGIA EPD

PROJECT NOTIFICATION FOR ASBESTOS RENOVATION, ENCAPSULATION, OR DEMOLITION PROJECTS

Complete the following Sections and provide the information requested according to the type of project being performed.

To Be Completed For Demolition Work (No fees due for Demolition Projects.)

Section 1AVType of Notice

Section 1BVType of Project

Section 2 - Site Information

Section 3B - Demolition Contractor

Section 4 - ACM Information Asbestos Inspection Required for Compliance of Georgia Rules.

Section 5 - Work Schedules for Demolition

Section 6 - ACM Amounts & Type Codes

All ACM which already is or will become friable must be removed before demolition; only non-friable ACM may be remaining during the demolition and it must ALL be collected, packaged, labeled, transported and disposed as ACM Waste).

If all ACMs have been removed from the project site, Page 2 is not required.

Section 7 - Waste Transporter and Disposal Site of Demolition Waste, and Building Owner (All Required) Section 8 - Work Methods

Section 9 - Additional Project Information

Certification of Information and Acknowledgement (No fees due for Demolition Projects.)

To Be Completed For Asbestos Removal and Encapsulation Projects (Fees due for Abatement Projects.)

Section 1A - Type of Notice

Section 1B - Type of Project

Section 2 - Site information

Section 3A - Abatement Contractor

Section 4 - ACM Information Asbestos Inspection Required for Compliance of Georgia Rules.

Section 5 - Work Schedules for Abatement and Encapsulation Projects.

Section 6 - ACM Amounts, Type Codes, and Fee Calculation

Section 7 - Waste Transporter, Disposal Site, and Building Owner Information

Section 8 - Work Methods

Certification of Information and Acknowledgment

To Be Completed for A Revision To A Prior Notification

Section 1A Type of Notice

Section(s) All Sections, In Which the Prior Information Has Changed or Needs To Be Updated.

Check the Revision Box In Each of The Revised Sections and Update the Information.

Certification of Information and Acknowledgment

DETAILED INSTRUCTIONS ARE AVAILABLE FOR FILLING OUT EACH OF THESE SECTIONS.

REV 062012005F

- 4 -

Form Specifications

Fact Name Details
Governing Law The Georgia Notification Form is governed by the Georgia Environmental Protection Division (EPD) regulations related to asbestos management.
Purpose This form is used to notify the EPD of any asbestos renovation, encapsulation, or demolition projects.
Submission Requirement All sections of the form must be completed. If information is unknown, it should be marked as 'N/A' or 'UNKNOWN'.
Fee Structure Fees are applicable for asbestos abatement projects, with specific calculations outlined in Section 6 of the form.
Emergency Projects For unplanned emergency projects, notification must occur within 24 hours of the emergency event.
Inspection Requirement An AHERA accredited inspector must inspect the site to determine the presence of asbestos.
Work Schedule Notification A minimum of 10 working days advance notice is required for non-emergency projects.
Waste Disposal All asbestos waste must be disposed of at an ACM permitted landfill.
Certification The individual submitting the form must certify that trained personnel will be present on-site during the project.

Georgia Notification: Usage Guidelines

Completing the Georgia Notification form requires careful attention to detail. Once the form is filled out correctly, it must be submitted to the appropriate address based on whether fees are applicable. Be sure to keep a copy for your records and provide necessary documentation as required.

  1. Obtain the Georgia Notification form for asbestos renovation, encapsulation, or demolition.
  2. Fill out Section 1A by checking the appropriate box for the type of notice: "Original - Initial" or "Revision" with the revision number.
  3. In Section 1B, check the box that corresponds to the type of project you are conducting, such as "Renovation/Abatement Only" or "Demolition Only."
  4. Complete Section 2 with site information, including project name, address, city, zip code, county, nearest major intersection, building size, age of the building, number of floors, and specific location of asbestos.
  5. For Section 3A, provide the abatement contractor's details, including name, address, company certificate number, and contact information. Check the box if this section is revised.
  6. If applicable, fill out Section 3B with the demolition contractor's information.
  7. In Section 4, indicate whether asbestos is present and provide details regarding the type of asbestos, inspection status, and inspector information.
  8. Complete Section 5 by providing work schedules for abatement and demolition, including start and end dates, workdays, and work hours.
  9. In Section 6, enter the amounts of asbestos-containing material (ACM) to be abated, type codes, and calculate fees if applicable.
  10. Fill out Section 7 with details about the waste transporter, disposal site, and building owner information.
  11. Describe work methods in Section 8, detailing demolition and/or renovation activities.
  12. Provide any additional project information in Section 9, including whether asbestos will remain in the project area and previous abatement details if applicable.
  13. Sign and date the certification section, ensuring all information is accurate and complete.
  14. Submit the completed form to the appropriate address based on whether fees are due, and keep a copy for your records.

Your Questions, Answered

What is the purpose of the Georgia Notification Form for Asbestos Renovation, Encapsulation, or Demolition?

The Georgia Notification Form is essential for informing the Environmental Protection Division (EPD) about any asbestos-related projects. It ensures that the necessary precautions are taken to protect public health and the environment during renovation, encapsulation, or demolition activities involving asbestos. By completing this form, project managers provide critical information about the scope of work, project location, and the presence of asbestos materials.

Who is required to submit this notification form?

Any individual or organization planning to conduct renovation, encapsulation, or demolition work that involves asbestos must submit this notification form. This includes contractors, property owners, and consultants. If the project involves multiple contractors, the primary contractor responsible for the work must ensure that the notification is submitted accurately and on time.

What information is needed in Section 2 – Site Information?

Section 2 requires detailed information about the project location. You will need to provide the project name, address, city, ZIP code, county, and the nearest major intersection. Additionally, the building size in square feet, age of the building, number of floors, and the specific location of asbestos being removed must be included. This information helps the EPD assess the project and its potential impact.

What types of projects are covered under this notification?

The form covers various types of projects, including renovation/abatement, encapsulation, demolition, and emergency situations. Each type has specific criteria that determine whether a notification is required. For instance, if the project involves removing friable asbestos materials, it falls under renovation/abatement. If demolition is planned, a notification is required regardless of whether asbestos is present.

What happens if I fail to submit the notification form?

Failing to submit the notification form can lead to serious consequences, including fines and penalties. The EPD takes compliance seriously, as improper handling of asbestos can pose significant health risks. Additionally, without proper notification, your project may be halted until the necessary paperwork is completed, causing delays and increased costs.

What are the fees associated with submitting the notification form?

Fees depend on the type of project. For residential projects, the fee is typically $0.10 per linear foot or square foot of friable asbestos, with a minimum fee of $25 and a maximum of $50 per residence. Non-residential projects have a similar fee structure but can reach up to $1,000 per facility. It's important to calculate the fees accurately and submit the appropriate payment along with the notification.

How can I ensure that my notification is complete and accurate?

To ensure completeness and accuracy, carefully follow the instructions provided with the notification form. Never leave sections blank; if information is unknown, indicate that clearly. Double-check all entries for accuracy, and consider having a colleague review the form before submission. Keeping a copy for your records is also a good practice.

What should I do if there are changes to the project after submission?

If changes occur after submitting the notification, a revised notification must be submitted. Indicate the revision number and check the appropriate boxes for any sections that have been updated. It’s crucial to re-sign and date the certification section to confirm that the information is current and accurate.

Where should I send the completed notification form?

The submission address depends on whether fees are due. If fees are required, mail the form to the EPD Asbestos Fees Lockbox. For projects without fees, send the form directly to the EPD office. Always ensure that the correct address is used to avoid processing delays.

Common mistakes

  1. Leaving Sections Blank: Many individuals fail to fill out all sections of the Georgia Notification form. Leaving any section blank can lead to delays or rejections. If information is not available, it is crucial to indicate 'N/A' or 'UNKNOWN'.

  2. Incorrect Project Type Selection: Selecting the wrong project type in Section 1B can cause significant issues. It is essential to accurately check the box that reflects the nature of the project, whether it is demolition, renovation, or encapsulation.

  3. Improper Fee Submission: Submitting the form without the required fee check or money order is a common mistake. For projects where fees are due, ensure that the payment is included and sent to the correct address, as specified in the instructions.

  4. Inaccurate Asbestos Information: Failing to provide accurate details about the presence of asbestos can lead to compliance issues. Confirm whether asbestos is present and provide the correct type codes in Section 6, as this information is crucial for regulatory compliance.

  5. Neglecting Work Schedule Requirements: Not adhering to the notification timeline can create problems. For non-emergency projects, a 10 working day advance notification is required. Ensure that the work schedules are clearly outlined in Section 5.

  6. Missing Certification: The certification section must be signed and dated. Omitting this step can invalidate the notification. The person responsible for the project must certify that they understand the regulations and will comply with all requirements.

Documents used along the form

The Georgia Notification Form for Asbestos Renovation, Encapsulation, or Demolition is an essential document for ensuring compliance with state regulations regarding asbestos management. Along with this form, several other documents are commonly required to support the notification process. Below is a list of these documents, each described briefly to provide clarity on their purpose and relevance.

  • Asbestos Inspection Report: This document details the findings of an asbestos inspection conducted by a certified inspector. It confirms the presence or absence of asbestos-containing materials (ACM) and outlines the necessary actions for compliance.
  • Abatement Contractor Agreement: This agreement outlines the terms and conditions between the property owner and the abatement contractor. It includes details on the scope of work, timelines, and payment structures.
  • Demolition Contractor Agreement: Similar to the abatement agreement, this document specifies the terms of engagement between the owner and the demolition contractor, including project specifications and responsibilities.
  • Waste Transporter Information: This form provides details about the company responsible for transporting asbestos waste. It includes contact information and ensures that the transporter is licensed and compliant with regulations.
  • Disposal Site Agreement: This document confirms the location where asbestos waste will be disposed of. It includes details about the landfill or disposal site, ensuring it meets the necessary regulatory requirements.
  • Work Method Statement: This statement describes the methods and practices that will be employed during the abatement or demolition process. It includes safety measures and engineering controls to minimize asbestos exposure.
  • Emergency Notification Letter: In cases of unplanned asbestos work due to emergencies, this letter explains the situation and justifies the need for immediate action, along with the relevant notification details.
  • Certification of Training: This document certifies that all personnel involved in the project have received appropriate training in asbestos handling and safety procedures, as required by law.
  • Project Timeline: A detailed timeline of the project phases, including start and end dates for abatement or demolition work. This helps ensure that all parties are aware of the project schedule.
  • Revised Notification Form: If any changes occur after the initial notification, this form is used to update the Georgia EPD with the new information. It is crucial for maintaining compliance and ensuring accurate records.

Each of these documents plays a vital role in the asbestos management process in Georgia. Proper completion and submission of these forms not only help in adhering to legal requirements but also promote safety and environmental protection during renovation or demolition projects involving asbestos.

Similar forms

  • California Asbestos Notification Form: Similar to the Georgia Notification form, this document requires detailed information about the project, including the type of work being performed, contractor details, and site specifics. Both forms aim to ensure compliance with asbestos regulations, emphasizing the importance of thorough documentation and notification of relevant authorities.
  • EPA Notification of Regulated Asbestos-Containing Material (RACM): This federal form serves a similar purpose by notifying the Environmental Protection Agency about asbestos-related activities. Like the Georgia form, it includes sections for project details, contractor information, and waste disposal methods, ensuring that proper procedures are followed to protect public health.
  • New York City Asbestos Notification Form: This local form shares similarities with the Georgia Notification form in that it requires project-specific information, including the type of asbestos present and the planned methods for abatement or demolition. Both documents are designed to keep regulatory bodies informed and to safeguard the environment and public safety.
  • Texas Asbestos Notification Form: This document is akin to the Georgia form, requiring detailed project information, including site location and contractor details. Both forms aim to ensure that all asbestos-related activities are conducted in compliance with state regulations, highlighting the need for transparency and accountability in handling hazardous materials.

Dos and Don'ts

When filling out the Georgia Notification form for asbestos-related projects, it is crucial to follow specific guidelines. Here are five things you should do and five things you should avoid:

  • Do provide complete and accurate information in every section.
  • Do use attachments if additional information is necessary for clarity.
  • Do ensure that you check the appropriate boxes for the type of notice and project.
  • Do submit the form via mail, as fax submissions are no longer accepted.
  • Do keep a copy of the completed form for your records.
  • Don't leave any section blank; if information is unknown, insert 'N/A' or 'UNKNOWN.'
  • Don't submit the form without including the required fee check or money order if applicable.
  • Don't use two-sided photocopies; only submit single-sided documents.
  • Don't forget to sign and date the certification section before submission.
  • Don't submit a notification if it is not signed by the contractor responsible for the project.

Misconceptions

Understanding the Georgia Notification Form for asbestos projects can be challenging, and there are several misconceptions that can lead to confusion. Here are nine common misconceptions about this important document:

  • 1. The form is optional for all projects. Many believe that submitting the form is optional, but it is mandatory for certain projects involving asbestos. Not submitting it can lead to penalties.
  • 2. Only demolition projects require notification. Some think that only demolition projects need to file this notification. However, renovations and encapsulations involving asbestos also require notification.
  • 3. It's acceptable to leave sections blank. A common misconception is that leaving sections blank is permissible. In reality, every section must be completed. If information is unavailable, use "N/A" or "unknown."
  • 4. Fees are always required. Many assume that fees are necessary for all projects. In fact, there are specific exemptions, such as for courtesy notifications or certain demolition projects.
  • 5. The notification can be submitted via fax. Some believe that faxing the notification is acceptable. However, the form must be mailed, as fax submissions are no longer accepted.
  • 6. Only licensed contractors can submit the form. It’s a misconception that only licensed asbestos contractors can file the notification. Owners or representatives can also submit it, but they must ensure that the contractor completes a revised notification before work begins.
  • 7. All asbestos must be removed before demolition. Some think that all asbestos-containing materials must be removed before any demolition. In certain cases, non-friable asbestos can remain during demolition, provided it is managed correctly.
  • 8. The form doesn’t need to be updated. A frequent misunderstanding is that once the form is submitted, it doesn’t need updates. If there are changes to the project, a revised notification must be submitted.
  • 9. Project details can be vague. Some believe that they can provide vague information about the project. In reality, detailed and accurate information is crucial for compliance and safety.

By clarifying these misconceptions, individuals and companies can better navigate the requirements of the Georgia Notification Form, ensuring compliance and safety in asbestos-related projects.

Key takeaways

  • Complete all sections of the Georgia Notification form without leaving any blanks. If information is unavailable, use 'N/A' or 'UNKNOWN' as appropriate.

  • Submit the form to the correct address based on whether fees are due. For projects with fees, send to the EPD Asbestos Fees Lockbox. For those without fees, send to the EPD office directly.

  • Provide accurate project details, including the type of notice and project, site information, and contractor details. Ensure that all project specifics are clearly documented.

  • For projects involving asbestos removal, ensure that an AHERA-accredited inspector has conducted an inspection and that their details are included in the form.

  • Keep a copy of the completed form for your records and distribute copies to all involved parties. This will help maintain transparency and accountability throughout the project.