Homepage Blank Florida Proof Loss PDF Form
Article Guide

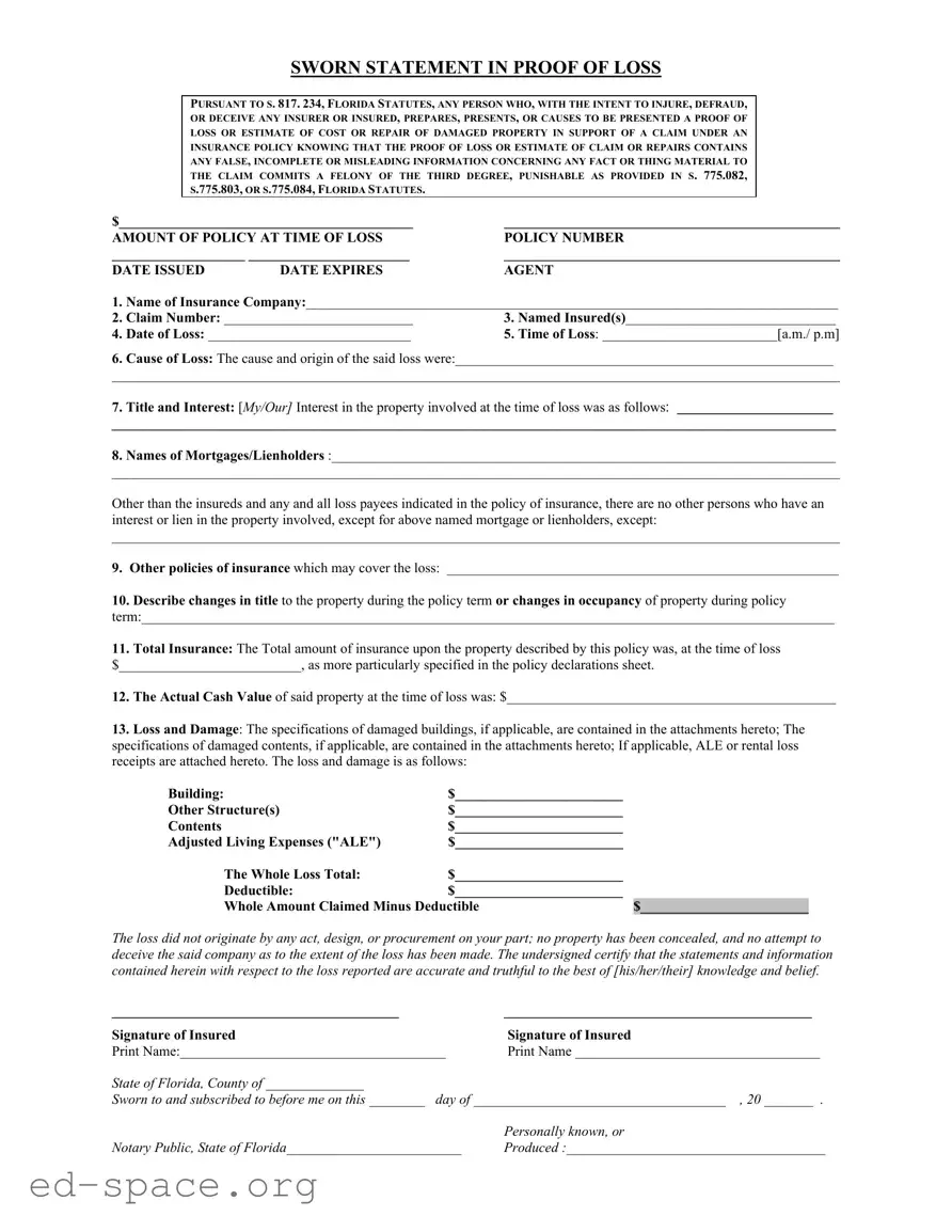
The Florida Proof Loss form serves as a crucial document for individuals filing claims under their insurance policies. This form is designed to collect essential details about the loss, ensuring that both insurers and insured parties have a clear understanding of the circumstances surrounding the claim. It includes vital information such as the amount of the policy at the time of the loss, the date and cause of the loss, and any relevant details about the insured property and its condition. Additionally, the form requires the disclosure of any mortgages or lienholders associated with the property, as well as other insurance policies that may cover the loss. Importantly, the form emphasizes the need for accuracy and honesty; any false or misleading information can lead to serious legal consequences. By signing the form, the insured certifies that the information provided is truthful and complete, thus reinforcing the integrity of the claims process. Understanding the various components of this form can help policyholders navigate their claims more effectively and ensure compliance with Florida's legal requirements.

Document Preview

SWORN STATEMENT IN PROOF OF LOSS

PURSUANT TO S. 817. 234, FLORIDA STATUTES, ANY PERSON WHO, WITH THE INTENT TO INJURE, DEFRAUD, OR DECEIVE ANY INSURER OR INSURED, PREPARES, PRESENTS, OR CAUSES TO BE PRESENTED A PROOF OF LOSS OR ESTIMATE OF COST OR REPAIR OF DAMAGED PROPERTY IN SUPPORT OF A CLAIM UNDER AN INSURANCE POLICY KNOWING THAT THE PROOF OF LOSS OR ESTIMATE OF CLAIM OR REPAIRS CONTAINS ANY FALSE, INCOMPLETE OR MISLEADING INFORMATION CONCERNING ANY FACT OR THING MATERIAL TO THE CLAIM COMMITS A FELONY OF THE THIRD DEGREE, PUNISHABLE AS PROVIDED IN S. 775.082, S.775.803, OR S.775.084, FLORIDA STATUTES.

$__________________________________________

________________________________________________

AMOUNT OF POLICY AT TIME OF LOSS

POLICY NUMBER

___________________ _______________________

________________________________________________

DATE ISSUED

DATE EXPIRES

AGENT

1.Name of Insurance Company:____________________________________________________________________________

2.

Claim Number: ___________________________

3.

Named Insured(s)______________________________

4.

Date of Loss: _____________________________

5.

Time of Loss: _________________________[a.m./ p.m]

6.Cause of Loss: The cause and origin of the said loss were:______________________________________________________

________________________________________________________________________________________________________

7.Title and Interest: [My/Our] Interest in the property involved at the time of loss was as follows: ____________________

_____________________________________________________________________________________________

8.Names of Mortgages/Lienholders :________________________________________________________________________

________________________________________________________________________________________________________

Other than the insureds and any and all loss payees indicated in the policy of insurance, there are no other persons who have an interest or lien in the property involved, except for above named mortgage or lienholders, except:

________________________________________________________________________________________________________

9.Other policies of insurance which may cover the loss: ________________________________________________________

10.Describe changes in title to the property during the policy term or changes in occupancy of property during policy

term:___________________________________________________________________________________________________

11.Total Insurance: The Total amount of insurance upon the property described by this policy was, at the time of loss $__________________________, as more particularly specified in the policy declarations sheet.

12.The Actual Cash Value of said property at the time of loss was: $_______________________________________________

13.Loss and Damage: The specifications of damaged buildings, if applicable, are contained in the attachments hereto; The specifications of damaged contents, if applicable, are contained in the attachments hereto; If applicable, ALE or rental loss receipts are attached hereto. The loss and damage is as follows:

Building:

$________________________

 

Other Structure(s)

$________________________

 

Contents

$________________________

 

Adjusted Living Expenses ("ALE")

$________________________

 

The Whole Loss Total:

$________________________

 

Deductible:

$________________________

 

Whole Amount Claimed Minus Deductible

$________________________

The loss did not originate by any act, design, or procurement on your part; no property has been concealed, and no attempt to deceive the said company as to the extent of the loss has been made. The undersigned certify that the statements and information contained herein with respect to the loss reported are accurate and truthful to the best of [his/her/their] knowledge and belief.

_________________________________________

____________________________________________

Signature of Insured

Signature of Insured

Print Name:______________________________________

Print Name ___________________________________

State of Florida, County of ______________

Sworn to and subscribed to before me on this ________ day of ____________________________________ , 20 _______ .

 

Personally known, or

Notary Public, State of Florida_________________________

Produced :_____________________________________

Form Specifications

Fact Name Details
Governing Law The Florida Proof of Loss form is governed by Section 817.234 of the Florida Statutes.
Intent to Defraud Submitting a false Proof of Loss can lead to severe penalties, including felony charges.
Required Information The form requires details such as the date of loss, cause of loss, and the amount claimed.
Signature Requirement Both insured parties must sign the form to validate the information provided.
Notary Requirement The form must be sworn and subscribed before a notary public in Florida.

Florida Proof Loss: Usage Guidelines

Completing the Florida Proof of Loss form is an essential step in filing an insurance claim after a loss. This form requires detailed information about the incident, the property involved, and the damages incurred. Once filled out, the form needs to be submitted to your insurance company to process your claim. Follow the steps below to ensure you complete the form accurately.

  1. Begin by entering the amount of the policy at the time of loss in the designated space.
  2. Fill in the policy number and the date issued and date expires.
  3. Write the name of the insurance company in the appropriate field.
  4. Provide the claim number assigned to your case.
  5. List the named insured(s) on the policy.
  6. Indicate the date of loss and the time of loss (specifying a.m. or p.m.).
  7. Describe the cause of loss in detail.
  8. Explain your title and interest in the property at the time of loss.
  9. List the names of any mortgagees or lienholders associated with the property.
  10. If applicable, mention any other policies of insurance that may cover the loss.
  11. Describe any changes in title or occupancy of the property during the policy term.
  12. State the total amount of insurance on the property at the time of loss.
  13. Provide the actual cash value of the property at the time of loss.
  14. Detail the loss and damage incurred, including amounts for buildings, other structures, contents, and any adjusted living expenses (ALE).
  15. Indicate the deductible amount and calculate the total amount claimed minus the deductible.
  16. Certify that the statements made are accurate and truthful by signing the form.
  17. Print your name and the names of any co-insured individuals.
  18. Finally, have the document notarized by a Notary Public in Florida, including the date of notarization.

Your Questions, Answered

What is the Florida Proof Loss form?

The Florida Proof Loss form is a legal document used to report an insurance claim for loss or damage to property. It must be completed by the insured and submitted to the insurance company as part of the claims process. The form requires detailed information about the loss, including the cause, date, and extent of the damage.

What information is required on the form?

The form requires various details, including the policy number, claim number, date and time of loss, cause of loss, and the insured's interest in the property. Additionally, it asks for information about any mortgages or lienholders, other insurance policies that may cover the loss, and a description of the damage.

What happens if false information is provided?

Providing false information on the Proof Loss form can lead to serious legal consequences. Under Florida law, intentionally misleading an insurer can result in felony charges. This includes submitting a proof of loss that contains any false, incomplete, or misleading information.

How should I calculate the Actual Cash Value of my property?

The Actual Cash Value (ACV) is typically calculated by taking the replacement cost of the property and subtracting depreciation. This value represents what the property is worth at the time of the loss. Be prepared to provide documentation to support your valuation.

What is the significance of the deductible?

The deductible is the amount you are responsible for paying out of pocket before your insurance coverage kicks in. On the Proof Loss form, you will need to specify the deductible amount and subtract it from your total claim to determine the final amount claimed.

Are there any attachments required with the form?

Yes, attachments may be required. These can include specifications of damaged buildings, contents, and any additional living expenses (ALE) receipts. Make sure to include all relevant documentation to support your claim.

What if there were changes in title or occupancy during the policy term?

You must disclose any changes in title or occupancy of the property during the policy term on the form. This information can affect your claim and the insurance company's assessment of the situation.

Who needs to sign the form?

The form must be signed by the insured individuals listed on the policy. Each signer certifies that the information provided is accurate and truthful to the best of their knowledge.

Is notarization required for the Proof Loss form?

Yes, the form must be sworn to and subscribed before a notary public in Florida. This adds a layer of authenticity and legal weight to the document, ensuring that the information is verified.

How long do I have to submit the Proof Loss form?

It is crucial to submit the Proof Loss form promptly after the loss occurs. Insurance policies typically have specific timelines for filing claims. Check your policy for the exact time frame to avoid potential denial of your claim.

Common mistakes

  1. Incomplete Information: Failing to fill out all required fields can lead to delays or even denial of your claim. Ensure every section is addressed, including names, dates, and amounts.

  2. Incorrect Dates: Entering the wrong date of loss can complicate your claim. Double-check this detail to align with your policy and any relevant documentation.

  3. Misstating the Cause of Loss: Be clear and accurate when describing how the loss occurred. Misrepresentation can be viewed as an attempt to defraud the insurer.

  4. Omitting Other Insurance Policies: If you have additional policies that may cover the loss, disclose them. Not mentioning these can result in complications or rejection of your claim.

  5. Not Signing the Form: Forgetting to sign the form is a common mistake. Ensure that all required signatures are provided to validate your submission.

  6. Failure to Attach Supporting Documents: Attach all necessary documents, such as receipts or estimates. Missing attachments can hinder the processing of your claim.

  7. Providing Inaccurate Values: Ensure that the values you provide for damages are accurate and supported by evidence. Overstating or understating can lead to serious consequences.

Documents used along the form

The Florida Proof of Loss form is an essential document for filing an insurance claim. However, several other forms and documents are often required to support the claim process. Below is a list of commonly used documents that may accompany the Florida Proof of Loss form.

  • Claim Form: This document provides detailed information about the claim, including the nature of the loss, policy details, and the claimant's contact information. It serves as the initial request for the insurance company to assess the claim.
  • Sworn Statement in Proof of Loss: This is a formal declaration made by the insured, affirming the details of the loss and the accuracy of the claim. It often requires notarization and is submitted to validate the claim.
  • Repair Estimates: These documents outline the estimated costs for repairs or replacement of damaged property. They are typically provided by licensed contractors or service providers and help the insurance company evaluate the claim's validity.
  • Inventory of Damaged Property: A comprehensive list detailing all items that were damaged or lost, including descriptions, values, and any supporting evidence such as receipts or photographs. This inventory assists in determining the total amount of loss.
  • Police Report: If applicable, this document is generated when law enforcement is involved, such as in cases of theft or vandalism. It provides an official account of the incident and can be crucial for substantiating the claim.

These documents collectively support the claims process and help ensure that all relevant information is presented to the insurance company. Properly completing and submitting these forms can facilitate a smoother resolution of the claim.

Similar forms

The Florida Proof of Loss form is an essential document in the insurance claims process. It shares similarities with several other important documents. Below is a list of seven documents that are comparable to the Florida Proof of Loss form, along with explanations of how they relate.

  • Sworn Statement of Claim: Like the Florida Proof of Loss, this document requires the claimant to provide a detailed account of the loss, including the circumstances and extent of the damages. Both documents are sworn statements that affirm the accuracy of the information provided.
  • Claim Form: This is a standard form used by insurance companies to initiate the claims process. Similar to the Florida Proof of Loss, it collects essential information about the insured, the policy, and the nature of the claim.
  • Proof of Loss Statement: This document is often required by insurers to substantiate a claim. It shares the same purpose as the Florida Proof of Loss, which is to confirm the details of the loss and the amount being claimed.
  • Loss Notice: A loss notice informs the insurance company of an incident that may lead to a claim. It is similar to the Florida Proof of Loss in that both documents serve to notify the insurer about the loss and initiate the claims process.
  • Insurance Policy Declaration Page: This page outlines the coverage details and limits of an insurance policy. It complements the Florida Proof of Loss by providing context regarding the policyholder's coverage at the time of the loss.
  • Damage Assessment Report: This report details the extent of the damage caused by an incident. It is similar to the Florida Proof of Loss as it provides necessary information about the loss, which helps in determining the claim amount.
  • Subrogation Agreement: This document allows the insurer to recover costs from a third party responsible for the loss. While it serves a different purpose, it is related to the claims process and often follows the submission of a Proof of Loss form.

Dos and Don'ts

When filling out the Florida Proof of Loss form, it's essential to be careful and thorough. Here’s a list of things you should and shouldn’t do to ensure your claim is processed smoothly.

  • Do provide accurate and complete information.
  • Do include all relevant details about the loss, including date and time.
  • Do specify the cause of the loss clearly.
  • Do attach any necessary documentation, such as receipts or estimates.
  • Don't include misleading or false information.
  • Don't forget to sign and date the form before submission.
  • Don't omit any other insurance policies that may cover the loss.
  • Don't ignore any specific instructions provided by your insurance company.

By following these guidelines, you can help ensure that your claim is handled efficiently and effectively.

Misconceptions

Understanding the Florida Proof of Loss form is crucial for anyone filing an insurance claim in the state. However, several misconceptions can lead to confusion and mistakes. Here are seven common misconceptions about this important document:

  • The form is optional. Many people believe that submitting the Proof of Loss form is optional, but it is often a requirement for processing claims. Insurers typically need this form to evaluate the claim properly.
  • Only the insured must sign the form. Some think that only the policyholder's signature is necessary. However, if there are multiple insured parties, all must sign to validate the claim.
  • Filling it out incorrectly is not a big deal. Mistakes or omissions can delay the claims process or even lead to a denial. Accuracy is essential when providing information on the form.
  • The form guarantees payment. While submitting the Proof of Loss form is a critical step, it does not guarantee that the claim will be paid. The insurer will still review the claim and determine eligibility based on the policy terms.
  • All losses are covered under one policy. Some individuals assume that their insurance covers every loss. It's important to understand the specific coverage limits and exclusions in your policy before filing a claim.
  • Submitting the form is the last step. Many believe that once the Proof of Loss form is submitted, their job is done. In reality, follow-up communication with the insurer may be necessary to resolve any questions or provide additional documentation.
  • Insurance companies handle everything without input. It’s a common misconception that once the form is submitted, the insurance company will manage everything. In reality, claimants may need to actively participate in the process, providing further information or clarification as needed.

Being aware of these misconceptions can help ensure a smoother claims process. Always read your policy carefully and consider seeking assistance if you have questions about the Proof of Loss form.

Key takeaways

Filling out the Florida Proof of Loss form requires careful attention to detail. Here are some key takeaways to consider:

  • Accuracy is Essential: Ensure that all information provided is truthful and complete. Any inaccuracies can lead to serious legal consequences, including felony charges.
  • Document All Details: Include specific information such as the date and time of loss, cause of loss, and any changes in title or occupancy during the policy term.
  • Attach Supporting Documents: Provide attachments that detail the loss and damage, including specifications for buildings and contents, as well as any rental loss receipts.
  • Sign and Notarize: The form must be signed by the insured and notarized to validate the claim. This step is crucial for the processing of your claim.