
Worldwide ERC
®
Broker’s Market Analysis and Strategy Report
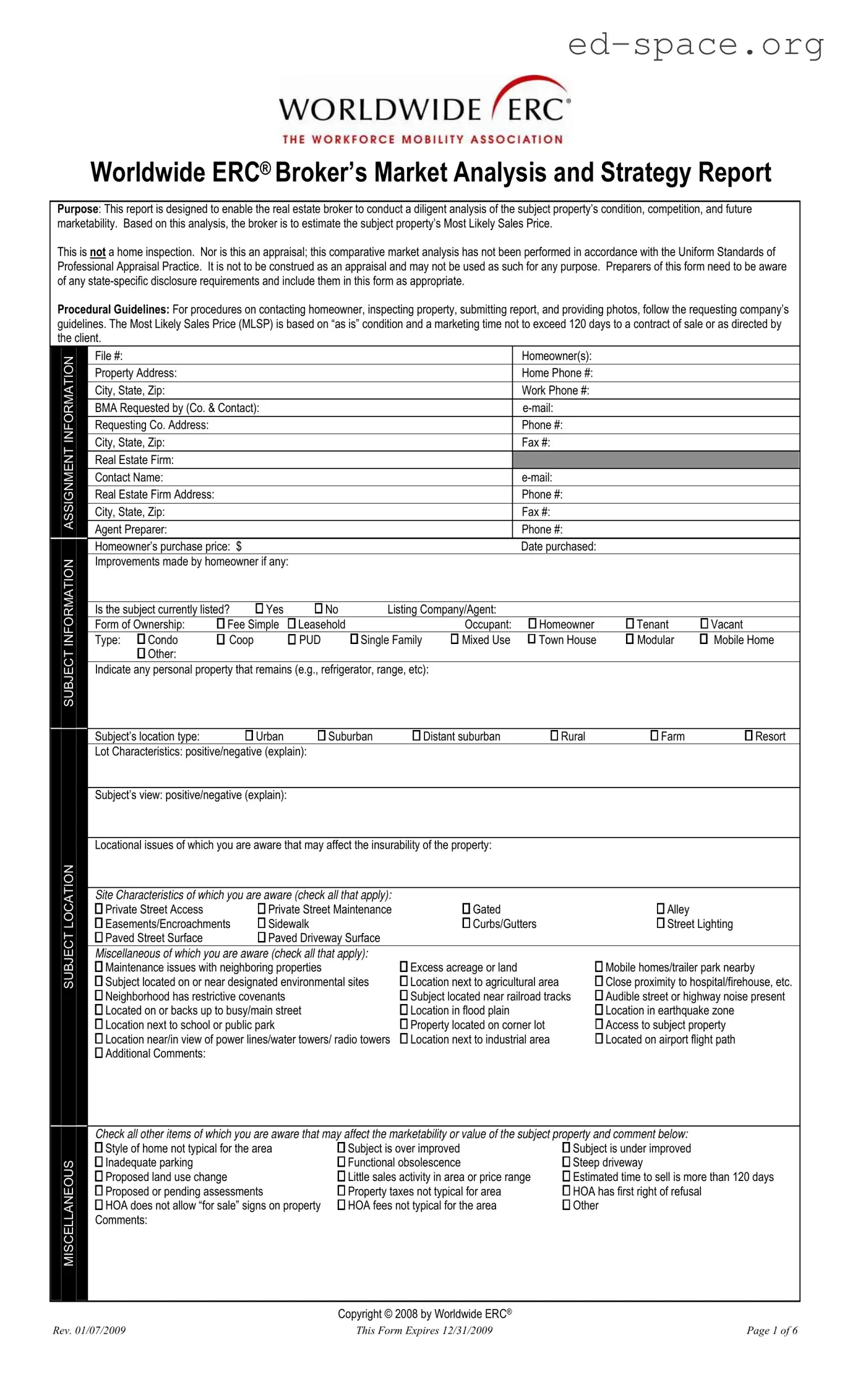
Purpose: This report is designed to enable the real estate broker to conduct a diligent analysis of the subject property’s condition, competition, and future
marketability. Based on this analysis, the broker is to estimate the subject property’s Most Likely Sales Price.
This is not
a home inspection. Nor is this an appraisal; this comparative market analysis has not been performed in accordance with the Uniform Standards of
Professional Appraisal Practice. It is not to be construed as an appraisal and may not be used as such for any purpose. Preparers of this form need to be aware
of any state-specific disclosure requirements and include them in this form as appropriate.
Procedural Guidelines: For procedures on contacting homeowner, inspecting property, submitting report, and providing photos, follow the requesting company’s
guidelines. The Most Likely Sales Price (MLSP) is based on “as is” condition and a marketing time not to exceed 120 days to a contract of sale or as directed by
the client.
File #: Homeowner(s):
Property Address: Home Phone #:
City, State, Zip: Work Phone #:
BMA Requested by (Co. & Contact): e-mail:
Requesting Co. Address: Phone #:
City, State, Zip: Fax #:
Real Estate Firm:
Contact Name: e-mail:
Real Estate Firm Address: Phone #:
City, State, Zip: Fax #:
ASSIGNMENT INFORMATION
Agent Preparer: Phone #:
Homeowner’s purchase price: $ Date purchased:
Improvements made by homeowner if any:
Is the subject currently listed? □ Yes □ No Listing Company/Agent:
Form of Ownership: □ Fee Simple □ Leasehold Occupant: □ Homeowner □ Tenant □ Vacant
Type: □ Condo Coop PUD Single Family Mixed Use Town House Modular Mobile Home
□ Other:
SUBJECT INFORMATION
Indicate any personal property that remains (e.g., refrigerator, range, etc):
Subject’s location type: □ Urban □ Suburban □ Distant suburban □ Rural □ Farm □ Resort
Lot Characteristics: positive/negative (explain):
Subject’s view: positive/negative (explain):
Locational issues of which you are aware that may affect the insurability of the property:
Site Characteristics of which you are aware (check all that apply):
□ Private Street Access □ Private Street Maintenance □ Gated □ Alley
□ Easements/Encroachments □ Sidewalk □ Curbs/Gutters □ Street Lighting
□ Paved Street Surface □ Paved Driveway Surface
SUBJECT LOCATION
Miscellaneous of which you are aware (check all that apply):
□ Maintenance issues with neighboring properties □ Excess acreage or land □ Mobile homes/trailer park nearby
□ Subject located on or near designated environmental sites □ Location next to agricultural area □ Close proximity to hospital/firehouse, etc.
□ Neighborhood has restrictive covenants □ Subject located near railroad tracks □ Audible street or highway noise present
□ Located on or backs up to busy/main street □ Location in flood plain □ Location in earthquake zone
□ Location next to school or public park □ Property located on corner lot □ Access to subject property
□ Location near/in view of power lines/water towers/ radio towers □ Location next to industrial area □ Located on airport flight path
□ Additional Comments:
MISCELLANEOUS
Check all other items of which you are aware that may affect the marketability or value of the subject property and comment below:
□ Style of home not typical for the area □ Subject is over improved □ Subject is under improved
□ Inadequate parking □ Functional obsolescence □ Steep driveway
□ Proposed land use change □ Little sales activity in area or price range □ Estimated time to sell is more than 120 days
□ Proposed or pending assessments □ Property taxes not typical for area □ HOA has first right of refusal
□ HOA does not allow “for sale” signs on property □ HOA fees not typical for the area □ Other
Comments:
Copyright © 2008 by Worldwide ERC
®
Rev. 01/07/2009 This Form Expires 12/31/2009 Page 1 of 6