Homepage Blank Dte 100 Ohio PDF Form
Article Guide

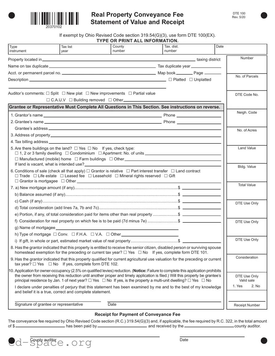
The DTE 100 Ohio form, officially known as the Real Property Conveyance Fee Statement of Value and Receipt, plays a crucial role in the transfer of real estate in Ohio. This form is essential for documenting the sale or transfer of property, ensuring that all necessary information is accurately recorded for tax purposes. It includes details such as the names of the grantor and grantee, property addresses, and any existing mortgages. Additionally, it requires the grantee to provide information about the property itself, including whether there are buildings on the land and the intended use if the land is vacant. Special conditions of the sale, such as whether the grantor is a relative or if it involves a gift, must also be noted. The form aids in determining the correct conveyance fee, which is based on the total consideration involved in the transaction. Furthermore, it addresses potential exemptions, such as homestead exemptions for seniors or disabled persons, and agricultural use valuations. Completing this form accurately is vital, as it ensures compliance with Ohio laws and helps maintain uniformity in property tax assessments across the state.

Document Preview

Real Property Conveyance Fee Statement of Value and Receipt

DTE 100 Rev. 5/20

20370102

If exempt by Ohio Revised Code section 319.54(G)(3), use form DTE 100(EX).

TYPE OR PRINT ALL INFORMATION.

Type

Tax list

County

Tax. dist.

Date

instrument

year

number

number

 

 

 

 

 

 

Property located in

 

 

 

 

 

 

 

 

 

taxing district

Name on tax duplicate

 

 

Tax duplicate year

 

 

 

Acct. or permanent parcel no.

 

Map book

 

 

 

Page

 

Description

 

 

Platted

Unplatted

Auditor’s comments: Split New plat New improvements Partial value

C.A.U.V Building removed Other

Grantee or Representative Must Complete All Questions in This Section. See instructions on reverse.

1. Grantor’s name

 

 

 

Phone

 

2. Grantee’s name

 

 

 

 

 

 

Phone

Grantee’s address

 

 

 

 

 

 

 

3. Address of property

 

 

 

 

 

4. Tax billing address

 

 

 

 

 

5. Are there buildings on the land? Yes No

If yes, check type:

1, 2 or 3 family dwelling Condominium

Apartment: No. of units

 

 

Manufactured (mobile) home Farm buildings Other If land is vacant, what is intended use?

6. Conditions of sale (check all that apply) Grantor is relative Part interest transfer Land contract Trade Life estate Leased fee Leasehold Mineral rights reserved Gift

Grantor is mortgagee Other

7. a) New mortgage amount (if any)

$

b) Balance assumed (if any)

$

c) Cash (if any)

$

d) Total consideration (add lines 7a, 7b and 7c)

$

e) Portion, if any, of total consideration paid for items other than real property

$

f) Consideration for real property on which fee is to be paid (7d minus 7e)

$

g) Name of mortgagee

 

 

 

h) Type of mortgage Conv. F.H.A. V.A. Other

 

 

 

i) If gift, in whole or part, estimated market value of real property..........................................$

8. Has the grantor indicated that this property is entitled to receive the senior citizen, disabled person or surviving spouse homestead exemption for the preceding or current tax year? Yes No If yes, complete form DTE 101.

9. Has the grantor indicated that this property qualified for current agricultural use valuation for the preceding or current

tax year? Yes No If yes, complete form DTE 102.

10.Application for owner-occupancy (2.5% on qualified levies) reduction. (Notice: Failure to complete this application prohibits the owner from receiving this reduction until another proper and timely application is filed.) Will this property be grantee’s

principal residence by Jan. 1 of next year? Yes No If yes, is the property a multi-unit dwelling? Yes No

I declare under penalties of perjury that this statement has been examined by me and to the best of my knowledge and belief it is a true, correct and complete statement.

Number

No. of Parcels

DTE Code No.

Neigh. Code

No. of Acres

Land Value

Bldg. Value

Total Value

DTE Use Only

DTE Use Only

DTE Use Only

Consideration

DTE Use Only

Valid sale

1. Yes

2. No

Signature of grantee or representative

Date

Receipt Number

Receipt for Payment of Conveyance Fee

The conveyance fee required by Ohio Revised Code section (R.C.) 319.54(G)(3) and, if applicable, the fee required by R.C. 322, in the total amount

of $

 

 

has been paid by

 

and received by the

 

county auditor.

 

 

 

 

 

 

 

 

 

 

 

 

 

 

 

 

County auditor

 

 

Date

 

 

DTE 100

Instructions to Grantee or Representative for Completing Rev. 5/20

Real Property Conveyance Fee Statement of Value

Complete lines 1 through 10 in box.

Page 2

WARNING: All questions must be completed to the best of your knowledge to comply with Ohio Revised Code (R.C.) section 319.202.

Persons willfully failing to comply or falsifying information are guilty of a misdemeanor of the first degree (R.C. section 319.99(B)). It is important that the information on this form be accurate as it will be used to determine whether all real property, including this property, is uniformly assessed for real property tax purposes.

Note: The county auditor has discretionary power under R.C. section 319.202(A) to request additional information in any form of documentation deemed necessary to verify the accuracy of the information provided by the grantee on the front of the form.

Line 1 List grantor’s name as shown in the deed or other instrument conveying this real property.

Line 2 List grantee’s name as shown in the deed or other instrument conveying this real property and the grantee’s mailing address.

Line 3 List address of property conveyed by street number and name.

Line 4 List complete name and address to which tax bills are to be sent. CAUTION: Each property owner is responsible for paying the property taxes on time even if no tax bill is received.

Line 5 If there are no buildings on the land conveyed, check “no.” If there are buildings, check “yes” and the appropriate box that describes the type of buildings. If other, describe briefly the type of buildings, such as “office building.”

Line 6 Show any special condition of sale that would affect the consideration. If any of the special conditions noted are involved, check the appropriate box. Briefly describe other conditions in the space provided.

Line 7 a) Enter amount of new mortgage on this property (if any).

b)Enter amount of the balance assumed on an existing mortgage (if any).

c)Enter cash paid for this property (if any).

d)Add lines 7a, 7b and 7c.

e)If any portion of the consideration reported on line 7d was paid for items other than real property, enter the portion of the consideration paid for those items.

f)Deduct line 7e from line 7d and enter the difference on this line.

g)List mortgagee or mortgagees (the party who advances the funds for a mortgage loan).

h)Check type of mortgage.

i)In the case of a gift, in whole or part, enter the estimated price that the real estate would bring in the open market.

Line 8 If the grantor has indicated that the property to be conveyed will receive the senior citizen, disabled person or surviving spouse homestead exemption for a proceeding or current tax year under R.C. section 323.152(A), grantor must complete DTE 101 or submit a statement that complies with the provisions of R.C. section 319.202(A)(2), and the grantee must submit such form to the county auditor along with this statement.

Line 9 If the grantor has indicated that the property to be conveyed qualified for current agricultural use valuation for the preceding or

current tax year under R.C. section 5713.30, the grantor must complete DTE 102 or a statement that complies with R.C. section 319.202(B)(2), and the grantee must submit such form to the county auditor along with this statement.

Line 10 Complete line 10 (application for owner-occupancy reduction on qualified levies) only if the parcel is used for residential purposes. To receive the owner-occupancy homestead tax reduction on qualified levies for next year, you must own and occupy your home

as your principal place of residence (domicile) on Jan. 1 of that year. A homeowner and spouse may receive this reduction on

only one home in Ohio. Failure to complete this application prohibits the owner from receiving this reduction until another proper and timely application is filed.

The real property conveyance fee is payable on the amount of money reported on either item 7f or 7i.

Form Specifications

Fact Name Details
Form Purpose The DTE 100 is used to report the value of real property during a conveyance and to pay the required conveyance fee.
Governing Law This form is governed by Ohio Revised Code section 319.54(G)(3).
Exemption Option If exempt under R.C. 319.54(G)(3), users must complete form DTE 100(EX).
Information Requirement All questions on the form must be completed accurately to comply with R.C. section 319.202.
Building Status The form requires information on whether there are buildings on the property and their type.
Conditions of Sale Users must check any special conditions that apply to the sale, such as if the grantor is a relative.
Consideration Calculation Consideration for the property is calculated based on cash, mortgage amounts, and other factors.
Homestead Exemption If applicable, the grantor must indicate if the property qualifies for a homestead exemption.

Dte 100 Ohio: Usage Guidelines

Filling out the DTE 100 Ohio form is a critical step in the property conveyance process. Accurate completion ensures that all necessary information is recorded for tax assessment purposes. Follow these steps carefully to complete the form correctly.

  1. Type or print all required information clearly in the designated fields.
  2. Fill in the Tax list County, Tax district number, and Date instrument fields at the top of the form.
  3. Provide the Name on tax duplicate and Tax duplicate year.
  4. Enter the Account or permanent parcel number and Map book page.
  5. Select whether the property is Platted or Unplatted.
  6. In the Grantee or Representative section, complete all questions:
    • 1. Enter the Grantor’s name and Phone number.
    • 2. Enter the Grantee’s name, Phone number, and Grantee’s address.
    • 3. Provide the Address of property.
    • 4. Fill in the Tax billing address.
    • 5. Indicate if there are buildings on the land and specify the type.
    • 6. Check all applicable Conditions of sale.
    • 7. Complete the financial information, including mortgage amounts, cash paid, and total consideration.
    • 8. Answer if the grantor indicated eligibility for the homestead exemption.
    • 9. Answer if the grantor indicated eligibility for agricultural use valuation.
    • 10. Complete the application for owner-occupancy reduction if applicable.
  7. Declare the accuracy of the information by signing and dating the form.
  8. Submit the completed form to the county auditor along with any required additional documentation.

Once the form is filled out, it’s essential to ensure all information is accurate and complete before submission. Any errors or omissions may delay processing or affect tax assessments. Take care to review the form thoroughly and submit it promptly to avoid any potential issues.

Your Questions, Answered

What is the purpose of the DTE 100 Ohio form?

The DTE 100 Ohio form, also known as the Real Property Conveyance Fee Statement of Value and Receipt, is used to report the transfer of real property in Ohio. This form helps determine the conveyance fee owed to the county auditor and ensures accurate property tax assessments. It collects essential information about the transaction, including the parties involved, property details, and financial considerations.

Who is required to complete the DTE 100 form?

The grantee or their representative must complete the DTE 100 form. This includes providing detailed information about the grantor, the property being conveyed, and any conditions of the sale. It is crucial that all questions are answered accurately to comply with Ohio law.

What information is needed to fill out the DTE 100 form?

To complete the DTE 100 form, the following information is required: names and contact details of the grantor and grantee, the property address, tax billing address, details about any buildings on the property, conditions of the sale, and financial details such as mortgage amounts and cash payments. The form also requires information regarding any applicable exemptions or reductions related to the property.

What happens if the DTE 100 form is not completed accurately?

Inaccurate completion of the DTE 100 form can lead to legal consequences. Under Ohio law, individuals who willfully fail to comply or provide false information may be charged with a misdemeanor. Additionally, inaccuracies can affect property tax assessments, potentially resulting in financial penalties or delays in processing the property transfer.

What is the conveyance fee, and how is it calculated?

The conveyance fee is a fee paid to the county auditor upon the transfer of real property. It is based on the consideration for the property, which is typically the amount paid for the property as reported on the DTE 100 form. This includes cash payments, mortgage amounts, and any other financial considerations. The fee is calculated according to Ohio Revised Code section 319.54(G)(3).

Are there exemptions available when using the DTE 100 form?

Yes, certain exemptions may apply under Ohio Revised Code section 319.54(G)(3). If the property transfer qualifies for an exemption, the DTE 100(EX) form should be used instead. Common exemptions include transfers between family members or certain types of governmental transactions. It is important to review the specific criteria for exemptions before completing the form.

What should I do if I need assistance with the DTE 100 form?

If assistance is needed while completing the DTE 100 form, individuals can seek help from a legal professional or a real estate agent familiar with Ohio property laws. Additionally, the county auditor's office may provide guidance and resources to help ensure the form is filled out correctly. It is advisable to seek help to avoid potential errors that could lead to complications in the property transfer process.

Common mistakes

  1. Incomplete Information: One of the most common mistakes is not filling out all required fields. Every question on the DTE 100 form must be answered completely. Leaving any sections blank can lead to delays or complications in processing.

  2. Incorrect Names: Individuals often make the error of misspelling the names of the grantor or grantee. It is crucial that these names match exactly as they appear in the deed or other legal documents.

  3. Wrong Property Address: Providing an incorrect property address can create significant issues. Ensure that the street number and name are accurate, as this will affect tax assessments and property records.

  4. Misunderstanding Conditions of Sale: Many people fail to check all applicable conditions of sale. If there are special circumstances, such as a gift or trade, these must be clearly indicated to avoid misunderstandings.

  5. Errors in Financial Details: Mistakes in reporting financial information, such as mortgage amounts or cash payments, can lead to incorrect tax calculations. It is essential to double-check these figures for accuracy.

  6. Neglecting Additional Forms: If the property qualifies for exemptions, such as the homestead exemption, individuals often forget to complete and submit the necessary additional forms. Missing these can prevent eligibility for important tax benefits.

Documents used along the form

The DTE 100 form is essential for reporting the conveyance of real property in Ohio. Along with this form, several other documents may be required to complete the transaction process. Below is a list of common forms and documents that are often used in conjunction with the DTE 100.

  • DTE 100(EX): This form is used when a property is exempt from the conveyance fee under Ohio Revised Code section 319.54(G)(3). It allows the grantor to declare the exemption status clearly.
  • DTE 101: This form is necessary if the property is eligible for a homestead exemption for senior citizens, disabled persons, or surviving spouses. It helps ensure that the appropriate tax benefits are applied.
  • DTE 102: Used to claim current agricultural use valuation for properties that qualify. This form assists in determining the tax assessment based on agricultural use rather than market value.
  • Deed: The deed is the legal document that transfers ownership of the property from the grantor to the grantee. It contains essential details about the property and the parties involved in the transaction.
  • Title Search Report: This report verifies the legal ownership of the property and identifies any liens or encumbrances that may affect the sale. It is crucial for ensuring a clear title.
  • Affidavit of Title: This document is signed by the seller, confirming their ownership of the property and disclosing any known issues that could affect the title. It provides additional assurance to the buyer.
  • Closing Statement: Also known as a HUD-1 statement, this document outlines all financial transactions involved in the sale, including fees, taxes, and any adjustments. It is essential for finalizing the sale.

These documents work together to ensure a smooth property transaction process in Ohio. Each form serves a specific purpose, contributing to the accuracy and legality of the conveyance. Proper completion and submission of these forms are crucial for compliance with state regulations.

Similar forms

  • DTE 100(EX): This form is used when the property transfer is exempt under Ohio Revised Code section 319.54(G)(3). Like the DTE 100, it collects essential information about the transaction but is specifically for exempt transactions.
  • DTE 101: This form is related to the homestead exemption for senior citizens, disabled persons, or surviving spouses. It complements the DTE 100 by ensuring that property owners can apply for tax reductions that may apply to their new property.
  • DTE 102: Similar to the DTE 101, this form is used for properties that qualify for current agricultural use valuation. It provides additional documentation needed for the DTE 100 when agricultural exemptions are claimed.
  • Ohio Real Estate Purchase Agreement: This document outlines the terms of a real estate transaction. While the DTE 100 focuses on tax implications and conveyance fees, the purchase agreement details the buyer and seller's obligations, making both documents crucial in a property transfer.
  • Property Deed: The deed is the legal document that officially transfers property ownership. Like the DTE 100, it contains essential information about the parties involved and the property itself, but it serves as the final record of ownership transfer.

Dos and Don'ts

When filling out the DTE 100 Ohio form, it is essential to follow certain guidelines to ensure accuracy and compliance. Here’s a list of things you should and shouldn’t do:

  • Do provide accurate information for all required fields.
  • Do type or print clearly to avoid any misinterpretation.
  • Do check the appropriate boxes for conditions of sale and property type.
  • Do include the correct mailing address for tax bills.
  • Do double-check the total consideration amount before submission.
  • Don’t leave any questions unanswered, as this may delay processing.
  • Don’t provide false information, as this can lead to legal penalties.

By adhering to these guidelines, you can help ensure that your form is processed smoothly and accurately.

Misconceptions

Understanding the DTE 100 Ohio form is crucial for anyone involved in real estate transactions. However, several misconceptions can lead to confusion. Here are five common misconceptions:

  • Misconception 1: The DTE 100 form is only for property buyers.
  • This form is required for both buyers and sellers. It documents the transfer of property and must be completed accurately by the grantee or their representative.

  • Misconception 2: You can skip questions if you don't know the answer.
  • All questions on the DTE 100 must be answered to the best of your knowledge. Incomplete forms may lead to penalties or delays in the property transfer process.

  • Misconception 3: The form is optional if the transaction is exempt.
  • Even if a transaction is exempt under Ohio law, the DTE 100(EX) form must still be submitted. Failing to do so can result in complications during the conveyance process.

  • Misconception 4: The DTE 100 form only deals with the sale price of the property.
  • The form captures various aspects of the transaction, including mortgages, cash payments, and any conditions of sale. This information is vital for tax assessments.

  • Misconception 5: You can submit the form after the sale is completed.
  • The DTE 100 must be filed at the time of the property transfer. Delaying submission can lead to penalties and affect the legality of the transaction.

Key takeaways

Key Takeaways for Completing the DTE 100 Ohio Form

  • Ensure all information is accurately typed or printed. This includes the names of the grantor and grantee, property address, and tax billing address. Incomplete or inaccurate information may lead to delays or legal issues.
  • Identify any buildings on the property. If there are structures, specify the type, such as single-family dwellings or commercial buildings. This detail can affect property assessments and tax obligations.
  • Disclose any special conditions of the sale. Indicate if the grantor is a relative or if the transaction involves a land contract or gift. These factors may influence the conveyance fee and tax implications.
  • Complete the financial sections thoroughly. Report all amounts related to mortgages, cash payments, and the total consideration for the property. Accurate financial reporting is essential for determining the correct conveyance fee.