Homepage Blank De Ins Illinois PDF Form
Article Guide

The De Ins Illinois form is a crucial document for individuals seeking licensure under the Illinois Compiled Statutes, specifically 225 ILCS DE-INS 446/1 et seq. This form is not just a piece of paperwork; it is a necessary step in ensuring that applicants meet the insurance requirements mandated for various professions, including private detectives, security personnel, and locksmiths. When completing the form, the applicant must provide personal details such as their name, date of birth, and social security number, along with their specific profession and license number. It is essential that the insurance policy is in the name of the individual license holder, as comprehensive commercial general liability insurance is required. This policy must provide a minimum coverage of $1,000,000 and include protection for bodily injury, property damage, and personal injury. If the licensee carries a firearm during their duties, additional coverage for firearm-related claims is necessary. The form also requires the authorized insurance agent to verify the details and ensure compliance with the state's regulations. Failure to complete the form accurately may result in delays or denial of the application, underscoring the importance of careful attention to detail.

Document Preview

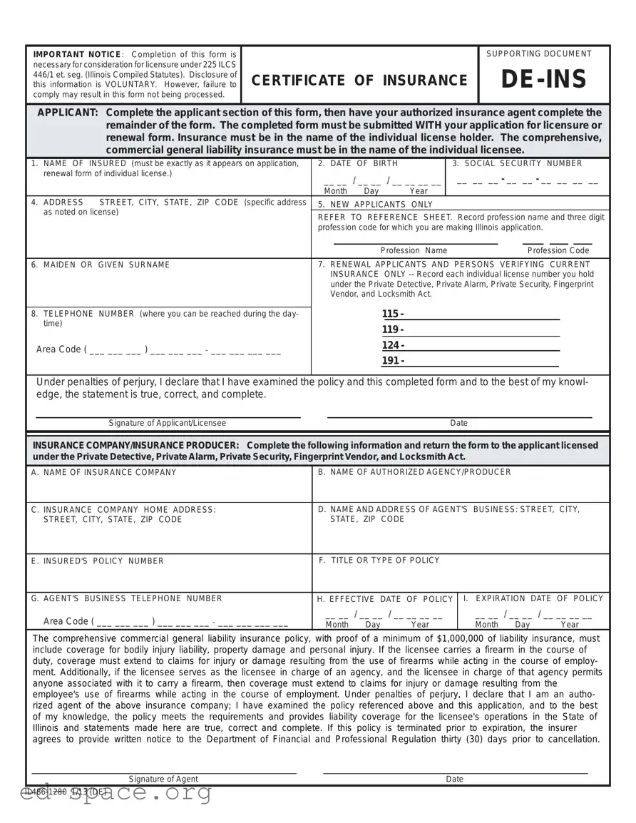
IMPORTANT NOTICE: Completion of this form is

 

SUPPORTING DOCUMENT

necessary for consideration for licensure under 225 ILCS

 

DE-INS

446/1 et. seg. (Illinois Compiled Statutes). Disclosure of

CERTIFICATE OF INSURANCE

this information is VOLUNTARY. However, failure to

comply may result in this form not being processed.

 

 

 

 

 

APPLICANT: Complete the applicant section of this form, then have your authorized insurance agent complete the remainder of the form. The completed form must be submitted WITH your application for licensure or renewal form. Insurance must be in the name of the individual license holder. The comprehensive, commercial general liability insurance must be in the name of the individual licensee.

1.

NAME OF INSURED (must be exactly as it appears on application,

2.

DATE OF BIRTH

 

3. SOCIAL SECURITY NUMBER

 

renewal form of individual license.)

__ __ / __ __ / __ __ __ __

 

__ __ __ - __ __ - __ __ __ __

 

 

 

 

 

Month Day

 

 

Year

 

 

 

 

 

 

 

 

 

 

4.

ADDRESS STREET, CITY, STATE, ZIP CODE (specific address

5.

NEW APPLICANTS ONLY

 

 

 

 

 

 

 

 

 

 

as noted on license)

 

 

 

 

 

 

 

 

 

 

 

 

 

 

 

 

 

REFER TO REFERENCE SHEET. Record profession name and three digit

 

 

 

 

profession code for which you are making Illinois application.

 

 

 

 

 

 

 

 

 

 

 

 

 

 

 

 

 

 

 

 

 

 

 

Profession Name

 

 

Profession Code

 

 

 

 

 

 

 

 

 

 

 

 

 

 

 

 

6.

MAIDEN OR GIVEN SURNAME

7. RENEWAL APPLICANTS AND PERSONS VERIFYING CURRENT

 

 

 

INSURANCE

 

ONLY -- Record each individual license number you hold

 

 

 

under the Private Detective, Private Alarm, Private Security, Fingerprint

 

 

 

Vendor, and Locksmith Act.

 

 

 

 

 

 

 

 

 

 

 

 

 

 

115 -

 

 

 

 

 

 

 

 

 

 

8.

TELEPHONE NUMBER (where you can be reached during the day-

 

 

 

 

 

 

 

 

 

 

 

 

 

 

time)

 

 

 

 

 

 

 

 

 

 

 

 

 

 

 

 

 

 

 

 

119 -

 

 

 

 

 

 

 

 

 

 

 

 

 

 

 

 

 

 

 

 

 

 

 

 

 

Area Code ( ___ ___ ___ ) ___ ___ ___ _ ___ ___ ___ ___

 

 

 

 

124 -

 

 

 

 

 

 

 

 

 

 

 

 

 

191 -

 

 

 

 

 

 

 

 

 

 

 

 

 

 

 

 

 

 

 

 

 

 

 

 

 

 

 

 

 

 

 

 

 

 

 

 

 

 

 

 

 

 

 

Under penalties of perjury, I declare that I have examined the policy and this completed form and to the best of my knowl- edge, the statement is true, correct, and complete.

Signature of Applicant/LicenseeDate

INSURANCE COMPANY/INSURANCE PRODUCER: Complete the following information and return the form to the applicant licensed under the Private Detective, Private Alarm, Private Security, Fingerprint Vendor, and Locksmith Act.

A. NAME OF INSURANCE COMPANY

B. NAME OF AUTHORIZED AGENCY/PRODUCER

 

 

 

 

C. INSURANCE COMPANY HOME ADDRESS:

D. NAME AND ADDRESS OF AGENT'S BUSINESS: STREET, CITY,

STREET, CITY, STATE, ZIP CODE

STATE, ZIP CODE

 

 

 

 

 

 

 

E. INSURED'S POLICY NUMBER

F. TITLE OR TYPE OF POLICY

 

 

 

 

 

G. AGENT'S BUSINESS TELEPHONE NUMBER

H. EFFECTIVE DATE OF POLICY

I. EXPIRATION DATE OF POLICY

Area Code ( ___ ___ ___ ) ___ ___ ___ _ ___ ___ ___ ___

__ __ / __ __ / __ __ __ __

__ __ / __ __ / __ __ __ __

Month Day

Year

Month Day

Year

 

The comprehensive commercial general liability insurance policy, with proof of a minimum of $1,000,000 of liability insurance, must include coverage for bodily injury liability, property damage and personal injury. If the licensee carries a firearm in the course of duty, coverage must extend to claims for injury or damage resulting from the use of firearms while acting in the course of employ- ment. Additionally, if the licensee serves as the licensee in charge of an agency, and the licensee in charge of that agency permits anyone associated with it to carry a firearm, then coverage must extend to claims for injury or damage resulting from the employee's use of firearms while acting in the course of employment. Under penalties of perjury, I declare that I am an autho- rized agent of the above insurance company; I have examined the policy referenced above and this application, and to the best of my knowledge, the policy meets the requirements and provides liability coverage for the licensee's operations in the State of Illinois and statements made here are true, correct and complete. If this policy is terminated prior to expiration, the insurer agrees to provide written notice to the Department of Financial and Professional Regulation thirty (30) days prior to cancellation.

Signature of Agent

Date

IL486-1280 1/13 (DE)

Form Specifications

Fact Name Details
Governing Law This form is governed by the Illinois Compiled Statutes, specifically 225 ILCS 446/1 et. seq.
Purpose of the Form The De Ins Illinois form is a supporting document necessary for licensure consideration.
Voluntary Disclosure Disclosure of information on this form is voluntary; however, non-compliance may lead to processing delays.
Applicant Requirements Applicants must complete their section and have their authorized insurance agent fill out the remainder.
Insurance Requirements Insurance must be in the name of the individual license holder and must include a minimum coverage of $1,000,000.
Submission with Application The completed form must be submitted along with the application for licensure or renewal.
Agent's Responsibilities The insurance agent must ensure the policy meets the necessary requirements for the licensee's operations in Illinois.
Termination Notification If the insurance policy is terminated, the insurer must notify the Department of Financial and Professional Regulation 30 days before cancellation.

De Ins Illinois: Usage Guidelines

Filling out the De Ins Illinois form is an important step in your licensure process. Make sure you have all the necessary information ready, as this form must be completed accurately and submitted alongside your application for licensure or renewal.

  1. Applicant Information: Fill in your name exactly as it appears on your application.
  2. Date of Birth: Enter your date of birth in the format Month/Day/Year.
  3. Social Security Number: Provide your Social Security Number.
  4. Address: Write your complete address, including street, city, state, and ZIP code.
  5. New Applicants Only: If you are a new applicant, refer to the reference sheet and record your profession name and three-digit profession code.
  6. Maiden or Given Surname: If applicable, include your maiden or given surname.
  7. Renewal Applicants: If you are renewing, list each individual license number you hold under the relevant acts.
  8. Telephone Number: Provide a daytime phone number where you can be reached.
  9. Declaration: Sign and date the form, confirming that the information is true and complete.
  10. Insurance Company Information: The insurance company or agent must complete their section, including the name of the company, agent, and policy details.
  11. Agent's Declaration: The agent must sign and date the form, confirming the policy meets the necessary requirements.

Once you’ve filled out the form completely, ensure that both you and your insurance agent sign it. Submit the completed form with your application for licensure or renewal to avoid any processing delays.

Your Questions, Answered

What is the purpose of the De Ins Illinois form?

The De Ins Illinois form is a necessary supporting document for individuals seeking licensure under the Illinois Compiled Statutes, specifically 225 ILCS DE-INS 446/1 et seq. This form verifies that the applicant has the required comprehensive commercial general liability insurance, which must be in the name of the individual license holder. Completing this form is essential for both new applicants and those renewing their licenses, as it ensures compliance with state regulations.

Who needs to fill out the De Ins Illinois form?

Both new applicants and renewal applicants must complete the De Ins Illinois form. New applicants need to provide their personal information, including their name, date of birth, and social security number. They must also have their authorized insurance agent fill out the remaining sections of the form. Renewal applicants should list their individual license numbers under the relevant acts, ensuring that all information is accurate and up to date.

What information is required on the De Ins Illinois form?

The form requires several key pieces of information. Applicants must provide their full name as it appears on the application, date of birth, social security number, and a specific address. Additionally, new applicants must include their profession name and code. The insurance agent must also fill out details about the insurance company, including the policy number, type of policy, effective and expiration dates, and the agent's contact information. It's important that all information is complete and accurate to avoid processing delays.

What happens if the De Ins Illinois form is not completed correctly?

If the De Ins Illinois form is not completed correctly or if required information is missing, the application for licensure may not be processed. This could lead to delays in obtaining a license or renewal. Therefore, it is crucial for applicants to ensure that all sections of the form are filled out accurately and that the insurance coverage meets the specified requirements, including a minimum of $1,000,000 in liability insurance.

Common mistakes

  1. Failing to use the exact name as it appears on the application. The name of the insured must match precisely; otherwise, it could lead to processing delays.

  2. Omitting the date of birth. This information is crucial for identification and must be filled out completely.

  3. Not providing a social security number. This is a required field and must be accurately entered to avoid issues with your application.

  4. Leaving out the complete address. Ensure that the street, city, state, and ZIP code are all included to prevent any confusion.

  5. New applicants often forget to record their profession name and three-digit profession code. This step is essential for your application to be processed correctly.

  6. Not including the maiden or given surname if applicable. This detail is often overlooked but is necessary for proper identification.

  7. Renewal applicants must remember to list each individual license number they hold. Failing to do so can lead to delays in processing.

  8. Providing an incorrect or incomplete telephone number. Make sure to include the area code and ensure the number is accurate for follow-up communications.

  9. Insurance details must be filled out accurately. This includes the insurance company name, policy number, and the effective and expiration dates. Any errors can result in your application being rejected.

  10. Finally, neglecting to have the signature of the agent and the date signed can render the application invalid. Always double-check that this is completed.

Documents used along the form

When applying for licensure in Illinois, several forms and documents are often needed alongside the De Ins Illinois form. Each document plays a crucial role in ensuring that your application is complete and meets all necessary requirements. Here’s a brief overview of these essential documents.

  • Application for Licensure or Renewal: This form is the primary document that initiates your request for a license or the renewal of an existing one. It collects personal information and details about your qualifications.
  • Certificate of Insurance: This document proves that you have the required liability insurance coverage. It must be issued in your name and meet the specific coverage limits set by the state.
  • Background Check Authorization: This form allows the state to conduct a background check on you. It ensures that you meet the moral and ethical standards required for licensure.
  • Proof of Training or Education: Depending on your profession, you may need to submit documentation showing that you have completed the necessary training or educational programs required for licensure.
  • Fingerprint Submission: This document includes your fingerprints, which are necessary for a background check. It helps verify your identity and check for any criminal history.
  • Verification of Employment: If you are renewing your license, you may need to provide proof of your employment history. This document confirms your work experience in your field.
  • Continuing Education Certificates: Some professions require ongoing education. Submitting these certificates shows that you have completed the necessary courses to maintain your licensure.

Having these documents ready will help streamline the application process and increase the chances of your application being approved. Ensure that you complete each form accurately and submit them together with the De Ins Illinois form for the best results.

Similar forms

The De Ins Illinois form serves a specific purpose in the licensing process for individuals in certain professions. However, several other documents share similarities with this form in terms of structure, function, and the information they require. Below is a list of eight documents that are comparable to the De Ins Illinois form:

  • Certificate of Insurance: This document provides proof of insurance coverage, similar to the De Ins Illinois form, which requires verification of liability insurance for licensing purposes.
  • Application for Professional License: Like the De Ins Illinois form, this application collects personal information and proof of qualifications necessary for obtaining a professional license.
  • Insurance Verification Form: This form confirms that a professional has the required insurance coverage, paralleling the De Ins Illinois form's role in ensuring compliance with insurance requirements.
  • Renewal Application for Licensure: Just as the De Ins Illinois form is used for initial licensure, this renewal application requires updated information and documentation to maintain a professional license.
  • Proof of Employment Form: This document often requires similar personal and professional details, ensuring that an individual is qualified for their role, much like the De Ins Illinois form does.
  • Background Check Authorization Form: This form gathers personal information and consent for background checks, akin to the De Ins Illinois form's collection of identifying details.
  • Professional Liability Insurance Application: This application is essential for obtaining liability insurance, similar to how the De Ins Illinois form requires proof of such insurance for licensure.
  • Continuing Education Verification Form: This document ensures that professionals meet ongoing educational requirements, similar to how the De Ins Illinois form verifies insurance compliance for licensees.

Each of these documents plays a crucial role in the professional licensing process, ensuring that individuals meet the necessary standards and requirements in their respective fields.

Dos and Don'ts

Filling out the De Ins Illinois form can seem daunting, but understanding the do's and don'ts can make the process smoother. Here’s a helpful list to guide you through.

  • Do ensure that the name of the insured matches exactly with the name on your application or renewal form. This consistency is crucial for processing your application.
  • Do provide accurate contact information, including a reachable telephone number. This will facilitate communication if any issues arise.
  • Do submit the completed form along with your application for licensure or renewal. Incomplete submissions may delay your licensing process.
  • Do verify that your insurance policy meets the minimum coverage requirements. A policy with at least $1,000,000 in liability coverage is necessary.
  • Don't leave any sections blank. Every part of the form must be filled out to avoid delays.
  • Don't forget to include your social security number and date of birth. These details are essential for identification purposes.
  • Don't assume that the insurance company will fill out the form for you. You must ensure that your authorized insurance agent completes their section accurately.
  • Don't overlook the signature requirement. Both the applicant and the insurance agent must sign the form to validate it.

By following these guidelines, you can help ensure that your De Ins Illinois form is completed correctly, paving the way for a smoother licensure process.

Misconceptions

When dealing with the De Ins Illinois form, it's common for individuals to have misconceptions. Understanding these can help streamline the application process and ensure compliance. Here are four common misconceptions:

  • It's optional to complete this form. Some people believe that filling out the De Ins Illinois form is not necessary. In reality, this form is a supporting document required for licensure. Failure to complete it may result in your application not being processed.
  • Only new applicants need to submit this form. Many assume that only first-time applicants are required to complete the form. However, both new and renewal applicants must submit the form along with their application for licensure or renewal.
  • The insurance policy can be in any name. There is a misconception that the insurance policy can be in any name. In fact, the comprehensive, commercial general liability insurance must be in the name of the individual license holder. This is crucial for compliance.
  • Providing personal information is mandatory. While it's true that certain personal information must be provided, such as your name and Social Security number, the disclosure of some information is voluntary. However, not complying with the required sections may hinder the processing of your form.

Clarifying these misconceptions can help applicants navigate the licensure process more effectively. Always ensure that you follow the guidelines laid out in the form to avoid delays.

Key takeaways

When filling out the De Ins Illinois form, it is crucial to adhere to the following key takeaways:

  • Mandatory Completion: This form is a supporting document necessary for licensure consideration under Illinois law.
  • Voluntary Disclosure: Providing certain information is voluntary, but non-compliance may delay processing.
  • Applicant Section: The applicant must complete their section before the authorized insurance agent fills out the rest.
  • Insurance Requirements: The insurance policy must be in the name of the individual license holder and cover a minimum of $1,000,000 in liability.
  • Specific Information Needed: Include the insured's name, date of birth, social security number, and address as they appear on the application.
  • Policy Coverage: The policy must cover bodily injury, property damage, and personal injury, including firearm-related incidents if applicable.
  • Notification of Cancellation: If the insurance policy is terminated, the insurer must notify the Department of Financial and Professional Regulation 30 days prior to cancellation.

Ensure all sections are filled out accurately to prevent any delays in the licensure process. Review the completed form carefully before submission.