Homepage Blank D 1 Statement Organization Illinois PDF Form
Article Guide

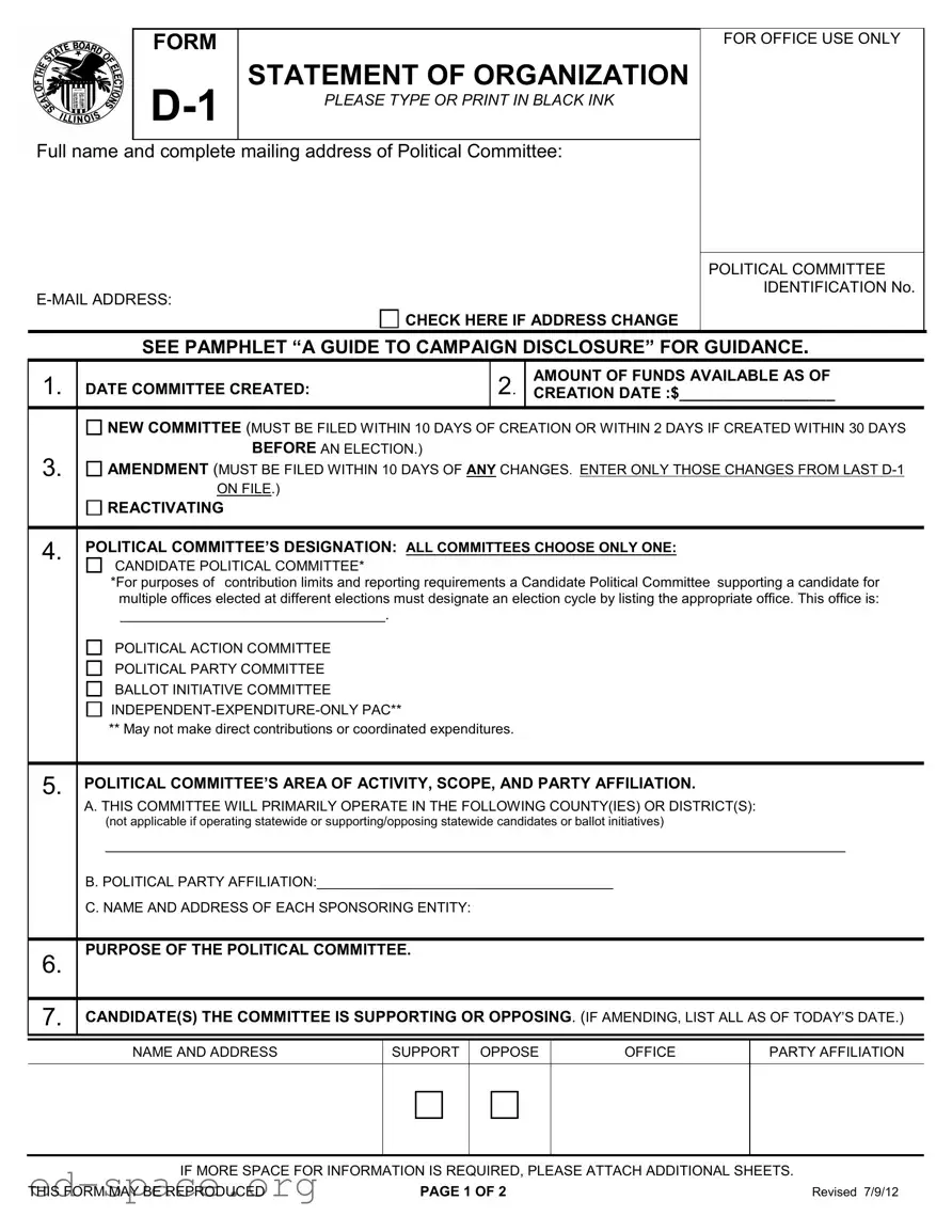
The D 1 Statement Organization form is a crucial document for political committees in Illinois, serving as the official registration tool for various types of committees. This form requires basic information such as the committee's name, mailing address, and email, along with details about the committee's creation date and available funds. Committees must also specify their designation, whether they are a candidate political committee, political action committee, or another type. The form prompts committees to outline their area of activity, political party affiliation, and the purpose of their organization. Additionally, it asks for a list of candidates they support or oppose and the required officers' contact information. This document must be filed promptly—within ten days of creation or two days before an election—and any amendments must also be submitted in a timely manner. Proper completion of the D 1 form is essential for compliance with Illinois election laws, ensuring transparency and accountability in political activities.

Document Preview

FORM

D-1

STATEMENT OF ORGANIZATION

PLEASE TYPE OR PRINT IN BLACK INK

Full name and complete mailing address of Political Committee:

E-MAIL ADDRESS:

CHECK HERE IF ADDRESS CHANGE

FOR OFFICE USE ONLY

POLITICAL COMMITTEE IDENTIFICATION No.

SEE PAMPHLET “A GUIDE TO CAMPAIGN DISCLOSURE” FOR GUIDANCE.

1.

DATE COMMITTEE CREATED:

2.

AMOUNT OF FUNDS AVAILABLE AS OF

CREATION DATE :$__________________

 

 

 

 

 

NEW COMMITTEE (MUST BE FILED WITHIN 10 DAYS OF CREATION OR WITHIN 2 DAYS IF CREATED WITHIN 30 DAYS

3.

BEFORE AN ELECTION.)

 

 

AMENDMENT (MUST BE FILED WITHIN 10 DAYS OF ANY CHANGES. ENTER ONLY THOSE CHANGES FROM LAST D-1

 

ON FILE.)

 

 

 

REACTIVATING

 

 

 

 

4.

POLITICAL COMMITTEE’S DESIGNATION: ALL COMMITTEES CHOOSE ONLY ONE:

 

CANDIDATE POLITICAL COMMITTEE*

 

 

 

*For purposes of contribution limits and reporting requirements a Candidate Political Committee supporting a candidate for

 

multiple offices elected at different elections must designate an election cycle by listing the appropriate office. This office is:

 

__________________________________.

 

 

 

POLITICAL ACTION COMMITTEE

 

 

 

POLITICAL PARTY COMMITTEE

 

 

 

BALLOT INITIATIVE COMMITTEE

 

 

 

INDEPENDENT-EXPENDITURE-ONLY PAC**

 

 

**May not make direct contributions or coordinated expenditures.

5.POLITICAL COMMITTEE’S AREA OF ACTIVITY, SCOPE, AND PARTY AFFILIATION.

A. THIS COMMITTEE WILL PRIMARILY OPERATE IN THE FOLLOWING COUNTY(IES) OR DISTRICT(S):

(not applicable if operating statewide or supporting/opposing statewide candidates or ballot initiatives)

_______________________________________________________________________________________________

B.POLITICAL PARTY AFFILIATION:______________________________________

C.NAME AND ADDRESS OF EACH SPONSORING ENTITY:

6.PURPOSE OF THE POLITICAL COMMITTEE.

7.CANDIDATE(S) THE COMMITTEE IS SUPPORTING OR OPPOSING. (IF AMENDING, LIST ALL AS OF TODAY’S DATE.)

NAME AND ADDRESS

SUPPORT

OPPOSE

OFFICE

PARTY AFFILIATION

IF MORE SPACE FOR INFORMATION IS REQUIRED, PLEASE ATTACH ADDITIONAL SHEETS.

THIS FORM MAY BE REPRODUCED

PAGE 1 OF 2

Revised 7/9/12

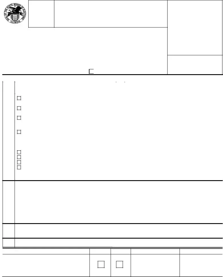
COMMITTEE NAME:

POLITICAL COMMITTEE IDENTIFICATION No.:

8.

REQUIRED COMMITTEE OFFICERS.

POSITION

NAME

MAILING ADDRESS, DAYTIME PHONE NUMBER, AND E-MAIL ADDRESS

CHAIRMAN

TREASURER

9.

POSITION, NAME & MAILING ADDRESS OF EACH CUSTODIAN OF THE COMMITTEE’S BOOKS AND ACCOUNTS.

POSITION

NAME

MAILING ADDRESS, DAYTIME PHONE NUMBER, AND E-MAIL ADDRESS

10.

LIST OF ALL FINANCIAL INSTITUTIONS AND OTHER REPOSITORIES OF THE COMMITTEE FUNDS.

(IF AMENDING, LIST ALL AS OF TODAY’S DATE.)

 

 

NAME

 

MAILING ADDRESS AND PHONE NUMBER

 

 

 

 

 

 

 

 

11. DISPOSITION OF RESIDUAL FUNDS IN THE EVENT OF DISSOLUTION OR TERMINATION OF THE COMMITTEE:

RETURN TO CONTRIBUTORS IN AMOUNTS NOT TO EXCEED THEIR INDIVIDUAL CONTRIBUTIONS. TRANSFER TO ANOTHER POLITICAL COMMITTEE:

TRANSFER TO A CHARITABLE ORGANIZATION:

IF MORE SPACE FOR INFORMATION IS REQUIRED, PLEASE ATTACH ADDITIONAL SHEETS.

VERIFICATION- BALLOT INITIATIVE COMMITTEES ONLY

I DECLARE THAT THIS BALLOT INITIATIVE COMMITTEE IS FORMED FOR THE PURPOSE OF SUPPORTING OR OPPOSING A QUESTION OF PUBLIC POLICY, ALL CONTRIBUTIONS AND EXPENDITURES OF THE COMMITTEE WILL BE USED FOR THE PURPOSE DESCRIBED IN THIS STATEMENT OF ORGANIZATION, THE COMMITTEE MAY ACCEPT UNLIMITED CONTRIBUTIONS FROM ANY SOURCE, PROVIDED THAT THIS BALLOT INITIATIVE COMMITTEE DOES NOT MAKE CONTRIBUTIONS OR EXPENDITURES IN SUPPORT OF OR OPPOSITION TO A CANDIDATE OR CANDIDATES FOR NOMINATION FOR ELECTION, ELECTION, OR RETENTION, AND FAILURE TO ABIDE BY THESE REQUIREMENTS SHALL DEEM THIS COMMITTEE IN VIOLATION OF THIS ARTICLE. (10 ILCS 5/9)

PRINTED AND WRITTEN SIGNATURE OF COMMITTEE CHAIRPERSON

DATE

VERIFICATION: INDEPENDENT EXPENDITURE COMMITTEES ONLY

I DECLARE THAT ( i) THIS INDEPENDENT EXPENDITURE COMMITTEE IS FORMED FOR THE EXCLUSIVE PURPOSE OF MAKING INDEPENDENT EXPEN DITURES, ( ii) ALL CONTRIBUTIONS AND EXPENDITURES O F THE COMMITTEE WILL BE USED FOR T HE PU RPOSE D ESCRIBED I N T HE ST ATEMENT O F O RGANIZATION, (iii) T HE C OMMITTEE MAY ACCEPT UNL IMITED CO NTRIBUTIONS FROM ANY SOURCE, PROVIDED THAT THE INDEPENDENT EXPENDITURE COMMITTEE DOES NOT MAKE CONTRIBUTIONS TO ANY CANDIDATE POLITICAL COMMITTEE, POLITICAL PARTY COMMITTEE, OR POLITICAL ACTION COMMITTEE, AND (iv) FAILURE TO ABIDE BY THESE REQUIREMENTS SHALL DEEM THE COMMITTEE IN VIOLATION OF THIS ARTICLE.

PRINTED AND WRITTEN SIGNATURE OF COMMITTEE CHAIRPERSON

DATE

VERIFICATION: ALL POLITICAL COMMITTEES

I DECLARE THAT THIS STATEMENT OF ORGANIZATION (INCLUDING ANY ACCOMPANYING SCHEDULES AND STATEMENTS) HAS BEEN EXAMINED BY ME AND, TO THE BEST OF MY KNOWLEDGE AND BELIEF, IS A TRUE, CORRECT, AND COMPLETE STATEMENT OF ORGANIZATION AS REQUIRED BY ARTICLE 9 OF THE ELECTION CODE. I UNDERSTAND THAT WILLFULLY FILING A FALSE OR INCOMPLETE STATEMENT IS SUBJECT TO A CIVIL PENALTY OF AT LEAST $1001 AND UP TO $5000.

PRINTED AND WRITTEN SIGNATURE OF TREASURER OR CANDIDATE

DATE

THE ILLINOIS STATE BOARD OF ELECTIONS REQUIRES THE DISCLOSURE OF INFORMATION THAT IS NECESSARY IF YOU QUALIFY AS A POLITICAL COMMITTEE AS OUTLINED UNDER PUBLIC ACT 78-1183. WILLFUL FAILURE TO FILE OR WILLFUL FILING OF FALSE OR INCOMPLETE INFORMATION REQUIRED BY THIS ARTICLE SHALL CONSTITUTE A BUSINESS OFFENSE SUBJECT TO A FINE OF UP TO $5000. THIS FORM IS IN COMPLIANCE WITH THE FORMS MANAGEMENT PROGRAM ACT.

ALL POLITICAL COMMITTEES RETURN TO:

STATE BOARD OF ELECTIONS

STATE BOARD OF ELECTIONS

JAMES R. THOMPSON CENTER

2329 S MACARTHUR BLVD

100 W RANDOLPH ST, STE 14-100

SPRINGFIELD, IL 62704-4503

CHICAGO, IL. 60601-3232

fax: 217-557-5630

fax: 312-814-6485

e-mail: [email protected](D-1s ONLY)

e-mail: [email protected](D-1s ONLY)

 

www.elections.il.gov

PAGE 2 OF 2

Form Specifications

Fact Name Details
Purpose of the Form The D-1 Statement of Organization is used to register a political committee in Illinois, ensuring compliance with state election laws.
Filing Deadline New committees must file the D-1 form within 10 days of creation, or within 2 days if created within 30 days before an election.
Governing Laws This form is governed by Article 9 of the Illinois Election Code (10 ILCS 5/9).
Committee Types Committees can designate themselves as Candidate Political Committees, Political Action Committees, Political Party Committees, or Ballot Initiative Committees.
Financial Disclosure Committees must disclose their available funds as of the creation date and list all financial institutions holding their funds.
Penalties for Non-Compliance Willful failure to file or submitting false information can result in civil penalties ranging from $1,001 to $5,000.

D 1 Statement Organization Illinois: Usage Guidelines

Filling out the D 1 Statement Organization form is a crucial step for political committees in Illinois. This process ensures that your committee is properly registered and recognized by the state. Below are the steps to guide you through completing the form accurately.

  1. Enter the full name and mailing address of your political committee at the top of the form. Include your email address as well.
  2. Check the box if there has been an address change.
  3. Fill in the Political Committee Identification Number if applicable, or leave it blank for new committees.
  4. Provide the date your committee was created.
  5. Indicate the amount of funds available as of the creation date. Write the amount in the designated space.
  6. Select the type of filing: New Committee, Amendment, or Reactivating. Ensure you understand the deadlines for each option.
  7. Choose the designation of your political committee from the provided options, such as Candidate Political Committee or Political Action Committee.
  8. Describe the area of activity for your committee. Specify the counties or districts if applicable, and indicate your political party affiliation.
  9. List the name and address of each sponsoring entity associated with your committee.
  10. State the purpose of your political committee clearly.
  11. Identify any candidates your committee is supporting or opposing. Include their names, addresses, and party affiliations.
  12. Provide information for required committee officers, including the chairman and treasurer. Include their mailing addresses, phone numbers, and email addresses.
  13. List the custodians of the committee’s books and accounts, along with their contact information.
  14. Document all financial institutions where the committee funds will be held. Include names, addresses, and phone numbers.
  15. Describe how residual funds will be handled in the event of dissolution or termination of the committee.
  16. Complete the verification section by signing and dating the form. Ensure the signatures are from the committee chairperson and treasurer or candidate.

Once the form is filled out, review it for accuracy. It’s important to ensure that all information is correct and complete before submission. After that, you can send the form to the appropriate address provided on the form for processing.

Your Questions, Answered

What is the D-1 Statement of Organization in Illinois?

The D-1 Statement of Organization is a form that political committees in Illinois must file to officially register their existence. This form collects essential information about the committee, including its name, address, purpose, and the candidates it supports or opposes. It is important for compliance with state election laws and ensures transparency in campaign financing.

Who needs to file the D-1 Statement of Organization?

Any political committee that intends to raise or spend money for political purposes in Illinois must file the D-1 Statement of Organization. This includes candidate committees, political action committees, political party committees, and ballot initiative committees. If a committee is created within 30 days of an election, it must file the form within 2 days. Otherwise, the filing deadline is 10 days after creation.

What information is required on the D-1 form?

The D-1 form requires several pieces of information, including the full name and mailing address of the committee, the date of creation, the amount of funds available at that time, and the committee's designation. It also asks for details about the committee's area of activity, purpose, and any candidates it supports or opposes. Additionally, the form requires the names and contact information of key officers and custodians of the committee’s books and accounts.

What happens if a committee needs to make changes after filing the D-1 form?

If there are any changes to the information provided in the D-1 form, the committee must file an amendment within 10 days. This includes changes to the committee's name, address, officers, or financial institutions. It is essential to keep this information up to date to maintain compliance with Illinois election laws.

What are the consequences of failing to file the D-1 Statement of Organization?

Failing to file the D-1 Statement of Organization can result in significant penalties. The Illinois State Board of Elections may impose fines of up to $5,000 for willful failure to file or for filing false or incomplete information. Additionally, such actions can lead to legal issues for the committee and its officers, making it crucial to adhere to all filing requirements.

Common mistakes

  1. Incomplete Information: Many individuals fail to provide all required details, such as the full name and complete mailing address of the political committee. Omitting any of this information can lead to delays or rejections.

  2. Incorrect Designation: Selecting the wrong type of political committee can cause confusion. Each committee type has specific rules and limitations. It is crucial to choose the designation that accurately reflects the committee's purpose.

  3. Missing Signatures: Not signing the form or failing to have the appropriate individuals sign can render the submission invalid. Ensure that the committee chairperson and treasurer sign where required.

  4. Failure to Update Changes: When amending the form, some people neglect to list all changes accurately. Every amendment should reflect the most current information, including any updates to committee officers or financial institutions.

  5. Ignoring Deadlines: Submitting the form after the established deadlines can lead to penalties. New committees must file within ten days of creation, or within two days if created within thirty days before an election.

  6. Neglecting to Attach Additional Information: If more space is needed for details, individuals often forget to attach additional sheets. This omission can result in incomplete submissions that do not meet the requirements of the form.

Documents used along the form

The D-1 Statement Organization form is essential for establishing a political committee in Illinois. It provides foundational information about the committee, including its purpose, officers, and financial details. Several other documents often accompany this form to ensure compliance with state regulations and enhance transparency in political activities.

  • Form D-2: Campaign Disclosure Statement - This form details the financial activities of a political committee. It includes information about contributions received and expenditures made during a specific reporting period. Timely filing of the D-2 is crucial for maintaining compliance with campaign finance laws.
  • Form D-3: Independent Expenditure Report - Used by independent expenditure committees, this document reports expenditures made to influence elections without coordinating with candidates or parties. It ensures transparency about spending in political campaigns.
  • Form D-4: Amendment to Statement of Organization - If there are any changes to the information provided in the D-1 form, this amendment form must be filed. It allows committees to update their details, such as changes in officers or financial institutions.
  • Form D-5: Termination Statement - When a political committee ceases operations, this form is required to formally terminate the committee's status. It outlines the disposition of any remaining funds and ensures that all financial obligations are settled.

These forms work together with the D-1 Statement Organization to create a comprehensive framework for political committees in Illinois. Properly completing and filing these documents is essential for compliance with state election laws and maintaining public trust.

Similar forms

The D-1 Statement of Organization form in Illinois is a crucial document for political committees. It serves as a foundational piece for ensuring transparency and compliance in political fundraising and spending. Several other documents share similarities with the D-1 form, each playing a vital role in the political landscape. Below are six documents that are comparable to the D-1 Statement of Organization, along with their similarities.

  • FEC Form 1 - Statement of Organization: This federal form is used by political committees to register with the Federal Election Commission. Like the D-1 form, it requires basic information about the committee, including its name, purpose, and key officers.
  • State Committee Registration Forms: Many states have their own forms for registering political committees. These forms typically require similar information to the D-1, such as the committee's purpose, structure, and financial details.
  • Campaign Finance Disclosure Forms: These documents provide detailed information about contributions and expenditures. They share the D-1's goal of transparency in political financing, ensuring that all financial activities are reported to the appropriate authorities.
  • Ballot Initiative Registration Forms: When groups seek to place initiatives on the ballot, they often must file a registration form. Like the D-1, these forms require information about the committee's purpose and the issues it supports or opposes.
  • Political Action Committee (PAC) Registration Forms: PACs must register with state or federal authorities, similar to the D-1. These forms detail the committee's structure and financial operations, ensuring compliance with campaign finance laws.
  • Electioneering Communication Reports: These reports are filed by organizations that engage in electioneering communications. They share a common goal with the D-1 form: to disclose financial activities related to political advocacy, ensuring that the public is informed about who is funding political messages.

Understanding these documents is essential for anyone involved in political activities. They help maintain the integrity of the electoral process and promote accountability among political committees.

Dos and Don'ts

When filling out the D-1 Statement Organization form in Illinois, it is essential to follow specific guidelines to ensure accuracy and compliance. Here’s a list of things you should and shouldn’t do:

  • Do type or print in black ink for clarity.
  • Do include the full name and complete mailing address of your political committee.
  • Do check the box for an address change if applicable.
  • Do file the form within the required time frame: within 10 days of creation or within 2 days if created within 30 days before an election.
  • Do specify the political committee’s designation clearly.
  • Do provide accurate information about the committee’s area of activity and party affiliation.
  • Do list all candidates the committee is supporting or opposing, including their office and party affiliation.
  • Do include the required information for committee officers, including their contact details.
  • Don’t leave any sections blank; incomplete forms may lead to delays or rejections.
  • Don’t forget to sign and date the form; an unsigned form will not be accepted.

Following these guidelines will help ensure that your D-1 Statement Organization form is completed correctly and submitted on time.

Misconceptions

Misconceptions about the D 1 Statement Organization Illinois form can lead to confusion for those involved in political committees. Here are four common misunderstandings:

  • It is only for new committees. Many believe the D 1 form is solely for new political committees. In reality, it is also required for amendments and reactivations of existing committees. If there are any changes to the committee's information, an amendment must be filed within ten days.
  • All political committees can operate without restrictions. Some think that once a committee is established, it can operate freely. However, each committee must specify its area of activity and adhere to designated rules regarding contributions and expenditures, especially if they support or oppose candidates.
  • Filing the D 1 form is a one-time event. There is a common belief that filing the D 1 form is a one-time requirement. In truth, committees must regularly update their information and file amendments whenever there are changes, such as new officers or financial institutions.
  • There are no penalties for incorrect filings. Many assume that mistakes on the D 1 form will go unnoticed. However, willfully filing false or incomplete information can result in civil penalties ranging from $1,001 to $5,000, highlighting the importance of accuracy in these documents.

Key takeaways

Here are key takeaways for filling out and using the D-1 Statement Organization Illinois form:

  • Complete Information: Ensure you provide the full name and complete mailing address of your political committee.
  • Timeliness: File the form within 10 days of creating a new committee or within 2 days if created within 30 days before an election.
  • Amendments: If there are any changes, file an amendment within 10 days, detailing only the changes since the last D-1 form.
  • Committee Designation: Choose one designation for your committee: Candidate Political Committee, Political Action Committee, Political Party Committee, Ballot Initiative Committee, or Independent-Expenditure-Only PAC.
  • Area of Activity: Specify the counties or districts where your committee will primarily operate, unless statewide.
  • Purpose Statement: Clearly outline the purpose of your political committee in the designated section.
  • Candidate Support: List all candidates your committee supports or opposes, including their names, addresses, and party affiliations.
  • Committee Officers: Provide the names and contact information for the required committee officers, including the chairman and treasurer.
  • Financial Institutions: List all financial institutions where the committee's funds will be held.
  • Residual Funds: Indicate how residual funds will be disposed of if the committee dissolves, such as returning to contributors or transferring to another committee.

Following these guidelines will help ensure compliance with Illinois election laws and facilitate the smooth operation of your political committee.