Homepage Blank California Preliminary 20 Day Notice PDF Form
Article Guide

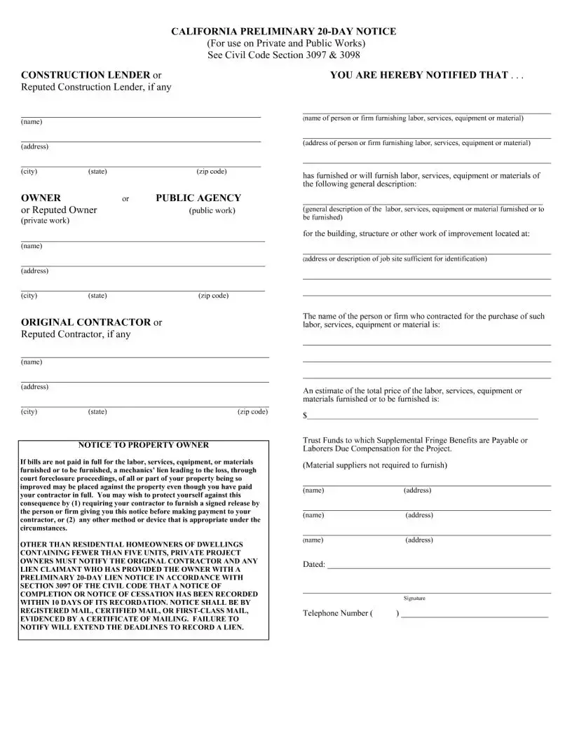
The California Preliminary 20-Day Notice form plays a crucial role in the construction industry, serving as an essential tool for protecting the rights of those who provide labor, services, equipment, or materials for a construction project. This notice, applicable to both private and public works, informs property owners about potential liens that could be placed on their property if payments for these services are not made in full. It includes key details such as the name and address of the construction lender, the owner of the property, and the contractor involved in the project. The form also outlines the specific labor or materials being provided, along with the location of the project, ensuring that all parties are clearly identified. Furthermore, it emphasizes the importance of communication between property owners and contractors, highlighting the necessity for owners to notify contractors and lien claimants of any recorded notices of completion or cessation. By doing so, they can avoid potential complications that may arise from unpaid bills, including the risk of a mechanics' lien that could lead to the loss of their property. Overall, understanding this form is vital for both contractors and property owners to navigate the complexities of construction financing and legal obligations effectively.

Document Preview

Form Specifications

Fact Name Details
Purpose The California Preliminary 20-Day Notice informs property owners and contractors about the provision of labor, services, equipment, or materials on a construction project.
Governing Law This form is governed by California Civil Code Sections 3097 and 3098.
Deadline for Notice It must be served within 20 days of the first furnishing of labor, services, equipment, or materials to preserve lien rights.
Notice Requirements Property owners must notify original contractors and lien claimants of a recorded notice of completion or cessation within 10 days.
Potential Consequences If bills are unpaid, a mechanics' lien may be placed on the property, even if the contractor has been fully paid.

California Preliminary 20 Day Notice: Usage Guidelines

Filling out the California Preliminary 20 Day Notice form is an important step in ensuring that all parties involved in a construction project are aware of the labor, services, equipment, or materials being provided. This notice serves to protect your rights and interests in the event of non-payment. After completing the form, it is crucial to serve it to the relevant parties, which may include the property owner, original contractor, and any construction lenders involved in the project.

  1. Obtain the form: Download or print the California Preliminary 20 Day Notice form from a reliable source.
  2. Fill in the construction lender's details: If applicable, write the name and address of the construction lender or reputed construction lender at the top of the form.
  3. Provide owner information: Enter the name, address, city, state, and zip code of the property owner or reputed owner.
  4. Identify the public agency: If the work is public, include the name of the public agency involved.
  5. Detail the labor and services: Describe the labor, services, equipment, or materials you have provided or will provide for the project.
  6. Specify the job site: Write the address or a sufficient description of the job site, including city, state, and zip code.
  7. List the original contractor: If there is an original contractor, include their name and address.
  8. State the contracting party: Provide the name and address of the person or firm that contracted for the labor, services, equipment, or materials.
  9. Estimate total price: Enter an estimate of the total price for the labor, services, equipment, or materials.
  10. Complete trust funds information: If applicable, list the names of trust funds to which supplemental fringe benefits are payable.
  11. Date and sign the form: Include the date and your signature, along with your telephone number.
  12. Proof of service affidavit: Fill out the proof of service section, indicating how you served the notice, either by personal delivery or by mail. Include the names and addresses of all parties served.

Your Questions, Answered

What is the purpose of the California Preliminary 20-Day Notice?

The California Preliminary 20-Day Notice serves as a formal notification to property owners and contractors regarding the provision of labor, services, equipment, or materials for a construction project. It informs the property owner that if payments are not made, a mechanics' lien could be placed against their property. This notice helps protect the rights of those who supply labor and materials by ensuring that property owners are aware of their obligations and the potential consequences of non-payment.

Who is required to send a Preliminary 20-Day Notice?

What should be included in the Preliminary 20-Day Notice?

The notice must include specific information such as the name and address of the person or firm providing the labor or materials, a general description of the work, and the address of the job site. Additionally, it should identify the original contractor and the property owner. This information is crucial for establishing the context of the work being done and the parties involved.

What happens if a property owner does not receive a Preliminary 20-Day Notice?

If a property owner does not receive a Preliminary 20-Day Notice, they may not be aware of potential claims against their property. This lack of awareness could lead to complications if a lien is later filed. Moreover, failing to notify the original contractor and any lien claimant about a recorded Notice of Completion or Notice of Cessation can extend the deadlines for recording a lien, potentially complicating the situation for all parties involved.

Common mistakes

  1. Failing to include the correct names of all parties involved. It is essential to accurately identify the construction lender, owner, and contractor to avoid confusion and ensure proper notification.

  2. Not providing a complete address for the job site. The address must be detailed enough for identification, which helps prevent disputes over the location of the work.

  3. Omitting the general description of the labor, services, equipment, or materials. A clear description is necessary to inform all parties about what is being provided.

  4. Neglecting to estimate the total price of the work. This estimate is crucial for financial planning and may be necessary for lien purposes.

  5. Incorrectly filling out the proof of service section. This part must be completed accurately to demonstrate that all parties received the notice as required by law.

  6. Failing to notify the original contractor or lien claimants about a notice of completion or cessation. This notification is required within ten days of recordation and is important to protect the owner's interests.

  7. Using an inappropriate method of service. The notice must be sent via registered mail, certified mail, or first-class mail, and this should be evidenced by a certificate of mailing.

  8. Not signing or dating the form. The absence of a signature or date can render the notice invalid, leading to potential legal complications.

Documents used along the form

The California Preliminary 20 Day Notice is an important document in the construction industry, serving as a formal notification to property owners about potential claims for unpaid labor or materials. Several other forms and documents often accompany this notice, each serving a specific purpose in the construction process. Below is a list of these documents, along with a brief description of each.

  • Mechanics' Lien: This document is filed by a contractor or supplier when payment for services or materials has not been received. It creates a legal claim against the property, which can lead to foreclosure if the debt remains unpaid.
  • Notice of Completion: This form is filed by the property owner or general contractor to officially declare that the construction project has been completed. It serves to notify all parties involved and can affect the time frame for filing a mechanics' lien.
  • Notice of Cessation: This document is used when construction has stopped for a period of time. It informs all parties that work has ceased, which can also impact lien rights and deadlines.
  • Proof of Service Affidavit: This affidavit is used to confirm that the Preliminary 20 Day Notice has been properly served to all required parties. It details how and when the notice was delivered, ensuring compliance with legal requirements.
  • Release of Lien: This document is executed by a contractor or supplier to formally relinquish their claim against the property once payment has been received. It is crucial for clearing any outstanding liens from the property records.

Understanding these documents is essential for anyone involved in construction projects in California. Proper use of these forms can help protect rights and interests, ensuring a smoother process from start to finish.

Similar forms

The California Preliminary 20-Day Notice form serves a crucial role in the construction industry, particularly for ensuring that parties involved in a construction project are aware of their rights and responsibilities regarding payment. This notice is similar to several other documents used in construction and real estate contexts. Here’s a detailed look at nine documents that share similarities with the California Preliminary 20-Day Notice form:

  • Mechanics' Lien: Like the Preliminary 20-Day Notice, a mechanics' lien is a legal claim against a property for unpaid work or materials. Both documents protect the rights of contractors and suppliers by notifying property owners of potential claims on their property.
  • Notice of Completion: This document informs all parties involved that a construction project has been completed. Similar to the Preliminary 20-Day Notice, it establishes a timeline for filing claims, ensuring that all parties are aware of their rights and obligations.
  • Notice of Cessation: This notice indicates that work on a project has stopped. It is comparable to the Preliminary 20-Day Notice in that it triggers deadlines for filing liens and ensures that all parties are kept informed about the status of the project.
  • Preliminary Notice for Public Works: This document serves a similar purpose in public projects, notifying parties about their rights to file a lien. Both notices aim to protect the interests of subcontractors and suppliers, ensuring they are compensated for their contributions.
  • Subcontractor's Notice: This notice is sent by subcontractors to the property owner, informing them of their involvement in the project. Like the Preliminary 20-Day Notice, it establishes the subcontractor's right to claim a lien if payment issues arise.
  • Supplier's Notice: This document is used by material suppliers to inform property owners of their rights regarding payment. Similar to the Preliminary 20-Day Notice, it helps protect suppliers from non-payment by establishing their legal standing.
  • Notice of Intent to Lien: This notice is sent to property owners before a lien is officially filed. It serves as a warning and is akin to the Preliminary 20-Day Notice, as both documents aim to prompt payment and avoid legal action.
  • Construction Contract: While not a notice, a construction contract outlines the terms and conditions of the work to be performed. It shares similarities with the Preliminary 20-Day Notice in that it establishes the rights and responsibilities of all parties involved in the project.
  • Payment Bond: This document guarantees payment to subcontractors and suppliers in case the contractor fails to pay. Like the Preliminary 20-Day Notice, it is a tool for protecting the financial interests of those who contribute to a construction project.

Understanding these documents and their relationships can help all parties navigate the complexities of construction law, ensuring that everyone is aware of their rights and responsibilities throughout the process.

Dos and Don'ts

When filling out the California Preliminary 20 Day Notice form, it is crucial to follow specific guidelines to ensure accuracy and compliance. Below is a list of actions to take and avoid.

  • Do provide complete and accurate information for all required fields, including names, addresses, and descriptions of labor, services, equipment, or materials.
  • Do ensure that the notice is served to all relevant parties, including the construction lender, owner, and original contractor.
  • Do keep a record of the method of service, whether it is personal delivery or mail, to maintain proof of service.
  • Do file the notice within the appropriate time frame to preserve lien rights.
  • Don't leave any fields blank; incomplete information can lead to delays or invalid notices.
  • Don't forget to notify the original contractor and lien claimants of any recorded notice of completion or cessation within 10 days.
  • Don't underestimate the importance of using certified or registered mail for service; this provides a record of delivery.
  • Don't delay in sending the notice, as timing is critical for protecting lien rights.

Misconceptions

Understanding the California Preliminary 20 Day Notice form is crucial for anyone involved in construction projects. However, several misconceptions can lead to confusion. Here are eight common misconceptions:

  • It is only for residential projects. Many believe this notice is limited to residential properties. In reality, it applies to both private and public works.
  • It guarantees payment. Some assume that filing this notice ensures they will be paid. While it serves as a warning to property owners, it does not guarantee payment.
  • Only contractors need to file it. There is a misconception that only general contractors should submit this notice. Subcontractors and suppliers also benefit from filing it to protect their rights.
  • It is optional. Many think that submitting this notice is optional. However, it is essential for securing lien rights and protecting against non-payment.
  • It must be filed before work begins. Some believe the notice must be filed before any work starts. In fact, it can be filed at any time within the 20-day window after work begins.
  • It is only necessary for large projects. People often think this notice is only relevant for substantial construction projects. However, it is important for any project where labor or materials are supplied.
  • Filing the notice is the same as filing a lien. There is confusion between the Preliminary 20 Day Notice and a mechanics' lien. The notice is a precursor to filing a lien, but they are not the same.
  • It can be ignored if the owner pays the contractor. Some believe that if they pay their contractor, they are safe from liens. This is misleading; unpaid suppliers and subcontractors can still file a lien against the property.

Being aware of these misconceptions can help individuals navigate the complexities of construction law in California more effectively.

Key takeaways

Filling out and using the California Preliminary 20-Day Notice form is an important step in the construction process. Here are some key takeaways to keep in mind:

  • Purpose of the Notice: This form serves to inform property owners and other parties about the provision of labor, services, equipment, or materials for a construction project. It helps protect the rights of those who contribute to the project.
  • Timeliness Matters: The notice must be served within 20 days of starting work on the project. If you miss this window, you may lose your right to file a mechanics' lien later.
  • Accurate Information: Ensure that all names, addresses, and descriptions are filled out correctly. Mistakes can lead to complications or delays in payment.
  • Notify the Right People: The notice should be sent to the property owner, the original contractor, and any construction lender involved. Keeping everyone informed helps avoid misunderstandings.
  • Proof of Service: After serving the notice, it's essential to document how and when it was delivered. This proof can be crucial if any disputes arise later.
  • Potential Consequences: If bills are not paid, a mechanics' lien may be placed on the property. This can lead to serious financial repercussions for property owners, even if they have paid their contractors.

By understanding these key points, you can navigate the process of using the California Preliminary 20-Day Notice form with greater confidence and clarity.