Homepage Blank California 149 PDF Form
Article Guide

The California 149 form, also known as the Truck and Bus Regulation Three Day Pass Exemption Form, is an important tool for fleet owners needing temporary relief from emission reduction requirements. This form allows a single vehicle to operate in California for three consecutive days without meeting the state's stringent emissions standards. However, it is essential to note that each company is limited to one pass per calendar year. To obtain this pass, fleet owners must provide specific information, including vehicle details, company identification, and a designated start date for the exemption. The process requires submitting the completed form to the California Air Resources Board (ARB) at least three days before the vehicle's planned entry into the state. There are no mileage restrictions during the exemption period, but it is crucial to present a copy of the form upon request from ARB personnel to avoid potential penalties. Understanding when a Three Day Pass is necessary can save time and money, especially for those who need to bring noncompliant vehicles into California temporarily. This article will explore the form's requirements, the application process, and the scenarios in which a Three Day Pass is beneficial.

Document Preview

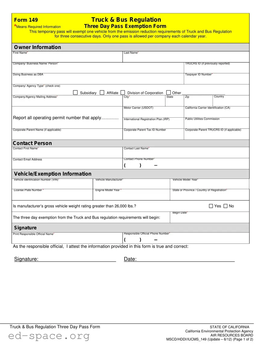
Form 149

Truck & Bus Regulation

*Means Required Information

Three Day Pass Exemption Form

This temporary pass will exempt one vehicle from the emission reduction requirements of Truck and Bus Regulation

for three consecutive days. Only one pass is allowed per company each calendar year.

Owner Information

First Name*

Last Name*

 

 

 

Company/ Business Name/ Person*

 

TRUCRS ID (if previously reported)

 

 

 

Doing Business as DBA

 

Taxpayer ID Number*

 

 

 

Company/ Agency Type* (check one)

 

 

Subsidiary

Affiliate

Division of Corporation

Other ______________________

Company/Agency Mailing Address*

City*

State

Zip

Country

 

 

 

 

 

 

Motor Carrier (USDOT)

 

California Carrier Identification (CA)

Report all operating permit number that apply…………

 

 

International Registration Plan (IRP)

Public Utilities Commission

Corporate Parent Name (if applicable)

Corporate Parent Tax ID Number

Corporate Parent TRUCRS ID (if applicable)

Contact Person

Contact First Name*

Contact Email Address

Contact Last Name*

Contact Phone Number*

( ) −

Vehicle/Exemption Information

Vehicle identification Number (VIN)*

Vehicle Manufacturer*

Vehicle Model Year*

 

 

 

License Plate Number *

Engine Model Year *

State or Province / Country of Registration*

 

 

 

Is manufacturer’s gross vehicle weight rating greater than 26,000 lbs.?

Yes

No

The three day exemption from the Truck and Bus regulation requirements will begin:

Begin Date*

Signature

Print Responsible Official Name*

Responsible Official Phone Number*

( ) −

As the responsible official, I attest the information provided in this form is true and correct:

Signature:

_ Date:

_

 

 

 

 

 

Truck & Bus Regulation Three Day Pass Form

STATE OF CALIFORNIA

 

California Environmental Protection Agency

 

AIR RESOURCES BOARD

 

MSCD/HDDI/IUCMS_149 (Update – 6/12) (Page 1 of 2)

What is a Three Day Pass?

A Three Day Pass is a temporary permit that allows a fleet owner to operate one vehicle per calendar year in California that does not meet the emission reduction requirements of the Truck and Bus regulation. The three day period begins at 12:00 am on the date you specify on the form.

How do I obtain a Three Day Pass?

You must complete a request form and submit the information to the Air Resources Board (ARB) three days prior to the vehicle entering California. The pass will be granted as long as it is the first request made by the fleet in the calendar year. If the ARB fails to respond by the date of the vehicles planned entry, the vehicle may operate in California for the requested three-day period. The vehicle operator must present a copy of the form to Air Resources Board personnel upon request, or the fleet owner may be subject to penalties.

Mail the Request for the Three Day Pass to:

Truck & Bus Reporting, 5th Floor

PO BOX 2815

California Air Resources Board

Sacramento, CA 95812

You may also fax the form to our office at (916)323-5526, or Email the forms to us at [email protected]

Is there a limit on the number of miles I can operate under this pass?

There are no mileage limits for a vehicle operating during the three day period specified in an approved Three Day Pass.

Do I need a Three Day Pass?

If you reported the vehicle as part of your fleet to use the phase in option or flexibility options in the regulation, and your fleet is in compliance, you do not need a three day pass. The following are situations that you should use a three day pass:

If you reported to use flexibility options but you need to temporarily bring a vehicle into California that you did not report.

If you are using the model year schedule to comply (not required to report) and you want to temporarily bring a noncompliant truck into California. A summary of the engine model year schedule for heavier trucks is shown below

Engine Model Year Schedule for Heavier Trucks (More than 26,000 lb GVWR)

 

Engine year

 

 

PM Filter by:

 

 

2010 Engine by:

 

 

 

 

 

 

 

 

 

 

 

 

 

 

 

 

 

1993 & Older

 

 

Not Required

 

 

January 1, 2015

 

1994-1995

 

 

Not Required

 

January 1, 2016

 

 

 

 

 

 

 

1996-1999

 

 

January 1, 2012

 

 

January 1, 2020

 

2000-2004

 

 

January 1, 2013

 

January 1, 2021

 

 

 

 

 

 

 

2005-2006

 

 

January 1, 2014

 

 

January 1, 2022

 

 

2007 & Newer

 

Already Equipped

 

January 1, 2023

If your truck has a gross vehicle weight rating (GVWR) between 14,001 and 26,000 pounds your first compliance date is not until January 1, 2015. An overview of the Truck and Bus regulation compliance requirements are available at http://www.arb.ca.gov/msprog/onrdiesel/documents/FSRegSum.pdf.

If you have any questions or need help completing the form, please contact us at 866-6DIESEL (866-634-3735) or by email at: [email protected].

Form Specifications

Fact Name Details
Purpose of Form The California 149 form is a temporary pass that allows a vehicle to be exempt from the emission reduction requirements of the Truck and Bus Regulation for three consecutive days.
Eligibility Limitations Only one Three Day Pass is permitted per company each calendar year, ensuring that the exemption is not abused.
Submission Requirements The form must be submitted to the California Air Resources Board (ARB) at least three days before the vehicle enters California. Failure to receive a response by the planned entry date allows the vehicle to operate under the exemption.
Contact Information For assistance, individuals can contact the ARB at 866-6DIESEL (866-634-3735) or via email at [email protected].
Governing Law This form operates under the California Truck and Bus Regulation, as enforced by the California Environmental Protection Agency's Air Resources Board.

California 149: Usage Guidelines

Filling out the California 149 form is a straightforward process. This form is essential for obtaining a temporary exemption from emission reduction requirements for one vehicle in California. It’s important to provide accurate information to ensure the request is processed smoothly.

  1. Gather Required Information: Before starting, collect all necessary details such as your name, company name, contact information, and vehicle details.
  2. Owner Information: Fill in your first name, last name, company name, TRUCRS ID (if applicable), and taxpayer ID number. Select the type of company or agency from the provided options.
  3. Mailing Address: Enter your complete mailing address, including city, state, zip code, and country.
  4. Motor Carrier Information: Provide your USDOT number, California Carrier ID, and any relevant operating permit numbers.
  5. Contact Person: Fill in the contact person's first and last name, email address, and phone number.
  6. Vehicle Information: Enter the vehicle identification number (VIN), manufacturer, model year, license plate number, engine model year, and the state or country of registration.
  7. Weight Rating: Indicate whether the vehicle's gross vehicle weight rating is greater than 26,000 lbs by selecting 'Yes' or 'No.'
  8. Exemption Dates: Specify the start date for the three-day exemption period.
  9. Signature: Sign the form and print your name as the responsible official. Include your phone number.
  10. Submission: Send the completed form to the California Air Resources Board via mail, fax, or email as instructed.

Once you submit the form, the California Air Resources Board will review your request. If it’s your first request for the calendar year, you should receive a response in time for your vehicle’s entry into California. Keep a copy of the form handy, as you may need to present it during inspections.

Your Questions, Answered

What is a Three Day Pass?

A Three Day Pass is a temporary permit that allows a fleet owner to operate one vehicle per calendar year in California that does not meet the emission reduction requirements of the Truck and Bus regulation. The three-day period begins at 12:00 am on the date specified on the form. This pass is designed to provide flexibility for fleet owners who may need to operate non-compliant vehicles for short periods.

How do I obtain a Three Day Pass?

To obtain a Three Day Pass, complete a request form and submit it to the Air Resources Board (ARB) at least three days before the vehicle enters California. The pass will be granted as long as it is the first request made by your fleet in that calendar year. If ARB does not respond by the planned entry date, the vehicle may operate under the requested pass. Ensure to keep a copy of the form handy, as ARB personnel may request to see it. You can mail, fax, or email the request to the ARB.

Is there a limit on the number of miles I can operate under this pass?

No, there are no mileage limits for a vehicle operating during the specified three-day period of an approved Three Day Pass. This allows for maximum flexibility in your operations without the worry of tracking mileage.

Do I need a Three Day Pass?

If you have reported the vehicle as part of your fleet and are in compliance with the phase-in or flexibility options of the regulation, you do not need a Three Day Pass. However, you should use the pass if you need to temporarily bring a vehicle into California that was not reported or if you want to bring a non-compliant truck into the state using the model year schedule.

What are the situations in which I should use a Three Day Pass?

You should consider using a Three Day Pass if you have reported to use flexibility options but need to bring in a vehicle that you did not previously report. Additionally, if you are following the model year schedule for compliance and need to temporarily bring a non-compliant truck into California, a Three Day Pass is necessary.

What is the Engine Model Year Schedule for heavier trucks?

The Engine Model Year Schedule for heavier trucks (those with a gross vehicle weight rating over 26,000 lbs) outlines compliance dates based on the engine year. For example, trucks with engine years from 2007 and newer are already equipped, while those from 1994-1995 are not required until January 1, 2016. This schedule helps fleet owners understand when compliance is necessary.

What if my truck has a GVWR between 14,001 and 26,000 pounds?

If your truck has a gross vehicle weight rating (GVWR) between 14,001 and 26,000 pounds, your first compliance date is not until January 1, 2015. This gives you additional time to prepare for compliance with the Truck and Bus regulation.

Where can I find more information about the Truck and Bus regulation compliance requirements?

For a comprehensive overview of the Truck and Bus regulation compliance requirements, you can visit the California Air Resources Board's website. They provide detailed documents and resources to help fleet owners understand their obligations and options.

Who can I contact for help with the form?

If you have questions or need assistance completing the form, you can reach out to the ARB at 866-6DIESEL (866-634-3735) or by email at [email protected]. They are available to help ensure that you have the correct information and guidance for your needs.

Common mistakes

  1. Failing to provide complete owner information. All fields marked with an asterisk (*) are mandatory. Missing any of these can delay processing.

  2. Incorrectly entering the Vehicle Identification Number (VIN). Ensure that the VIN is accurate and matches the vehicle's registration documents.

  3. Neglecting to specify the begin date for the exemption. This date is crucial as it marks the start of the three-day exemption period.

  4. Providing an incorrect or outdated contact number. This can hinder communication between the Air Resources Board (ARB) and the applicant.

  5. Not checking the appropriate company/agency type. This selection impacts the processing of the request and must accurately reflect the applicant’s status.

  6. Omitting the license plate number of the vehicle. This detail is essential for identifying the vehicle associated with the exemption request.

  7. Failing to sign the form. The signature of the responsible official is necessary to validate the information provided.

  8. Submitting the form less than three days before the vehicle’s entry into California. The request must be submitted in advance to ensure approval.

  9. Not keeping a copy of the submitted form. It is important to have documentation in case it is requested by ARB personnel during the three-day period.

Documents used along the form

The California 149 form, also known as the Truck & Bus Regulation Three Day Pass Exemption Form, is essential for fleet owners looking to operate vehicles that do not meet California's emission reduction requirements for a limited time. Along with this form, several other documents may be required to ensure compliance with state regulations. Here’s a brief overview of those documents.

  • California Carrier Identification (CA): This number is assigned to carriers operating in California. It helps identify and track commercial vehicles within the state.
  • Motor Carrier (USDOT): This is a unique identifier assigned by the U.S. Department of Transportation. It is necessary for all commercial vehicles operating across state lines.
  • International Registration Plan (IRP): This plan allows for the registration of commercial vehicles that travel in multiple jurisdictions. It simplifies the process of registering and paying fees based on the miles driven in each state.
  • Public Utilities Commission (PUC) Permit: This permit is required for certain carriers that transport passengers or freight for compensation within California. It ensures compliance with state regulations.
  • Vehicle Registration Documents: These documents provide proof of ownership and registration for the vehicle being operated. They are crucial for verifying compliance with state laws.
  • Insurance Certificates: Proof of insurance coverage is necessary to ensure that the vehicle is adequately insured while operating in California.
  • Fleet Compliance Records: These records demonstrate that a fleet owner is in compliance with all applicable regulations. They may include maintenance logs and emission test results.
  • Emission Compliance Certificates: If a vehicle has undergone emission testing, these certificates serve as proof that it meets the required standards.
  • Driver's License: A valid driver's license is essential for anyone operating a commercial vehicle. It verifies that the driver is legally allowed to operate that type of vehicle.
  • Corporate Parent Information: If applicable, this document includes details about the corporate parent company, such as its tax ID number and TRUCRS ID. It is necessary for establishing the corporate structure of the fleet.

Understanding these documents can help streamline the process of obtaining a Three Day Pass and ensure compliance with California's Truck and Bus Regulation. Proper documentation not only aids in legal compliance but also supports smooth operations within the state's regulatory framework.

Similar forms

  • California Form 148: Similar to Form 149, this form is used for exemption requests related to emissions regulations. It also requires vehicle and owner information, but focuses on different types of exemptions.
  • California Form 150: This form allows for temporary permits for vehicles that do not meet specific emissions standards. Like Form 149, it requires detailed vehicle information and owner details.
  • California Form 151: Used for reporting compliance with emissions regulations, this form shares similarities in the information required, particularly concerning vehicle identification and owner contact details.
  • California Form 152: This form is utilized for special permits and includes similar sections for vehicle and owner information, making it comparable to Form 149.
  • California Form 153: Similar in structure, this form addresses temporary exemptions for vehicles under specific circumstances, requiring similar data about the vehicle and owner.
  • California Form 154: This form requests information for vehicles that need temporary permits. It parallels Form 149 in requiring vehicle specifications and owner identification.
  • California Form 155: This form is used for emissions compliance reporting and shares the need for detailed vehicle and owner information, similar to Form 149.
  • California Form 156: This form deals with special exemptions for certain vehicle types. It has a similar format and information requirements as Form 149.
  • California Form 157: This form is related to temporary operational permits and requires similar data fields as Form 149, particularly regarding vehicle and owner information.

Dos and Don'ts

When filling out the California 149 form, it is essential to follow specific guidelines to ensure accuracy and compliance. Below are seven important dos and don'ts to consider:

  • Do provide accurate information for all required fields marked with an asterisk (*).
  • Do submit the form at least three days before the vehicle enters California.
  • Do keep a copy of the completed form for your records.
  • Do ensure that the vehicle's VIN and license plate number are correctly entered.
  • Don't submit more than one pass request per company each calendar year.
  • Don't forget to sign and date the form as the responsible official.
  • Don't leave any required fields blank; incomplete forms may delay processing.

Misconceptions

Understanding the California 149 form can be challenging, and several misconceptions often arise. Here are seven common misunderstandings about this important document:

  • Only large companies need a Three Day Pass. Many believe that only large fleets require this pass. In reality, any fleet owner operating a noncompliant vehicle in California, regardless of size, may need to apply for it.
  • The Three Day Pass is only for emergency situations. Some think this pass is only available during emergencies. However, it can be used for any planned operation of a vehicle that does not meet emission standards.
  • You can apply for multiple passes in a year. A common myth is that a fleet can obtain several passes annually. In fact, only one Three Day Pass is allowed per company each calendar year.
  • There are mileage restrictions during the pass period. Many assume that there are limits on how far a vehicle can travel with the pass. This is incorrect; there are no mileage limits during the three-day exemption.
  • The pass must be obtained before entering California. Some believe that the pass must be secured well in advance. While it is recommended to apply three days prior, if the ARB does not respond in time, the vehicle may still operate under the pass.
  • You don't need a pass if your fleet is compliant. Some fleet owners think that compliance means they never need a pass. However, if they need to temporarily bring in a noncompliant vehicle, a Three Day Pass is necessary.
  • Filling out the form is overly complicated. Many feel intimidated by the form's requirements. In reality, the process is straightforward, and assistance is available if needed.

By addressing these misconceptions, fleet owners can better navigate the requirements of the California 149 form and ensure compliance with the Truck and Bus Regulation.

Key takeaways

Key Takeaways for Filling Out and Using the California 149 Form

  • The California 149 form is essential for obtaining a Three Day Pass, which allows one vehicle to operate in California without meeting emission reduction requirements for three consecutive days.
  • Only one Three Day Pass can be issued per company each calendar year, so plan accordingly.
  • Submit the completed form to the Air Resources Board (ARB) at least three days before the vehicle enters California to ensure approval.
  • There are no mileage restrictions during the three-day period covered by the pass, allowing for flexible operation.
  • If your fleet is compliant and you have reported the vehicle under flexibility options, you do not need to apply for a Three Day Pass.
  • For assistance with the form or questions, contact the ARB at 866-6DIESEL or via email at [email protected].