Homepage Blank C 105 2 PDF Form
Article Guide

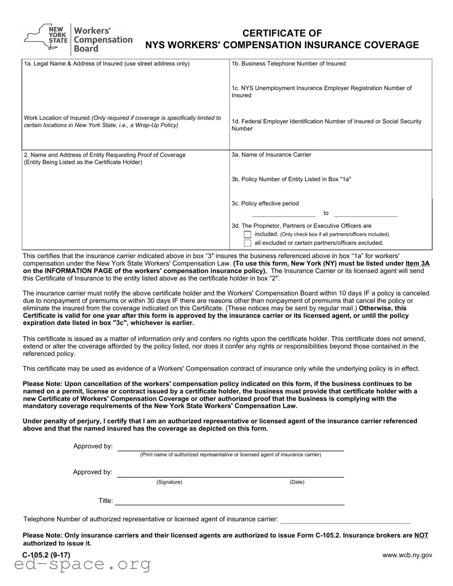
The C 105 2 form, known as the Certificate of New York State Workers' Compensation Insurance Coverage, plays a crucial role in ensuring compliance with New York State Workers' Compensation Law. This form serves as proof that a business has the necessary workers' compensation insurance coverage, which is essential for protecting employees in the event of work-related injuries. Key components of the form include the legal name and address of the insured, the business's telephone number, and the NYS Unemployment Insurance Employer Registration Number. It also requires details about the insurance carrier, including the policy number and effective dates. Additionally, the form stipulates that the insurance carrier must notify the certificate holder if the policy is canceled, ensuring that all parties are kept informed. Importantly, the C 105 2 form does not confer rights beyond what is stated in the underlying insurance policy, and it must be renewed annually or upon policy expiration. This certificate is vital for businesses seeking permits or contracts that involve employment in hazardous occupations, as it verifies that the necessary insurance coverage is in place.

Document Preview

CERTIFICATE OF

NYS WORKERS' COMPENSATION INSURANCE COVERAGE

1a. Legal Name & Address of Insured (use street address only)

1b.

Business Telephone Number of Insured

 

1c. NYS Unemployment Insurance Employer Registration Number of

 

Insured

Work Location of Insured (Only required if coverage is specifically limited to

1d.

Federal Employer Identification Number of Insured or Social Security

certain locations in New York State, i.e., a Wrap-Up Policy)

Number

 

 

 

 

 

 

 

 

2. Name and Address of Entity Requesting Proof of Coverage

3a.

Name of Insurance Carrier

(Entity Being Listed as the Certificate Holder)

 

 

 

 

 

 

 

3b.

Policy Number of Entity Listed in Box "1a"

 

 

 

 

 

3c. Policy effective period

 

 

 

 

to

 

 

 

3d. The Proprietor, Partners or Executive Officers are

 

 

 

included. (Only check box if all partners/officers included)

 

 

 

all excluded or certain partners/officers excluded.

 

 

 

 

 

 

 

This certifies that the insurance carrier indicated above in box “3" insures the business referenced above in box “1a” for workers' compensation under the New York State Workers' Compensation Law. (To use this form, New York (NY) must be listed under Item 3A on the INFORMATION PAGE of the workers' compensation insurance policy). The Insurance Carrier or its licensed agent will send this Certificate of Insurance to the entity listed above as the certificate holder in box “2".

The insurance carrier must notify the above certificate holder and the Workers' Compensation Board within 10 days IF a policy is canceled due to nonpayment of premiums or within 30 days IF there are reasons other than nonpayment of premiums that cancel the policy or eliminate the insured from the coverage indicated on this Certificate. (These notices may be sent by regular mail.) Otherwise, this

Certificate is valid for one year after this form is approved by the insurance carrier or its licensed agent, or until the policy expiration date listed in box "3c", whichever is earlier.

This certificate is issued as a matter of information only and confers no rights upon the certificate holder. This certificate does not amend, extend or alter the coverage afforded by the policy listed, nor does it confer any rights or responsibilities beyond those contained in the referenced policy.

This certificate may be used as evidence of a Workers' Compensation contract of insurance only while the underlying policy is in effect.

Please Note: Upon cancellation of the workers' compensation policy indicated on this form, if the business continues to be named on a permit, license or contract issued by a certificate holder, the business must provide that certificate holder with a new Certificate of Workers' Compensation Coverage or other authorized proof that the business is complying with the mandatory coverage requirements of the New York State Workers' Compensation Law.

Under penalty of perjury, I certify that I am an authorized representative or licensed agent of the insurance carrier referenced above and that the named insured has the coverage as depicted on this form.

Approved by:

(Print name of authorized representative or licensed agent of insurance carrier)

Approved by:

(Signature)

(Date)

Title:

Telephone Number of authorized representative or licensed agent of insurance carrier:

Please Note: Only insurance carriers and their licensed agents are authorized to issue Form C-105.2. Insurance brokers are NOT authorized to issue it.

C-105.2 (9-17)

www.wcb.ny.gov

Workers' Compensation Law

Section 57. Restriction on issue of permits and the entering into contracts unless compensation is secured.

1.The head of a state or municipal department, board, commission or office authorized or required by law to issue any permit for or in connection with any work involving the employment of employees in a hazardous employment defined by this chapter, and notwithstanding any general or special statute requiring or authorizing the issue of such permits, shall not issue such permit unless proof duly subscribed by an insurance carrier is produced in a form satisfactory to the chair, that compensation for all employees has been secured as provided by this chapter. Nothing herein, however, shall be construed as creating any liability on the part of such state or municipal department, board, commission or office to pay any compensation to any such employee if so employed.

2.The head of a state or municipal department, board, commission or office authorized or required by law to enter into any contract for or in connection with any work involving the employment of employees in a hazardous employment defined by this chapter, notwithstanding any general or special statute requiring or authorizing any such contract, shall not enter into any such contract unless proof duly subscribed by an insurance carrier is produced in a form satisfactory to the chair, that compensation for all employees has been secured as provided by this chapter.

C-105.2 (9-17) REVERSE

Form Specifications

Fact Name Fact Description
Purpose The C-105.2 form serves as proof of workers' compensation insurance coverage in New York State.
Governing Law This form is governed by the New York State Workers' Compensation Law, specifically Section 57.
Issuing Authority Only licensed agents or insurance carriers can issue the C-105.2 form. Insurance brokers are not authorized.
Validity Period The certificate is valid for one year or until the policy expiration date, whichever comes first.
Cancellation Notification Insurance carriers must notify the certificate holder and the Workers' Compensation Board within 10 days for nonpayment cancellations and 30 days for other reasons.
Usage Restrictions This certificate does not alter or extend the coverage provided by the underlying insurance policy.
Compliance Requirement If the policy is canceled, the business must provide new proof of coverage to any certificate holder related to permits or contracts.

C 105 2: Usage Guidelines

Completing the C 105 2 form is an essential step in demonstrating compliance with New York State Workers' Compensation Law. The process involves providing specific information about the insured party and the insurance coverage. Following these steps will help ensure that the form is filled out correctly and submitted appropriately.

  1. Begin by entering the Legal Name & Address of Insured in Box 1a. Use only the street address.
  2. In Box 1b, provide the Business Telephone Number of Insured.
  3. Enter the NYS Unemployment Insurance Employer Registration Number of the insured in Box 1c.
  4. If applicable, fill in the Work Location of Insured in Box 1d. This is only necessary if coverage is limited to specific locations.
  5. Input the Federal Employer Identification Number or Social Security Number of the insured in Box 1e.
  6. In Box 2, provide the Name and Address of Entity Requesting Proof of Coverage.
  7. For Box 3a, enter the Name of Insurance Carrier that is being listed as the certificate holder.
  8. Fill in the Policy Number of the entity listed in Box 1a in Box 3b.
  9. Indicate the Policy effective period in Box 3c.
  10. In Box 3d, check the box if the Proprietor, Partners or Executive Officers are included in the coverage. If not all are included, leave the box unchecked.
  11. Ensure that the form is signed by an authorized representative or licensed agent of the insurance carrier.
  12. Print the name of the authorized representative or licensed agent in the designated area below the signature.
  13. Finally, include the Telephone Number of the authorized representative or licensed agent.

Your Questions, Answered

What is the C 105 2 form used for?

The C 105 2 form is a Certificate of New York State Workers' Compensation Insurance Coverage. It serves as proof that a business has the required workers' compensation insurance coverage under New York State law. This form is often requested by entities such as clients, contractors, or government agencies to ensure that a business is compliant with workers' compensation regulations before entering into contracts or issuing permits.

Who can issue the C 105 2 form?

Only insurance carriers and their licensed agents are authorized to issue the C 105 2 form. Insurance brokers do not have the authority to provide this certificate. It is crucial to obtain the form from the correct source to ensure it meets the legal requirements for proof of coverage.

How long is the C 105 2 form valid?

The C 105 2 form is valid for one year after it is approved by the insurance carrier or its licensed agent, or until the policy expiration date indicated on the form, whichever comes first. If the underlying workers' compensation policy is canceled, the business must provide a new certificate or other proof of coverage to any certificate holder named on permits or contracts.

What happens if the insurance policy is canceled?

If the insurance policy is canceled, the insurance carrier must notify the certificate holder and the Workers' Compensation Board within specific timeframes. They must inform the certificate holder within 10 days if the cancellation is due to nonpayment of premiums. For other reasons, the notice must be sent within 30 days. This ensures that all parties are aware of the coverage status and can take necessary actions to remain compliant with New York State Workers' Compensation Law.

Common mistakes

  1. Incorrect Legal Name or Address: Many individuals mistakenly enter the wrong legal name or address of the insured. It’s crucial to use the street address only, as any inaccuracies can lead to issues with coverage verification.

  2. Missing Business Telephone Number: Failing to provide the business telephone number can create communication barriers. Ensure this information is accurate and up to date.

  3. Omitting NYS Unemployment Insurance Number: Some people forget to include the NYS Unemployment Insurance Employer Registration Number. This number is essential for proper identification of the business.

  4. Incorrect Policy Number: Entering the wrong policy number is a common error. Double-check the policy number listed in Box "1a" to avoid complications.

  5. Not Specifying Work Location: If the coverage is limited to certain locations, the work location must be specified. Omitting this detail can lead to misunderstandings about coverage limits.

  6. Failing to Check the Box for Officers: Individuals often forget to check the box indicating whether the Proprietor, Partners, or Executive Officers are included. This can affect the scope of coverage.

  7. Not Signing the Form: A common oversight is neglecting to sign the form. The authorized representative or licensed agent must sign and date the form for it to be valid.

Documents used along the form

When dealing with workers' compensation in New York, the C 105 2 form is just one piece of the puzzle. Various other documents complement this form, ensuring compliance and clarity in insurance coverage. Here’s a brief overview of some key forms and documents that are often used alongside the C 105 2.

  • Form C-105.1: This is a similar certificate of insurance that provides proof of workers' compensation coverage. It is typically used for contractors and subcontractors to show that they have the required insurance.
  • Form C-105.4: This form is a Certificate of Workers' Compensation Insurance for Public Entities. It is often required for public contracts and ensures that the contractor has appropriate coverage.
  • Form C-120.1: This is a Notice of Workers' Compensation Coverage. It serves to inform employees and other stakeholders about the workers' compensation insurance policy in place.
  • Form C-7: This form is used to report an employee's injury to the Workers' Compensation Board. It is essential for initiating a claim and ensuring that the employee receives the necessary benefits.
  • Form C-3: This is the Employee Claim for Compensation. Employees fill out this form to formally request workers' compensation benefits after an injury or illness related to their job.
  • Form C-9: This form is used for the application for a waiver of workers' compensation insurance. Certain small businesses may use it to request an exemption from the insurance requirement.
  • Form DB-120.1: This is a Certificate of Disability Benefits Coverage. It provides proof of coverage for disability benefits, which is often required alongside workers' compensation insurance.
  • Form DB-155: This is the Notice of Compliance with the Disability Benefits Law. It confirms that an employer is complying with the state's disability benefits requirements.

Understanding these documents is crucial for employers and employees alike. Each form plays a specific role in the broader context of workers' compensation, helping to protect the rights and responsibilities of all parties involved. By ensuring that the appropriate forms are in place, businesses can operate smoothly while adhering to legal obligations.

Similar forms

The C 105 2 form, which certifies New York State workers' compensation insurance coverage, shares similarities with several other documents. Here are ten documents that are comparable:

  • Certificate of Liability Insurance: This document provides proof of general liability insurance coverage, similar to how the C 105 2 certifies workers' compensation coverage.
  • Certificate of Insurance (COI): Like the C 105 2, this certificate verifies that an insurance policy is in effect and outlines coverage details.
  • Workers' Compensation Policy: This is the actual policy that provides coverage for workplace injuries, while the C 105 2 serves as proof of that coverage.
  • Employer's Liability Insurance Certificate: This document confirms coverage for employer's liability, paralleling the C 105 2's focus on workers' compensation.
  • General Contractor's Certificate of Insurance: This certificate ensures that a contractor has the necessary insurance, similar to the C 105 2's role for businesses.
  • Subcontractor's Certificate of Insurance: This is used to verify that subcontractors have the required insurance, akin to how the C 105 2 certifies coverage for insured entities.
  • Proof of Coverage Letter: This letter serves as evidence of insurance coverage, much like the C 105 2 does for workers' compensation.
  • Insurance Binder: An insurance binder is a temporary document that provides proof of coverage until the actual policy is issued, similar to the C 105 2's function.
  • Certificate of No Insurance: This document confirms that a business does not have insurance, contrasting with the C 105 2 but still related to coverage verification.
  • State-Specific Insurance Forms: Many states have their own forms for certifying insurance coverage, similar to the C 105 2 for New York State.

Dos and Don'ts

When filling out the C-105.2 form, there are important dos and don'ts to keep in mind. Following these guidelines can help ensure that your application is processed smoothly and efficiently.

  • Do use the legal name and complete address of the insured, including the street address only.
  • Do provide a valid business telephone number for the insured.
  • Do include the NYS Unemployment Insurance Employer Registration Number.
  • Do ensure that the insurance carrier listed is authorized to issue this form.
  • Don't leave any required fields blank; incomplete forms may delay processing.
  • Don't use a P.O. Box for the address; a physical street address is necessary.
  • Don't forget to sign and date the form, as an unsigned form will not be accepted.

By adhering to these guidelines, you can help facilitate a smoother application process for your workers' compensation coverage in New York State.

Misconceptions

When it comes to the C-105.2 form, several misconceptions can lead to confusion. Understanding the truth behind these myths is essential for businesses and individuals navigating workers' compensation insurance in New York State.

  • Misconception 1: The C-105.2 form provides coverage itself.
  • This form does not provide insurance coverage. Instead, it serves as proof that a valid workers' compensation policy is in place. The actual coverage is determined by the policy issued by the insurance carrier.

  • Misconception 2: Any agent can issue the C-105.2 form.
  • Only licensed insurance carriers and their authorized agents can issue this form. Insurance brokers do not have the authority to provide the C-105.2 form, which can lead to invalid documentation if improperly issued.

  • Misconception 3: The C-105.2 form is valid indefinitely.
  • This form is only valid for one year after approval by the insurance carrier or until the policy expiration date, whichever comes first. It's crucial to keep track of these dates to ensure continued compliance.

  • Misconception 4: The C-105.2 form guarantees that all employees are covered.
  • The form does not guarantee coverage for all employees. It’s important to check the specific details of the policy, as certain partners or officers may be excluded from coverage, depending on how the policy is structured.

Key takeaways

Filling out the C 105 2 form correctly is essential for ensuring compliance with New York State Workers' Compensation Law. Here are some key takeaways to keep in mind:

  • Accurate Information: Ensure that the legal name and address of the insured are filled out correctly. Use only the street address, as other formats may not be accepted.
  • Contact Details: Provide a valid business telephone number and the NYS Unemployment Insurance Employer Registration Number. This information is crucial for the insurance carrier's records.
  • Specific Coverage: If the workers' compensation coverage is limited to specific locations, include the work location of the insured in the designated section.
  • Policy Details: Clearly state the name of the insurance carrier, policy number, and effective period. This information is critical for verifying coverage.
  • Notification Requirements: Be aware that the insurance carrier must notify the certificate holder and the Workers' Compensation Board within specific time frames if a policy is canceled or if coverage changes.
  • Authorized Issuers: Only insurance carriers and their licensed agents can issue the C 105 2 form. Insurance brokers are not authorized to provide this document.

By adhering to these guidelines, you can ensure that the C 105 2 form is filled out properly, helping to avoid potential issues with coverage and compliance.