Homepage Blank Appraisal Hvcc PDF Form
Article Guide

The Appraisal HVCC form plays a crucial role in the mortgage lending process, ensuring that property valuations are conducted fairly and without undue influence. This form is utilized by lenders to certify the accuracy of the attached appraisal for a specific property, which includes essential details such as the borrower's name, loan number, property address, and appraisal date. One of the key aspects of the HVCC form is the emphasis on maintaining a clear separation between the appraiser and the lender's loan production staff. This separation is vital to prevent any potential conflicts of interest that could arise from direct communication. The lender must ensure that the appraiser is selected based on their qualifications and proximity to the subject property, reinforcing compliance with the Home Valuation Code of Conduct (HVCC). Additionally, the form outlines prohibited influences on the appraisal, including the owner's estimate of value, target value, and any information that could sway the appraiser's opinion, ensuring that the appraisal remains objective and based solely on factual data. The lender also certifies that the appraiser's qualifications have been verified and that they do not appear on any exclusionary lists, further safeguarding the integrity of the appraisal process. By signing this form, the lender affirms that the appraisal meets all HVCC requirements, thereby fostering transparency and trust in property valuations.

Document Preview

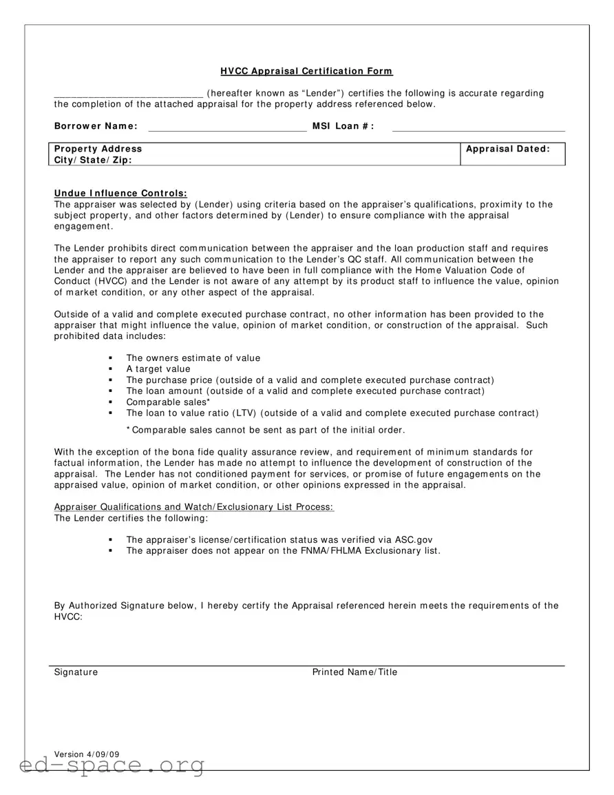
H V CC Ap p r a isa l Ce r t if ica t ion For m

__________________________ ( her eaft er k now n as “ Lender ” ) cer t ifies t he follow ing is accur at e r egar ding

t he com plet ion of t he at t ached appr aisal for t he pr oper t y addr ess r efer enced below .

Bor r ow e r N a m e :

 

M SI Loa n # :

Pr op e r t y Ad d r e ss Cit y / St a t e / Z ip :

Ap p r a isa l D a t e d :

U n d u e I n f lu e n ce Con t r ols:

The appr aiser w as select ed by ( Lender ) using crit er ia based on t he appr aiser ’s qualificat ions, pr ox im it y t o t he subj ect pr oper t y , and ot her fact or s det er m ined by ( Lender ) t o ensur e com pliance w it h t he appr aisal engagem ent .

The Lender pr ohibit s dir ect com m unicat ion bet w een t he appr aiser and t he loan pr oduct ion st aff and r equir es t he appr aiser t o r epor t any such com m unicat ion t o t he Lender ’s QC st aff . All com m unicat ion bet w een t he Lender and t he appr aiser ar e believ ed t o hav e been in full com pliance w it h t he Hom e Valuat ion Code of Conduct ( HVCC) and t he Lender is not aw ar e of any at t em pt by it s pr oduct st aff t o influence t he v alue, opinion of m ar k et condit ion, or any ot her aspect of t he appr aisal.

Out side of a v alid and com plet e ex ecut ed pur chase cont r act , no ot her infor m at ion has been pr ov ided t o t he appr aiser t hat m ight influence t he v alue, opinion of m ar k et condit ion, or const r uct ion of t he appr aisal. Such pr ohibit ed dat a includes:

The ow ner s est im at e of v alue

A t ar get v alue

The pur chase pr ice ( out side of a v alid and com plet e ex ecut ed pur chase cont r act )

The loan am ount ( out side of a v alid and com plet e ex ecut ed pur chase cont r act )

Com par able sales*

The loan t o v alue r at io ( LTV) ( out side of a v alid and com plet e ex ecut ed pur chase cont r act )

* Com par able sales cannot be sent as par t of t he init ial or der .

Wit h t he ex cept ion of t he bona fide qualit y assur ance r ev iew , and r equir em ent of m inim um st andar ds for fact ual infor m at ion, t he Lender has m ade no at t em pt t o influence t he dev elopm ent of const r uct ion of t he appr aisal. The Lender has not condit ioned pay m ent for ser v ices, or pr om ise of fut ur e engagem ent s on t he appr aised v alue, opinion of m ar k et condit ion, or ot her opinions ex pr essed in t he appr aisal.

Appr aiser Qualificat ions and Wat ch/ Ex clusionar y List Pr ocess:

The Lender cer t ifies t he follow ing:

The appr aiser ’s license/ cer t ificat ion st at us w as v er ified v ia ASC. gov

The appr aiser does not appear on t he FNMA/ FHLMA Ex clusionar y list .

By Aut hor ized Signat ur e below , I her eby cer t ify t he Appraisal r efer enced her ein m eet s t he r equir em ent s of t he HVCC:

Signat ur e

Pr int ed Nam e/ Tit le

Ver sion 4/ 09/ 0 9

Form Specifications

Fact Name Description
Purpose The Appraisal HVCC form certifies the accuracy of the appraisal for a specific property.
Borrower Information It includes the borrower's name and loan number for identification purposes.
Property Address The form requires the complete address of the property being appraised.
Appraisal Date The date of the appraisal must be clearly stated on the form.
Selection Criteria The lender selects the appraiser based on qualifications and proximity to the property.
Communication Restrictions Direct communication between the appraiser and loan production staff is prohibited.
Compliance Assurance The lender certifies compliance with the Home Valuation Code of Conduct (HVCC).
Prohibited Information Specific information that could influence the appraisal value is not allowed.
Quality Assurance Review A bona fide quality assurance review is permitted under certain conditions.
Verification of Appraiser The lender verifies the appraiser’s licensing status via the ASC website.

Appraisal Hvcc: Usage Guidelines

Filling out the Appraisal HVCC form is a straightforward process that requires careful attention to detail. Once completed, this form will serve as a certification regarding the appraisal of a property, ensuring compliance with relevant regulations. Follow these steps to fill out the form accurately.

  1. Begin by locating the section labeled “Lender.” Here, write the name of the lender responsible for the appraisal.
  2. Next, fill in the “Borrower Name” field with the full name of the borrower.
  3. In the “MSI Loan #” section, enter the unique loan number associated with the borrower’s loan.
  4. Proceed to the “Property Address” section. Enter the full address of the property being appraised, including street address, city, state, and zip code.
  5. In the “Appraisal Dated” field, input the date when the appraisal was completed.
  6. For the “Undue Influence Controls” section, confirm that the appraiser was selected based on qualifications and proximity to the property. Ensure that no direct communication occurred between the appraiser and the loan production staff.
  7. Check the box to indicate that all communications complied with the Home Valuation Code of Conduct (HVCC).
  8. In the section regarding prohibited data, verify that no information was provided to the appraiser that could influence the appraisal, such as the owner's estimate of value or target value.
  9. Confirm that the appraiser’s qualifications were verified via ASC.gov and that the appraiser does not appear on the FNMA/FHLMA Exclusionary list.
  10. Finally, sign the form in the “Authorized Signature” section. Print your name and title underneath the signature.

Your Questions, Answered

What is the Appraisal HVCC form?

The Appraisal HVCC form is a certification document used by lenders to ensure that appraisals are conducted in compliance with the Home Valuation Code of Conduct (HVCC). It certifies the accuracy of the appraisal process and outlines the lender's commitment to maintaining independence between the appraisal and loan production staff.

Why is the HVCC important?

The HVCC was established to promote transparency and fairness in the appraisal process. It aims to prevent conflicts of interest and ensure that appraisals are unbiased and based solely on the property's market value. This helps protect consumers and maintain the integrity of the mortgage lending process.

Who selects the appraiser?

The lender is responsible for selecting the appraiser. This selection is based on the appraiser’s qualifications, proximity to the property, and other factors deemed necessary to ensure compliance with the appraisal engagement. The lender prohibits direct communication between the appraiser and loan production staff to avoid any undue influence.

What communication is allowed between the lender and the appraiser?

All communication between the lender and the appraiser must comply with the HVCC. The lender is not aware of any attempts by its staff to influence the appraisal value or any related opinions. Any communication that could affect the appraisal must be reported to the lender's quality control staff.

What information should not be provided to the appraiser?

To maintain objectivity, the appraiser should not receive certain information. This includes the owner's estimate of value, target value, purchase price (unless part of a valid purchase contract), loan amount (unless part of a valid purchase contract), comparable sales data, and loan-to-value ratio (LTV) outside of a valid purchase contract.

How does the lender ensure the appraiser's qualifications?

The lender verifies the appraiser’s license or certification status through the Appraisal Subcommittee (ASC) website. This ensures that the appraiser is properly qualified to conduct the appraisal in accordance with applicable regulations.

What is the exclusionary list, and why is it relevant?

The exclusionary list includes individuals who are barred from performing appraisals for certain reasons, such as disciplinary actions or violations of appraisal standards. The lender certifies that the appraiser does not appear on this list, ensuring that only qualified appraisers are used.

What happens if there is a violation of the HVCC?

If there is a violation of the HVCC, it could lead to serious consequences for the lender, including penalties and potential legal action. It is crucial for lenders to adhere strictly to the HVCC guidelines to avoid any issues that could undermine the appraisal process.

How is the Appraisal HVCC form signed and certified?

The form is signed by an authorized representative of the lender. By signing, the representative certifies that the appraisal meets the requirements of the HVCC, ensuring compliance and accountability in the appraisal process.

Common mistakes

  1. Incomplete Information: Failing to fill out all required fields, such as the borrower’s name or property address, can lead to delays or rejection of the form.

  2. Incorrect Borrower Name: Providing the wrong name for the borrower can cause confusion and may result in legal issues later on.

  3. Missing Appraisal Date: Not including the date of the appraisal can create discrepancies in the timeline of the loan process.

  4. Ignoring Communication Prohibitions: Any direct communication between the appraiser and loan production staff should be avoided. Not adhering to this can violate HVCC guidelines.

  5. Providing Prohibited Information: Sharing details such as the owner's estimate of value or target value can compromise the integrity of the appraisal process.

  6. Not Verifying Appraiser Qualifications: Failing to confirm that the appraiser’s license and certification status are valid can lead to issues with the appraisal’s acceptance.

  7. Signature Issues: Omitting the authorized signature or failing to print the name and title can invalidate the certification of the appraisal.

Documents used along the form

The Appraisal HVCC form is a crucial document in the appraisal process, ensuring compliance with the Home Valuation Code of Conduct. Several other forms and documents are often utilized alongside it to facilitate the appraisal process and ensure transparency and accuracy. Below is a list of these documents, each described briefly.

  • Appraisal Report: This detailed document provides the appraiser's assessment of the property's value, including data on comparable properties, market conditions, and the appraiser's methodology.
  • Purchase Agreement: A legally binding contract between the buyer and seller outlining the terms of the property sale, including price and contingencies.
  • Appraiser's License Verification: Documentation confirming that the appraiser holds a valid license or certification to perform appraisals, typically verified through a state regulatory agency.
  • Quality Control Review Report: A report generated to assess the quality and compliance of the appraisal with established standards, ensuring that the appraisal meets regulatory requirements.
  • Disclosure Statement: A document that outlines any potential conflicts of interest or relationships between the appraiser and parties involved in the transaction.
  • Client Engagement Letter: A letter that defines the scope of work and responsibilities between the lender and the appraiser, establishing expectations for both parties.
  • Market Analysis Report: A report providing insights into the local real estate market, including trends and data that may influence property values.
  • Appraisal Review Form: A form used by a reviewer to evaluate the appraisal for accuracy, completeness, and compliance with relevant guidelines.
  • Exclusionary List Confirmation: Documentation verifying that the appraiser does not appear on any exclusionary lists maintained by government agencies, ensuring compliance with regulations.

Each of these documents plays a vital role in the appraisal process, contributing to a comprehensive understanding of property value and compliance with regulatory standards. Timely completion and accuracy of these forms are essential to facilitate smooth transactions and uphold the integrity of the appraisal process.

Similar forms

The Appraisal HVCC form shares similarities with several other important documents in the real estate and lending process. Here are four such documents:

  • Appraisal Report: Like the HVCC form, an appraisal report provides a professional assessment of a property's value. Both documents aim to ensure that the appraisal process is fair and unbiased, reflecting the true market value without external influence.
  • Loan Estimate: This document outlines the estimated costs and terms of a mortgage loan. Similar to the HVCC form, the Loan Estimate is designed to protect borrowers by ensuring transparency in the lending process, helping them understand the financial implications of their loan.
  • Closing Disclosure: The Closing Disclosure details the final terms and costs of a mortgage. It aligns with the HVCC form in its purpose of providing clarity and preventing any last-minute surprises for the borrower, ensuring that all parties are informed before the transaction is finalized.
  • Quality Control (QC) Report: A QC report evaluates the appraisal process to ensure compliance with established standards. Like the HVCC form, it serves to uphold the integrity of the appraisal by identifying any potential issues or discrepancies in the valuation process.

Dos and Don'ts

When filling out the Appraisal HVCC form, it is important to follow certain guidelines to ensure accuracy and compliance. Below is a list of things you should and shouldn't do.

  • Do verify all borrower information, including name and loan number, before submission.
  • Do ensure that the property address is complete and accurate.
  • Do confirm the appraisal date is correctly filled in.
  • Do report any direct communication between the appraiser and loan production staff to the lender’s QC staff.
  • Do make sure that only a valid and complete executed purchase contract is provided to the appraiser.
  • Don't include prohibited data such as owner's estimate of value or target value.
  • Don't mention the purchase price or loan amount outside of the valid purchase contract.
  • Don't provide comparable sales as part of the initial order.
  • Don't condition payment for services on the appraised value or any opinions expressed in the appraisal.

Adhering to these guidelines will help ensure that the appraisal process remains compliant with the Home Valuation Code of Conduct (HVCC) and maintains the integrity of the appraisal itself.

Misconceptions

Misconceptions about the Appraisal HVCC form can lead to misunderstandings regarding its purpose and function. Below are ten common misconceptions clarified for better understanding.

  1. The HVCC form is only for lenders. In reality, while lenders use the HVCC form, it also serves to protect borrowers by ensuring that appraisals are conducted independently and without undue influence.
  2. All appraisals must be completed using the HVCC form. Not all appraisals are required to use this specific form. The HVCC applies primarily to federally regulated mortgage transactions.
  3. The HVCC form allows lenders to communicate freely with appraisers. On the contrary, the HVCC prohibits direct communication between lenders and appraisers to maintain the integrity of the appraisal process.
  4. Appraisers can receive any information about a property from lenders. This is a misconception. The HVCC restricts the type of information that can be shared, ensuring that appraisers rely solely on a valid purchase contract.
  5. The HVCC form guarantees a specific appraisal value. The form does not guarantee any value. It is designed to ensure that appraisals are unbiased and based solely on the appraiser's professional judgment.
  6. Borrowers have no say in the appraisal process. While borrowers do not select the appraiser, they can provide relevant information through the purchase contract, which can aid in the appraisal process.
  7. The HVCC is outdated and no longer relevant. This is incorrect. The HVCC continues to play a crucial role in maintaining appraisal independence and protecting consumers in the lending process.
  8. All appraisers are required to be certified under the HVCC. While certification is important, the HVCC specifically requires lenders to verify the appraiser’s credentials and ensure they are not on exclusionary lists.
  9. The HVCC form is only about compliance. While compliance is a significant aspect, the form also emphasizes the importance of ethical practices in appraisals, benefiting both lenders and borrowers.
  10. The HVCC prohibits all communication between lenders and appraisers. This is misleading. The HVCC allows for communication related to quality assurance, but it restricts communication that could influence the appraisal outcome.

Understanding these misconceptions can help individuals navigate the appraisal process more effectively and ensure that their rights are protected during real estate transactions.

Key takeaways

Here are some key takeaways about filling out and using the Appraisal HVCC form:

  • Accurate Information: Ensure that all details regarding the property, borrower, and appraisal date are filled out correctly. This helps avoid delays in the process.
  • Communication Rules: Direct communication between the appraiser and the loan production staff is not allowed. Any such communication must be reported to the lender’s quality control staff.
  • Prohibited Data: Do not provide the appraiser with information that could influence the appraisal, such as the owner's estimate of value or the purchase price, unless it’s part of a valid purchase contract.
  • Appraiser Qualifications: Verify that the appraiser's license status is current and that they are not listed on any exclusionary lists, ensuring compliance with regulations.