Homepage Blank 4 Point Inspection PDF Form
Article Guide

The 4 Point Inspection Form serves as a crucial tool in assessing the condition of key systems within a residential property, particularly for insurance underwriting purposes. This form focuses on four primary areas: the roof, electrical system, HVAC (heating, ventilation, and air conditioning), and plumbing. Each section of the form requires detailed information, including the age of the systems, their current condition, and any visible hazards or deficiencies. For instance, the electrical section prompts inspectors to evaluate the main panel, identify the presence of aluminum wiring, and note any safety concerns such as exposed wiring or improper grounding. Similarly, the HVAC section assesses whether the heating and cooling systems are operational and up to code, while the plumbing section examines potential leaks and the general condition of fixtures. Roof conditions are also meticulously documented, including the type of roofing material, age, and any signs of damage. Accompanying photographs are mandatory, ensuring that visual evidence supports the inspector's findings. Ultimately, the information gathered through the 4 Point Inspection Form plays a vital role in determining a property's insurability, guiding both homeowners and insurers in their decision-making processes.

Document Preview

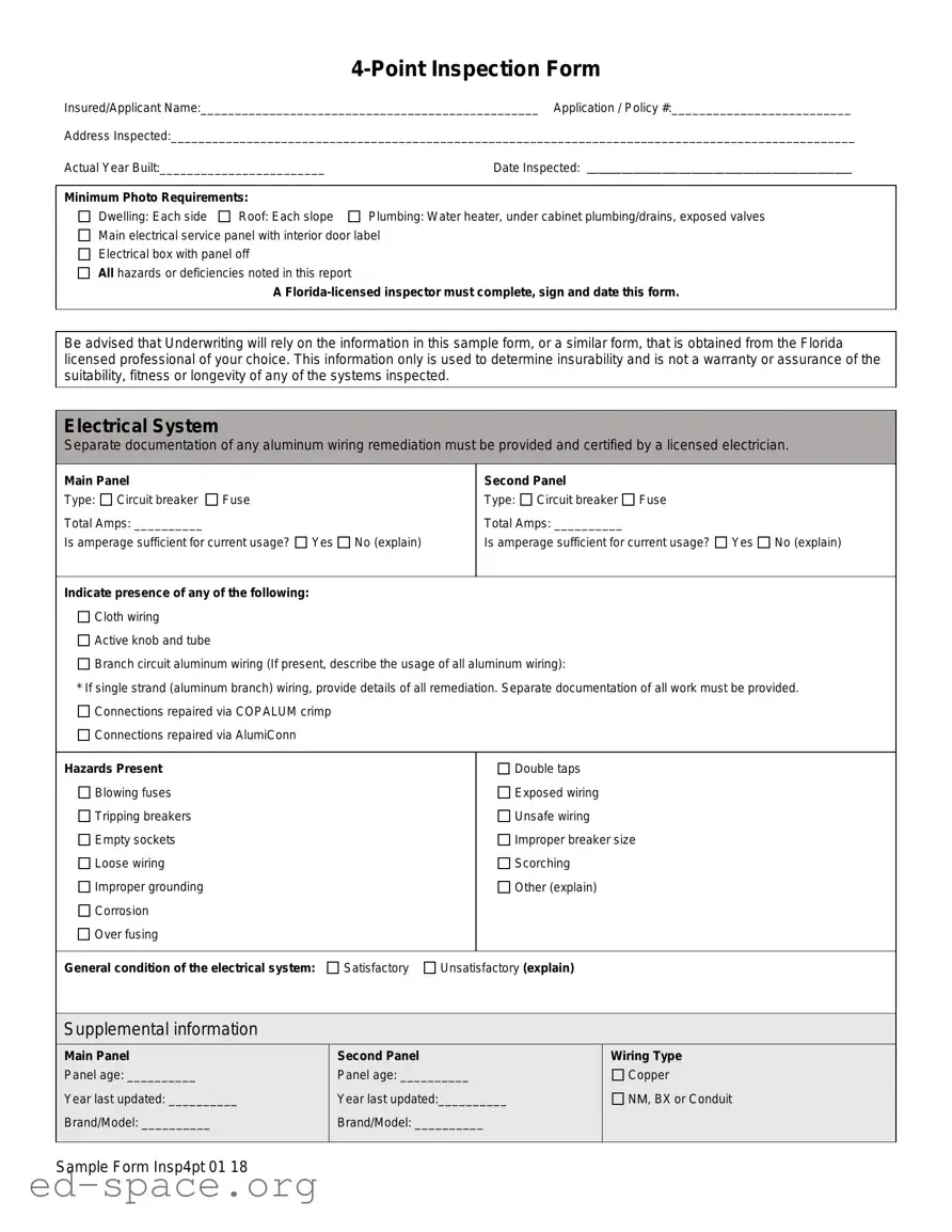
4-Point Inspection Form

Insured/Applicant Name:_________________________________________________ Application / Policy #:__________________________

Address Inspected:___________________________________________________________________________________________________

Actual Year Built:________________________

Date Inspected: ______________________________________________

 

 

Minimum Photo Requirements:

 

Dwelling: Each side

Roof: Each slope

Plumbing: Water heater, under cabinet plumbing/drains, exposed valves

Main electrical service panel with interior door label

Electrical box with panel off

All hazards or deficiencies noted in this report

A Florida-licensed inspector must complete, sign and date this form.

Be advised that Underwriting will rely on the information in this sample form, or a similar form, that is obtained from the Florida licensed professional of your choice. This information only is used to determine insurability and is not a warranty or assurance of the suitability, fitness or longevity of any of the systems inspected.

Electrical System

Separate documentation of any aluminum wiring remediation must be provided and certified by a licensed electrician.

Main Panel

 

 

Second Panel

 

Type:

Circuit breaker

Fuse

 

Type:

Circuit breaker Fuse

 

Total Amps: __________

 

 

Total Amps: __________

 

Is amperage sufficient for current usage?

Yes No (explain)

Is amperage sufficient for current usage?

Yes No (explain)

 

 

 

 

 

 

 

Indicate presence of any of the following:

Cloth wiring

Active knob and tube

Branch circuit aluminum wiring (If present, describe the usage of all aluminum wiring):

* If single strand (aluminum branch) wiring, provide details of all remediation. Separate documentation of all work must be provided.

Connections repaired via COPALUM crimp Connections repaired via AlumiConn

Hazards Present

 

 

Double taps

Blowing fuses

 

 

Exposed wiring

Tripping breakers

 

 

Unsafe wiring

Empty sockets

 

 

Improper breaker size

Loose wiring

 

 

Scorching

Improper grounding

 

 

Other (explain)

Corrosion

 

 

 

Over fusing

 

 

 

 

 

 

 

General condition of the electrical system:

Satisfactory

Unsatisfactory (explain)

Supplemental information

Main Panel

Second Panel

Wiring Type

Panel age: __________

Panel age: __________

Copper

Year last updated: __________

Year last updated:__________

NM, BX or Conduit

Brand/Model: __________

Brand/Model: __________

 

 

 

 

Sample Form Insp4pt 01 18

4-Point Inspection Form

HVAC System

Central AC:

Yes

No

Central heat:

Yes

No

If not central heat, indicate primary heat source and fuel type: _________________________________

Are the heating, ventilation and air conditioning systems in good working order?

Yes

No (explain)

Date of last HVAC servicing/inspection: ______________

 

 

 

 

 

 

 

 

 

 

 

 

Hazards Present

 

 

 

 

 

 

 

Wood-burning stove or central gas fireplace not professionally installed?

Yes

No

 

Space heater used as primary heat source?

Yes

No

 

 

 

Is the source portable?

Yes

No

 

 

 

 

 

Does the air handler/condensate line or drain pan show any signs of blockage or leakage, including water damage to the surrounding area?

Yes No

Supplemental Information

Age of system: _____________

Year last updated: _____________

(Please attach photo(s) of HVAC equipment, including dated manufacturer’s plate)

Plumbing System

Is there a temperature pressure relief valve on the water heater?

Yes

No

 

Is there any indication of an active leak?

Yes

No

 

 

 

Is there any indication of a prior leak?

Yes

No

 

 

 

Water heater location: _______________________________________________

 

 

 

 

General condition of the following plumbing fixtures and connections to appliances:

 

Satisfactory Unsatisfactory

N/A

 

Satisfactory Unsatisfactory

N/A

 

Dishwasher

 

 

 

Toilets

 

Refrigerator

 

 

 

Sinks

 

Washing machine

 

 

 

Sump pump

 

Water heater

 

 

 

Main shut off valve

 

Showers/Tubs

 

 

 

All other visible

 

 

 

 

 

 

 

If unsatisfactory, please provide comments/details (leaks, wet/soft spots, mold, corrosion, grout/caulk, etc.).

Supplemental Information

Age of Piping System:

 

Type of pipes (check all that apply)

 

_____

Original to home

 

Copper

 

 

 

 

 

_____

Completely re-piped

 

PVC/CPVC

 

 

 

 

 

_____

Partially re-piped

 

Galvanized

 

 

 

 

 

(Provide year and extent of renovation in the comments below)

 

PEX

 

 

 

 

 

 

 

 

Polybutylene

 

 

 

 

Other (specify)

 

 

 

 

 

 

Sample Form Insp4pt 01 18

4-Point Inspection Form

Roof (With photos of each roof slope, this section can take the place of the Roof Inspection Form.)

Predominant Roof

Covering material: __________

Roof age (years): __________

Remaining useful life (years): __________

Date of last roofing permit: __________

Date of last update: __________

If updated (check one):

Full replacement Partial replacement

%of replacement: __________

Overall condition:

Satisfactory

Unsatisfactory (explain below)

Any visible signs of damage / deterioration?

(check all that apply and explain below)

Cracking

Cupping/curling

Excessive granule loss

Exposed asphalt

Exposed felt

Missing/loose/cracked tabs or tiles

Soft spots in decking Visible hail damage

Any visible signs of leaks? Yes No

Attic/underside of decking Yes No

Interior ceilings Yes No

Secondary Roof

Covering material: __________

Roof age (years): __________

Remaining useful life (years): __________

Date of last roofing permit: __________

Date of last update: __________

If updated (check one):

Full replacement Partial replacement

%of replacement: __________

Overall condition:

Satisfactory

Unsatisfactory (explain below)

Any visible signs of damage / deterioration?

(check all that apply and explain below)

Cracking

Cupping/curling

Excessive granule loss

Exposed asphalt

Exposed felt

Missing/loose/cracked tabs or tiles

Soft spots in decking Visible hail damage

Any visible signs of leaks? Yes No

Attic/underside of decking Yes No

Interior ceilings Yes No

Additional Comments/Observations (use additional pages if needed):

All 4-Point Inspection Forms must be completed and signed by a verifiable Florida-licensed inspector. I certify that the above statements are true and correct.

Inspector Signature

 

Title

 

License Number

 

Date

 

 

 

 

 

 

 

Company Name

 

License Type

 

Work Phone

 

 

Sample Form Insp4pt 01 18

4-Point Inspection Form

Special Instructions: This sample 4-Point Inspection Form includes the minimum data needed for Underwriting to properly evaluate a property application. While this specific form is not required, any other inspection report submitted for consideration must include at least this level of detail to be acceptable.

Photo Requirements

Photos must accompany each 4-Point Inspection Form. The minimum photo requirements include:

Dwelling: Each side

Roof: Each slope

Plumbing: Water heater, under cabinet plumbing/drains, exposed valves

Open main electrical panel and interior door

Electrical box with the panel off

All hazards or deficiencies

Inspector Requirements

To be accepted, all inspection forms must be completed, signed and dated by a verifiable Florida-licensed professional. Examples include:

A general, residential, or building contractor

A building code inspector

A home inspector

Note: A trade-specific, licensed professional may sign off only on the inspection form section for their trade. (e.g., an electrician may sign off only on the electrical section of the form.)

Documenting the Condition of Each System

The Florida-licensed inspector is required to certify the condition of the roof, electrical, HVAC and plumbing systems. Acceptable Condition means that each system is working as intended and there are no visible hazards or deficiencies.

Additional Comments or Observations

This section of the 4-Point Inspection Form must be completed with full details/descriptions if any of the following are noted on the inspection:

Updates: Identify the types of updates, dates completed and by whom

Any visible hazards or deficiencies

Any system determined not to be in good working order

Note to All Agents

The writing agent must review each 4-Point Inspection Form before it is submitted with an application for coverage. It is the agent’s responsibility to ensure that all rules and requirements are met before the application is bound. Agents may not submit applications for properties with electrical, heating or plumbing systems not in good working order or with existing hazards/deficiencies.

Sample Form Insp4pt 01 18

Form Specifications

Fact Name Description
Purpose of the Form The 4-Point Inspection Form is used to evaluate the condition of a property’s roof, electrical, HVAC, and plumbing systems. This assessment helps determine insurability for homeowners insurance in Florida.
Completion Requirements The form must be completed, signed, and dated by a Florida-licensed inspector. Only licensed professionals can certify the condition of the systems inspected.
Photo Documentation Minimum photo requirements include images of each side of the dwelling, each slope of the roof, and key plumbing and electrical components. These images are essential for underwriting purposes.
Governing Law In Florida, the use of the 4-Point Inspection Form is governed by state insurance regulations, which require specific documentation to assess property insurability.

4 Point Inspection: Usage Guidelines

Filling out the 4 Point Inspection form requires careful attention to detail. After completing the form, it will need to be signed by a Florida-licensed inspector. This form serves as a crucial document for underwriting purposes, ensuring that all necessary information is accurately captured for the evaluation of the property.

  1. Begin by entering the Insured/Applicant Name in the designated space.
  2. Fill in the Application / Policy # next to the corresponding label.
  3. Provide the Address Inspected with complete details.
  4. Indicate the Actual Year Built of the property.
  5. Record the Date Inspected in the specified area.
  6. Ensure you meet the Minimum Photo Requirements for the dwelling, roof, plumbing, and electrical systems.
  7. Complete the Electrical System section, detailing the main and second panels, including type and total amps.
  8. Indicate if the amperage is sufficient for current usage and note any hazards present.
  9. Assess the general condition of the electrical system and provide supplemental information.
  10. Move to the HVAC System section and indicate the status of central AC and heat.
  11. Document any hazards present and provide the age of the HVAC system.
  12. In the Plumbing System section, answer questions regarding leaks and the condition of fixtures.
  13. List the age and type of pipes used in the plumbing system.
  14. Fill out the Roof section, including roof covering material, age, and condition.
  15. Check for visible signs of damage or leaks and record your findings.
  16. Provide any additional comments or observations as needed.
  17. Ensure the form is signed and dated by a licensed inspector.

Your Questions, Answered

What is a 4-Point Inspection Form?

A 4-Point Inspection Form is a document used to evaluate the condition of four major systems in a home: the roof, electrical, HVAC (heating, ventilation, and air conditioning), and plumbing. It helps insurance companies assess the insurability of a property. A licensed inspector must complete and sign the form, providing detailed information about each system's condition.

Who needs a 4-Point Inspection?

A 4-Point Inspection is typically required for homes that are older, usually over 30 years old, when applying for homeowners insurance. Insurance companies often ask for this inspection to ensure that the property's systems are in good working order and do not pose a risk.

What does the inspection cover?

The inspection covers four key areas: the roof, electrical system, HVAC system, and plumbing system. Each section requires the inspector to assess the condition of the systems, note any hazards or deficiencies, and provide supporting photos. The inspector will also indicate the age of each system and any updates that have been made.

What are the photo requirements?

Each 4-Point Inspection Form must include specific photos. These include pictures of each side of the dwelling, each slope of the roof, the water heater, under cabinet plumbing, exposed valves, and the main electrical panel with the interior door label. Photos of any hazards or deficiencies noted in the report are also required.

Who can perform the inspection?

The inspection must be completed by a Florida-licensed inspector. This can include general contractors, residential contractors, building code inspectors, or home inspectors. Each inspector must sign and date the form to validate their findings.

What happens if a system is not in good working order?

If any system is found to be unsatisfactory, the inspector must provide details about the issues. Insurance agents cannot submit applications for properties with systems that are not functioning properly or have existing hazards. This could lead to a denial of coverage.

How does the inspection affect my insurance application?

The information from the 4-Point Inspection is crucial for insurance underwriting. It helps determine whether a property is insurable. If the inspection reveals significant issues, the insurance company may refuse to provide coverage or require repairs before coverage can begin.

What should I do if I have questions about the inspection?

If you have questions about the 4-Point Inspection or its requirements, it's best to speak with your insurance agent. They can provide guidance and help you understand what is needed for your specific situation. Additionally, the licensed inspector can clarify any technical details regarding the inspection findings.

Can I use a different inspection form?

You may use a different inspection form as long as it includes at least the same level of detail as the 4-Point Inspection Form. However, the alternative form must still be completed by a Florida-licensed inspector and include all necessary information and photos to be accepted by the insurance company.

Common mistakes

  1. Incomplete Information: Failing to fill out all required fields, such as the insured/applicant name or the address inspected, can lead to delays or rejection of the form.

  2. Missing Photos: Not including the necessary photographs of the dwelling, roof, plumbing, and electrical systems can result in an incomplete submission.

  3. Incorrect Signatures: The form must be signed by a Florida-licensed inspector. Submitting a form without the proper signature can invalidate the inspection.

  4. Neglecting Hazards: Failing to note any visible hazards or deficiencies can lead to serious consequences. All issues must be documented clearly.

  5. Inaccurate System Conditions: Misreporting the condition of the electrical, HVAC, or plumbing systems can mislead underwriting decisions.

  6. Omitting Supplemental Information: Not providing additional details, especially regarding repairs or updates, can leave gaps in the inspection report.

  7. Ignoring Age of Systems: Failing to accurately report the age of various systems can affect the assessment of insurability.

  8. Using Non-Qualified Inspectors: Submitting a form completed by someone who is not a licensed Florida inspector can render the inspection invalid.

Documents used along the form

When dealing with property insurance, several forms and documents complement the 4-Point Inspection Form. Each of these documents plays a crucial role in assessing the condition of a property and determining its insurability. Below is a list of these essential documents, along with a brief description of each.

  • Wind Mitigation Inspection Form: This form evaluates a home's resistance to wind damage. It includes details about roof shape, materials, and other features that may reduce wind-related risks.
  • Roof Inspection Form: This document focuses solely on the roof's condition. It highlights any issues like leaks, damage, or deterioration, which are critical for understanding potential risks to the property.
  • HVAC Inspection Report: This report assesses the heating, ventilation, and air conditioning systems. It details their operational status and any maintenance performed, ensuring that these systems are functioning properly.
  • Plumbing Inspection Report: This document examines the plumbing system for leaks, corrosion, and overall condition. It helps identify potential plumbing issues that could lead to costly repairs if left unaddressed.
  • Electrical Inspection Report: This report evaluates the electrical system, focusing on safety and compliance with current codes. It notes any hazards or deficiencies that could pose risks to the property or its occupants.
  • Home Inspection Report: A comprehensive overview of the property's overall condition, this report covers various aspects, including structural integrity, safety hazards, and maintenance needs.
  • Insurance Application: This is the initial document submitted to request coverage. It includes basic information about the property and the applicant, setting the stage for the underwriting process.
  • Claim History Report: This document provides a history of any insurance claims made on the property. It helps insurers assess risk based on past incidents and potential future claims.

Each of these documents contributes valuable information that insurers rely on to evaluate properties effectively. Properly completing and submitting these forms can streamline the insurance process and ensure that all necessary details are considered.

Similar forms

  • Home Inspection Report: Similar to the 4-Point Inspection Form, a Home Inspection Report evaluates the overall condition of a property. It covers major systems such as electrical, plumbing, and HVAC, and identifies any issues that may affect the home's value or safety.
  • Roof Inspection Report: This document focuses specifically on the roof's condition, much like the roof section of the 4-Point Inspection Form. It assesses materials, age, and any visible damage, helping to determine the roof's remaining useful life.
  • Electrical Inspection Report: Like the electrical section of the 4-Point Inspection Form, this report details the electrical system's condition. It identifies potential hazards, such as outdated wiring or insufficient amperage, which can impact safety and compliance.
  • Plumbing Inspection Report: This report parallels the plumbing section of the 4-Point Inspection Form. It documents the state of plumbing fixtures and systems, checking for leaks and the overall integrity of pipes, which is crucial for maintaining a safe home environment.
  • HVAC Inspection Report: Similar to the HVAC section in the 4-Point Inspection Form, this document evaluates heating and cooling systems. It ensures they are functioning properly and identifies any maintenance needs, contributing to the home's comfort and efficiency.

Dos and Don'ts

When filling out the 4 Point Inspection form, keep the following guidelines in mind:

  • Ensure all sections are completed accurately and truthfully.
  • Attach required photos for each system as specified in the form.
  • Have a Florida-licensed inspector sign and date the form.
  • Include any visible hazards or deficiencies in the comments section.

Avoid these common mistakes:

  • Do not leave any sections blank; incomplete forms may be rejected.
  • Avoid submitting forms without the required photos.
  • Do not have an unlicensed individual complete or sign the form.
  • Refrain from omitting details about any hazards or deficiencies found during the inspection.

Misconceptions

  • Misconception 1: The 4-Point Inspection form guarantees insurance coverage.
  • This form does not guarantee that a property will be insured. Instead, it serves as a tool for underwriters to assess the insurability of a property based on the condition of its systems.

  • Misconception 2: Any inspector can complete the form.
  • Only a Florida-licensed inspector can complete, sign, and date the 4-Point Inspection form. This requirement ensures that the inspection meets state standards and regulations.

  • Misconception 3: The form is only about the roof condition.
  • The 4-Point Inspection form evaluates four major systems: the roof, electrical, HVAC, and plumbing. Each section must be filled out to provide a complete assessment of the property.

  • Misconception 4: Photos are optional for the inspection.
  • Photos are a mandatory part of the inspection process. The form specifies minimum photo requirements to document the condition of each system clearly.

  • Misconception 5: The inspector's findings are merely suggestions.
  • The findings documented by the inspector are critical. Underwriters rely on this information to make informed decisions regarding insurance coverage.

  • Misconception 6: The 4-Point Inspection form is the only document needed for insurance applications.
  • While the 4-Point Inspection form is essential, agents must ensure that all other application requirements are met. This includes reviewing the form for completeness and accuracy before submission.

Key takeaways

  • Complete all sections of the 4-Point Inspection Form accurately. Include the insured/applicant's name, application number, and address inspected.

  • Ensure the form is signed and dated by a Florida-licensed inspector. This is mandatory for the inspection to be valid.

  • Include required photos for each section. Capture the dwelling from all sides, each slope of the roof, and specific plumbing and electrical components.

  • Document the condition of the electrical system clearly. Note any issues such as double taps, exposed wiring, or improper grounding.

  • Assess the HVAC system thoroughly. Confirm if it is in good working order and note the date of the last servicing.

  • Evaluate the plumbing system for leaks and the condition of fixtures. Use the 'Satisfactory' or 'Unsatisfactory' options to indicate the overall state.

  • Provide details about the roof's condition, including age, remaining useful life, and any visible damage or leaks.

  • Use the 'Additional Comments/Observations' section to elaborate on any findings that require attention or further explanation.

  • Review the form carefully before submission. Ensure that all requirements are met to avoid delays in processing.

  • Understand that the information provided will be used for insurability assessment and is not a warranty of system performance.