Homepage Blank 2368 Michigan PDF Form
Article Guide

The Michigan Department of Treasury Form 2368, known as the Homeowner's Principal Residence Exemption Affidavit, is a vital document for homeowners seeking tax relief. This form must be filed with the local assessor of the city or township where the property is located. By completing this affidavit, homeowners declare their property as their principal residence, which may exempt them from a portion of local school operating taxes. It's important to note that filing this form will invalidate any previous exemptions claimed, necessitating the submission of Form 2602 to rescind those prior claims. The form requires essential property information, including the property tax identification number, address, and the date the property became the principal residence. Homeowners must also provide their names, Social Security numbers, and contact information. If the property has multiple units, homeowners must indicate the percentage of the property they occupy. The affidavit includes questions about previous exemptions in Michigan or other states, ensuring that homeowners comply with tax regulations. The completed form must be submitted by May 1st to ensure adjustments to property taxes on the next bill. Failure to notify the assessor of any changes in residency status may result in penalties. Thus, understanding and accurately completing Form 2368 is crucial for homeowners looking to maximize their tax benefits.

Document Preview

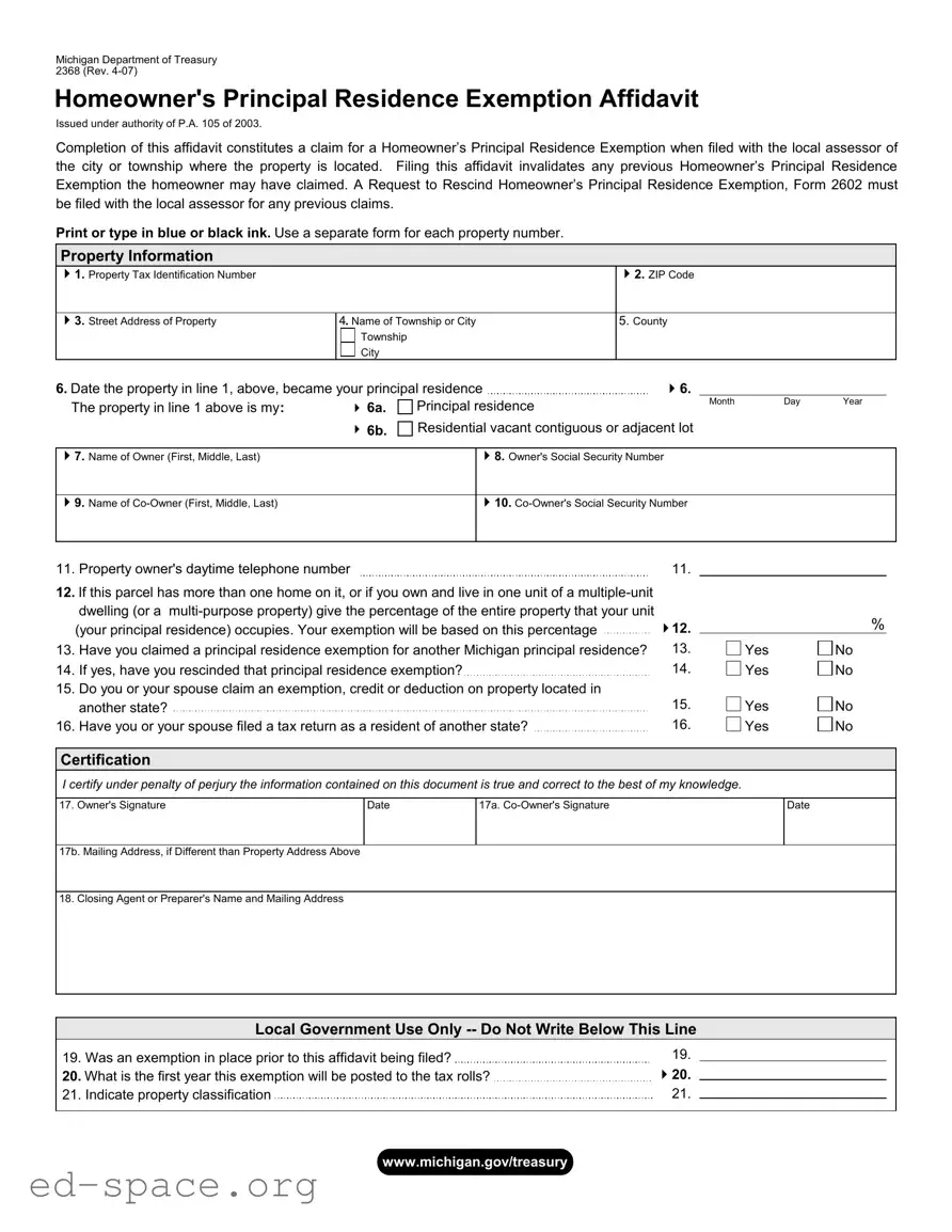
Michigan Department of Treasury 2368 (Rev. 4-07)

Homeowner's Principal Residence Exemption Affidavit

Issued under authority of P.A. 105 of 2003.

Completion of this affidavit constitutes a claim for a Homeowner’s Principal Residence Exemption when filed with the local assessor of the city or township where the property is located. Filing this affidavit invalidates any previous Homeowner’s Principal Residence Exemption the homeowner may have claimed. A Request to Rescind Homeowner’s Principal Residence Exemption, Form 2602 must be filed with the local assessor for any previous claims.

Print or type in blue or black ink. Use a separate form for each property number.

Property Information

 

 

 

 

 

 

 

 

 

1.

Property Tax Identification Number

 

 

 

 

2. ZIP Code

 

 

 

 

 

 

 

 

 

 

3.

Street Address of Property

4. Name of Township or City

5. County

 

 

 

 

 

 

 

Township

 

 

 

 

 

 

 

 

 

 

City

 

 

 

 

 

 

 

 

 

 

 

 

 

6. Date the property in line 1, above, became your principal residence

6.

 

 

 

 

The property in line 1 above is my:

 

 

6a.

Principal residence

 

Month

Day

Year

 

 

 

 

 

 

 

 

 

 

 

 

6b.

Residential vacant contiguous or adjacent lot

 

 

 

7.Name of Owner (First, Middle, Last)

8.Owner's Social Security Number

9.Name of Co-Owner (First, Middle, Last)

10.Co-Owner's Social Security Number

11. Property owner's daytime telephone number

11.

12.If this parcel has more than one home on it, or if you own and live in one unit of a multiple-unit dwelling (or a multi-purpose property) give the percentage of the entire property that your unit

(your principal residence) occupies. Your exemption will be based on this percentage

12.

13.

Have you claimed a principal residence exemption for another Michigan principal residence?

13.

14.

If yes, have you rescinded that principal residence exemption?

14.

15.

Do you or your spouse claim an exemption, credit or deduction on property located in

 

 

another state?

15.

16.

Have you or your spouse filed a tax return as a resident of another state?

16.

%

Yes

No

Yes

No

Yes

No

Yes

No

Certification

I certify under penalty of perjury the information contained on this document is true and correct to the best of my knowledge.

17.

Owner's Signature

Date

17a. Co-Owner's Signature

Date

 

 

 

 

17b. Mailing Address, if Different than Property Address Above

 

 

 

 

 

 

 

 

18.

Closing Agent or Preparer's Name and Mailing Address

 

 

 

 

 

 

 

 

Local Government Use Only -- Do Not Write Below This Line

19.

Was an exemption in place prior to this affidavit being filed?

19.

20. What is the first year this exemption will be posted to the tax rolls?

20.

21.

Indicate property classification

21.

www.michigan.gov/treasury

Instructions for Form 2368,

Homeowner’s Principal Residence Exemption Affidavit

General Information

If you own and occupy your principal residence, it may be exempt from a portion of your local school operating taxes. To claim an exemption, complete this affidavit and file it with your township or city by May 1st of the year of the claim. Your local assessor will adjust your taxes on your next property tax bill. Note that this is an exemption from part of the taxes and does not affect your assessment.

Owning means you hold the legal title to the principal residence or that you are currently buying it on a notarized or recorded land contract. Renters should not file this form.

Occupying means this is your principal residence, the place you intend to return to whenever you go away. It is the address that appears on your driver's license or voter registration card. You may have only one principal residence at a time. Vacation homes and income property which you do not occupy as your principal residence, may not be claimed.

Rescinding Your Exemption. If you claim an exemption, then stop using it as a principal residence, you must notify your township or city assessor within 90 days of the change or you may be penalized. This can be done using the Form 2602, Request to Rescind Homeowner's PrincipAL Residence Exemption.

Interest and Penalty. If it is determined that you claimed property that is not your principal residence, you may be subject to the additional tax plus penalty and interest as determined under the Property Tax Act.

Line-By-line Instructions

Lines not listed here are explained on the form.

Property Information

Line 1. Property is identified with a property tax identification number. This number will be found on your tax bill and on your property tax assessment notice. Enter this number in the space indicated. If you cannot find this number, call your township or city assessor. Submit a separate affi davit for each property being claimed.

Your property number is vital. Without it, your township or city cannot adjust your property taxes accurately.

Lines 2-5. Enter the complete address of the property you are claiming. Check the appropriate box for city or township. If you live in a village, list the township in which the principal residence is located.

Line 6. Your principal residence is the dwelling that you occupy as your permanent home and any vacant adjacent or contiguous properties that are classed residential. Indicate the date this property became your principal residence.

Lines 7-11. Enter the name, Social Security Number(s) and daytime telephone number of the legal owner(s). Do not include information for a co-owner who does not occupy the principal residence.

Note: The request for the Social Security number is authorized under section 42 USC 405 (c) (2) (C) (i). It is used by the Department of Treasury to verify tax exemption claims and to deter fraudulent filings. Any use of the number by closing agents or local units of government is illegal and subject to penalty.

Line 12. Multiple-Unit or Multi-Purpose Property. If you own and live in a multiple-unit or multi-purpose property (e.g., a duplex or apartment building, or a storefront with an upstairs flat), you can claim an exemption only for the portion that you use as your principal residence. Calculate your portion by dividing the floor area of your principal residence by the fl oor area of the entire building.

If the parcel of property you are claiming has more than one home on it, you must determine the percentage that you own and occupy as your principal residence. A second residence on the same property (e.g., a mobile home or second house) is not part of your personal residence, even if it is not rented to another person. Your local assessor can tell you the assessed value of each residence to help you determine the percentage that is your personal residence.

If you rent part of your home to another person, you may have to prorate your exemption. If your home is a single- family dwelling and the renters enter through a common door or your living area to get to their rooms, you may claim a 100 percent exemption if less than 50 percent of your home is rented to others who use it as a residence. However, if part of the home was converted to an apartment with a separate entrance, you must calculate the percentage that is your principal residence, by dividing the floor area of your principal residence by the floor area of the entire building.

Lines 13-16. Check the box or boxes that apply to you.

Certification

Sign and date the form. Enter your mailing address if it is different from the address at the top of the form.

Mailing Information

Mail your completed form to the township or city assessor in which the property is located. This address may be on your most recent tax bill or assessment notice. Do not send this form directly to the Department of Treasury.

If you have any questions, visit our Web site at www.michigan.gov/treasury or call 1-517-636-4320.

Form Specifications

Fact Name Fact Details
Form Title Homeowner's Principal Residence Exemption Affidavit
Governing Law Issued under authority of P.A. 105 of 2003
Filing Deadline Must be filed by May 1st of the year of the claim
Invalidation of Previous Claims Filing this affidavit invalidates any previous Homeowner’s Principal Residence Exemption claimed
Property Identification Requires a Property Tax Identification Number found on tax bills or assessment notices
Owner's Certification Owner must certify under penalty of perjury that the information is true and correct
Multiple Properties A separate form is required for each property number
Rescission Requirement If exemption is no longer applicable, Form 2602 must be filed to rescind the exemption

2368 Michigan: Usage Guidelines

Filling out the Michigan Department of Treasury Form 2368 is a straightforward process that requires accurate information about your property and personal details. This form is essential for claiming a Homeowner’s Principal Residence Exemption, which can help reduce your local school operating taxes. Once completed, the form needs to be submitted to your local assessor's office. Below are the steps to guide you through the process of filling out this form.

  1. Gather Necessary Information: Before you start filling out the form, collect all relevant details, including your Property Tax Identification Number, property address, and personal identification information.
  2. Property Information: In the designated fields, enter your Property Tax Identification Number, ZIP Code, street address, and the name of the township or city where the property is located.
  3. Ownership Details: Provide the full name of the property owner and co-owner, along with their Social Security Numbers. If there’s more than one owner, only include those who occupy the residence.
  4. Property Status: Indicate the date when the property became your principal residence. Also, check the appropriate box to specify if the property is your principal residence or a residential vacant lot.
  5. Contact Information: Fill in the property owner's daytime telephone number for any follow-up questions or clarifications.
  6. Multiple-Unit Properties: If applicable, calculate and enter the percentage of the property that your unit occupies if you live in a multi-unit dwelling.
  7. Prior Exemptions: Answer the questions regarding any previous principal residence exemptions claimed in Michigan or other states.
  8. Certification: Sign and date the form to certify that the information provided is accurate. If there is a co-owner, they should also sign and date the form.
  9. Mailing Address: If your mailing address differs from the property address, provide it in the designated area.
  10. Submit the Form: Mail your completed form to the township or city assessor where the property is located. Ensure that you do not send it directly to the Department of Treasury.

Once your form is submitted, the local assessor will review your application and adjust your property taxes accordingly. If you have questions during this process, consider reaching out to your local assessor’s office for assistance.

Your Questions, Answered

What is the purpose of the Michigan Form 2368?

The Michigan Form 2368, also known as the Homeowner's Principal Residence Exemption Affidavit, is used to claim an exemption on a portion of local school operating taxes for your principal residence. By completing and submitting this form to your local assessor, you can potentially lower your property tax bill. This exemption applies only to the property you occupy as your primary home, not to vacation homes or rental properties.

Who is eligible to file this form?

To be eligible to file Form 2368, you must own and occupy the property as your principal residence. This means you hold the legal title or are in the process of buying it through a land contract. Additionally, the address must be where you intend to return whenever you leave. Only one principal residence can be claimed at a time, and renters are not eligible to file this form.

When is the deadline for filing the form?

The completed Form 2368 must be filed with your local township or city assessor by May 1st of the year you wish to claim the exemption. If you submit the form after this date, your exemption may not be applied until the following year.

What happens if I previously claimed an exemption?

If you have previously claimed a Homeowner’s Principal Residence Exemption and are now filing Form 2368 for a different property, your previous exemption will be invalidated. You must also file a separate form, known as Form 2602, to rescind your earlier exemption. This ensures that only one exemption is active at any given time.

What information do I need to provide on the form?

When filling out Form 2368, you will need to provide several pieces of information, including your property tax identification number, the address of the property, the date it became your principal residence, and personal details such as your name and Social Security number. If applicable, you will also need to indicate if you own a portion of a multi-unit property and provide the percentage of the property that is your principal residence.

What if my property has multiple units?

If your property is a multi-unit or multi-purpose dwelling, you can only claim an exemption for the portion that you occupy as your principal residence. You will need to calculate the percentage of the property that you use as your primary home. This can be done by comparing the floor area of your unit to the total floor area of the entire building. Your local assessor can assist you in determining these values.

What should I do if I stop using my property as my principal residence?

If you stop using the property as your principal residence, you are required to notify your local assessor within 90 days. Failing to do so may result in penalties. You can rescind your exemption by filing Form 2602, which officially informs the assessor of the change in your residency status.

How do I submit the completed form?

Once you have completed Form 2368, you must mail it to the township or city assessor where your property is located. Do not send the form directly to the Michigan Department of Treasury. You can find the appropriate mailing address on your most recent tax bill or assessment notice.

What if I have questions about the form or the exemption process?

If you have any questions regarding Form 2368 or the Homeowner's Principal Residence Exemption process, you can visit the Michigan Department of Treasury's website or call their office directly. They provide resources and assistance to help you understand the requirements and ensure your application is processed correctly.

Common mistakes

  1. Failing to provide the Property Tax Identification Number. This number is crucial for identifying your property and can be found on your tax bill or assessment notice. Without it, your claim may not be processed correctly.

  2. Not using the correct ink color. The form specifically requires that you print or type in blue or black ink. Using other colors may lead to your form being rejected or delayed.

  3. Neglecting to submit a separate form for each property. If you own multiple properties, each one requires its own affidavit. Failing to do this can lead to confusion and potential denial of your exemption claim.

  4. Omitting the date when the property became your principal residence. This information is essential for determining eligibility. If this date is missing, it could result in complications with your exemption.

  5. Providing incorrect or incomplete owner information. Make sure to include the full names and Social Security Numbers of all legal owners. Missing or incorrect details can lead to issues with verification.

  6. Failing to check the appropriate boxes regarding previous exemptions. If you have claimed a principal residence exemption elsewhere, this must be disclosed. Not doing so may result in penalties.

  7. Not signing and dating the form. Certification is a critical part of the process. Without your signature, the affidavit is considered incomplete, and your claim may be denied.

Documents used along the form

The Michigan Department of Treasury Form 2368 is essential for homeowners seeking a Principal Residence Exemption. This form must be filed with the local assessor to claim the exemption. In addition to this form, several other documents may be required or beneficial for homeowners during the exemption process. Below is a list of related forms and documents that are often utilized alongside Form 2368.

  • Form 2602: Request to Rescind Homeowner’s Principal Residence Exemption - This form is used by homeowners who wish to cancel their previously claimed Principal Residence Exemption. It must be submitted to the local assessor to ensure that the exemption is officially rescinded.
  • Form 573: Property Transfer Affidavit - This document is required when a property changes ownership. It provides information about the transfer and is used to update the local tax records accordingly.
  • Form 5118: Michigan Homestead Property Tax Credit Claim - Homeowners may file this form to apply for a property tax credit based on their income and property taxes paid. It is separate from the exemption but can provide additional financial relief.
  • Form 1040: U.S. Individual Income Tax Return - Homeowners may need to reference their income tax returns when applying for credits or exemptions. This form provides a comprehensive overview of their financial situation.
  • Local Assessor’s Property Tax Assessment Notice - This document contains the assessed value of the property and is essential for homeowners to understand their tax liabilities and potential exemptions.
  • Proof of Residency Documentation - Homeowners may need to provide additional documentation, such as a driver’s license or utility bill, to verify that the property is their principal residence.

These forms and documents play a significant role in the process of claiming or managing property tax exemptions. Homeowners should ensure they have the necessary paperwork ready when filing for the exemption to avoid delays or complications.

Similar forms

The Michigan Department of Treasury 2368 form is essential for homeowners seeking a Principal Residence Exemption. Several other documents serve similar purposes in different contexts. Here’s a list of nine forms that share similarities with the 2368 Michigan form:

  • Form 2602 - Request to Rescind Homeowner’s Principal Residence Exemption: This form is used when a homeowner needs to cancel a previously claimed exemption. Just like the 2368, it must be filed with the local assessor.
  • Form 1040 - U.S. Individual Income Tax Return: Homeowners often file this form to report income and claim deductions, including property tax deductions, similar to how they claim exemptions on the 2368.
  • Form 4506-T - Request for Transcript of Tax Return: This form allows individuals to request tax return transcripts, which can be necessary when verifying income for exemption claims, akin to the information required on the 2368.
  • Form 1098 - Mortgage Interest Statement: Homeowners receive this form from lenders to report mortgage interest paid, which can impact tax filings and potential exemptions, much like the 2368 affects property taxes.
  • Form 1040-ES - Estimated Tax for Individuals: This form is used by individuals to calculate and pay estimated taxes, similar to how homeowners estimate their property tax obligations after claiming exemptions.
  • Form 8862 - Information to Claim Certain Credits After Disallowance: If a homeowner's exemption claim is disallowed, this form helps them reapply for credits, paralleling the purpose of the 2368 in claiming exemptions.
  • Form 941 - Employer's Quarterly Federal Tax Return: While primarily for employers, this form can relate to property tax implications for businesses, similar to how the 2368 addresses residential property taxes.
  • Form 8283 - Noncash Charitable Contributions: This form is used to report noncash donations, which can affect tax liabilities, like how the 2368 affects homeowners' tax obligations.
  • Form 8863 - Education Credits: This form is used to claim education credits, which can affect overall tax calculations, similar to how the 2368 impacts property tax calculations.

Dos and Don'ts

When filling out the Michigan Department of Treasury Form 2368, it's essential to follow specific guidelines to ensure your application is processed correctly. Here’s a list of things you should and shouldn't do:

  • Do: Print or type your information using blue or black ink.
  • Do: Use a separate form for each property number you are claiming.
  • Do: Ensure the property tax identification number is accurate, as it is crucial for processing.
  • Do: Sign and date the form to certify that the information provided is true and correct.
  • Do: Mail the completed form to the appropriate township or city assessor.
  • Do: Check all boxes that apply to your situation regarding previous exemptions or claims.
  • Don't: Submit the form without verifying that all required fields are completed.
  • Don't: Include information for co-owners who do not occupy the principal residence.
  • Don't: Send the form directly to the Department of Treasury; it must go to your local assessor.
  • Don't: Ignore the deadline; file the form by May 1st of the year you are claiming the exemption.
  • Don't: Claim the exemption if you do not occupy the property as your principal residence.
  • Don't: Forget to rescind any previous exemptions if you stop using the property as your principal residence.

Following these guidelines can help prevent delays or issues with your exemption claim. Act promptly to ensure your application is submitted on time and accurately.

Misconceptions

Here are some common misconceptions about the Michigan Form 2368, the Homeowner's Principal Residence Exemption Affidavit:

  • Only homeowners can file this form. Many believe that renters can also claim exemptions. However, this form is specifically for those who own and occupy their principal residence.
  • Filing the form guarantees an exemption. While filing is necessary, it does not automatically mean you will receive an exemption. Your local assessor must review and approve your claim.
  • You can claim multiple principal residences. Some think they can have more than one principal residence. In reality, you may only claim one principal residence at a time.
  • The exemption applies to all property taxes. The exemption only reduces local school operating taxes, not all property taxes. Your overall tax assessment remains unchanged.
  • Filing the form is optional. It's important to file if you qualify. Failing to do so may result in penalties or back taxes if your property is later deemed ineligible.
  • Once filed, the exemption lasts forever. If your situation changes, like moving or renting out your home, you must rescind the exemption within 90 days using Form 2602.
  • Social Security numbers are optional. Many think providing Social Security numbers is not necessary. However, they are required to verify the authenticity of your claim.
  • You can file the form anytime. There is a deadline. You must submit the form by May 1st of the year you wish to claim the exemption.
  • It’s easy to calculate the exemption percentage. Some believe they can easily determine the exemption amount. Calculating the percentage for multiple-unit properties can be complex and may require assistance from your local assessor.

Key takeaways

Filling out the Michigan Department of Treasury Form 2368 is an important step for homeowners seeking a property tax exemption. Here are key takeaways to ensure you navigate the process smoothly:

  • Accurate Information is Essential: Make sure to provide correct details such as your Property Tax Identification Number and your property's complete address. This information is crucial for your local assessor to process your exemption accurately.
  • One Form per Property: You must submit a separate Form 2368 for each property you are claiming as your principal residence. This helps avoid confusion and ensures each property is assessed individually.
  • Timely Submission: To qualify for the exemption, file your completed affidavit by May 1st of the year you are claiming. Late submissions may result in missing out on potential tax savings.
  • Notify Changes Promptly: If you stop using the property as your principal residence, notify your local assessor within 90 days. Use Form 2602 to rescind any previous exemptions to avoid penalties.

Following these guidelines will help you effectively manage your property tax exemption claim. If you have further questions or need assistance, consider reaching out to your local assessor or visiting the Michigan Department of Treasury's website for more information.